Berzék Község Önkormányzata Képviselő-testületének 5/2002. (VI. 21.) önkormányzati rendelete

a helyi építési szabályzatról

Hatályos: 2023. 02. 02

Berzék Község Önkormányzata Képviselő-testületének 5/2002. (VI. 21.) önkormányzati rendelete

a helyi építési szabályzatról

2023.02.02.

Berzék község Önkormányzatának Képviselő-testülete az 1997. évi LXXVIII. törvény az épített környezet alakításáról és védelméről szóló, illetve annak módosításáról szóló 1999. évi CXV. törvény értelmében kapott felhatalmazása alapján az építés helyi rendjének biztosítása érdekében (a települési önkormányzatnak az országos szabályoknak megfelelően, illetve az azokban megengedett eltérésekkel a település közigazgatási területének felhasználásával és beépítésével, továbbá a környezet természeti, táji és épített értékeinek védelmével kapcsolatos, a telkekhez fűződő sajátos helyi követelményeket, jogokat és kötelezettségeket magába foglalóan) az alábbi önkormányzati rendeletet alkotja meg.

1. § (1) A rendelet területi hatálya kiterjed Berzék teljes közigazgatási területére.

(2) A rendelet hatálya alá tartozó területen területet alakítani, épületet és más építményt (a műtárgyakat is ide értve) tervezni, kivitelezni, építeni, felújítani, átalakítani, korszerűsíteni, bővíteni, lebontani, használni, valamint mindezekre hatósági engedélyt adni az általános érvényű előírások mellett csak és kizárólag e rendelet (és a hozzá tartozó szabályozási tervegyüttes) alkalmazásával szabad.

(3) A rendelet területi és tárgyi hatályát érintő minden természetes és jogi személyre nézve kötelező előírásokat tartalmaz (amelyek alól az első fokú építési hatóság - jegyző - csak azon a területen és csak abban a körben biztosíthat eseti eltérést, ahol és amely tárgyat érintően erre az önkormányzati rendelet kifejezetten feljogosítja).

2. § (1) A beépítésre szánt területre (belterületre) vonatkozó tervlapon jelölt kötelező szabályozási a település egésze szempontjából legfontosabb elemek, ezért azok módosítása csak a szabályozási terv felülvizsgálatával és módosításával történhet. Kötelező szabályozási elemek:

a) a közterület és egyéb területfelhasználási egységek határvonala,

b) építési határvonal

c) az eltérő területfelhasználási egységek határvonalai

d) a területfelhasználási kategóriák, a területfelhasználási besorolás, övezeti besorolás

e) a legnagyobb beépítettség mértéke

f) a megengedett építmény magasság

g) a minimális telekméret

h) a kötelező beépítési vonal

i) a környezetvédelmi előírások

j) korlátozások

3. § (1) A beépítésre szánt területre (belterületre) vonatkozó tervlapon jelölt kötelező szabályozási elemek megváltoztatása csak a szabályozási terv módosításával történhet.

(2) A beépítésre nem szánt területen (vonatkozó tervlapon jelölt)a külterületi szabályozás terven kötelező szabályozási elemnek kell tekinteni:

a) a szabályozási vonalakat,

b) a terület felhasználási egységekben, illetve övezetekben előírt beépíthető legkisebb

c) (építési telek) földrészlet nagyságát,

d) a beépítési módot

e) a legnagyobb építmény magasságot

f) a belterület bővítés határát.

(3) A (2) bekezdésben felsorolt szabályozási elemek csak a szabályozási terv módosításával változtathatók, illetve szüntethetők meg.

(4) A továbbtervezést igénylő területek, területrészek határát a szabályozási tervlapon a „továbbtervezést igénylő terület határa” jelzésű vonal tünteti fel. A kötelező erejű elemek módosítására vonatkozóan a területrendezési tervek készítéséről, egyeztetéséről, módosításáról és karbantartásáról AZ ÉPÍTETT KÖRNYEZET ALAKÍTÁSÁRÓL ÉS VÉDELMÉRŐL szóló 1997. évi LXXVIII. sz. törvény és annak módosításáról szóló 1999. évi CXV. tv. rendelkezik. A továbbtervezést igénylő területen TELEKALAKÍTÁSI TERV készítendő a 85/2000. (XI.08.) FMV rendeletben foglaltak szerint (Ld. távlati fejlesztési terület)

I. Fejezet

Építési engedélyezés általános szabályai

4. § (1) A képviselő-testület az egyes építményekkel, építési munkákkal és építési tevékenységgel kapcsolatos hatósági engedélyezési eljárásokról szóló 46/1997. (XII. 29.) KTM rendelet 9. §-ában meghatározott építési munkák körét nem bővíti.

(2) Az építési engedélykérelmekhez a 46/1997. (XII. 29.) KTM rendelet 12. §-án, illetve 17. §-án túlmenően egyéb mellékleteket nem kell csatolni.

Építési engedélykérelmek elbírálásának szabályai

5. § (1) Az építésügyi hatóság a kérelem elbírálása során vizsgálja mindazon szempontokat, melyeket számára a 46/1997. (XII. 29.) KTM rendelet kötelezően meghatároz.

(2) Azokon a területeken, ahol a terület felhasználása vagy az építés minősége (övezete) a szabályozási terven jelöltek szerint megváltozik, építés (és telekalakítás is) csak a változásnak megfelelően engedélyezhető.

(3) A (2) bekezdésben foglaltaktól eltérően építés (illetve telekalakítás) a szabályozási tervvel nem egyező területfelhasználás esetében akkor is engedélyezhető, ha:

a) az építés a legszükségesebb (élet-, vagyon- vagy közbiztonság esetleg egészségi szempontok miatt elengedhetetlen) munkálatok elvégzésére irányul.

b) a terv szerinti terület-felhasználás nagyobb távlatban (tíz vagy több év) válik esedékessé és végrehajtását a kérelmezett állapot nem akadályozza, és nem teszi költségesebbé (amennyiben az építtető vállalja a kártalanítás nélküli elbontás kötelezettségét, érték létrehozása is engedélyezhető, azonban az építmény ideiglenes meglétét, illetőleg az építtető kártalanítás nélküli elbontási kötelezettségét az ingatlan-nyilvántartásba be kell jegyeztetni).

(4) Azokon a beépítésre szánt területeken, melyeken az építés feltételei (például terület-előkészítés, közművesítés hiánya miatt) nem biztosítottak, építési engedély nem adható, elvi építési engedély esetében az építési engedély feltételeit a határozatban közölni kell.

(5) Épület építése csak olyan telken engedélyezhető, amelynek közterületről, vagy magánútról gépjárművel közvetlenül történő megközelítése biztosított.

(6) Minden beépítésre szánt területen az építmények, önálló rendeltetési egységek, területek rendeltetésszerű használatához a 253/1997. (XII. 20.) Korm. rendelet 42 §-ban meghatározott mértékű járműtárolót, várakozó (parkoló) helyet és rendszeres teherszállítás esetén rakodóhelyet kell biztosítani.

(7) A rendeletben számított gépjármű elhelyezési kötelezettségtől - a járműtároló épületeket kivéve - a település sajátosságaira figyelemmel, közlekedési vizsgálat alapján helyi önkormányzati parkolási rendelet - legfeljebb 50 %-os eltéréssel - eltérő értékeket is megállapíthat. A helyi parkolási rendeletben nyílik lehetőség arra, hogy parkolás céljára a közterületek közlekedésre szánt területe egy részének, illetőleg a közforgalom céljára átadott magánút területe egy részének felhasználásával útkezelői hozzájárulással megengedje. Ilyen esetekben a helyi adottságokon túl a 253/1997. (XII.20.) Korm. rendelet 42. § 11. pontjában meghatározottakat is figyelembe kell venni.

A közigazgatási területfelhasználási egységeinek tagozódása

6. § (1) A település közigazgatási területe beépítésre szánt és beépítésre nem szánt területből áll.

(2) A beépítésre szánt területek általában a település központi és egyéb belterületéhez, a beépítésre nem szánt területek pedig általában a település külterületéhez tartoznak.

(3) A belterületen a beépítésre szánt terület az alábbi területfelhasználási egységekre (övezetek) tagozódik:

a) falusias lakóterületek

b) településközpont vegyes területek

c) kereskedelmi, ipari gazdasági területek különleges területek

(4) Külterületen beépítésre szánt területnek minősülnek a mezőgazdasági majorok.

(5) A beépítésre nem szánt terület a következő területfelhasználási egységekre tagozódik:

a) közlekedési és közműterületek,

b) zöldterületek

c) mezőgazdasági rendeltetésű terület

d) erdőterület

e) egyéb rendeltetésű terület

A belterületi határ módosítása

7. § (1) A belterületi határ módosításáról és kitűzéséről a belterületi szabályozási terv alapján kell gondoskodni, az érvényben lévő és vonatkozó rendeletekben utasításokban foglaltak figyelembe vételével.

(2) A belterületbe kerülő területek rendeltetését, övezeti besorolását a belterületi szabályozási terv tartalmazza, határozza meg. A belterületbe vonandó területek bevonása a konkrét építési igények szerint, szakaszosan is végrehajtható.

(3) Belterületbe vonandó területek (a külterületi településszerkezeti terv szerinti lehatárolással) az új elkerülő út melletti meglévő és tartalék gazdasági területek.

II. Fejezet

A környezet védelmére vonatkozó előírások

8. § (1) Figyelembe kell venni, illetve be kell tartani a környezet védelméről szóló 1995. évi XIII. törvényt.

(2) Ezen előírások alapján a környezetvédelem részletes előírásait az Önkormányzat környezetvédelmi rendeletében kell szabályozni.

Levegőtisztaság védelem

9. § (1) Levegőtisztaság védelmi szempontból a 21/1986. (VI. 01.) MT. rendelet, a 3/1988. (VI.10.) ÉVM rendelet szerint a VÉDETT I. területi kategóriába tartozik BERZÉK teljes bel- és külterülete.

(2) A területen kizárólag olyan tevékenység folytatható, és olyan építmények helyezhetők el, amelyek légszennyezési anyagkibocsátása a - környezetterhelése - az adott terület védettségi kategóriájára vonatkozó követelményeket teljesíti, környezetveszélyeztetést nem okoz.

(3) Lakó és intézményterületen csak olyan szolgáltató ipari és kereskedelmi kisvállalkozás kaphat működési engedélyt, amely szükség szerint az érintett hatóságok véleményével is alá van támasztva.

(4) A levegő tisztaságának védelméről szóló hatályos rendeletek - 21/1986.(VI. 02.) OKTH számú rendelkezés szerint a Védett I. levegőtisztaság védelmi kategória MSZ 21584/1990. " A környezet levegőtisztasági követelményei" című szabvány imissziós határértékeit biztosítani kell.

(5) Valamennyi országos rendeletben szabályozott tevékenységi kör megvalósítása előtt környezeti hatástanulmány készítendő a 152/1995. (XII. 12.) Korm. sz. rendelet alapján.

(6) A környezeti hatástanulmányok alapján további részletes hatásvizsgálatok készítése rendelhető el, amennyiben a környezetállapot veszélyeztetettsége és a megelőzés vagy kárelhárítás lehetséges módozatai nem kellően tisztázottak.

(7) A mezőgazdasági termelés során keletkező növényi hulladék nyílttéri, valamint hagyományos energia termelő berendezésben történő égetése, a nem védett, ill. a helyi védelem alatt álló területeken a nádas és más vízinövények égetése, a tarlóégetés csak az önkormányzati rendeletben szabályozott módon a (2) bekezdés szerinti rendeletalkotás során kezdeményezett részletes előírások szerint lehetséges, illetőleg a 24 /1992. (I. 28.) Korm. sz. rendelet 14. § (3) bekezdés értelmében.

(8) Szagos, bűzös tevékenység a település beépített területétől 1000 m távolságban folytatható. Ettől eltérni technológiai korszerűsítés és egyedi hatósági elbírálás által lehetséges.

Zajvédelem

10. § (1) A zaj- és rezgés elleni védelem érdekében bármely zajt kibocsátó létesítmény csak abban az esetben üzemeltethető, illetve bármely tevékenység csak abban az esetben folytatható, ha az általa kibocsátott zaj mértéke környezetében a vonatkozó rendelet szerinti határértéket nem haladja meg.

(2) Közlekedési eredetű zaj elleni védelem érdekében, amennyiben közutak mellett a területfelhasználás megváltozik, vagy az utak forgalma az út jellegének megváltozása miatt nő meg, az egészségügyi miniszter 4/1984. (I. 23.) EÜM. számú rendeletében szereplő határértéket kell alkalmazni. E rendelet szerint a település lakóterülete LAKÓTERÜLET ÉS INTÉZMÉNYTERÜLET LAZA BEÉPÍTÉSŰ TERÜLETI FUNKCIÓNAK minősül, illetve a gazdasági területek IPARTERÜLET LAKÓTERÜLETTEL INTÉZMÉNYEKKEL VEGYES kategóriának minősül.

(3) A rezgésvédelemre vonatkozóan szintén ezen rendelet határértékei a mérvadóak.

(4) A hangosító berendezéseket zajvédelmi szempontból, illetve valamennyi szolgáltatói tevékenységgel összefüggő zajkibocsátó forrást a helyi önkormányzattal is engedélyeztetni kell.

Vízvédelem

11. § (1) Az élővizek, csatornák vízminőség védelme érdekében tisztítatlan kommunális és technológiai eredetű szennyvíz nem vezethető élővízfolyásba. Tisztított szennyvizet is csak a vízbázis-védelmi előírások betartásával, hatósági engedély birtokában kerülhetnek a befogadóba.

(2) A felszíni vízfolyások vízminőségének javítását a vízgyűjtők rendezését és a szennyezőforrások felszámolására készítendő ökológiai állapotfelmérő tanulmányterv, környezeti hatásvizsgálat és intézkedési terv határozza meg.

(3) A felszíni vízfolyások mederrendezésével a természetes vízparti vegetációt, vagyis a természetes élőhelyek védelmét a tervezés, a kivitelezés során egyaránt biztosítani kell.

(4) A vízbázis védelem a 123/1997.(VII.18.)számú Kormányrendelet alapján biztosítandó. A védő területek és védőövezetek kialakításáról gondoskodni kell.

Vízügyi előírások

12. § (1) Telekalakításhoz, illetve építési engedélyek nem adhatók a Hernád folyó partéltől számított 10 m-es parti sávjában. Ezen parti sávon ideiglenes építményeket, kerítéseket sem szabad elhelyezni.

(2) A mértékadó árvíz szintek a 46/1999.(III.18.)Kormányrendelet alapján veendő figyelembe, mely a település külterületét érinti jelen esetben.

(3) Meglévő épületek szerkezeti alsó élének megváltoztatására, illetve az alsó szintek beépítésének megszüntetésére javaslatot nem tesz a vízügyi szakhatóság, azonban valamennyi beépítés esetén a víz-, és jégkárokért a tulajdonosok a vízügyi szervek felé kártérítési igénnyel nem léphetnek fel, az általuk vagy létesítményeik által okozott károkért teljeskörűen felelősek.

(4) Újabb építési engedélyezési eljárások során, a hullámtérben tervezett épületek szerkezeti alsó élét a MÁSZ + 1,00 m magasságban kell kialakítani. A tervezett pilléreket árvízi víz és jégnyomásra méretezni kell.

(5) A tervezés során 2,0 m-nél magasabb szabad magasságú pilléreket előirányozni nem szabad, illetve mélyebb fekvésű területek esetén, még további maximum 0,50 m terepfeltöltés vehető figyelembe.

(6) Az esetlegesen felmerülő növényzetletermelési, telepítési megoldásokat a Vízügyi Igazgatósággal egyeztetni kell. Általában lefolyásgátló növényzet nem telepíthető, védelmi célú erdő nem termelhető le.

(7) Az élő és talajvizek sem közvetlenül, sem közvetve nem szennyezhetők.

(8) Gondoskodni kell a kommunális hulladék összegyűjtéséről és elszállításáról is, a hullámtéren szemétlerakót létesíteni nem lehet.

(9) A folyó mentén víziállások engedélyezése nem lehetséges, csónakkikötő és úszóstégek telepítéséhez az ÉVIZIG kezelői és szakhatósági hozzájárulást esetenként be kell szerezni.

(10) A Hernád folyón stég építésével kapcsolatos ügyekben a 2/1985 (III. 28.) OVH rendelet és az azt módosító 18/1992. (I. 28.) Kormányrendelet szerint az engedélyező hatóság az ÉVIZIG.

(11) A településen a 123/1997. (VII.18.) Kormányrendelet 5 sz. mellékletében a „B” hidrogeológiai védőzónára vonatkozó tiltások, korlátozások veendők figyelembe.

Földvédelem, tájvédelem

13. § (1) Az 1994. évi LV. Törvényben foglaltakat be kell tartani. Termőföld művelési ágból történő kivonás esetén földvédelmi járulékot kell fizetni. Belterületen szántó művelési ágként nyilvántartott területeken 1 ha-nál nagyobb területek más célú hasznosítása szintén földvédelmi járulék köteles. Belterületen 1 ha-nál kisebb terület kivett területnek minősül.

(2) A felhagyott bányaterületek és roncsolt felület rekultivációjáról gondoskodni kell az 1993. évi XLVIII. törvény alapján. A Természeti Területek védelmére a Kormányhatározat hatálybalépése után az BNP előírása érvényes.

(3) A roncsolt felület rekultivációjáról gondoskodni kell az 1993. évi XLVIII. törvény alapján.

(4) A beépítésre szánt területeken, valamint a tereprendezéssel, vízrendezéssel érintett részeken a humuszos termőréteg megmentéséről gondoskodni kell. A humuszos termőréteget az építési munkák megkezdésekor le kell szedni és külön depóniába kell helyezni. Az építés befejezése után a deponált humuszos termőréteget az építménnyel igénybe vett csatlakozó terület talajára el kell teríteni.

(5) A csapadékvíz elvezetéséről úgy kell gondoskodni, hogy a környező termőföldeken belvizet, pangóvizet ne okozhasson.

(6) A kivitelezés és üzemeltetés során biztosítani kell, hogy a káros környezeti hatások a csatlakozó termőföld minőségében kárt ne okozzanak.

Hulladékelhelyezés

14. § (1) A (2) bekezdés szerinti rendeletalkotás során kezdeményezni kell a keletkezett veszélyes hulladékok az üzemi területen történő minimális ideig való tárolásait azzal, hogy azt az arra kijelölt, vagy átmeneti tárolóba kell szállítani.

(2) A veszélyes hulladékszállítást és kezeléséről a 102/1996. (VII. 12.) Korm. számú rendelkezik, az elhullott állati tetemek ártalmatlanításánál pedig figyelembe kell venni a 41/1997. (V. 28.) FM rendelettel közzétett Állategészségügyi Szabályzást.

(3) A kommunális eredetű hulladékok szelektív gyűjtéséről a 2000. LXIII. tv. alapján gondoskodni kell.

Környezetbiztonság

15. § (1) A műszaki biztonság érdekében betartandók a 29/1960. (VI. 7.) Korm. rendelet, Ill. 2/1971. (IV. 28.) NIM rendelet alá tartozó nyomásfokozó berendezés, az 1994. évi XLVIII. tv. ill.34/1995. (IV. 5.) Korm. rendelet és az 1/1967. (IV. 28) NIM rendelet alá tartozó villamosvezeték, a 11/1994. (III. 25.) IKM rendelet hatálya alá tartozó tartály és cseppfolyós üzemanyag töltőállomás, az 1994. évi XLI. tv Ill.1/1977. (IV. 6.) NIM rendelet hatálya alá tartozó gáz-, vagy olaj berendezés, a 6/1993.(V. 12.) IKM rendelet hatálya alá tartozó gázüzemű jármű üzemanyagellátó berendezés szabályait tartalmazó rendelkezések.

Az épített környezet védelme

16. § (1) Az épített környezet védelme (kiterjed a településre, az egyedi építményekre és műszaki létesítményekre) célja, hogy az ember egészségét védje, a jövő nemzedékek életfeltételeit javítsa és ennek érdekében alapvető szabályokat állapítson meg.

(2) Biztosítani kell az épített környezetben élők (tartózkodók) egészségének védelmét, életfeltételeik folyamatos javítását, törekedni kell (el kell érni) a különböző tevékenységek káros hatásainak megszüntetésére vagy a hatályos előírások szerinti visszavonására.

(3) Fejlesztéseknél, beavatkozásoknál meg kell követelni a funkciókból adódó védőtávolságokat és a szükséges védőterület-kialakításokat.

(4) A szabályozási terven meghatározott zöldterületek, védőerdők kialakításáról és fenntartásáról folyamatosan gondoskodni kell.

III. Fejezet

BEÉPÍTÉSRE SZÁNT TERÜLETEK

Az egyes területfelhasználási egységekre vonatkozó előírások Lakóterületek általános előírásai

17. § (1) A területen fő funkcióként elsősorban lakóépületek helyezhetők el, valamint

a) termelő kertgazdasági építmény

b) a terület ellátását szolgáló üzleti, kereskedelmi, vendéglátó épület, 500 m2 beépített szintterületig

c) mező és erdőgazdasági üzemi létesítmény 500 m2 beépített szintterületig

d) kézműipari építmény, 500 m2 beépített szintterületig

e) igazgatási, egyházi, művelődési és nevelési-oktatási, egészségügyi, szociális épület, 500 m2 beépített szintterületig

f) sportlétesítmény

g) üzemanyagtöltő max. 2 kútállásig helyezhető el

h) nem zavaró hatású egyéb üzleti építmény

(2) Mellékfunkcióknál az alábbi előírásokat kell figyelembe venni:

a) Ha a főfunkció építményével egybeépülve egy tömeget képez, a homlokzat és tetőgerinc magasságra vonatkozó előírásokat kell betartani, de a főfunkció építmények magasságát nem lépheti túl.

b) Különálló kiszolgáló mellékfunkció építmény magassága 3,5 m lehet.

(3) Az (épületek elhelyezése) építési hely feleljen meg a lakóterületre vonatkozó jelen előírásoknak, a lakóterületre vonatkozó zaj és rezgésvédelmi előírásoknak, a levegőminőségi előírásoknak, működésük a közízlést, közrendet nem sértheti, az ellátó rendszerek igénybevételével azok működésében zavart nem okozhat.

(4) A beépítési mód általában oldalhatáron álló, de amennyiben a telekméret indokolttá, illetve szükségessé teszi, szabadonálló beépítési mód is engedélyezhető lakótömbönként, főként a sarkok beépítésével, vagy szórványosan.

(5) Ha a már kialakult telkek valamelyike a táblázatban feltüntetett telekméreteket, telekterületeket sem éri el, egyedi elbírálással kell vizsgálni a beépíthetőséget, melynek főbb szempontjai: benapozás, tűzvédelme, környezet és egészségvédelem. Állattartó épület ez esetben csak akkor helyezhető el, ha az övezeti előírás nem zárja ki az előírt védőtávolság betartását.

(6) Egy lakótelken több főfunkció (főépület) nem építhető.

(7) Különálló mellékfunkció építményének (főépület) elhelyezésének szabályai:

a) Az épületek közötti távolság betartandó.

b) Oldalhatáron álló beépítés esetén állattartó melléképítményt feltétlenül, egyéb építményt általában a hátsó kertben a főfunkció építménye mögött kell elhelyezni arra a telekhatárra, ahol a főfunkció építménye áll. Ettől eltérni csak indokolt esetben lehet, ha a főfunkció építménye nem közvetlenül a telekhatárra került.

c) Ha a telek már meglévő beépítettsége miatt ez nem lehetséges, - úgy hogy a főfunkció létesítményével szemben lévő telekhatártól az épületek között előírt távolság betartható legyen.

d) Szabadonálló beépítésnél az építmény mögött a hátsó kertben, a szomszédos telken lévő épületek közt előírt legkisebb távolság betartásával lehetséges.

e) A telekhatártól való távolsága azonban nem lehet kisebb ennek 3 m-rel csökkentett mérete.

(8) A kiskereskedelmi, üzlet, pavilon, környezetet nem zavaró kisipari szolgáltató építmény a faluképi szempontok figyelembevétele mellett az előkertben is elhelyezhető, ha a szomszédos telkeken lévő épületek között előírt legkisebb távolságok betarthatók.

(9) Állattartó építmény utcafrontra, előkertbe nem épülhet. Állattartó melléklétesítmények esetén az alábbi védőtávolságokat is be kell tartani:

a) kis haszonállat ólja és ketrece lakóépülettől legalább 6,0 m,

b) haszonállat ólja lakóépülettől 10,0 m, kifutója 12,0 m,

c) trágya és trágyalétároló legalább 12,0 m-re legyen.

(10) Kisüzemi állattartás létesítményei csak környezetvédelmi és közegészségügyi előírások alapján a falusias lakóövezet telkein lehetséges.

(11) Nagyüzemi állattartás létesítményei belterületen nem helyezhetők el.

(12) Az övezetekre vonatkozó általános követelményeket az egyes övezetekhez csatolt táblázatok tartalmazzák. Az egyes övezetekben a táblázatokban feltüntetetteknél kisebb méretű telkek beépíthetőségét egyedileg kell elbírálni.

Kialakult állapot

18. § (1) A telekalakítás szempontjából kialakult állapot esetén új telket alakítani:

a) kialakult tömbben: akkor szabad, ha az újabb telkek területe eléri az övezetben előírt legkisebb telekméretet / vagy a telektömbben kialakult és beépítet telkek területének átlagos méretét.

b) tömbbelső feltárás esetén: akkor szabad, ha az újabb telkek területe eléri a telek előírt legkisebb területét. Ebben az esetben a visszamaradó (illetve beépített) telek területe el kell, hogy érje az övezeti előírásoknak megfelelően beépíthető legkisebb telekterületet.

c) kialakult telekméret alatt a ténylegesen meglévő telekméret értendő. A telek megosztására csak a tömbben kialakult átlagos telekterületnek megfelelően kerülhet sor. A háromnál több telket tartalmazó tömb esetében az átlagos telekterület számítása során a legkisebb és a legnagyobb telekterületet figyelmen kívül kell hagyni.

(2) A kialakult telektömbben az épületek elhelyezésének módját az épület építési helyén belüli elhelyezésének módját a vonatkozó előírások és az illeszkedés szabályai szerint kell meghatározni.

a) Az előkert mérete a kialakult állapothoz igazodó kell, hogy legyen a tömb épített utcaszakaszán, de legalább az övezet területén.

b) Az oldalkert mérete a tényleges építménymagasság fele kell legyen, illetve az előírt távolság 2/3-ára csökkenthető, ha ahhoz a tűzvédelmi szakhatóság hozzájárul.

c) A hátsókert mérete a tényleges építménymagasság fele kell legyen, illetve az előírt 2/3-ra csökkenthető, ha ahhoz a tűzvédelmi hatóság hozzájárul.

d) Az övezetben előírt, vagy az övezetben kialakult legkisebb telekmélységet kétszeresen meghaladó mélységű telek esetében az építési hely mélysége nem haladhatja meg sem az övezetre előírt telekmélységet, sem az övezetben kialakult telekmélységnek a megengedett építménymagasság mértékével csökkentett értéket

e) Az övezetben előírt, vagy az övezetben kialakult legkisebb telekmélységet kétszeresen meghaladó mélységű telek esetében az épület mélysége sem haladhatja meg sem az övezetre előírt telekmélységnek a megengedett építménymagasság értékével csökkentett értékét, sem az övezetben kialakult telekmélységnek a megengedett építménymagasság mértékével csökkentett értékét, sem a 20,0 m-t.

(3) A szabályozási terven a "településszerkezeti védelem" (É-É-É) jelű területen a tömbökben általában oldal és szabadonálló beépítések alakultak ki. Az övezeti előírások keretei között új épület elhelyezése esetén - a kialakult utcakép védelme érdekében a jellegzetes beépítés miatt az oldalkert mérete nyílás nélküli homlokzat kialakításával 4,0 m-re csökkenthető.

(4) Az építési vonal a kialakult telektömb:

a) a foghíj és saroktelek esetében illeszkedjék a csatlakozó szomszédos telek beépítésének utcai (közterület) beépítési vonalaihoz, kivéve, ha egyéb előírás ettől eltérő előírást ír elő.

b) Ha a közbenső telek egyik csatlakozó szomszédos telke beépítetlen, illeszkedjék legalább két szomszédos beépített telek, illetve az érintett utcaszakasz beépítésének utcai (közterületi) építési vonalaihoz - kivéve, ha egyéb előírás ettől eltérő beépítést ír elő.

(5) A kialakult telektömbben a legnagyobb építmény, illetve épületmagasság

a) foghíj esetében nem haladhatja meg sem a csatlakozó szomszédos épület magasságát sem az érintett utcaszakasz súlyozott - a beépített telkeken álló épületek figyelembevételével számított - homlokzatmagasságot, de az utcakép kedvezőbb kialakítása érdekében az építési hatóság magasabb értéket is előírhat.

b) saroktelek esetében (vagy ha a közbenső telek egyik szomszédos telke beépítetlen) nem haladhatja meg sem a csatlakozó szomszédos épületek legnagyobb magasságát, sem az érintett utcaszakasz átlagos homlokzatmagasságát, de az utcakép kedvezőbb kialakítása érdekében az építési hatóság magasabb értéket is előírhat (Az építménymagasság kialakult értékétől a kedvezőbb utcakép kialakítása érdekében az építésügyi hatóság - elvi engedélyben meghatározott feltételekkel - legfeljebb 3,25 m eltérést eredményezhet.)

(6) Új magastető létesítése, magastető átalakítása esetén a tetőzet magassága - általában - ne nyúljon az utcavonalon, vagy az épület közvetlen környezetében álló épületek gerincvonala fölé.

a) Szabadonálló beépítés esetén az új magastető hajlásszöge - megközelítőleg - legyen azonos az épület közvetlen környezetében álló épület(ek) tetősíkjának lejtőszögével. Ahol a szomszédos épület(ek) tetősíkjának hajlásszöge kisebb, mint 35 fok, vagy nagyobb, mint 45 fok, ott a meglévő épület(ek)hez kell alkalmazkodni.

b) Félig zártsorú beépítés esetén a magastető tömege csökkentse a csatlakozó épületek takaratlan tűzfalait és a tetősík(ok) hajlásszöge - megközelítőleg legyen azonos, a takarandó tűzfal(ak) oromvonalának hajlásszögével. Ott, ahol a csatlakozó szomszédos épületek oromvonalának hajlásszöge kisebb, mint 35 fok, vagy nagyobb, mint 45 fok, a csatlakozás módját esetileg kell meghatározni a szomszédos épületekhez illeszkedve.

(7) A szabályozási terven megadott max. építmény magasságtól legfeljebb 15 %-os eltérés engedhető meg.

A lakóterület övezetei FL-IV építési övezet

19. § (1) Az övezetbe azok a lakótömbök tartoznak, amelyekben a telkek túlnyomó többsége megfelel az 1.sz táblázatban előírtaknak.

a) A lakóépület legfeljebb kétlakásos lehet, de legfeljebb két rendeltetési egység helyezhető el.

b) Az övezetben zártsorú beépítés nem engedhető.

c) A főfunkció építménye nem lehet alacsonyabb a mellékfunkció építménynél amennyiben a kialakult telekméret nem éri el a 900 m2-t, akkor a rendeltetési egységek számát csökkenteni, vagy mellékfunkció létesítményének építését korlátozni kell (amennyiben a szükséges védőtávolságok nem tarthatók be).

(2) Egyéb előírások:

a) legkisebb zöldfelület 40 %

b) terepszint alatti létesítmény (nem ajánlott, indokolt esetben talajmechanikai szakvélemény alapján terv készítendő az építés alatti víztelenítésre, valamint az épület víz ellen védelmére)

c) környezetvédelmi besorolások:

ca) levegőminőség: védett I.

cb) zajvédelmi: lakóterület és intézményterület laza beépítés

cc) rezgésvédelem: 20 m/s2 határérték

cd) lakóház alapozás talajmechanikai szakvélemény előírásai alapján készítendő

ce) Közművesítés: részleges

(3) A szennyvizek szikkasztása átmenetileg sem engedhető meg. A szennyvíz csatorna hálózatra való rákötés kötelező. Szintterületi sűrűség: 0,5

FL-III építési övezet

20. § (1) Az övezetbe azok a lakótömbök tartoznak, amelyekben a telkek túlnyomó többsége megfelel a 2.sz. táblázatban előírtaknak.

a) A lakóépület legfeljebb kétlakásos lehet, de legfeljebb két rendeltetési egység helyezhető el.

b) Az övezetben zártsorú beépítés nem engedhető.

c) A főfunkció építménye nem lehet alacsonyabb a mellékfunkció építménynél amennyiben a kialakult telekméret nem éri el a 700 m2-t, akkor a rendeltetési egységek számát csökkenteni, vagy mellékfunkció létesítményének építését korlátozni kell (amennyiben a szükséges védőtávolságok nem tarthatók be).

(2) Egyéb előírások:

a) legkisebb zöldfelület 40 %

b) terepszint alatti létesítmény (nem ajánlott, indokolt esetben talajmechanikai szakvélemény alapján terv készítendő az építés alatti víztelenítésre, valamint az épület víz ellen védelmére

c) környezetvédelmi besorolások

ca) levegőminőség: védett I.

cb) zajvédelmi: lakóterület és intézményterület laza beépítés

cc) rezgésvédelem: 20 m/s2 határérték

cd) lakóház alapozás talajmechanikai szakvélemény előírásai alapján készítendő

ce) Közművesítés: részleges

(3) A szennyvizek szikkasztása átmenetileg sem engedhető meg. A szennyvíz csatorna hálózatra való rákötés kötelező. Szintterületi sűrűség: 0,5

FL-II építési övezet

21. § (1) Az övezetbe azok a lakótömbök tartoznak, amelyekben a telkek túlnyomó többsége megfelel a 3.sz. táblázatban előírtaknak.

a) A lakóépület legfeljebb kétlakásos lehet, de legfeljebb két rendeltetési egység helyezhető el.

b) Az övezetben zártsorú beépítés nem engedhető.

c) A főfunkció építménye nem lehet alacsonyabb a mellékfunkció építménynél.

(2) Egyéb előírások:

a) legkisebb zöldfelület 40 %

b) terepszint alatti létesítmény (nem ajánlott, indokolt esetben talajmechanikai szakvélemény alapján terv készítendő az építés alatti víztelenítésre, valamint az épület víz ellen védelmére

c) környezetvédelmi besorolások

ca) levegőminőség: védett I.

cb) zajvédelmi: lakóterület és intézményterület laza beépítés

cc) rezgésvédelem: 20 m/s2 határérték

cd) lakóház alapozás talajmechanikai szakvélemény előírásai alapján készítendő

ce) Közművesítés: részleges

(3) A szennyvizek szikkasztása átmenetileg sem engedhető meg. A szennyvíz csatorna hálózatra való rákötés kötelező. Szintterületi sűrűség: 0,5

FL-I építési övezet

22. § (1) Az övezetbe azok a lakótömbök tartoznak, amelyekben a telkek túlnyomó többsége megfelel a 4.sz. táblázatban előírtaknak.

a) A lakóépület legfeljebb kétlakásos lehet, de legfeljebb két rendeltetési egység helyezhető el.

b) Az övezetben zártsorú beépítés nem engedhető.

c) A főfunkció építménye nem lehet alacsonyabb a mellékfunkció építménynél.

d) Amennyiben a kialakult telekméret nem éri el a 600 m2-t, akkor a rendeltetési egységek számát csökkenteni, vagy mellékfunkció építését korlátozni kell (amennyiben a szükséges védőtávolságok nem tarthatók be).

(2) Egyéb előírások:

a) legkisebb zöldfelület 40 %

b) terepszint alatti létesítmény (nem ajánlott, indokolt esetben talajmechanikai szakvélemény alapján terv készítendő az építés alatti víztelenítésre, valamint az épület víz ellen védelmére

c) környezetvédelmi besorolások

ca) levegőminőség: védett I.

cb) zajvédelmi: lakóterület és intézményterület laza beépítés

cc) rezgésvédelem: 20 m/s2 határérték

cd) lakóház alapozás talajmechanikai szakvélemény előírásai alapján készítendő

ce) Közművesítés: részleges

(3) A szennyvizek szikkasztása átmenetileg sem engedhető meg. A szennyvíz csatorna hálózatra való rákötés kötelező. Szintterületi sűrűség: 0,5

Vegyes terület

23. § (1) A vegyes terület lakó, kereskedelmi, szolgáltató és a települési infrastruktúra alapfokú ellátást biztosító intézményrendszerének elhelyezésére szolgál.

(2) A vegyes terület lehet településközpont vegyes terület.

Településközpont vegyes terület Általános előírásai

24. § (1) A településközpont vegyes terület több önálló rendeltetési egységet magába foglaló, lakó és olyan helyi települési szintű igazgatási, kereskedelmi, szolgáltató, vendéglátó, szálláshely szolgáltató, egyházi, oktatási, egészségügyi, szociális épületek, valamint sportlétesítmények elhelyezésére szolgál, amelyek alapvetően nincsenek zavaró hatással a lakófunkcióra.

(2) A településközpont vegyes területen elhelyezhető:

a) lakóépület

b) igazgatási épület

c) kereskedelmi, szolgáltató, vendéglátó, szálláshely szolgáltató épület

d) egyéb közösségi szórakoztató épület

e) egyházi, oktatási, egészségügyi, szociális épület

f) sportépítmény

g) parkolóház, üzemanyagtöltő; max. 3 kútállásig

(3) A településközpont vegyes területen az OTÉK 31. § (2) bekezdésben előírtak figyelembevételével kivételesen elhelyezhető:

a) nem zavaró hatású egyéb gazdasági építmény,

b) termelő kertészeti építmény

(4) A településközpont vegyes területen nem helyezhető el önálló parkolóterület és garázs a 3,5 t önsúlynál nehezebb tehergépjárművek és az ilyeneket szállító járművek számára.

A településközpont vegyes terület, dominánsan lakóépületek elhelyezésére szolgáló alövezet

25. § (1) A terület építési övezeteinek legfontosabb előírásait az 5.sz. táblázat tartalmazza.

(2) A kialakult beépítésű területeken az új és az átépülő házak esetében az utcaképbe illesztést az engedélyezési terv készítésekor a szomszédos 3-3 épületet feltüntető, legalább 1:200 m.a. utcakép készítésével kell bemutatni. Félig zártsorú beépítés megengedhető.

(3) Közterület felőli telekhatáron maximum 1,8 m magas, áttört kerítés létesítése engedélyezhető.

(4) Az intézményekhez az OTÉK szerinti, előírt gépjármű várakozóhelyeket telken belül kell biztosítani.

(5) Meglévő, kialakult, 10-14 m közötti szélességű lakótelkek beépítése, illetve azokon lévő épületek átépítése engedélyezhető. A kialakult beépítésre való tekintettel az oldalkert minimális mérete a 14 m-nél kisebb szélességű telkek esetében 4 m-re csökkenthető. Az övezetben az elhelyezhető építmények legnagyobb homlokzatmagassága 4,0 m lehet.

(6) Nyúlványos (nyeles) telek kialakítása nem engedélyezhető.

(7) A minimális teleknagyságot intézmények elhelyezésénél az ágazati szabványok és a technológiai tervek szabják meg. (ld. oktatási intézmények minimális telke) Szabadonálló beépítés elsősorban saroktelken alakítható ki.

(8) Egyéb előírások:

a) legkisebb zöldfelület: 20 %-a

b) terepszint alatti létesítmény (nem ajánlott, indokolt esetben talajmechanikai szakvélemény alapján terv készítendő az építés alatti víztelenítésre, valamint az épület víz ellen védelmének biztosítására vonatkozóan)

c) környezetvédelmi besorolások

ca) levegőminőség: védett I.

cb) zajvédelmi: lakóterület és intézményterület laza beépítés

cd) rezgésvédelem: 20 m/s2 határérték

ce) lakóház alapozás talajmechanikai szakvélemény előírásai alapján készítendő

d) közművesítés: részleges

(9) A szennyvizek szikkasztása átmenetileg sem engedhető meg. A szennyvíz csatornahálózat való rákötés kötelező.

A településközpont vegyes terület, dominánsan alapfokú épület elhelyezésére szolgáló alövezet

26. § (1) A terület építési övezeteinek legfontosabb előírásait a 6.sz. táblázat tartalmazza

(2) A kialakult beépítésű területeken az új és az átépülő házak esetében az utcaképbe illesztést az engedélyezési terv készítésekor a szomszédos 3-3 épületet feltüntető, legalább M=1:200-as méretarányú utcakép készítésével kell bemutatni. Félig zártsorú beépítés megengedhető.

(3) Közterület felőli telekhatáron maximum 1,8 m magas, áttört kerítés létesítése engedélyezhető.

(4) Az intézményekhez az OTÉK szerinti, előírt gépjármű várakozóhelyeket telken belül kell biztosítani.

(5) Meglévő, kialakult, 10-14 m közötti szélességű lakótelkek beépítése, illetve azokon lévő épületek átépítése engedélyezhető. A kialakult beépítésre való tekintettel az oldalkert minimális mérete a 14 m-nél kisebb szélességű telkek esetében 4 m-re csökkenthető. Az övezetben az elhelyezhető építmények legnagyobb homlokzatmagassága 4,0 m lehet lakóház építése esetén, intézményi épület esetén max. 6,0 m.

(6) Nyúlványos (nyeles) telek kialakítása nem engedélyezhető.

(7) A minimális teleknagyságot intézmények elhelyezésénél az ágazati szabványok és a technológiai tervek szabják meg. (ld. oktatási intézmények minimális telke)

(8) Szabadonálló beépítés elsősorban saroktelken alakítható ki.

(9) Egyéb előírások:

a) legkisebb zöldfelület : 20 %

b) terepszint alatti létesítmény (nem ajánlott, indokolt esetben talajmechanikai szakvélemény alapján terv készítendő az építés alatti víztelenítésre, valamint az épület víz ellen védelmének biztosítására vonatkozóan)

c) környezetvédelmi besorolások: levegőminőség: védett I. zajvédelmi: lakóterület és intézményterület laza beépítés rezgésvédelem: 20 m/s2 határérték lakóház alapozás talajmechanikai szakvélemény előírásai alapján készítendő

d) közművesítés: részleges

(10) A szennyvizek szikkasztása átmenetileg sem engedhető meg. A szennyvíz csatorna hálózatra való rákötés kötelező.

A településközpont vegyes terület, dominánsan különleges védett zöldfelület igényű intézményi épület elhelyezésére szolgáló alövezet

27. § (1) A terület építési övezeteinek legfontosabb előírásait a 7.sz. táblázat tartalmazza.

(2) Közterület felőli telekhatáron maximum 1,8 m magas, áttört kerítés létesítése engedélyezhető.

(3) Az intézményekhez az OTÉK szerinti, előírt gépjármű várakozóhelyeket telken belül kell biztosítani.

(4) Nyúlványos (nyeles) telek kialakítása nem engedélyezhető, illetve a védett kastélypark területe nem osztható meg, de a park területének bővítése további telekösszevonással megengedhető.

(5) A minimális teleknagyságot intézmények elhelyezésénél az ágazati szabványok és a technológiai tervek szabják meg. (ld. oktatási intézmények minimális telke)

(6) Egyéb előírások:

a) legkisebb zöldfelület : 60 %

b) terepszint alatti létesítmény (nem ajánlott, indokolt esetben talajmechanikai szakvélemény alapján terv készítendő az építés alatti víztelenítésre, valamint az épület víz ellen védelmének biztosítására vonatkozóan)

c) környezetvédelmi besorolások:

ca) levegőminőség: védett I.

cb) zajvédelmi: lakóterület és intézményterület laza beépítés

cc) rezgésvédelem: 20 m/s2 határérték

cd) lakóház alapozás talajmechanikai szakvélemény előírásai alapján készítendő

d) Közművesítés: részleges

(7) A szennyvizek szikkasztása átmenetileg sem engedhető meg. A szennyvíz csatorna hálózatra való rákötés kötelező.

Gazdasági területek

28. § (1) A belterület (beépítésre szánt terület) magába foglalja a gazdasági terület területfelhasználási kategóriákat, ezen belül:

a) kereskedelmi, szolgáltató terület (KG jelű terület)

b) egyéb ipari terület (IG jelű terület)

A Gazdasági terület általános előírásai

29. § (1) A kereskedelmi, szolgáltató területen [KG] elsősorban nem jelentős zavaró hatású gazdasági tevékenységi célú épületek elhelyezésére szolgál. A területen elsősorban a TEÁOR EU megfeleltetés szerinti tevékenységi körök folytathatók, de nem települhet be a KG jelű területre

a) bőrárú nagykereskedés,

b) állat egészségügyi ellátás (állatkórház)

c) szennyvíz, hulladék kezelési szolgáltatás.

(2) Az övezetbe elhelyezhető gazdasági építmények (fő funkciók):

a) átrakó építmény, mérlegház

b) üzletház

c) raktár

d) szociális helység építménye

e) üzemi jellegű kutató és szolgáltató építmény

f) szolgálati lakó és szállásépületek

g) terület ellátó alapfokú intézmény

h) termék vezeték

i) üzemanyagtöltő

(3) Mellékfunkciók (melléképítmények)

a) garázs

b) kirakat szekrény

c) tüzelőanyag tároló

d) kazánház

(4) Terepszint alatti építmények

a) süllyesztett rakodó

b) mérlegház

c) pincehelyiség (talajmechanikai szakvélemény alapján)

(5) Az egyéb ipari területen a (2), (3) pontban felsorolt építményeken túlmenően elhelyezhetők olyan ipari jellegű létesítmények, melyek a lakóterülettől kb. 50 m védőtávolság betartását igénylik, de a szomszédos üzem funkcióját nem zavarják. (ipari, építőipari, tárolás, raktározás, településgazdálkodás, energiaipari létesítmények)

(6) A teljes közművesítettség a technológiához tartozó ellátó és biztonsági rendszerek kialakítása kötelező.

(7) A technológiai tervnek igazolnia kell az övezetre vonatkozó környezetvédelmi előírások betarthatóságát.

(8) A KG Kereskedelmi gazdasági területre vonatkozó adatokat a 8.sz. táblázat tartalmazza.

(9) Egyéb előírások:

a) legkisebb zöldfelület 20 %

b) környezetvédelmi besorolás

ba) levegőminőség: védett I.

bb) zajvédelmi: iparterület lakóterületekkel és intézményekkel vegyes terület

bc) rezgésvédelem: 40 m/s2

bd) épület alapozás eseti talajmechanikai szakvélemény alapján készítendő

c) Közművesítés: részleges

d) A szennyvízszikkasztás átmenetileg sem engedhető meg. Káros és veszélyes anyagokat tartalmazó szennyvizek a közcsatornába, illetve szennyvízgyűjtőbe nem vezethetők. A káros és veszélyes anyagokat tartalmazó szennyvizeket a közcsatornába, ill. a zárt szennyvízgyűjtőbe vezetés előtt a telken belül előtisztítani, illetve előkezelni kell.

Gazdasági ipari terület1

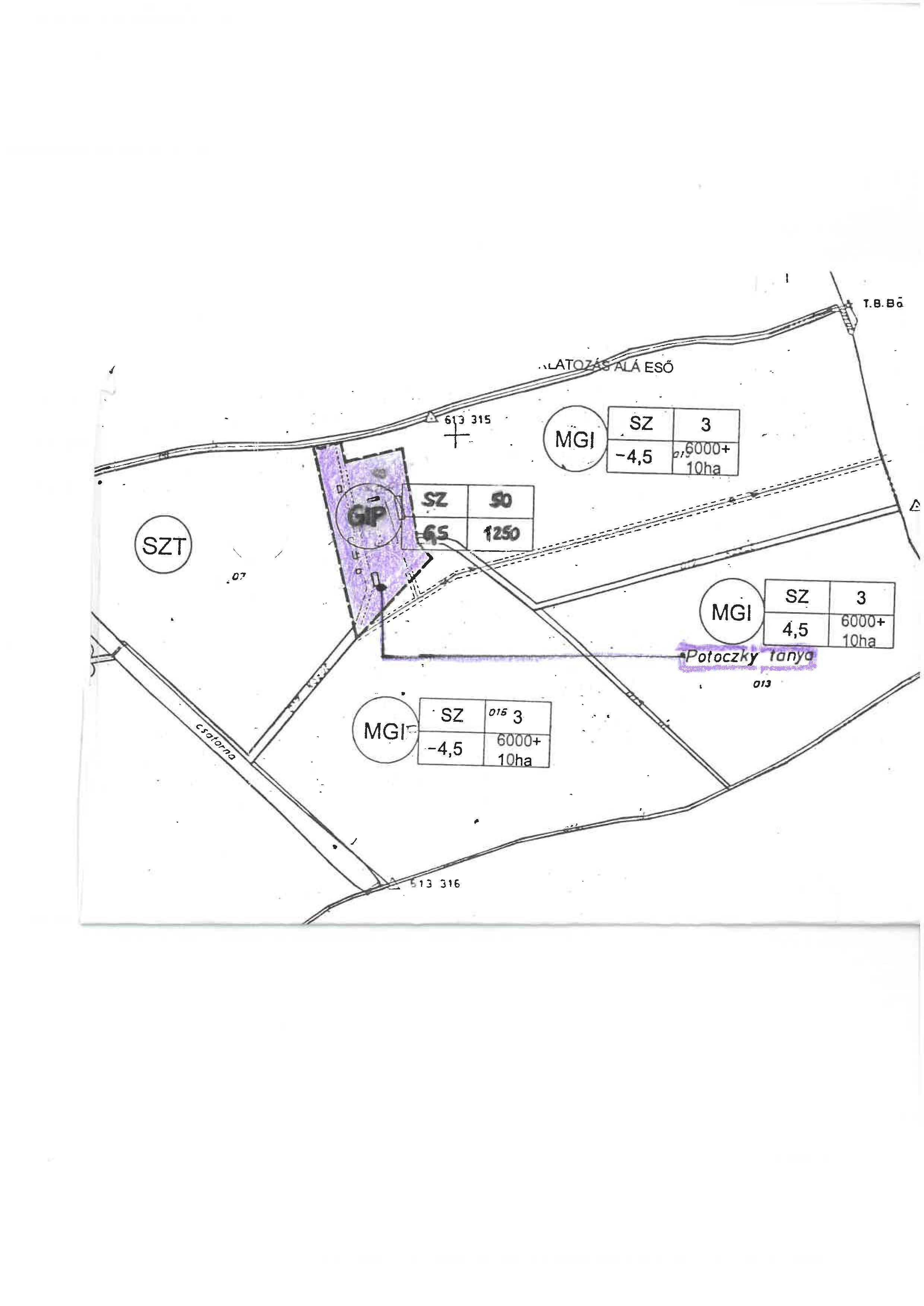
30. §2 (1) A Gip Gazdasági Ipari területre vonatkozó adatokat a IX. sz. táblázat tartalmazza.

(2) Egyéb előírások:

a) legkisebb zöldfelület 25 %, és a településkép-védelmi rendelet szerinti – nem bolyhosodó termésű –fafajokkal ültethető be.

b) környezetvédelmi besorolás

ba) levegőminőség: védett I.

bb) zajvédelmi: iparterület lakóterületekkel és intézményekkel vegyes terület

bc) rezgésvédelem: 40 m/s2

bd) épület alapozás eseti talajmechanikai szakvélemény alapján készítendő

c) Közművesítés: részleges

(3) A szennyvízszikkasztás átmenetileg sem engedhető meg. Káros és veszélyes anyagokat tartalmazó szennyvizek a közcsatornába, illetve szennyvízgyűjtőbe nem vezethetők. A káros és veszélyes anyagokat tartalmazó szennyvizeket a közcsatornába, ill. a zárt szennyvízgyűjtőbe vezetés előtt a telken belül előtisztítani, illetve előkezelni kell.

(4) Normatív szabályozás:

a) Terület beépíthető szintterület

aa) 1250 m2- ig 500 m2

ab) 1500 m2- ig 600 m2 és a fennmaradó terület 40 %-a

ac) 3000 m 2- ig 1000 m2 és a fennmaradó terület 30 %-a

b) A beépítettség maximum 50 % lehet.

(5) Nem kerülhet az ipari területre jelen esetben:

a) vörösiszap tároló

b) zagytér

c) veszélyes hulladéklerakó

(6) Eseti döntés alapján kerülhet a gazdasági ipari területre jelen esetben

a) műanyag feldolgozó

b) nyomtatott áramkör előállító üzem

c) üveggyártó

d) nehéz gépjárműjavító

e) hulladék feldolgozó

(7) A tiszta technológiák fogadását kell előtérbe helyezni!

M építési övezet (Mezőgazdasági) Ipari gazdasági területfelhasználási

31. § (1) Az övezetbe a meglévő és újonnan létesülő mezőgazdasági üzemek (majorok) tartoznak, ahol a mezőgazdasági termékek feldolgozása, tárolása, a mezőgazdasági gépek és szállítóeszközök javítása folyik, nagyüzemi állattartás vagy mezőgazdasági illetve mezőgazdasági termeléshez szorosan kapcsolódó ipari tevékenység, szőlő és gyümölcs feldolgozás befogadására alkalmas.

(2) A belterülethez közeli mezőgazdasági területeken (a szabályozási terven majorlétesítési tilalmi határon belüli területeken, majorok számára új terület nem alakítható ki.)

(3) A korlátozás alá nem eső mezőgazdasági területeken, elvi engedélyezési eljárás keretében jelen előírásokat betartva, mezőgazdasági ipari gazdasági terület alakítható.

(4) A meglévő területek fejlesztése, átalakítása, korszerűsítése, a teljes létesítményre kiterjedő terv alapján engedélyezhető.

(5) A mezőgazdasági majorokra vonatkozó előírásokat a 10.sz. táblázat tartalmazza.

(6) Egyéb előírások:

a) legkisebb zöldfelület 40 %

b) környezetvédelmi besorolás

ba) levegőminőség: védett I.

bb) zajvédelmi: iparterület lakóterületekkel és intézményekkel vegyes terület

bc) rezgésvédelem: 40 m/s2

bd) épület alapozás eseti talajmechanikai szakvélemény alapján készítendő

be) közművesítés: részleges

c) A szennyvízszikkasztás átmenetileg sem engedhető meg. Káros és veszélyes anyagokat tartalmazó szennyvizek a közcsatornába, illetve szennyvízgyűjtőbe nem vezethetők. A káros és veszélyes anyagokat tartalmazó szennyvizeket a közcsatornába, ill. a zárt szennyvízgyűjtőbe vezetés előtt a telken belül előtisztítani, illetve előkezelni kell.

Különleges területek

32. § (1) A különleges területbe azok a területek tartoznak, amelyek a rajtuk elhelyezendő építmények különlegessége miatt (helyhez kötöttek, jelentős hatást gyakorolnak a környezetükre, vagy a környezetük megengedett külső hatásaitól is védelmet igényelnek), a települési infrastruktúra jelentős intézményei.

(2) A különleges területek területfelhasználási mód szerinti tagozódása:

(3) Különleges területnek minősülnek az alábbi létesítmények elhelyezésére kijelölt területek:

a) temető (T)

b) sporttelep (SP)

c) camping, táborhely (C)

(4) Az építési övezet funkcionális besorolását a 11.sz. táblázat tartalmazza.

IV. Fejezet

BEÉPÍTÉSRE NEM SZÁNT TERÜLETEK

A közlekedési területek általános előírásai

33. § (1) Az övezet az országos és helyi közutak, a kerékpárutak, a gépjármű várakozó helyek (parkolók) - a közterületnek nem minősülő telken megvalósulók kivételével -, a járdák és gyalogutak, mindezek csomópontjai, vízelvezetési rendszere és környezetvédelmi létesítményei, továbbá a közművek és a hírközlés építményeinek elhelyezésére szolgál. A közutak elhelyezése céljából a településszerkezeti terven ábrázoltaknak megfelelően útkategóriáktól függően, legalább a következő szélességű építési területet kell biztosítani:

a) Országos mellékutak esetén 16-22 m (3607-es számú KM út)

b) Helyi gyűjtőutak esetén 16-22 m

c) Külterületi fő dűlőutak esetén 12 m

d) Kiszolgáló utak esetén 10 m

e) Kerékpárút esetén 3 m

(2) A közlekedési területen elhelyezhető a közlekedés kiszolgálói; közlekedési létesítmények, közművek és hírközlési létesítmények.

(3) Az országos közutakat érintő új csomópontok vagy útcsatlakozások tervezésekor figyelembe kell venni az UT-2-1. 115-1994. számú útcsatlakozások ideiglenes műszaki előírásaiban foglaltakat.

(4) Figyelembe kell venni továbbá az 1988. I. törvény, illetve ennek végrehajtásáról szóló 30/1988. (IV.21.) MT rendeletet, az utak forgalomszabályozásáról és a közúti jelzésekről szóló 20/1984. (XII.01.) KM sz. rendeletet, és a közutak igazgatásáról szóló 19/1994. (V. 21.) KHVM rendeletet.

Közműlétesítmények, közműellátás

34. § (1) A közműhálózatok és közműlétesítmények elhelyezésénél az OTÉK előírásait, valamint a megfelelő ágazati szabványokat és előírásokat be kell tartani.

(2) A közműlétesítmények ágazati előírások szerinti védőtávolságon belül mindennemű tevékenység csak az illetékes üzemeltető hozzájárulása esetén engedhető meg.

(3) Új közművezeték létesítésekor és egyéb építési tevékenység (útépítés, építmény, épület-, műtárgyépítés, stb.) esetén a kivitelezés során a meglévő közművezetékek nyomvonalával, vagy közműlétesítmény telepítési helyével ütköző meglévő közművezetékek, vagy közműlétesítmények kiváltását, vagy szabványos keresztezési ágazati előírások szerint kell kivitelezni.

(4) A meglévő közművek egyéb építési tevékenység miatt szükségessé váló kiváltásokat, vagy szabványos keresztezés kiépítésekor azoknak - szükség esetén - egyidejű rekonstrukciójáról is gondoskodni kell.

(5) Épületek építésére engedély csak az övezeti előírásoknak megfelelő közművesítés biztosítása esetén adható.

(6) A közlekedésfejlesztést, a területfejlesztést a közmű ágazati fejlesztési tervekkel egyeztetni kell a célszerű kivitelezés érdekében.

(7) A közművezetékek telepítésénél (átépítéskor és új vezeték létesítésekor) a gazdaságos területhasználatra figyelmet kell fordítani. Utak alatt a közművek elrendezésénél mindig a távlati összes közmű elhelyezési lehetőségét kell figyelembe venni. A csak távlatban várható közmű számára is a legkedvezőbb nyomvonal fektetési helyet szabadon kell hagyni, nem szabad eléépíteni.

(8) Közművezeték, járulékos közműlétesítmények elhelyezésénél az esztétikai követelmények betartására is figyelemmel kell lenni.

(9) Mindennemű építési tevékenységnél a meglévő és megmaradó közművezetékek, vagy közműlétesítmények védelméről gondoskodni kell.

(10) Útépítésnél, útrekonstrukciónál a tervezett közművek egyidejű kiépítéséről illetve a meglévő közművek szükséges egyidejű rekonstrukciójáról gondoskodni kell.

(11) Szennyvízkezelés, csapadékvíz elvezetés

a) A talaj, a talajvíz és a rétegvizek védelme érdekében a szennyvizek szikkasztása még átmenetileg sem engedélyezhető.

b) A csatornázatlan területeken a szennyvízcsatorna hálózat megépítéséig átmeneti közműpótló berendezésként - szigorúan ellenőrzötten kivitelezett - zárt szennyvíztározó medencék létesítése engedélyezhető. A zárt szennyvíztározó medencékből az összegyűjtött szennyvizet a kijelölt szennyvízleürítő helyre kell szállítani.

c) A nyílt árkokra való esetleges szennyvízrákötéseket, valamint a felhagyott kutakba történő szennyvízbekötéseket meg kell szüntetni.

d) A gazdasági területen keletkező ipari szennyvizeket a telken belül kell előtisztítani (olaj-, zsír-, hordalékfogó, stb.). A szennyvizet csak a hatóságok által előírt mértékű előtisztítás után szabad a közcsatornákba bevezetni.

e) A VIZIG kezelésében lévő vízfolyások, vízfelületek partéleitől 6-6 m, a társulati kezelésű vízfolyások partéleitől 4-4, az önkormányzati kezelésben lévő vízfolyások, vízfelületek partéleitől 2-2 m, a nyílt árkok mentén legalább az egyik oldalán min. 2 m, a másik oldalán min. 1 m szélességű sáv karbantartás számára szabadon hagyandó.

f) A magasabban fekvő területekről lefolyó csapadékvizek ellen a beépített területeket övárkok létesítésével kell megvédeni. Az övárkok belterületi nyílt árkokba csatlakozása előtt hordalékfogók telepítése szükséges.

(12) Villamosenergia ellátás

a) A középfeszültségű 20 kV-os oszlopra fektetve épített villamoshálózatok előírások, az MSZ 151. sz. szabvány szerinti rögzített biztonsági övezetét szabadon kell hagyni. A 20 kV-os vezeték védőtávolsága külterületen 5-5 m, belterületen 2,5-2,5 m a szélső szálaktól. A szélső szálak távolsága 3 m.

b) A villamosenergia elosztó hálózatok föld feletti elhelyezése egyelőre területgazdálkodási szempontból fennmarad, az utcabútorozási és utcafásítási lehetőség biztosítása érdekében a hálózatokat közös oszlopsorra kell elhelyezni, lehetőleg a közvilágítási lámpatesteket tartó oszlopokra. Hosszabb távon a villamosenergia közép- és kisfeszültségű, valamint a közvilágítási hálózatokat lehetőleg földkábelbe fektetve kell építeni.

(13) Gázellátás

a) Az érvényes előírások szerint a földgázvezeték biztonsági övezete a földgázvezeték falsíkjától nagyközépnyomású vezeték esetén 9-9 m. A középnyomású vezeték biztonsági övezete az átmérőtől függően jobbra-balra 3-5 m közötti, a kisnyomású vezetéké 3-3 m.

b) Középnyomású földgázellátású területeken telkenként egyedi nyomásszabályozókat kell elhelyezni. A tervezett gáznyomás-szabályozók az épületek utcai homlokzatára nem helyezhetők el. A berendezés a telkek előkertjeiben, udvarán, vagy az épület alárendeltebb homlokzatára szerelhetőek.

(14) Távközlés

a) A távközlési hálózatot létesítésekor illetve rekonstrukciójakor szükséges földkábelbe illetve alépítménybe helyezve föld alatt vezetve építeni.

b) A föld feletti vezetés fennmaradásáig, területgazdálkodási okokból, valamint az utca fásítási és utcabútorozási lehetőségének a biztosítására a 0,4 kV-os, a közvilágítási és a távközlési szabadvezetéket közös oszlopsoron kell vezetni.

c) A mobiltelefon-szolgáltatók antenna tornyait belterületen nem lehet elhelyezni. Külterületen történő elhelyezés esetén a BNP és a műemléki hatóság egyetértő véleménye szükséges.

Közterületek kialakítása, nyilvántartása és használata

35. § (1) A település igazgatási területen közterületként a szabályozási terveken ekként jelölt és az ingatlan-nyilvántartásban így bejegyzett területeket kell számon tartani.

(2) A közterületeket rendeltetésének megfelelően bárki szabadon használhatja, de a használat mások hasonló jogait nem korlátozhatja.

(3) A közterület rendeltetésétől eltérő használathoz a tulajdonos, az Önkormányzat hozzájárulása szükséges. Amennyiben az eltérő használat építési tevékenységgel is jár, a tulajdonosi hozzájárulásokon túl, az építési hatóság engedélye is szükséges.

(4) A település közterületein az alábbi használatok engedélyezhetők:

a) hirdető, reklám berendezés elhelyezése,

b) közúti közlekedéssel kapcsolatos építmények (pl. tömegközlekedési váróhely, parkoló, információs tábla) elhelyezése

c) köztisztasággal kapcsolatos építmények, tárgyak elhelyezése

d) utcai bútorok, műtárgyak (szobor, kút, óra, stb.) elhelyezése

e) távbeszélőfülke elhelyezése

f) építési munkával kapcsolatos létesítmények, építőanyagok időleges elhelyezése

(5) Töltőállomást csak a forgalmi utak mentén lehet elhelyezni.

(6) Tömegközlekedési várakozóhelyeket az utcaképbe illeszkedő módon lehet építeni.

(7) A közterületek eredeti rendeltetésétől eltérő használatát, annak időtartamát, a használat egyéb feltételeit, pl. a használati díjat, és egyéb elvárásokat, valamint az engedély nélküli szankciókat külön önkormányzati rendeletben kell szabályozni.

ZÖLDTERÜLETEK (Z) Általános előírások

36. § A község területén az OTÉK 6. § (3) és 27. § alapján a belterületen Z KÖZPARK, beépítésre nem szánt övezet került bevezetésre, melyek területét a szabályozási terv tünteti fel.

Z övezet Közparkok területe

37. § (1) Az övezetbe a közparkok, díszparkok, pihenő- és játszóparkok tartoznak.

(2) Területüknek közútról, köztérről közvetlenül megközelíthetőnek kell lennie.

(3) Az övezetbe elhelyezhető:

a) A pihenést és testedzést szolgáló építmények (sétaút, pihenőhely, tornapálya, gyermekjátszótér, stb.)

b) Vendéglátó, elárusító épület, nyilvános illemhely

c) A terület fenntartásához szükséges épület

Erdőterületek E Általános előírások

38. § (1) A legmagasabb szintű jogszabály Az erdőről és az erdő védelméről szóló törvény 1996. évi XIV. tv.

(2) A község igazgatási területén az OTÉK 6. § (3) és 28. § alapján az erdőterületek övezetekre való bontása a településszerkezeti terv területfelhasználásra vonatkozó meghatározásai alapján

a) E1 védelmi célú erdő

b) E2 gazdasági célú erdő

c) E3 természeti területek erdői övezetek kerültek megkülönböztetésre.

E-1 övezet Védelmi rendeltetésű erdők

39. § (1) Telepítésük szükség szerint a környezetre ártalmas bűzös üzemek védőtávolságának csökkentése, a lakóterületek védelme érdekében történik.

(2) Területükön építmények nem helyezhetők el.

E-2 övezet Gazdasági erdők

40. § (1) Az erdő területén rendeltetésének megfelelő építmények helyezhetők el, maximum 0,5 %-os beépítettséggel.

(2) A 0,5 %-os beépítettséget telekalakítás, telekmegosztás során is biztosítani kell.

(3) A megengedett maximális építménymagasság 3,5 m. Az épületeket szabadonállóan kell elhelyezni.

E-3 övezet Természeti Területek erdői

41. § A Természeti Területek erdeire az illetékes természetvédelmi államigazgatási szervek előírásai vonatkoznak. (Természeti Területek kataszterezését a Természet védelméről szóló 1996. évi LIII. évi törvény írja elő).

Mezőgazdasági területek (MG) Általános előírások

42. § (1) A község külterületének, mezőgazdasági termelést (növénytermelést, szőlő és gyümölcstermelést, állattenyésztést továbbá termékfeldolgozást és tárolást) szolgáló része.

(2) A mezőgazdasági területeken az OTÉK 6. § (3) alapján és a 29. § előírásainak megfelelően a következő övezetek kerültek kijelölésre: MG-I intenzív hasznosítású mezőgazdasági terület MG-Ix major létesítési tilalommal extenzív MG-E extenzív hasznosítású mezőgazdasági terület KE Kertgazdasági hasznosítású terület

(3) A területen elhelyezhető építményeket jelen szabályzat és az adott terület építési hagyományainak megfelelően kell kialakítani.

MG-I Intenzív hasznosítású mezőgazdasági terület

43. § (1) Az övezetbe a mezőgazdasági területek azon - viszonylag egybefüggő részei tartoznak, ahol a szántó művelésű területek meghatározó arányban találhatók, ezért főként a szántóföldi művelés jelenti a fő gazdálkodási tevékenységet. A telekalakítás és építés feltételei a meghatározó tevékenységhez igazodva kerültek meghatározásra, melyet a 12. sz. táblázat tartalmaz.

(2) A lakóház építés feltétele továbbá legalább 10 ha terület művelési és tulajdonlási kötelezettsége.

(3) Az MG-Ix-el jelölt területeken (belterület közvetlen közelében lévő területeken) M övezet (major) számára új területet kialakítani nem lehet.

(4) A fentiekben nem említett szántó művelésű területeken, elvi engedélyezési eljárás lefolytatását követően alakítható terület új (mezőgazdasági) ipari gazdasági tevékenység számára.

(5) A mezőgazdasággal hivatásszerűen foglalkozók részére kialakítandó építési telkeknél figyelembe kell venni az alábbiakat:

a) az istállók, trágyatelep, valamint a szomszédok lakóházai (és a saját lakóház) közötti un. izolációs távolság betartásának lehetőségét,

b) az állattartáshoz kapcsolódó alomszalma, szálas- és silótakarmányok, abrak tárolásának helyigényét, ezek megközelíthetőségét,

c) a külterületi növénytermesztés kiszolgálásához az erdő- és munkagépek, szállító eszközök, anyagok (növényvédőszer, műtrágya, stb.) szakszerű tárolásának, a megtermelt termékek feldolgozásának (szárítás, tisztítás, válogatás, stb.) osztályozásának, csomagolásának, stb. helyigényét,

d) az előzőekben leírt különböző rendeltetésű építmények tárolóterek elválasztását és a tájrendezési szempontokat szolgáló gyümölcsfákkal, kertészeti növényekkel hasznosítható területek kialakíthatóságát,

e) az egyéb, a helyi beépítési szokásokhoz igazodó terek (előkert, udvar, stb.) kialakításának helyigényét.

MG-E Extenzív hasznosítású mezőgazdasági terület

44. § (1) Az övezetbe a mezőgazdasági területek azon - viszonylag egybefüggő részei tartoznak, ahol a szántó, gyep, legelő művelésű területek meghatározó arányban találhatók, ezért főként az extenzív szántó, legeltetés, állattartás jelenti a fő gazdálkodási tevékenységet. A telekalakítás és építés feltételei a meghatározó tevékenységhez igazodva kerültek meghatározásra, melyet a 13.sz. táblázat tartalmaz.

(2) Tanya és farmgazdaság 6000 m2 építési telek kialakítására legalább 15 ha nagyságot elérő terület fenntartás, birtoklás esetén lehetséges. Szabadonálló beépítési móddal, maximum 4,5 m homlokzatmagasságú épületekkel, a telekterület maximum 3-5 %-ának beépítésével. Az épületek tömbösített formában helyezendők el. A vízbázis védelmi területén csak az ÉVIZIG szakhatóság engedélyével lehetséges tanya (lakóház) építése.

(3) A fentiekben nem említett szántó művelésű területeken, elvi engedélyezési eljárás lefolytatását követően alakítható terület új (mezőgazdasági) ipari gazdasági tevékenység számára.

Egyéb területek VT, SZT övezetek Vízgazdálkodási terület

45. § (1) VT jelű övezetbe tartozik a Hernád folyó, annak partja és közvetlen környezete. Területükön a vizisport és a sporthorgászás célját szolgáló közösségi építmények helyezhetők el, illetve alakíthatók ki, az érintett szakhatóságok hozzájárulásával, elvi engedélyezési eljárással megalapozottan megkért építési engedély alapján. SZT jelű terület a a bőcsi Borsodi Sörgyár szennyvíz szikkasztója.

(2) Az övezetben lévő, fenti előírásoknak megfelelő építmények építésének, átalakításának, bővítésének részletes feltételeit külön szabályozási tervben kell kimunkálni. Az érintett területekre, a szükséges terv jóváhagyásáig, változási tilalom lép életbe.

(3) VT-2 jelű övezetbe tartoznak az általános vízgazdálkodási területek: a közcélú nyílt csatornák medre és partja, a vízbeszerzési területe védőterületei. Területükön építmények nem helyezhetők el.

V. Fejezet

Építészeti értékek védelme

Az építészeti örökség védelme

46. § (1) A település épített környezetének védelme, építészeti-utcaképi jellegzetességeinek megőrzése érdekében.

(2) Országos védelem keretein belül védelem alatt áll:

a) Perczel kúria (Kossuth u. 33.) (A kúria ma is a Perczel családé, amelyből a szabadságharc tábornoka, Perczel Mór született. XVIII. századi eredetű téglalap alaprajzú. Hernád-parti kertben szabadon álló, magasföldszintes épület, XIX. századi klasszicista átalakításokkal, két végén 1930. körüli épült toldalékok. Belül hevederek közötti csehsüvegboltozatos helyiségek. a középső rész mindkét oldalon kihangsúlyozott. A négy toszkán oszlopos, oromzatos középrizalit mögött terasz, ahová lépcső vezet fel az ápolt parkból.)

b) A református templom (Kossuth u. 14. hrsz. 1.) Gótikus eredetű XIV. sz. barokk a XVIII. sz-i átalakításokkal.

c) A református harangláb XVIII. századi eredetű, népi. Átalakítva.

(3) Helyi önkormányzati védelem alatt álló lakóház: (66/1999. (VIII.13.) FVM rendelet szerint) Petőfi u. 368/2 hrsz.

A védett területek és objektumok lehatárolása

47. § (1) Helyi önkormányzati védelem fokozatai:

a) Településszerkezeti védelem: A településszerkezeti védelem területe a Petőfi u., Kossuth u. és a Rákóczi u. által határolt terület. A településszerkezeti védelem alatt álló területeken az utcaszélesítés, új utak nyitása csak nagyon körültekintően és a szükséges legminimálisabb mértékben engedhető meg.

b) Utcaképi védelem:

ba) A hagyományos építészeti értékeket legtisztábban megőrző utcaszakaszok védelme érdekében utcaképi védelem alatt áll:a Petőfi utca, Szemere utca ,Esze Tamás utca és a Rákóczi utca szabályozási terven bejelölt szakaszán elsősorban a homlokzatok és kerítések megtartása, illetve rekonstrukciója szükséges. A harsány színekre történő színezés nem engedhető meg.

bb) Az utcaképi védelem a jelölt utcaszakaszok épületeinek beépítési módját, az épületek építészeti arculatának, tömegének, jellemző paramétereinek megőrzését jelenti. A védett utcaszakaszon lévő, a védett értékeket hordozó épület lebontása csak az önkormányzati képviselő testület hozzájárulásával engedélyezhető. Az épületek felújítása illetve új építése csak a meglévő értékekhez szigorúan igazodó módon történhet.

b) Hagyományőrző építészeti karaktervédelem:

ca) A beépítés hagyományos jellegzetességeit viszonylag egységesen megőrző településrészek, utcák hangulatának, építészeti értékeinek megőrzése, valamint a folyamatos átépítések során megvalósítható még egységesebb, összefüggő utcaképi megjelenés, illetve a Hernád folyó felőli látványvédelem megvalósulása érdekében Hagyományőrző Építészeti karaktervédelem alatt áll az egész település szerkezetvédelem területe és az Esze Tamás utca két oldala.

cb) A védett területen az épületek csak oldalhatáron állóan, előkert nélkül is elhelyezhetők, a kialakult állapotnak megfelelően. Az épületek meghatározó építészeti jellegzetességeit a helyi védelem alatt álló épületeket alapulvéve kell meghatározni. Ennek megfelelően az utcára merőleges tetőgerincű épületeket, a helyben jellegzetes oldaltornácos, utcai homlokzaton esetenként homloktornáccal is megjelenített módon kell építeni, kontyolással, vagy az oromfalban tetőtéri erkély-loggia nem tervezhető. Egyéb építészeti kiselemek alkalmazása, pl. ablak körüli vakolatdíszítés alkalmazása szükséges. A tetőtéri beépítéskor szükséges ablakokat csak tetősíkban szabad elhelyezni. A homlokzatokon, kerítéseken alkalmazásra kerülő anyagokat, színeket hagyománytisztelő módon kell megválasztani.

b) Építészeti karaktervédelem

da) Annak érdekében, hogy az értékes épületek, utcarészek lehetőség szerint egy folyamatában is „átélhető”, megszemlélhető egységet alkossanak, a helyi védettségű épületeket is tartalmazó, de össz építészeti értékét tekintve kevésbé értékes néhány utcában építészeti karaktervédelem kerül bevezetésre. (A teljes Rákóczi utca)

db) A védett területen az épületek csak oldalhatáron állóan helyezhetők el. Az épületek meghatározó építészeti jellegzetességeit a helyi védelem alatt álló épületeket alapulvéve kell meghatározni. Az építészeti kiselemek, pl. nyílászárók, vakolatdíszítések és egyéb apró helyi jellegzetességek alkalmazása ajánlott.

b) Objektum védelem, épületek helyi védelme

ba) Az épített környezet alakításáról és védelméről szóló 1997. évi LXXVIII. törvény 56- 57. §-a, illetve a (66/1999. (VIII. 13.) FVM rendeletalapján jelen rendelet helyi építészeti örökségként tesz kijelölést, egyedi védetté nyilvánítást és rendelkezik azok fenntartásáról, használatáról és bemutatásáról.

ba) A helyi védelem alá vont épületek felújítását, a műemléki Hivatal megyei referensével is véleményeztetett tervek alapján lehet csak engedélyezni.

ec) A helyi védettségű épületekre bontási engedély nem adható. (A bontási engedélyhez a helyi védelem feloldása szükséges, mely képviselő testületi döntést igényel.)

ed) A helyi védettségű épületek felújításakor, átalakításakor, a védelem tárgyát képező építészeti alaprajzi, homlokzati elemeket-, melyeket külön helyi védelmi kataszter keretein belül kell rögzíteni-, megváltoztatni nem lehet, illetve a felújítás és az átalakítás során az egységesebb építészeti megjelenés és az épület értékének növelése érdekében intézkedéseket kell hozni.

(2) Helyi, önkormányzati védelemre javasolt épületek, objektumok, jellemző lakóház típusok karakterjegyei: egymenetes, háromosztatú népi lakóházak, az oszlopos homlok tornác, vagy körtornác, míves részletek (házorom díszítő kereszt , kovácsoltvas kapunyitó, stb.)

(3) A régészeti lelőhelyeken és környezetükben a muzeális emlékek védelméről szóló 1963. évi IX. sz. törvényerejű rendelet, valamint a végrehajtásról kiadott 2/1965. (I. 8.) MM rendelet szerint kell eljárni. Amennyiben a közigazgatási területen jelentősebb földmunkák során régészeti lelet kerül felszínre, a munkálatokat fel kell függeszteni és az illetékes Múzeumok Igazgatóságát értesíteni kell.

(4) Ezidáig nem ismert és nem nyilvántartott területekre vonatkozóan az 1997. Évi CXL. Törvény 35. §-ában foglaltakat kell figyelembe venni és betartani.

VI. Fejezet

Egyes sajátos jogintézmények

48. § (1) A település beépítésre szánt területén épület csak építési telken helyezhető el (kivételt képeznek ez alól a közterületen, zöldterületen történő építések).

(2) A település beépítésre nem szánt területein új építményt építeni, meglévő építményt átalakítani, bővíteni, rendeltetését vagy használati módját megváltoztatni csak akkor szabad, ha

a) a terület rendeltetésszerű használatát szolgálja,

b) közérdeket nem sért,

c) az építmények csak a hozzájuk tartozó terület jelentéktelen hányadát veszik igénybe és biztosított, hogy az építmények a telekterülete nélkül nem idegeníthetők el.

49. § (1) Tilalmakkal, korlátozásokkal érintett területeket, területegységeket a szabályozás terv tartalmazza. A település igazgatási területét érintő tilalmak, korlátozások:

(2) Változtatási tilalom, három év eltelte után megszűnik, szükség esetén további egy évvel meghosszabbítható. A változtatási tilalommal terhelt területen telket alakítani, új építményt létesíteni, a meglévő építményt átalakítani, bővíteni, elbontani, ill. más értéknövelő változtatást - életveszély elhárításán kívül - végrehajtani nem szabad. Változtatási tilalom a távlati fejlesztési területekre terjed ki, mely a részletes tervek elkészítéséig, és a belterületbe vonási eljárásig tartandó fenn.

Telekalakítás szabályai

50. § (1) Az OTÉK III. fejezetében foglaltak és a 85/2000. (XI. 08.) FMV rendelet szerint kell eljárni.

(2) Telket csak úgy szabad alakítani, hogy a terület rendeltetésének megfelelő használatra alkalmas legyen, továbbá annak alakja, terjedelme, beépítettsége a szabályozási tervnek és a vonatkozó jogszabályoknak megfeleljen.

(3) A szabályozási terv szerinti telekcsoport rendezésénél a telkeket egyesíteni kell, az egyesített földrészletből ki kell venni a közterületeket, majd a fennmaradt területet a területre vonatkozó előírásoknak megfelelő telkekre kell felosztani.

Beültetési kötelezettség

51. § (1) Iparterületek és kereskedelmi gazdasági területek között. A beültetési kötelezettségeknek legkésőbb a használatbavételi engedély beszerzéséig eleget kell tenni.

(2) Az elrendelt településrendezési kötelezettségeket az ingatlannyilvántartásba be kell jegyezni.

52. § (1) Településrendezési intézkedések következtében okozott károk esetében a tulajdonost, haszonélvezőt korlátozási kártalanítás illeti meg, melynek eljárási rendjét, mértékét és rendszerességét az 1997. évi LXXVIII. tv. 30. §-a szabályozza.

(2) A korlátozási kártalanítást az köteles megfizetni, akinek az érdekében a településrendezési intézkedés történt. Az önkormányzati célok megvalósításához a települési önkormányzatnak a kártalanítási igények aktualitását és azok mértékét célszerű napirenden tartani és kérelemre indult igény teljesítésére a forrást is meg kell teremteni.

Záró rendelkezések

53. § (1) Ez a rendelet 2002. július 21. napján lép hatályba.

(2) A rendelet kihirdetéséről a jegyző gondoskodik.


Jávorszki Imréné
polgármester


Sinai Bertalanné
jegyző

táblázat3

IX. sz. TÁBLÁZAT Gip Gazdasági Ipari terület

Beépítési mód

Övezeti jele

Legkisebb területe
m2

Legkisebb szélesség
m

Legkisebb mélység
m

Legnagyobb beépítettség
%

Építmény max. magasság
m

Szabadon álló

Gip

1250

25

50

50

6,5

fedvény4

Fedvény
fedvény

1. melléklet

Településrendezési terv térkép

2. melléklet

Berzék külterületi átnézeti térkép

3. melléklet

Berzék rendezési terve

4. melléklet

Berzék általános rendezési terv belterületeinek általános szabályozási és övezeti terve

5. melléklet

Berzék rendezési terve szabályozási terv a belterületre
1

A „Gazdasági ipari terület” alcím címe a Berzék Község Önkormányzata Képviselő-testületének 1/2023. (II. 1.) önkormányzati rendelete 1. §-ával megállapított szöveg.

2

A 30. § a Berzék Község Önkormányzata Képviselő-testületének 1/2023. (II. 1.) önkormányzati rendelete 2. §-ával megállapított szöveg.

3

A táblázatot a Berzék Község Önkormányzata Képviselő-testületének 1/2023. (II. 1.) önkormányzati rendelete 3. § (1) bekezdése iktatta be.

4

A fedvényt a Berzék Község Önkormányzata Képviselő-testületének 1/2023. (II. 1.) önkormányzati rendelete 3. § (2) bekezdése iktatta be.