Szekszárd Megyei Jogú Város Önkormányzata Közgyűlésének 9/2003. (IV. 30.) önkormányzati rendelete
a temetőkről és a temetkezésről
Hatályos: 2026. 01. 01Szekszárd Megyei Jogú Város Önkormányzata Közgyűlésének 9/2003.(IV.30.) önkormányzati rendelete
Szekszárdi Önkormányzat 9/2003. (IV. 30.) rendelete
a temetőkről és a temetkezésről [1]
1. § (1) A rendelet hatálya kiterjed Szekszárd Megyei Jogú Város közigazgatási területén fekvő, az önkormányzat tulajdonában álló köztemetőkre, az ott folyó temetkezési, temetőfenntartási, sírhelyhasználati tevékenységre, valamint a temetői szolgáltatásokat igénybevevő, illetve a tevékenységeket végző természetes és jogi személyekre.
(2) Szekszárd Megyei Jogú Város területén működő köztemetők: Alsóvárosi, Újvárosi és Szőlőhegyi köztemető.
(3) [2] A köztemetők fenntartója Szekszárd Megyei Jogú Város Önkormányzata (a továbbiakban: önkormányzat). A meglévő köztemetők bővítése, lezárása, megszüntetése és új köztemető létesítése az önkormányzat feladata.
(4) [3] Az önkormányzat a köztemető és létesítményei fenntartásáról, üzemeltetéséről, valamint e rendelet 9. §-ának (1) bekezdése szerinti egyéb tevékenységek végzéséről a Panteon Kegyeleti Szolgáltató Kft. 7100 Szekszárd, Alkony u. 1. (a továbbiakban: üzemeltető) útján - kegyeleti közszolgáltatási szerződés keretében - gondoskodik.
(5) A köztemetők fenntartásával és üzemeltetésével kapcsolatos feladatok ellátásához szükséges pénzügyi fedezet biztosításáról a közgyűlés az éves költségvetés keretében gondoskodik.
(6) [4] Az üzemeltető saját honlapján, valamint hirdetőtábláján közzéteszi a veszélyes, rossz állapotú síremlékek listáját.
(7) [5] E rendeletben foglaltakat köteles betartani minden temető látogató természetes személy, a temetőkben vállalkozásszerűen munkát végző (ipari, szolgáltatási tevékenység) természetes személy egyéni vállalkozó, gazdálkodó szervezet, a temető üzemeltetője, valamint mindazok, akiknek a rendelet hatálya alá tartozó tevékenységek ellátása során, azzal összefüggésben jogai keletkeznek, és rá kötelezettségek hárulnak.
(8) [6] Az üzemeltető és a temetkezésben érintett más vállalkozók kötelesek egymással együttműködni. Az üzemeltető a temetkezési szolgáltatók között köteles az egyenlő bánásmód követelményét megtartani.
2. § (1) [7] A városban halottat eltemetni a működő köztemetőkben és az izraelita temetőben, az elhamvasztott halott maradványait elhelyezni csak a működő köztemetőkben lehet. A temetkezés történhet koporsóban, vagy a hamvak urnában, vagy dísz-szóró kútban történő elhelyezésével. A hamvakat tartalmazó urnát az eltemettető, vagy egyetértésével más hozzátartozó kívánságára a kormányrendeletben foglalt feltételek mellett ki kell adni.
(2) A köztemetőkben vallási közösség által végzett vallásos szertartás szerint [8] , valamint polgári szertartással történő temetés egyaránt lebonyolítható.
(3) A temetkezési tevékenységet az üzemeltető, illetve a szolgáltatást végző a kegyeleti elvárásokhoz illő módon kell, hogy megszervezze.
(4) [9] A temetőknek és létesítményeinek alkalmasnak kell lenni a temetési tevékenység lebonyolítására. Az üzemeltető köteles gondoskodni a ravatalozó és hűtőberendezés megfelelő üzemképes állapotban tartásáról, s a szertartásokhoz szükséges eszközökről, felszerelésekről.
(5) A temetkezés során az üzemeltető, illetve kegyeleti szolgáltatást végző köteles az etnikai, vagy vallási jellegű temetkezési szokásokat figyelembe venni, amennyiben azok más jogszabályokkal nem ellentétesek.
(6) [10] Köztemetőkben temetkezni a temetőkben kifüggesztett térkép szerint kialakított sírhelytáblák, temetési helyek igénybevételével lehet.
(7) [11]
(8) [12] Amennyiben az üzemeltetőnél nem az eltemettető jár el személyesen, a képviseletét ellátó meghatalmazását is csatolni kell a megrendeléshez.
2/A. § [14] (1) A köztemetőben a tárgyi és infrastrukturális feltételekről a kegyeleti közszolgáltatási szerződés felhatalmazása alapján az üzemeltetési és fenntartási feladatokat ellátó üzemeltető gondoskodik.
(2) A köztemetőkben a ravatalozót a temetés időpontja előtt legalább 1 órával korábban kell az üzemeltetőnek rendelkezésre bocsátani.
(3) A ravatalozó használati díját a rendelet 2. melléklete tartalmazza, mely a hangosítás biztosítását magába foglalja.
(4) A ravatalozó és annak berendezéseinek használata során az állagmegóvásról a temetkezési szolgáltató köteles gondoskodni.
3. § (1) [15] A köztemetőket sírhelytáblákra, a sírhelytáblákat sorokra, a sorokat pedig temetési helyekre kell felosztani. A temetési helyeket a sírhelytáblákban folytatólagos sorrendben kell felhasználni.
(2) [16] Külön sírhelytáblát kell kijelölni a sírboltok, a gyermek, a kettős, az urnasírhelyek részére, valamint a mesterséges vagy spontán abortusz folytán távozó magzat, csonkolt testrész, emberi szerv, szervmaradvány eltemetésére. A gyermeksírhelyekbe 10 éves vagy ennél fiatalabb korban elhunytak temetése történhet.
(3) [17] A betelt sírhelytáblákat az utolsó temetés napjával le kell zárni. Ezt követően a lezárt sírhelytáblákba koporsós temetés csak sírboltba, vagy sírhelybe rátemetéssel történhet.
(4) [18] A temető, temetőrész, vagy lejárt temetkezési hely kiürítésekor a sírjellel, síremlékkel annak létesítője, halála után örököse jogosult rendelkezni. Ha a síremlék létesítője, illetőleg annak örököse a temető kiürítésére megjelölt időpontig azzal nem rendelkezik, a síremléket a temető üzemeltetője - temető tulajdonosával egyeztetve - egy év eltelte után értékesítheti. Az ebből származó bevétel kizárólag a temető fenntartására fordítható.
(5) [19] Amennyiben a temetkezési helyek használati ideje lejárt, az üzemeltető hirdetményben köteles a hozzátartozók figyelmét a lejárat előtt hat hónappal erre felhívni. Ha a temetkezési helyek használati idejét a hozzátartozók nem hosszabbítják meg, az üzemeltető a használati idő lejárta után a temetkezési helyet újra értékesítheti. A használati idő lejártáról a hirdetményt a temető főbejáratánál, valamint az üzemeltető ügyfélszolgálatánál elhelyezett hirdetőtáblán kell kifüggeszteni.
(6) [20] Ha a temetkezési helyek használati idejét a hozzátartozók nem hosszabbítják meg, az üzemeltető a használati idő lejárta után azt kiürítheti és az urnákat az erre a célra kialakított sírboltba helyezheti.
(7) [21] A temető, temetőrész kiürítésékor a 100 évnél régebbi, vagy képzőművészeti alkotást is magába foglaló síremlék bontásához a városi főépítész hozzájárulása szükséges.
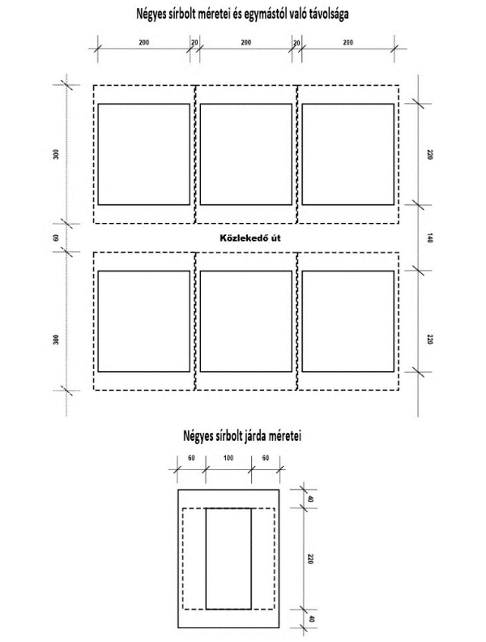
4. § (1) [22] A sírhelyek méretei:
5. § (1) [35] A temetési hely térítési díj ellenében váltható meg. A temetési hely a 7. § (2) bekezdésében foglaltak figyelembevételével a rendelkezésre jogosult, vagy annak örököse által újból megváltható. A megváltott sírhelyről a rendelkezésre jogosult, vagy annak örököse lemondhat.
(2) A térítési díjakat a rendelet 1. melléklete [36] tartalmazza.
(2a) [37] Az 1. melléklet II. pontjában meghatározott sírbolt temetkezési helyek esetében a rendelkezésre jogosult újraváltás esetén kezdeményezheti a megváltási díj legfeljebb hat havi részletekben történő megfizetését. Az első részlet megfizetésének határideje a megváltás kezdeményezésének időpontja, az ezt követő részletek megfizetésének határideje a tárgyhó utolsó napja. A harmadik részlet megfizetéséig nem tekinthető megváltottnak a sírbolt, ezt követően az utolsó részlet befizetéséig a sírbolt időarányosan megváltott. A beérkezett részleteket a sírboltkönyvben az üzemeltető köteles rögzíteni.
(3) Sírhelyet, kettős sírhelyet és sírboltot az állampolgárok életükben is megválthatnak. A megváltott sírhely, kettős sírhely kitűzésére azonban csak a halál bekövetkezésekor kerülhet sor.
(4) A temetési helyet az üzemeltető jelöli ki a megváltás térítési díjának befizetése után.
(5) [38] A megváltási díjat az első megváltás alkalmával a temetési jog felett rendelkezni jogosult vagy az általa megbízott, az újraváltáskor a temetési hely felett rendelkezni jogosult, vagy annak örököse, illetve általa megbízott köteles megfizetni. A díjakat minden esetben a temetést, kihantolást, rátemetést megelőzően kell megfizetni.
(6) [39] Ha a sírhely nem váltható meg újra, de a hozzátartozó - a használati idő lejárta előtt - a holttest maradványokat, (hamvakat) a kiürítéskor ugyanabban a temetőben, vagy másik köztemetőben levő új sírba helyezi el, az új sírhely megváltási díja az áthelyezéskor érvényben lévő díjtételeket alapul véve a következő megváltásig számolt díj időarányos része.
(7) [40] A temetési helyek használatának joga - a sírbolt kivételével - magánszemélyek között nem ruházható át, nem örökölhető.
(8) [41] Ha a temetési hely felett rendelkezni jogosult bejelenti, hogy a holttestet más temetési helyen kívánja eltemetni, úgy a megfizetett megváltási díj időarányos részét vissza kell téríteni. A megváltott, de fel nem használt temetési helyről érvényesen csak az üzemeltetőnél tett nyilatkozattal lehet lemondani.
(9) [42] A temetkezési helyek nem vonhatók össze.
Díszsírhelyek
6. § (1) Díszsírhely a köztemetőben kijelölt olyan sírhely, melyet a közgyűlés örök temetkezési hely céljára jelöl ki az elhunyt személy kimagasló érdemeinek elismeréséül.
(2) A díszsírhely 220 cm-re mélyített egyes sírhely, amelyre a későbbi rátemetést a házastárs részére biztosítani kell.
(3) A díszsírhely személyre szóló adományozásáról - a közgyűlés által átruházott hatáskörben - a polgármester dönt.
7. §
(1) [44] A temetési hely feletti rendelkezési jog időtartama (használati idő)
8. § (1) A temetők nyitvatartási idejét az üzemeltető állapítja meg, melyet a temető bejáratánál jól látható helyen ki kell függeszteni.
(2) A temetőkben mindenki a hely csendjének, a kegyeletnek megfelelő magatartást köteles tanúsítani.
(3) [47] A köztemető területén nem megengedett gépjárművel közlekedni, kivéve:
a) a súlyos mozgáskorlátozott személyt szállító gépjárművet;
b) a temetkezési tevékenységben részt vevő gépjárművet;
c) a köztemető üzemeltetéséhez szükséges gépjárművet.
d) a köztemetőben egyéb vállalkozói tevékenység folytatásához használt gépjárművet, az üzemeltető engedélyével.
(3a) [48] A (3) bekezdésben meghatározott kivételi körbe tartozó gépjárművek részére a temetőbe való behajtás ingyenes.
(4) [49]
(5) [50] A temetkezési helyek gondozásával kapcsolatban keletkező hulladékot a sírhelyek között tárolni nem megengedett. A hulladékot az üzemeltető által kijelölt tároló helyre kell szállítani.
(6) [51] A temető területén talajt és gyepet engedély nélkül felásni és a növényeket más- hova elvinni nem megengedett. A temetkezési helyek körül padot, betonlépcsőt elhelyezni csak az üzemeltető engedélyével lehet. A temető területéről földet kivinni nem megengedett.
(7) [52] Az urnafal körül sírhalmot emelni, növényzetet telepíteni, sírjelet elhelyezni nem megengedett.
(8) [53] A köztemetőkbe állatot bevinni - a vakvezető, terápiás és mozgáskorlátozottakat segítő eb és a fegyveres és rendészeti szervek szolgálati ebek kivételével - nem megengedett.
(9) Tíz éven aluli gyermek a temető területén csak felnőtt felügyelete mellett tartózkodhat.
(10) [54] A temetőben gyertyát, vagy mécsest gyújtani legkésőbb a zárás előtt fél órával szabad a tűzvédelmi előírások betartásával. A tűzveszély elkerüléséhez szükséges intézkedést annak kell megtenni, aki a gyertyát, vagy mécsest meggyújtotta.
(11) [55] Hétfőtől péntekig munkanapokon 9.00 órától 17.00 óráig terjedő időtartamban kerülhet sor temetésre. A hozzátartozó és az üzemeltető ettől eltérő időpontban is megállapodhat.
(12) [56]
(13) [57] Az üzemeltető a köztemetőkben folyamatosan biztosítja az elhunytak átvételét. Az elhunytak átadásának időpontját az üzemeltetővel, az általa megjelölt elérhetőségeken egyeztetni kell.
(14) [58] Az elhunytak kiadása munkanapokon de. 800 - 1000 óráig és du. 1500 - 1600 óráig az üzemeltetővel történt előzetes egyeztetés alapján történik.
8/A. § [59] (1) A köztemetőben a temetési helyek gondozásáról, a gyomtalanításáról a temetési hely felett rendelkező személy gondoskodik.
(1a) [60] A temetési helyen kívül - az üzemeltető vagy az önkormányzat által történő temető parkosítás kivételével- növényt ültetni nem lehet.
(1b) [61] A temető kulturált kiépítésének és gondozottságának biztosítása érdekében a rendelkezésre jogosult köteles a temetési hely ápolásáról gondoskodni.
(2) A síremlék karbantartásáért, balesetveszélytől mentes állapotának megőrzéséért az építtető felelős.
(3) A köztemetőben csak a temetési helyek, síremlékek díszítésére szolgáló, a kegyeleti jelleget nem sértő tárgyak (virágok, koszorúk, vázák, mécsesek, gyertyák stb.) helyezhetők el.
(4) [62] Az üzemeltető a gondozatlan, kegyeletet sértő, elhanyagolt, elgazosodott sírok rendbetételét, gyomtalanítását, különösen nagyra nőtt fák, bokrok, növények esetén minden előzetes értesítés nélkül elvégezheti a rendelkezési jog tulajdonosának költségére.
(5) A rossz helyre ültetett növényekben, valamint a sírokon kinőtt gyomnövények kaszálása során bekövetkezett károkért az üzemeltető nem tartozik felelősséggel.
(6) A sírokra ültetett növények nem terjeszkedhetnek túl a temetési helyeken, és nem akadályozhatják a sírok közötti közlekedést, azok megközelítését.
(7) [63] A sírokra nem lehet ültetni:
a) kúszónövényt (iszalag félék, folyondár félék, vadszőlő félék)
b) lombhullató fa- és cserjefélét;
c) törpeméretű örökzöldek kivételével lomb- és tűlevelű örökzöldeket.
(8) A temetési hely gondozása úgy végezhető, hogy az ne sértse más elhunyt hozzátartozójának, illetve a látogatóknak a kegyeleti érzéseit és ne akadályozza azokat a sírgondozásban.
(9) A temetési hely gondozása során a szomszéd temetési hely nem sérülhet.
(10) [64] Temetkezési helyen történő növénytelepítés ellenőrzése és a rendelet előírásaitól eltérő ültetés jelzése az önkormányzat felé a temető üzemeltetőjének feladata.
(11) [65] A temető rendje és tisztasága érdekében exhumálások, síráthelyezések, temetkezési hely nyitások vagy más ok következtében feleslegessé vált sírkőmaradványokat, egyéb bontási törmelékeket a rendelkezni jogosult a munkálatokat követő tíz munkanapon belül a temető területéről elszállítani tartozik. Amennyiben a rendelkezni jogosult e kötelezettségének nem tesz eleget, az üzemeltető a rendelkezni jogosult költségére jogosult azt elszállítani.
9. § (1) [67] A köztemetőkben temetkezési szolgáltatást az arra jogosult vállalkozó, illetve gazdasági társaság végezhet. A köztemetőn belüli, az elhunyt hűtésével, a sírhelynyitással és visszahantolással kapcsolatos feladatok ellátására az üzemeltető szakszemélyzetének és berendezésének igénybevétele (a továbbiakban: az üzemeltető által biztosított szolgáltatás) kötelező.
(2) [68] A temetkezési szolgáltatók a temetői létesítmények, valamint az üzemeltető által biztosított szolgáltatás igénybevételéért e rendelet 2. mellékletében [69] meghatározott díjat kötelesek fizetni, amely díjak megfizetése temetkezési szolgáltató tevékenysége végzése során a kormányrendelet 55. §-ának (1) bekezdése alapján az üzemeltető számára is kötelező.
(3) [70] A temetőben síremlék bontási, állítási, sírbolt építési, bontási, továbbá javítási, felújítási munkálatokat a rendelkezni jogosult megbízása alapján bármely egyéni, vagy társas vállalkozás végezhet. A munkavégzést a munka megkezdése előtt legalább 2 nappal írásban be kell jelenteni az üzemeltetőnek, vagy a temető- gondnoknak.
(4) [71] A temetőben a (3) bekezdésben [72] felsorolt munkát végző megbízott igénybe veheti az üzemeltető által biztosított közműveket (utakat, szeméttárolót, víz, villanyáramot, stb.) és ezek használatáért temetőfenntartási hozzájárulást [73] köteles fizetni a 2. melléklet [74] szerint a munkálatok megkezdése előtt.
(5) [75] A (2) és (4) bekezdés [76] szerinti [77] díjakat a rendelet 2. melléklete [78] tartalmazza.
(6) [79] A síremlékkészítők, és más a temetőben munkát végző vállalkozók, természetes személyek - a hozzátartozók részéről történt sírgondozás, a temetési hely növénnyel való beültetése és díszítése kivételével - a munkavégzés körülményeiről, időpontjáról, kötelesek az üzemeltetővel egyeztetni és az üzemeltetőnek a temető rendjével kapcsolatos - e rendeletben, valamint a Korm. rendelet 23. §-ában foglaltakon alapuló - utasításait betartani.
(7) [80] Engedélyköteles tevékenységnél az engedélyt is be kell mutatni az üzemeltető részére.
(8) [81] Építési, illetőleg bontási munkát csak az üzemeltető helyszíni szemléje után lehet megkezdeni.
(9) [82] Síremlékkel, sírbolttal kapcsolatos kivitelezői munkák hétköznap április 01. és szeptember 30. között 7 órától 17 óráig, október 01. és március 31. között 7 órától 15 óráig végezhetők a köztemetőben. November 1-jét megelőző és az azt követő 5 munkanapon, továbbá szombaton, vasárnap és ünnepnap szakipari munka nem végezhető.
(10) [83] A temetőben munkát végző vállalkozók a munkálatok befejezését kötelesek az üzemeltetőnek bejelenteni. A munkáltatok befejezését követően a törmeléket, hulladékot kötelesek elszállítani vagy elszállíttatni és a temetési hely környezetét rendezetten, tisztán hagyni. Amennyiben ezen kötelezettségét az érintett nem teljesíti, az üzemeltető a munkát végző költségére végzi el.
(11) [84] Lejárt megváltási idejű temetési helyen munkálatok végzése nem engedélyezhető.
(12) [85] A temetőben végzett munkákról a temető üzemeltetőjének nyilvántartást kell vezetnie, melynek tartalmazni kell a vállalkozó nevét, telephelyét, a temetkezési hely pontos helyét, a díjfizetés tényét, a munkakezdés előtti és a befejezéskori állapotot dokumentáló fotóval.
10. § (1) [86] A sírbolt helyét az üzemeltető jelöli ki. A sírbolt alépítményi kivitelezési munkáit minden esetben az üzemeltető végezteti. A sírboltra történő síremlék építési munkák végzésének várható időpontját, továbbá a síremlék és tartozékai, valamint az emlékoszlop tervét (vázrajzát) az üzemeltetőnek az építés, ill. elhelyezés előtt be kell mutatni.
(2) A sírbolt felett rendelkezőnek azt kell tekinteni, aki a használati díjat megfizette.
(3) Arra nézve, hogy a sírboltba kik temetkezhetnek, a létesítőnek a sírboltkönyvbe bejegyzett rendelkezései az irányadók.
(4) [87] A sírboltba koporsóban csak annyi elhunyt személy temethető, ahány férőhelyre azt építették. Ezen kívül két férőhelyes sírboltba további hat urna, négyszemélyes és hatszemélyes sírboltba további tizenkét urna helyezhető el. Amennyiben a sírbolt tulajdonosa a temetkezési jogosultságról a sírboltkönyvben, vagy végrendeletileg nem tett rendelkezést, úgy a sírboltba az elhalt hozzátartozói az elhalálozás sorrendjében temethetők. A sírbolt tulajdonosának kérelmére a sírboltban elhelyezett koporsókban lévő porladáson túli csontmaradványokat össze kell gyűjteni és hamvasztás után urnában, illetőleg gyermekkoporsóban a sírboltba vissza kell helyezni. Ebben az esetben a maradványok csak urnahelynek számítanak.
(5) [88] Síremléket szilárd talajra kell építeni. A járda a sírhely széleitől legfeljebb harminc centimétert foglalhat el.
(6) [89] A síremlék körül létesített járda magassága a talajszinttől számítva legfeljebb öt centiméter lehet.
(7) A síremléknek meg kell felelnie a temető arculatának. Közízlést sértő formájú és felírással ellátott síremléket felállítani nem szabad.
(8) [90] A mesterséges vagy spontán abortusz folytán távozó magzat, csonkolt testrész, emberi szerv, szervmaradvány eltemetésére kijelölt sírhelytáblában semmilyen építmény nem építhető, növény nem ültethető és sírhant készítése nem megengedett.
(9) [91] Temetői létesítményeket (síremlék, sírbolt, stb.) elkészültük után a temető üzemeltetőjének be kell mutatni.
(10) [92] A köztemető területéről síremléket, fejfát - vagyonvédelmi okokból - csak az üzemeltetőnek történt előzetes bejelentés után szabad kivinni.
(11) [93] Rátemetés esetén - a balesetek elkerülése végett - a temetési helyen levő síremléket a temettetőnek a járda szintjéig le kell bontatnia.
(12) [94] A temetés miatt lebontott síremlékek biztonságos visszaállításának megtörténtét az üzemeltető ellenőrzi.
(13) [95] A temető területére csak kész síremlék vihető be. A síremlék csak akkor helyezhető el, ha a sírhelyen lévő, előzőleg elbontott és beépítésre már nem használható síremlék és részei elszállításra kerültek.
(14) [96] Rátemetés miatt lebontott síremlék 6 hónapon belül visszaállítandó. A lebontott síremlék elhelyezéséről úgy kell gondoskodni, hogy az másokat a temetőben történő közlekedésben ne akadályozzon, és másnak kárt ne okozzon. A nem megfelelően elhelyezett síremlékeket az üzemeltető a temetői kőtárba szállítja a tulajdonos költségére. A síremléknek a temető területén való tárolása az üzemeltetőnek nem kötelezettsége, az abban keletkezett károkért felelősség nem terheli.
(15) [97] A megbontott síremlék egyes darabjait idegen sírokon tárolni tilos.
(16) [98] Koporsós rátemetés esetén a temetéskor érvényes sírhelyhasználati díj időarányos részét kell megfizetni. Rátemetés esetén a teljes összefüggő sírra (pl. kettős sír) vonatkozó és a temetéskor érvényben lévő sírhelyhasználati díj olyan időarányos részét kell megfizetni, amellyel biztosítható a további 25 év használati idő.
(17) [99] Sírboltba csak a sírboltkönyvbe bejegyzett számú koporsót lehet elhelyezni. Sírboltba a 60 év használati időn belül temetni csak abban az esetben lehet, ha azt a sírbolt műszaki állapota lehetővé teszi, állékonysága nem veszélyeztet életet vagy biztonságos használatot. Ha temetés esetén a használati időből még 25 év porladási idő biztosított, úgy megváltási díjat nem kell fizetni. 25 év porladási időt el nem érő temetés esetén temetni csak abban az esetben lehet, ha a használati idő kiegészítése vagy meghosszabbítása 60, de legalább 30 évre történik.
10/A. § [100]
Kötelező nyilvántartások
11. § (1) Az üzemeltető minden temetőben nyilvántartó könyvet és sírbolt könyvet köteles vezetni a jogszabályban előírt tartalommal. Gondoskodni kell arról, hogy e könyvekbe az eltemettető és a temetési hely felett rendelkezni jogosult személy betekinthessen.
(2) Az egyes temetőkről készített térképet az üzemeltető a nyilvántartó könyvvel összhangban, folyamatosan köteles vezetni. Az elhunyt személy temetési helye után érdeklődőknek az üzemeltető a temető nyitvatartási ideje alatt köteles felvilágosítást adni.
12. § [102] (1) Közösségi együttélés alapvető szabályait sértő magatartást követ el az, aki
a) a temető területén a talajt és gyepet engedély nélkül felássa és a növényeket máshova viszi, vagy a sírhely körül padot, betonlépcsőt az üzemeltető engedélye nélkül létesít, illetőleg a temető területéről földet kivisz,
b) az urnafal körül sírhalmot emel, vagy növényzetet telepít, sírhelyet helyez el,
c) a temető területére a vakvezető, terápiás és a mozgáskorlátozottakat segítő ebek, valamint a fegyveres szervek és rendészeti szervek szolgálati ebek kivételével állatot bevisz,
d) [103]
e) a sírokra kúszónövényt (iszalag félék, folyondár félék, vadszőlő félék), lombhullató fa- és cserjefélét, vagy törpeméretű örökzöldek kivételével lomb- és tűlevelű örökzöldeket ültet,
f) hétköznap április 01. - szeptember 30. között 17 óra után, október 01. - március 31. között 15 óra után síremlékkel, sírbolttal kapcsolatos kivitelezői munkát, vagy szombaton, vasárnap és ünnepnap szakipari munkát végez,
g) [104]
h) temetési helyen kívül - az üzemeltető vagy az önkormányzat által történő temető parkosítás kivételével - növényt ültet,
i) a temetőben végzendő síremlék bontási, állítási, sírbolt építési, bontási, továbbá javítási, felújítási munkálatok végzését a munka megkezdése előtt legalább 2 nappal írásban nem jelenti be, vagy olyan munkát végez, ami a bejelentésben nem szerepel,
j) a temetőben építési és bontási munkát az üzemeltető helyszíni szemléjét megelőzően megkezd,
k) a temetőben engedélyköteles munkát az engedély bemutatása nélkül végez,
l) sírbolt építése esetén a sírbolt alépítményi kivitelezési munkáit nem az üzemeltetővel végezteti, illetve a sírboltra történő síremlék építési munkák végzésének várható időpontját, továbbá a síremlék és tartozékai, valamint az emlékoszlop tervét (vázrajzát) az üzemeltetőnek az építés, illetve elhelyezés előtt nem mutatja be,
m) a temető területén történő síremlékállítás, felújítás, bontás során feleslegessé váló anyagokat (sírjelet, annak darabjait, törmeléket stb.) nem szállítja el vagy a megbontott síremlék egyes darabjait idegen sírokon tárolja.
(2) Az eljárás lefolytatására a közösségi együttélés alapvető szabályairól, és ezek elmulasztásának jogkövetkezményeiről szóló 15/2016. (V. 2.) önkormányzati rendeletet kell alkalmazni.
Veszélyhelyzetre vonatkozó külön rendelkezések [105]
12/A. § [106]
Záró rendelkezések
13. § (1) A rendelet a kihirdetése napján lép hatályba.
(2) E rendelet hatálybalépésével egyidejűleg a városi köztemetőkről szóló 49/1993. (XII. 31.) KT. számú, valamint az ezt módosító 13/1994. (IV. 5.) KT. számú rendelet 2. §-a hatályát veszti.
Jogharmonizációs záradék
14. § [107] E rendelet a belső piaci szolgáltatásokról szóló, az Európai Parlament és a Tanács 2006/123/EK irányelvnek megfelel.
|
Kocsis Imre Antal s. k. |
Dr. Ferincz János s. k. |
|
polgármester |
aljegyző |
|
Dr. Ferincz János s. k. |
|
|
aljegyző |
1. melléklet a 9/2003. (IV. 30.) önkormányzati rendelethez
|
I. Sírhelyek: |
|
|
Erre történő rátemetés |
díjmentes |
|
2. Egyes felnőtt sírhely megváltása |
27.145 |
|
Erre történő rátemetés |
20.550 |
|
3. Kettős sírhely megváltása |
43.390 |
|
Erre történő rátemetés koporsónként |
40.780 |
|
4. Lejárt, meg nem váltott és újra értékesített sírhelyek |
27.145 |
|
5. Új temetőrészben járdával kialakított egyes sírhely |
70.400 |
|
6. Új temetőrészben járdával kialakított kettes sírhely |
111.080 |
|
II. Sírboltok: |
117.755 |
|
2. 4 személyes sírbolt megváltása |
169.905 |
|
3. 6 személyes sírbolt megváltása |
204.115 |
|
III. Hamvasztásos temetési helyek: |
31.810 |
|
2. urna sírhelyre, sírboltba történő rátemetése |
20.550 |
|
3. urnasírhely |
31.810 |
|
4. urnasírbolt |
50.375 |
|
IV. Újra értékesített temetési helyek előkészítési díjai: |
|
2. melléklet a 9/2003. (IV. 30.) önkormányzati rendelethez
|
I. A temetői létesítmények, illetőleg az üzemeltető által biztosított szolgáltatások igénybevételéért a temetkezési szolgáltatók által fizetendő díjak: |
|
|
2. elhunyt hűtési díja naponta |
2.920 |
|
3. temetkezési hely nyitása (sírásás, sírnyitás) díja |
|
|
b) gyermek sírhely esetén |
15.280 |
|
c) urnasírhely, urnakripta esetén |
15.435 |
|
4. visszahantolás (temetkezési hely zárása) díja |
|
|
b) gyermek sírhely esetén |
7.720 |
|
c) urnasírhely, urnakripta esetén |
7.825 |
|
5. urna falba helyezése esetén szakszemélyzet igénybevétele |
9.650 |
|
6. Hamvak szórása dísz-szóró kút igénybevételével, alkalmanként |
58.615 |
|
7. hétvégi felár (rendkívüli esetben történő temetésnél) |
8.345 Ft/fő |
|
II. A köztemetőben - a temetkezési szolgáltatók kivételével - vállalkozásszerűen munkát végzők által fizetendő temető-fenntartási hozzájárulás díja |
|
|
a) síremlékek építése, felújítása esetén Ft/munkavégzés napja; |
2.400 |
|
b) sírgondozás esetén Ft/ munkavégzés napja. |
670 |
3. melléklet














