Nagyberki Község Önkormányzat Képviselő-testülete 6/2006. (IV. 20.) önkormányzati rendelete
Nagyberki Helyi építési Szabályzatáról (Egységes szerkezetben a 6/2009.(V.27.), a 9/2010.(XI.24.), az 1/2014.(II.5.), a 10/2015.(VI.22.), a 16/2015.(XI.9.), és a 11/2016.(XII.14.) önkormányzati rendelettel)
Hatályos: 2016. 12. 14Nagyberki Község Önkormányzat Képviselő-testülete 6/2006. (IV. 20.) önkormányzati rendelete
Nagyberki Helyi építési Szabályzatáról (Egységes szerkezetben a 6/2009.(V.27.), a 9/2010.(XI.24.), az 1/2014.(II.5.), a 10/2015.(VI.22.), a 16/2015.(XI.9.), és a 11/2016.(XII.14.) önkormányzati rendelettel)
Nagyberki Képviselő-testülete az épített környezet alakításáról és védelméről szóló 1997. évi LXXVIII. törvény (továbbiakban: Étv.) 62. § (6) bekezdés 6.) pontjában kapott felhatalmazás alapján, a Magyarország helyi önkormányzatairól szóló 2011. évi CLXXXIX. törvény 13. § (1) bekezdés 1.) pontjában és az Étv. 6. § (1) bekezdésében meghatározott feladatkörében eljárva a következőket rendeli el:
Általános előírások
1. § (1) Hatályon kívül helyezte: 1/2014.(II.5.) önkormányzati rendelet.
(2) A rendelet hatálya alá tartozó területen telket alakítani, épületet és más építményt (beleértve a műtárgyakat is) tervezni, kivitelezni, építeni, felújítani, átalakítani, korszerűsíteni, bővíteni, lebontani, használni az általános érvényű előírások mellett csak e rendelet alkalmazásával lehet.
(3) Hatályon kívül helyezte a 11/2016.(XII.14.) önkormányzati rendelet.
(4) Hatályon kívül helyezte a 11/2016.(XII.14.) önkormányzati rendelet.
(5) Hatályon kívül helyezte a 11/2016.(XII.14.) önkormányzati rendelet.
(6) A szabályozási tervben kötelezőnek kell tekinteni:
a) a település igazgatási határát,
b) a belterületi határt,
c) a szabályozási vonalakat,
d) az egyes terület-felhasználási egységek, övezetek és építési övezetek határát, beépítési feltételeit és módját meghatározó előírásokat,
e) a környezetvédelmi, táj- és természetvédelmi, műemlékvédelmi szabályokat és kikötéseket,
f) az építési helyet, építési határvonalat.
(7) Hatályon kívül helyezte a 11/2016.(XII.14.) önkormányzati rendelet.
(8) Új területek beépítésének feltétele, hogy a beépítésre tervezett területeken és a közterületeken a felszíni vizek akadálytalan és eróziómentes elvezetése biztosított legyen, a képződő hordalék visszatartása műszaki és talajvédelmi szempontokat figyelembe véve megtörténjen.
(9) A HÉSZ beépítési előírásainál intenzívebb beépítettségű, annál kisebb telekméretű, vagy magasabb épület a meglévő tömegen belül átalakítható, korszerűsíthető és felújítható.
(10) A község közigazgatási területén megvalósuló épületek parkoló igényét az OTÉK előírásai alapján kell meghatározni, és azt az építési telken belül kell kielégíteni.
(11) Hatályon kívül helyezte a 9/2010.(XI.24.) önkormányzati rendelet.
(12) A 369.hrsz-ú út – a belterületi határ és a 370. hrsz-ú lakótelek nyugati határa -, valamint a 120/1. hrsz-ú út – a Dózsa György utca – és a belterületi hatát által határolt területeken új épület csak talajmechanikai szakvéleményre alapozottan építhető.
(13) Terepszint alatti létesítmények (pincék) közterületet, idegen telket, meglévő építményeket hatásterületükkel nem veszélyeztethetik.
(14) Hatályon kívül helyezte a 10/2015.(VI.22.) önkormányzati rendelet.
(15) Hatályon kívül helyezte a 9/2010.(XI.24.) önkormányzati rendelet.
(16) Állattartó épület és trágyatároló a lakóépületektől és intézményektől 10 m-nél nagyobb távolságra helyezhető el.
(17) Hatályon kívül helyezte a 10/2015.(VI.22.) önkormányzati rendelet.
(18) A község belterületén és annak határától számított 200 m-en belül kertes mezőgazdasági területen, tájképvédelmi területen, ökológiai hálózattal érintett területen különálló adótorony nem létesíthető.
(19) Hatályon kívül helyezte a 11/2016.(XII.14.) önkormányzati rendelet.
(20) Ahol a szabályozási terv nem határoz meg kötelezően alkalmazandó építési vonalat az épület elhelyezésénél, ott a kialakult állapotot kell figyelembe venni. A meghatározott szabályozási vonallal metszett, vagy a kijelölt építési helyen kívül fekvő, de már meglévő épületek felújíthatók, korszerűsíthetők, bővítésükre azonban csak a kijelölt építési helyen belül kerülhet sor.
(21) Hatályon kívül helyezte a 11/2016.(XII.14.) önkormányzati rendelet.
Településszerkezet, terület-felhasználás
2. § A település igazgatási területe tagozódik:
a) Beépítésre szánt területekre, amelyeken belül az építési telkek megengedett beépítettsége legalább 10%.
b) Beépítésre nem szánt területekre, amelyeken belül a telkek megengedett beépítettsége legfeljebb 5% lehet.
BEÉPÍTÉSRE SZÁNT TERÜLETEK
Lakóterületek
3. § (1) A területen - a lakóépületen kívül – kisüzemi, környezetbarát ipari és szolgáltató létesítmények, valamint az OTÉK-ban felsoroltak építhetők az üzemanyagtöltő kivételével.
(2) Új lakóház és melléképületei csak 22-45˚-os tetőhajlásszögű magastetővel; pikkelyszerű, vagy ehhez hasonló megjelenésű fedéssel létesíthető. A magastetőt csillogásmentes (matt) felülettel kell kialakítani, a településképbe illő, - jellemzően piros, barna, grafitszürke, vagy égetett cserép színben.
(3) Hatályon kívül helyezte a 11/2016.(XII.14.) önkormányzati rendelet.
(4) Hatályon kívül helyezte a 9/2010.(XI.24.9 önkormányzati rendelet.
(5) A lakótelkek be nem építhető részén lévő kertterületeken elhelyezhetők: növényház, közmű-becsatlakozási közműpótló műtárgy, hulladéktároló, kerti építmény, háztartási kemence, húsfüstölő, zöldséges verem, állat ól és -kifutó, siló, ömlesztett anyag, folyadék- és gáztartály.
(6) A 20 m-nél szélesebb telkek és a saroktelkek szabadon álló beépítési móddal is beépíthetők, az OTÉK oldal- és hátsókertre vonatkozó előírásainak betartása mellett.
Falusias lakóterület
4. § (1) A szabályozási terven a falusias lakóterület jele: „Lf”, melynek beépítési előírásai:
a) Övezet jele: Lf1, beépítési mód: O (oldalhatáros), építménymagasság (max.): 5 m, beépítettség (max.):30%, legkisebb telekméret: 1000 m², minimum telekszélesség: 12 m, minimum telekmélység: 35 m, legkisebb zöldfelület mértéke: 40%.
b) Övezet jele: Lf2, beépítési mód: O (oldalhatáros), építménymagasság (max.): 5 m, beépítettség (max.): 30%, legkisebb telekméret: 600 m², minimum telekszélesség: 12 m, minimum telekmélység: 30m, legkisebb zöldfelület mértéke: 40%.
c) Övezet jele: Lf3, beépítési mód: O (oldalhatáros), építménymagasság (max.): 6,5 m, beépítettség (max.): 30%, legkisebb telekméret: 800 m², minimum telekszélesség: 12 m, minimum telekmélység: 30 m, legkisebb zöldfelület mértéke: 40%.
(2) Hatályon kívül helyezte a 11/2016.(XII.14.) önkormányzati rendelet.
(3) Meglévő épületek, melyek építménymagassága az övezetre előírt mértéket meghaladja – az épület építménymagasságának növelése nélkül – korszerűsíthetők, bővíthetők, bontás esetén azonban az új épület az övezetre meghatározott építménymagasságig építhető újjá.
(4) 80 m-nél nagyobb telekmélységű telek beépítettségét, a telek beépített területét, a telek 80 m-es telekmélységéig számított területéhez viszonyítva kell megállapítani.
(5) 12 m-nél keskenyebb lakótelek, és nyeles telek nem alakítható ki.
(6) Hatályon kívül helyezte a 9/2010.(XI.24.) önkormányzati rendelet.
(7) A lakótelkek be nem építhető részén már meglévő épületek felújíthatók, korszerűsíthetők. Új épület azonban csak a kijelölt építési helyen belül építhető.
Kertvárosias lakóterület
5. § (1) A szabályozási terven a kertvárosias lakóterület jele: „Lke”, melynek beépítési előírásai: övezet jele: Lke, beépítési mód: O (oldalhatáros), építménymagasság (max.): 5 m, beépítettség (max.): 30%, legkisebb telekméret: 800 m², minimum telekszélesség: 20 m, minimum telekmélység: 40 m.
(2) Hatályon kívül helyezte a 11/2016.(XII.14.) önkormányzati rendelet.
(3) A területet kiemelt szegélyű burkolt úttal és zárt csapadékvíz-elvezetéssel kell ellátni.
(4) A legkisebb zöldfelület mértéke 50%.
Településközpont vegyes terület
6. § (1) A szabályozási terven a településközpont vegyes terület jele: „Vt”. A területen az OTÉK-ban felsorolt építmények helyezhetők el parkolóház és üzemanyagtöltő kivételével. A területre vonatkozó beépítési előírások:
a) Övezet jele: Vt1, beépítési mód: SZ (szabadon álló), építménymagasság (max.): 7,5 m, beépítettség (max.): 25%, legkisebb telekméret: 6000 m², minimum telekszélesség: 60 m, minimum telekmélység: 60 m.
b) Övezet jele: Vt2, beépítési mód: SZ (szabadon álló), építménymagasság (max.): 6,5 m, beépítettség (max.): 40%, legkisebb telekméret: 1800 m², minimum telekszélesség: 30 m, minimum telekmélység: 40 m.
c) Övezet jele: Vt3, beépítési mód: SZ (szabadon álló), építménymagasság (max.): 6 m (a Vt3 övezetben lévő szakrális épület építménymagassága legfeljebb 12 m lehet.), beépítettség (max.): 80%, legkisebb telekméret: 500 m², minimum telekszélesség: 12 m, minimum telekmélység: 30 m.
(2) Hatályon kívül helyezte a 11/2016.(XII.14.) önkormányzati rendelet.
(3) A legkisebb zöldfelület mértéke 10%.
Gazdasági területek
7. § (1) A gazdasági terület elsődlegesen gazdasági célú építmények elhelyezésére szolgál.
(2) A község területén:
a) kereskedelmi, szolgáltató gazdasági terület (Gksz)
b) ipari üzemi terület (Gip) kialakítására került sor.
(3) Hatályon kívül helyezte a 11/2016.(XII.14.) önkormányzati rendelet.
(4) A területen – beültetési kötelezettség alapján – a teljes telekméret minden 200 m²-e után 1 db lombos fa telepítendő. A gazdasági területeken fekvő ingatlanokat telekhatár mentén történő beültetés kötelezettsége terheli, melynek sávszélességét a szabályozási terv határozza meg, ennek hiányában minimum 10 m kell legyen. a Beültetési kötelezettség 2 m magasságot elérő bokor és lombos fa telepítésével teljesíthető. A kötelezettség teljesítésénél a telken már meglévő faállományt figyelembe kell venni. A beültetési kötelezettséget az ingatlanon lévő épület használatbavételéig teljesíteni kell.
(5) Hatályon kívül helyezte a 11/2016.(XII.14.) önkormányzati rendelet.
Kereskedelmi, szolgáltató gazdasági területek
8. § (1) A területen történő beépítéseknél az OTÉK-ban foglalt létesítmények helyezhetők el, parkolóház kivételével.
(2) A kereskedelmi, szolgáltató gazdasági terület beépítési előírásai az alábbiak: övezet jele: Gksz, beépítési mód: Sz (szabadon álló), építménymagasság (max.): 5 m, beépítettség (max.): 50%, legkisebb telekméret: 2000 m², telekszélesség: 30 m, telekmélység: 50 m.
(3) A legkisebb zöldfelület mértéke 30%.
Ipari, üzemi területek
9. § (1) Az ipari, üzemi területen (Gip) elsősorban az ipari, az energiaszolgáltatási és a településgazdálkodás épületei helyezhetők el. A gazdasági célú épületeken belül a tulajdonos, a használó és a személyzet számára szolgáló lakások is építhetők. Beépítési előírásuk az alábbi:
a) Övezet jele: Gip, beépítési mód: Sz (szabadon álló), építménymagasság (max.): 5 m, beépítettség (max.): 30%, legkisebb telekméret: 2000 m², telekszélesség: 20 m, telekmélység: 50 m.
b) Övezet jele: Gip1, beépítési mód: Sz (szabadon álló), építménymagasság (max.): 10 m, beépítettség (max.): 30%, legkisebb telekméret: 2000 m², telekszélesség: 20 m, telekmélység: 50 m.
(2) A telken belüli zöldfelület legalább a telek területének 40%-a.
Mezőgazdasági, üzemi területek
10. § Hatályon kívül helyezte a 9/2010.(XI.24.) önkormányzati rendelet.
Különleges területek
11. § (1) A különleges területek:
a) a Kulturális idegenforgalmi centrum (Vigyázó kastély) (Kk)
b) a sportközpont területe (Ks)
c) a temető (Kt) és a kegyeleti park (Kkp).
(2) A kastélyterületén idegenforgalmi, kulturális, oktatási, egészségügyi, szociális, kereskedelmi létesítmény, illetve az ehhez kapcsolódó szállásférőhelyek alakíthatók ki. Az épület hasznosítása a műemléki értéket nem veszélyezteti. A kastély területére az alábbi beépítési előírásokat kell alkalmazni: övezet jele: Kk, beépítési mód: Sz (szabadon álló), építménymagasság (max.): 10 m, beépítettség (max.): 20%, legkisebb telekméret: 3600 m², telekszélesség: 60 m, telekmélység: 60 m.
(3) Hatályon kívül helyezte a 11/2016.(XII.14.9 önkormányzati rendelet.
(4) A sportközpont területén a sportolással kapcsolatos építmények helyezhetők el az alábbi beépítési előírások mellett: övezet jele: Ks, beépítési mód: O-SZ (szabadon álló), építménymagasság (max.): 5 m, beépítettség (max.): 30%, legkisebb telekméret: 2000 m², telekszélesség: 60 m, telekmélység: 60 m.
(5) A temető és a kegyeleti park területén csak azok üzemeltetésével kapcsolatos létesítmények, emlékművek és egyházi építmények helyezhetők el a következő beépítési előírások mellett: övezet jele: Kt, Kkp, beépítési mód: Sz (szabadon álló), építménymagasság (max.): 4,5 m (a harangláb és harangtorony építménymagassága legfeljebb 15 m lehet), beépítettség (max.): 10%, legkisebb telekméret: 2000 m², telekszélesség: 50 m, telekmélység: 50 m.
(6) A legkisebb zöldfelület aránya a kastély területén 70%, a sportközpont területén 60%, a temető és kegyeleti park területén 80%.
(7) A mezőgazdasági üzemi funkciójú különleges területeken (Kipm) jelentős mértékű zavaró hatású ipari és tároló létesítmények, üzemi épületek, állattartó telepek helyezhetők el. Ezeknek a területeknek a lakott területekhez közel fekvő részein, a funkciók átcsoportosításával, védő létesítmények kiépítésével biztosítani kell, hogy azok a lakóterületekre a megengedhető környezeti határértékeknél nagyobb terhelést ne jelentsenek.
(8) A mezőgazdasági üzemi terület (Kipm) beépítési előírásai: övezet jele: Gipm, beépítési mód: Sz (szabadon álló), építménymagasság (max.): 6 m, beépítettség (max.): 30%, legkisebb telekméret: 2000 m², telekszélesség: 20 m, telekmélység: 50 m.
(9) A terménytároló és szárító épületek építménymagassága az övezeti előírásoknál magasabb is lehet, maximális építménymagasságuk 12 m.
(10) A telek beépítése minimum 10 m széles elő-, oldal-, és hátsókert elhagyásával lehetséges.
(11) A területen – a gabonaszárító silók kivételével – csak tájba illő épületek építhetők, hagyományos, vagy ennek megfelelő megjelenésű anyagok felhasználásával. Az épületek külső homlokzatán csillogó fémlemez burkolat, vagy tetőfedés nem alkalmazható.
(12) A telken belüli zöldfelület legalább a telek területének 40%-a.
(13) Ahol a szabályozási terv a telek határán fasor telepítését jelöli, ott ezt minimálisan 10 méter széles, kétszintes (bokor, cserje és fa) zöldsáv kialakításával kell biztosítani. A kötelezettség teljesítésénél a már meglévő faállományt figyelembe kell venni.
BEÉPÍTÉSRE NEM SZÁNT TERÜLETEK
Közlekedési és közmű területek
12. § (1) A közlekedési, közmű és hírközlési létesítményeket és azok területeit a szabályozási terv tünteti fel. (KÖu-közutak, KÖk-vasút, KÖ-közmű)
(2) A közutak (KÖu) elhelyezéséhez szükséges területeket a kialakult és a tervezett állapot figyelembevétele mellett, a szabályozási terv és az OTÉK-ban előírtak alapján kell biztosítani:
a) Övezet jele: KÖu1, közlekedési terület jellege: országos közút
aa) meglévő országos közút: minimum szabályozási szélesség: kialakult állapot szerint
ab) tervezett országos közút: minimum szabályozási szélesség: szabályozási terv szerint
b) Övezet jele: KÖu, közlekedési terület jellege: mezőgazdasági kiszolgáló út
ba) meglévő mezőgazdasági kiszolgáló út: minimum szabályozási szélesség: -
bb) tervezett mezőgazdasági kiszolgáló út: minimum szabályozási szélesség: szabályozási terv szerint
c) Övezet jele: KÖu2, közlekedési terület jellege: mezőgazdasági út
ca) meglévő mezőgazdasági út: minimum szabályozási szélesség: kialakult állapot szerint
cb) tervezett mezőgazdasági út: minimum szabályozási szélesség: 8 m.
d) Övezet jele: KÖu3, közlekedési terület jellege: kiszolgáló út
da) meglévő kiszolgáló út: minimum szabályozási szélesség: kialakult állapot szerint
db) tervezett kiszolgáló út: minimum szabályozási szélesség: 12 m.
e) Övezet jele: KÖu4, közlekedési terület jellege:
ea) kerékpárút: minimum szabályozási szélesség: 1,5 m.
eb) elválasztás nélküli gyalog- és kerékpársáv: minimum szabályozási szélesség: 2,5 m.
f) Övezet jele: KÖu5, közlekedési terület jellege: gyalogút, sétány, minimum szabályozási szélesség: 3 m.
(3) Kerékpárút a közút, illetve a járda szabályozási szélességében vezethető. Vegyes forgalom esetén a járda minimális burkolata 1,5 m, a közúté 2x4,5 m kell legyen.
(4) Hatályon kívül helyezte a 11/2016.(XII.14.) önkormányzati rendelet.
(5) Hatályon kívül helyezte a 10/2015.(VI.22.) önkormányzati rendelet.
(6) A közlekedési területeken az OTÉK-ban felsorolt építmények helyezhetők el.
(7) Az utcai fásításnál telepített fák a lakóépületek síkjától minimum 6 m-re ültethetők.
(8) A műemléki környezetben légvezeték nem építhető.
(9) Közműterületeken (KÖ) legfeljebb 4,5 m építménymagasságú épületek építhetők.
Zöldterületek
13. § (1) A község igazgatási területén a zöldterületek (Z) közé a parkok soroltak.
(2) A közpark a község növényzettel fedett közterülete, amelynek a közútról közvetlen megközelíthetőnek kell lennie.
(3) A közparkban és a játszótéren az OTÉK-ban a zöldterületen megengedett építmények helyezhetők el, az építmények magassága a 4 m-t nem haladhatja meg.
(4) A meglévő zöldterületek nem csökkenthetők.
Erdőterületek
14. § (1) A község közigazgatási területén meglévő és tervezett gazdasági erdők (Eg), valamint védelmi erdők (Ev), és közjóléti erdők (Ek) kerültek kijelölésre.
(2) Hatályon kívül helyezte a 11/2016.(XII.14.) önkormányzati rendelet.
(3) A meglévő és a terveztt gazdasági erdők területén (Eg), - a 10 ha-nál nagyobb területen – legfeljebb 0,5% beépítettséggel lehet építeni, az erdő műveléséhez szükséges gazdasági épületeket, szolgálati lakást és vadászházat.
(4) A védelmi erdők területén a természetvédelmi kezelési tervben meghatározott, kizárólag természetvédelmi, illetve erdő- és vadgazdálkodási, közjóléti érdeket szolgáló létesítmények helyezhetők el.
(5) Hatályon kívül helyezte a 10/2015.(VI.22.) önkormányzati rendelet.
(6) Az erdőterületeken kerítést létesíteni csak közbiztonsági, természetvédelmi, vadgazdálkodási, illetve erdőgazdasági célból szabad.
(7) A közjóléti erdők (Ek) területén az erdő rendeltetésének megfelelő építmények helyezhetők el (szállásépületek, kilátó, esőbeálló, tűzrakóhely, játszó eszközök, erdei pihenők, szociális épületek). A terület legfeljebb 5%-os beépíthetőség mellett építhető be, az épületek legfeljebb 4,5 m építménymagassággal építhetők, a torony jellegű épületek magassága sem haladhatja meg a 10 métert. Anyaghasználatukban elsősorban fa, hagyományos tégla, vagy ennek megfelelő külső megjelenést biztosító szerelt falazattal, fehér, tört fehér, világos sárga, világos zöld színben. Az épületek tetőszerkezete nyeregtető és kontyolt nyeregtető, héjazata cserép- antracit- és sötétbarna színű, vagy fazsindely lehet. A fal és tetőszerkezeteket csillogásmentes felülettel kell kialakítani. Az épületek tömegformálásában az egyszerű, kevésbé tagolt kialakításokra kell törekedni.
Mezőgazdasági területek
15. § (1) A mezőgazdasági területek a növénytermesztés, az állattenyésztés és a kertgazdálkodás területei és az ezzel kapcsolatos építmények elhelyezésére szolgálnak.
(2) A község igazgatási területén az alábbi mezőgazdasági területek kialakítására került sor:
a) Általános mezőgazdasági területek (Má)
b) Be nem építhető általános mezőgazdasági területek (Má0)
c) Kertes mezőgazdasági területek (Mk)
d) Be nem építhető kertes mezőgazdasági területek (Mk0)
Általános mezőgazdasági területek
16. § (1) Az általános mezőgazdasági területek a szabályozási terven (Má)-val jelöltek.
(2) A területeken kialakítható földrészlet minimális nagysága 3000 m², amelynek megközelítését közhasználatú vagy magán úttal kell biztosítani.
(3) 720 m²-nél kisebb földterületen építmény nem helyezhető el.
a) 720 és 1500 m² közötti területnagyság esetén – nádas, gyep és szántó művelési ágban nyilvántartott terület kivételével – 3%-os beépítettség mellett tárolás céljára szolgáló gazdasági terület építhető legfeljebb 4,5 m-es építménymagassággal.
b) 1500 m²-nél nagyobb földterületen gazdasági épület (a növénytermesztés, az állattartás, a halászat, továbbá az ezekkel kapcsolatos termékfeldolgozás, valamint a tárolás építményei) 3%-os beépítettséggel helyezhető el, legfeljebb 4,5 m-es építménymagasággal.
c) Lakóépület szőlő, gyümölcsös és kert művelési ág esetén 3000 m²-nél, egyéb művelési ág esetén 6000 m² telekterület helyezhető el úgy, hogy alapterülete a 3%-os beépíthetőség felét nem haladhatja meg. Az épületek legfeljebb 6 m-es építménymagassággal építhetők.
(4) A területen kerítés, a lakóépület és gazdasági épülettel beépített birtoktest kivételével nem építhető.
(5) A mezőgazdasági területen kialakított birtoktest beépítésére az OTÉK előírásai az irányadók. Az épületek legfeljebb 6 m-es építménymagassággal építhetők.
(6) Az övezetben az épületek tájba illő módon helyezhetők el. Anyaghasználatukban elsősorban hagyományos tégla, vagy ennek megfelelő külső megjelenést biztosító szerelt falazattal, fehér, tört fehér színben. Az épületek tetőszerkezete nyeregtető és kontyolt nyeregtető, héjazata cserép-, grafit- és zöld színű lehet. A fal és tetőszerkezeteket csillogásmentes felülettel kell kialakítani. Az épületek tömegformálásában az egyszerű, kevésbé tagolt kialakításra kell törekedni.
Kertes mezőgazdasági területek
17. § (1) A kert, szőlő és gyümölcsös területek a szabályozási terven (Mk)-ként jelöltek.
(2) A területen kialakítható legkisebb földterület 1500 m², melynek legkisebb szélessége 12 m.
(3) A már korábban kialakított:
a) 720 m²-nél kisebb földrészleten építmény nem helyezhető el.
b) 720 – 1500 m² közötti területnagyságú telken a nádas, gyep és szántó művelési ágban nyilvántartottak kivételével – max. 3%-os beépítettséggel egytömegű, elsősorban a tárolás céljait szolgáló gazdasági épület és terepszint alatti építmény (pince) helyezhető el.
c) az 1500 m²-t meghaladó területű telken max. 3%-os beépítettséggel egytömegű, elsősorban a tárolás céljait szolgáló gazdasági épület és terepszint alatti építmény (pince) helyezhető el.
(4) A meglévő épületek a 720 – 1500 m², vagy az azt meghaladó nagyságú telkek esetén a telek 3%-os beépítettségéig bővíthetők. A 720 m²-nél kisebb telkeken a meglévő épületek felújíthatók, de a beépítettség a bővítéssel nem növelhető.
(5) A kertterületek tájképvédelmi területek, ahol a tájkarakter megőrzése érdekében az alábbi építési előírásokat kell érvényesíteni:
a) gazdasági épület művelt telekre legfeljebb 4 m-es építménymagassággal építhető oly módon, hogy a legmagasabb homlokzatmagasság sem haladhatja meg az 5 m-t.
b) a területen egytömegű, szabadon álló, vagy a kialakult beépítési mód szerinti, magas tetős, 35˚-45˚ közötti tető hajlásszögű építmények létesíthetők, cserép vagy egyéb hagyományos tetőfedő anyag használatával.
c) az épületek falazata csak hagyományos építőanyagokból (tégla, fa, kő, vályog és vertfal) építhető
d) a nyílászárók sötét színre pácolt, vagy mázolt fa nyílászárók lehetnek, zsalus, vagy deszkázott külső szárnyakkal,
e) az oromfalon terasz, loggia, erkély nem építhető,
f) különálló pince kizárólag földterítéssel, füvesítve létesíthető,
g) különálló árnyékszék nem létesíthető.
(6) Lakókonténer, lakókocsi a területen nem helyezhető el.
(7) A területen már meglévő lakóépületek megtarthatók, felújíthatók és legfeljebb egyalkalommal 25 m²-el bővíthetők e rendelet hatályba lépését követően. A gazdasági és lakóépületek együttesen nem haladhatják meg a 3%-os beépítettséget.
Be nem építhető általános mezőgazdasági területek
18. § (1) A be nem építhető általános mezőgazdasági területek a természetvédelem és vízvédelem érdekeit szolgálják. A területek a szabályozási terven Má0-val jelöltek.
(2) A területen csak köztárgyak, közutak, nyomvonalas létesítmények, vezetékek, közmű és közműpótló berendezések (a szennyvíztisztító és komposztáló telepek, adótorony, távközlési magas-építmény, magasfeszültségű villamos távvezeték kivételével) a vízgazdálkodás létesítményei, geodéziai jelek, vadász lesek és a természetvédelem kutató, bemutató építményei helyezhetők el.
(3) A területen már meglévő építmény a 3%-os beépítettség határáig, legfeljebb egy alkalommal 25 m²-el bővíthető e rendelet hatályba lépését követően.
(4) Hatályon kívül helyezte a 11/2016.(XII.14.) önkormányzati rendelet.
Be nem építhető kertes mezőgazdasági területek
19. § (1) A be nem építhető kertes mezőgazdasági területek a belterületen helyezkednek el, a szabályozási terven Mk0-val jelöltek.
(2) Az Mk0 területen kialakítható legkisebb földrészlet 1500 m².
(3) A területen csak köztárgyak, közutak, nyomvonal jellegű vezetékek, közmű és közműpótló berendezések (a szennyvíztisztító és komposztáló telepek, adótorony, távközlési magas-építmény, magasfeszültségű villamos távvezeték kivételével) helyezhetők el.
(4) A területen már meglévő építmény a 3%-os beépítettség határáig, legfeljebb egy alkalommal 25 m²-el bővíthető e rendelet hatályba lépését követően.
(5) Hatályon kívül helyezte a 11/2016.(XII.14.) önkormányzati rendelet.
Vízgazdálkodási területek
20. § (1) A vízgazdálkodási területeket a szabályozási terv „V”-vel jelöli.
(2) A vízgazdálkodási területeken és a szomszédos földterületeken a vízkár elhárítási, a sporthorgászati, és természeti megfigyelés közösségi építményei, a halastavak mentén a halászattal, annak értékesítésével, feldolgozásával, tárolásával kapcsolatos építmények helyezhetők el a külön jogszabályban foglaltak alapján.
(3) A vízfolyások mentén mindkét oldalon a karbantartás részére 6-6 m-es szabad parti sáv biztosítandó.
(4) A vízfolyások, vízelvezető árkok rendszeres karbantartásáról gondoskodni kell.
(5) Hatályon kívül helyezte a 11/2016.(XII.14.) önkormányzati rendelet.
A környezet-, természet-, táj- és a kulturális örökség védelem
21. § (1) A környezet-, a műemlék- és a helyi védelemmel kapcsolatos szabályozást, lehatárolást, a védőtávolságokat a szabályozási terv tünteti fel.
(2) A Hársasberki halastó partvonalától számított 100 méteren belül megvalósuló épület környezetének kialakítására szaktervező által készített kertészeti tervet kell készíteni. A tervezett fásításoknál a helyben honos fafajokat előnyben kell részesíteni.
Környezetvédelem
22. § (1) A helyi környezetvédelemről szóló külön rendeletben a rendezési terv előírásait is figyelembe kell venni.
(2) Az igazgatási területen a környezethasználatot úgy kel megszervezni és végezni, hogy:
a) a legkisebb mértékű környezetterhelést és igénybevételt idézze elő,
b) megelőzze a környezetszennyezést,
c) kizárja a környezetkárosítást.
(3) Levegőtisztaság-védelmi szempontból a területen csak olyan tevékenység folytatható és csak olyan létesítmény alakítható ki, amelynek levegőszennyező anyagkibocsátása a területre vonatkozó határértéket nem lépi túl, és nem okoznak lakosságot zavaró bűzhatást.
(4) A közigazgatási területen lévő illegális hulladék-lerakóhelyeket az ingatlan tulajdonosának kell megszüntetnie. A tulajdonos, a kezelő, a bérlő köteles a tulajdonában, használatában, bérleményében lévő ingatlan műveléséről, tisztántartásáról gondoskodni.
(5) A településen veszélyes hulladék keletkezését eredményező tevékenység csak úgy folytatható, hogy az üzemeltető köteles gondoskodni a veszélyes hulladék környezetszennyezést kizáró elhelyezéséről és ártalmatlanításáról.
(6) Védőfásításokkal gondoskodni kell a szántóföldi porszennyezés, valamint az élővizek szennyezésének megakadályozásáról.
(7) Hatályon kívül helyezte a 11/2016.(XII.14.) önkormányzati rendelet.
(8) A szippantott szennyvizek csak hatóságilag kijelölt szennyvízürítő helyre szállíthatók.
(9) A település a felszín alatti vizek szennyeződés érzékenységi besorolása szerint „érzékeny” területnek minősül.
(10) A településen a zajvédelem az országos előírások szerint, azoknak megefelelően biztosítandó. A zajt keltő és a zajtól védendő létesítményeket egymáshoz képest úgy kell elhelyezni, hogy a területre vonatkozó zajterhelési határértékek betartásra kerüljenek.
(11) Hatályon kívül helyezte a 11/2016.(XII.14.) önkormányzati rendelet.
(12) Vízfolyások, csatornák, vízelvezető árkok rendszeres karbantartásáról, tisztításáról a vízfolyás kezelője köteles gondoskodni.
(13) Állattartó-telepek építményei , élelmiszertároló, feldolgozó és forgalmazó létesítmények, egészségügyi intézmény telekhatárától 50 méter védőtávolságon belül nem építhetők.
(14) A dögkonténertől 500 m, a hígtrágya ürítőtől és szippantott szennyvízürítő helytől 1000 m védőtávolságon belül új lakóépület, élelmiszer feldolgozó, -raktározó, -kereskedelmi létesítmény továbbá állattartó-telep nem létesíthető.
(15) Országos közutak beépítésre nem szánt területen lévő szakasza mentén a tengelytől számított 50 méter távolságon belül, autóút esetén 100 m távolságon belül lakóépület nem létesíthető. Más építmények a közút kezelőjének egyetértésével létesíthetők.
(16) Vízfolyások medrétől 50 méter távolságon belül mezőgazdasági területen állattartó építmény nem létesíthető.
(17) A területen a 20 fh-et elérő parkolókat csak szilárd burkolattal lehet kiépíteni. A 20 fh-et elérő parkolók felszíni csapadékvízének elvezetéséhez hordalék-, olaj- és iszapfogó beépítése szükséges.
(18) A településen a kommunális szilárd hulladék szervezett gyűjtése és elszállítása – a kommunális hulladéklerakó telepre – megoldott. Hulladékgyűjtésre csak szabványosított zártedény, konténer használható. A gyűjtőedények – a szelektív gyűjtésre kialakított szigetek kivételével – közterületen nem tárolhatók, elhelyezésüket telken vagy épületen belül kell biztosítani.
Természetvédelem
23. § (1) A táj szerkezetét, állapotát és jellegét a természetvédelmi célokkal ellentétesen megváltoztatni tilos.
(2) Az erdők telepítésénél, az utcák fásításánál és az egyéb növényzet telepítésénél elsősorban a tájra jellemző, a települési ökológiai viszonyoknak ellenálló, nagyobb díszítőértékű nem allergizáló fafajok és növények telepítése indokolt. A növényzet telepítésére vonatkozó helyi előírásokat a 2. melléklet tartalmazza.
(3) A területen ismert élőhelyeket meg kell óvni, beruházások helyének kijelölésekor ezeket a területeket kerülni kell.
Tájvédelem
24. § (1) Nem létesíthető közmű-, energia-, táv- és hírközlési vezeték a meglévő fasorok nyomvonalában.
(2) Új közutak, utcák kialakításánál legalább egyoldali fasor telepítéséhez területet kell biztosítani.
(3) Az általános tájvédelem érdekében a külterületi utak menti fasorok, mezsgyék, vízfolyások, csatornák menti galérianövényzet védelméről gondoskodni kell.
(4) Mezőgazdasági termelés számára kedvezőtlen termőhelyi adottságú területeken lévő természetes növényállományt (mocsár, láp, rét, legelő) meg kell őrizni.
(5) Hatályon kívül helyezte a 11/2016.(XII.14.) önkormányzati rendelet.
Kulturális örökség védelme
25. § (1) A település műemléki értékeit, a műemléki környezeteket, nyilvántartott régészeti lelőhelyeket, és a régészeti érdekű területeket a szabályozási tervek, valamint e rendelet 3. melléklete, a helyi védelem alatt álló építményeket, objektumokat az 1. melléklet tartalmazza. Az 1. mellékletben felsorolt helyi művi értékeket a Képviselő-testület helyi védetté nyilvánítja.
(2) Hatályon kívül helyezte a 11/2016.(XII.14.) önkormányzati rendelet.
(3) Hatályon kívül helyezte a 11/2016.(XII.14.) önkormányzati rendelet.
(4) Hatályon kívül helyezte a 11/2016.(XII.14.) önkormányzati rendelet.
(5) Hatályon kívül helyezte a 11/2016.(XII.14.) önkormányzati rendelet.
(6) A nyilvántartott régészeti lelőhelyekre, a régészeti örökségvédelemre, a műemlékekre, azok környezetében elhelyezkedő épületekre, telkekre vonatkozóan a kulturális örökség védelméről szóló törvény előírásai szerint kell eljárni.
(7) Helyi védettségű épületekkel és építményekkel kapcsolatosan bárminemű építési munka esetén a következő előírásokat kell betartani:
a) Helyi védettségű épületen végzett bármilyen építési munka esetén a hagyományos homlokzat és tömegarányok, párkány- és gerincmagasságok, nyílásrendek, a nyílások osztása, a homlokzati tagozatok megőrzendők.
b) Helyi védettségű épület úgy bővíthető, hogy az eredeti épület tömegformája, homlokzati kialakítása, utcaképi szerepe ne változzon, illetve gondosan mérlegelt kompromisszum árán a legkevesebb kárt szenvedje. Az épület bővítése az épület mögött, fésűs beépítés esetén az oldalhatár mentén hosszirányban, illetve ha a telekszélesség lehetővé teszi, udvari keresztszárnnyal is lehetséges az utcai homlokzattól legalább 5 m-el hátrahúzva. A keresztszárny szélessége a főépület szélességét nem haladhatja meg, és csak azzal azonos hajlásszögű és anyagú szimmetrikus nyeregtetővel fedhető.
c) A belső átalakításokat az eredeti szerkezet és belső értékek tiszteletben tartásával kell megoldani.
d) Helyi védettségű épület bontására csak a műszaki és erkölcsi avultság beálltával kerülhet sor, a védettség megszüntetését követően.
(8) A helyi védettség alá helyezésről, illetve törlésről okleveles építészmérnök által készített szakvélemény alapján a Képviselő-testület e rendelet módosításával dönt.
(9) hatályon kívül helyezte a 10/2015.(VI.22.) önkormányzati rendelet.
Egyes sajátos jogintézmények követelmény rendszere
Építésjogi követelmények
26. § Hatályon kívül helyezte a 11/2016.(XII.14.) önkormányzati rendelet.
Kiszolgáló és lakóút céljára történő lejegyzés
27. § Hatályon kívül helyezte a 11/2016.(XII.14.) önkormányzati rendelet.
Útépítési és közművesítési hozzájárulás
28. § Hatályon kívül helyezte a 11/2016.(XII.14.) önkormányzati rendelet.
Településrendezési kötelezések
29. § (1) A településrendezési kötelezések körét és szabályait az Étv. tartalmazza.
(2) Hatályon kívül helyezte a 11/2016.(XII.14.) önkormányzati rendelet.
A rendelet szabályozási terv mellékletei
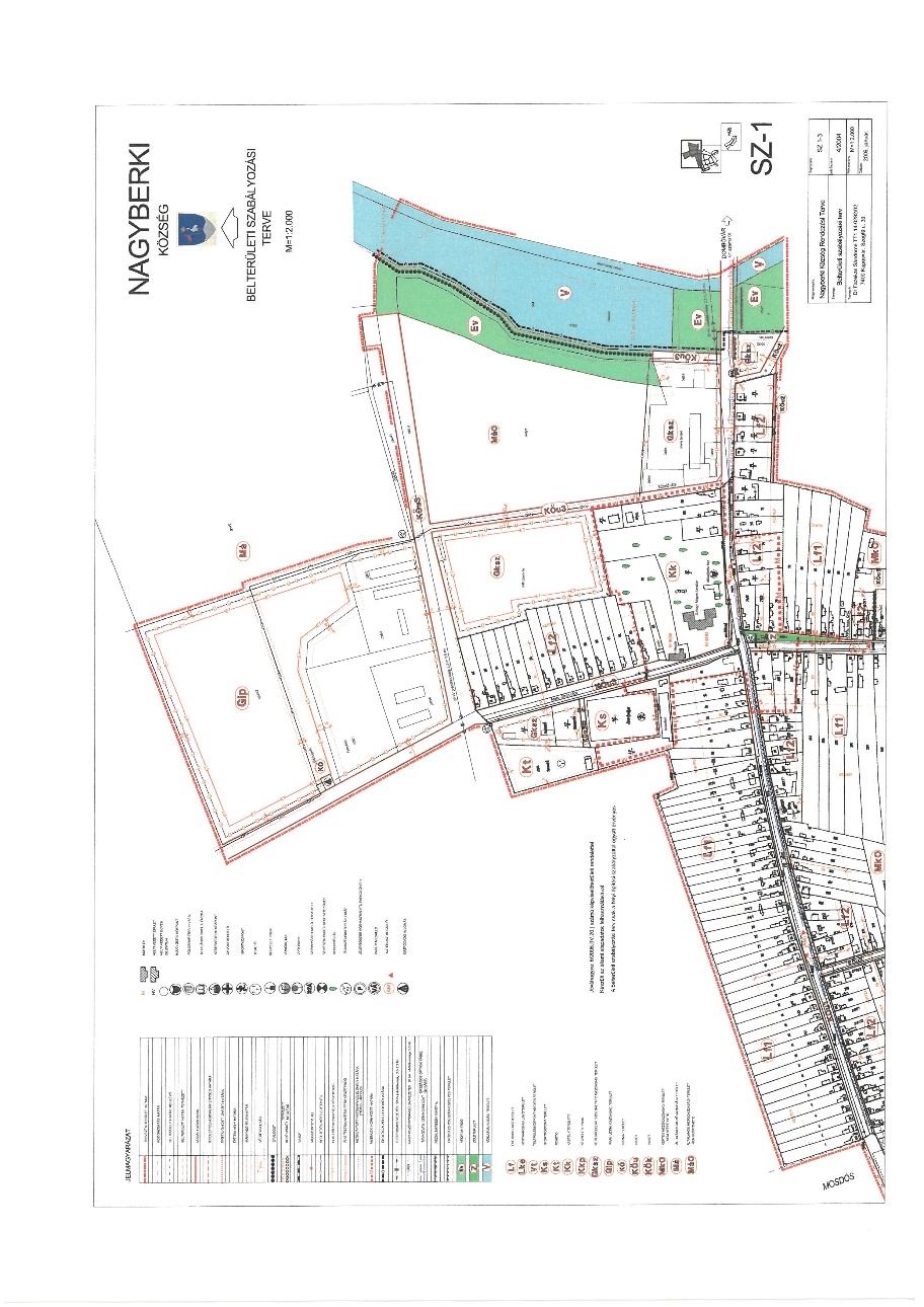
29/A. § (1) 5. melléklet: SZ-1, jelű Belterületi Szabályozási Terv.
(2) 6. melléklet: SZ-2 jelű Belterületi Szabályozási Terv
(3) 7. melléklet: SZ-3 jelű Belterületi Szabályozási Terv
(4) 8. melléklet: SZK jelű Külterületi Szabályozási Terv.
Záró rendelkezések
30. § (1) Hatályon kívül helyezte a 10/2015.(VI.22.) önkormányzati rendelet.
(2) E rendelet 2016. december 15. napjától lép hatályba, kihirdetéséről a helyben szokásos módon (az önkormányzat hirdetőtábláján történő kifüggesztéssel) a körjegyző gondoskodik.
(3) Az alaprendelet módosításának hatályba lépése 2009. május 28. napja, 2010. november 24. napja, 2014. február 20. napja, 2015. június 22. napja, illetve 2016. december 14. napja. Komár András polgármester Kaposvölgyiné Dr. Hangyál Margit jegyző
(4) Kihirdetési záradék: A rendelet kihirdetése 2016. december 14. napján megtörtént. Kaposvölgyiné Dr. Hangyál Margit jegyző
1. melléklet a 6/2006. (IV. 20.) önkormányzati rendelethez
|
Helyi védelem alatt álló épületek és egyéb objektumok |
|||
|---|---|---|---|
|
ssz. |
név |
cím |
hrsz. |
|
1 |
Kereszt |
Kossuth L. u. 37. |
98. |
|
2 |
Kereszt |
Kossuth L. u. 2. |
218. |
|
3 |
Emlékmű |
Kossuth L. u. 2. |
218. |
|
4 |
Kereszt |
Régi Temető |
312. |
|
5 |
Kereszt |
Kata-hegy |
1234. |
|
6 |
Lakóház |
Kossuth L. u. 37. |
98. |
|
7 |
Emlékmű |
Kisberki u. 59. |
655/2. |
|
8 |
Kereszt |
Kisberki u. 59. |
655/2. |
2. melléklet a 6/2006. (IV. 20.) önkormányzati rendelethez
1. A legkisebb ültetési (telepítés) távolság az ingatlan határától:
1.1. Belterületen és külterületeknek a kertterületre (Mk, Mk0) és beépítésre szánt
1.1.1. szőlő, valamint 3 m-nél magasabbra nem növő gyümölcs- és egyéb
1.1.2. 3 m-nél magasabbra nem növő gyümölcs és egyéb fa esetén 1 m.
1.1.3. 3 m-nél magasabbra növő gyümölcs- és egyéb fa, valamint gyümölcs- és
1.2. külterületen a kertterületen, és beépítésre szánt területen kívül eső részén:
1.2.1. gyümölcsfa iskolai nevelés alatt álló növény, továbbá szőlő, köszméte, ribizke,
1.2.2. minden egyéb gyümölcsbokor (mogyoró, stb.) esetén 2 m.
1.2.3. birs, naspolya, birsalanyra oltott körtefa esetén 2,5 m.
1.2.4. törpealanyra oltott almafa, továbbá meggy-, szilva- és mandulafa esetén 3,5 m.
1.2.5. vadalanyra oltott alma- és körtefa, továbbá kajszi fa esetén 4 m.
1.2.6. cseresznyefa esetén 5 m.
1.2.7. dió- és gesztenyefa, továbbá minden fel nem sorolt gyümölcsfa esetén 8 m.
1.3. külterületnek, a kertterületen és a beépítésre szánt területén kívüli részén, amennyiben
1.3.1. 1 m-nél magasabbra nem növő bokor (élő sövény) esetén 0,8 m.
1.3.2. 2 m-nél magasabbra nem növő bokor (élő sövény) esetén 1,2 m.
1.3.3. 2 m-nél magasabbra növő bokor (élő sövény) esetén 2 m.
1.3.4. fa esetében 8 m.
2. Közút területén – szőlőtől, gyümölcsöstől, kertterülettől és beépítésre szánt területtől – minden gyümölcs- és egyéb fát, valamint bokrot legalább 1,5m, 3 m-nél magasabbra növő gyümölcsfát legalább 2,5 m távolságra szabad ültetni.
3. melléklet a 6/2006. (IV. 20.) önkormányzati rendelethez
|
Műemlékvédelem alatt álló épület |
|||||
|---|---|---|---|---|---|
|
Cím |
hrsz. |
törzsszám |
Bírság ka- |
||
|
1 |
Volt Vigyázó kastély |
Nagyberki, Fő u. 11. |
67/3 |
9558 |
III. |
|
Nepomuki Szent János szobor |
|||||
|
2 |
Magtár |
Nagyberki, Arany J. u. 1. |
66 |
9558 |
III. |
|
3 |
Szoborcsoport (Magyarok Nagyasszonya) |
Nagyberki, Fő u. |
118/4 |
10208 |
III. |
|
4 |
Szalacskai várrom |
Nagyberki, Szalacskahegy |
801/2 |
4483 |
III. |
|
Műemléki környezetek |
|||||
|
Volt Vigyázó kastély és szobor |
Közös műemléki környezet: 46,47/6,48(út),64,65,67/5,67/2,67/4,68,70/4(út),74,75,76/2,77/1,77/2,78,118/2,256,257,258 |
||||
|
Magtár |
|||||
|
Szoborcsoport (Magyarok nagyasszonya) |
|||||
|
Szalacskai várrom |
810,811(út),812,957/2,957/3,958,959,960,961,808,809/1,809/9,851(út) |
||||
4. melléklet a 6/2006. (IV. 20.) önkormányzati rendelethez
|
Nyilvántartott régészeti lelőhelyek (Forster Központ 600/1716-2/2015 számú, 2015. július 7-én kelt levele szerint) |
|||||||
|---|---|---|---|---|---|---|---|
|
AZON |
TELEP |
MEGYE |
LSZAM |
BÍRSÁG |
NÉV |
VÉDELEM |
HRSZ |
|
32370 |
Nagyberki |
Somogy |
1 |
I |
Szalacska- |
kiemelten védett |
0124/14,0124/15,0124/18,0124/19,0124/20,0136/1,0136/3 |
|
32372 |
Nagyberki |
Somogy |
2 |
I |
Csillétől délre, Szalacskai-erdei halomsír-csoport |
szakmai |
0115/10 |
|
47862 |
Nagyberki |
Somogy |
3 |
I |
Szalacska-középkori templom |
kiemelten védett |
|
|
47866 |
Nagyberki |
Somogy |
4 |
I |
Csillei rész |
szakmai |
0115/10,0115/5,0122,0127/6,0127/7,831,832,833,834,835,836/1,836/2,837,838,839,840,841,842,843,844/1,844/2,845/1,845/2,846,847,848,849,850,851,852,853,854,855,856,857,858,859,861/1,861/2,862,863/1,863/2 |
|
47869 |
Nagyberki |
Somogy |
5 |
I |
Szalacska földvár |
kiemelten védett |
0115/5,0115/6,801/3,801/4,802,803,804,805,806,807,808,809/1,809/2,809/3,811,812,813,814,815,816,817/1,818/3,818/4,819/1,821/1,822/1,851,875,876,877,878,879,880,881,882,883/2,885,886 |
|
47872 |
Nagyberki |
Somogy |
6 |
I |
Szalacska-Kecskés dűlő |
szakmai |
1238,1275,1277,1278,1279,1280,1281,1282,1283,1284,1285,1286/1,1286/2,1287,1288,1289/1,1289/2,1290,1291,1292,1293,1294,1295/1,1295/2,1296,1297,1298 |
|
47873 |
Nagyberki |
Somogy |
7 |
I |
Kecskési-horhó |
szakmai |
0136/3,0136/4,0136/1,0129,0124/19,0124/20,0130/1,0130/3 |
|
47877 |
Nagyberki |
Somogy |
9 |
I |
Szalacskai halomsírmező Szalacskai majori csoportja |
kiemelten védett |
0144/2,0144/10,0144/11,0144/8,0144/9,0144/12,0144/14,0144/18,0144/19,0145,0144/15,0134 |
|
56873 |
Nagyberki |
Somogy |
10 |
I |
Szalacskai halomsírmező Piaci-réti csoportja |
kiemelten védett |
0144/4,0144/11,0149,0155 |
|
88033 |
Nagyberki |
Somogy |
11 |
I |
Szalacskai földvártól nyugatra (volt TSZ szőlő) |
szakmai |
0126,0125,0127/3 |
5. melléklet

6. melléklet

7. melléklet

8. melléklet
