Veresegyház Város Önkormányzata Képviselő-testületének 32/2025. (XI. 20.) önkormányzati rendelete
a piac működésének rendjéről
Hatályos: 2026. 01. 02Veresegyház Város Önkormányzata Képviselő-testületének 32/2025. (XI. 20.) önkormányzati rendelete
a piac működésének rendjéről
[1] Veresegyház Város Önkormányzatának Képviselő-testülete a lakosság élelmiszerekkel, közszükségleti és egyéb árucikkekkel történő jobb ellátása érdekében piac működésére alkalmas területet jelölt ki és tart fenn.
[2] Veresegyház Város Önkormányzatának Képviselő-testülete Magyarország Alaptörvényének 32. cikk (1) bekezdés a) pontja alapján helyi közügy intézése körében, a Magyarország helyi önkormányzatairól szóló 2011. évi CLXXXIX. törvény 13. § (1) bekezdés 14. pontjában meghatározott feladatkörében eljárva, a vásárokról, a piacokról és a bevásárlóközpontokról szóló 55/2009. (III. 13.) Korm. rendelet és a vásári, piaci és vásárcsarnoki árusítás közegészségügyi szabályairól szóló 59/1999. (XI. 26.) EüM rendelet rendelkezéseivel összhangban, az alábbi rendeletet alkotja.
A rendelet hatálya
1. § (1) A rendelet területi hatálya kiterjed a Veresegyház közigazgatási területén lévő alábbi önkormányzati tulajdonú területekre:
a) Veresegyház belterület 63/1 hrsz-ú ingatlan érintett része, amely természetben a Fő út 27-től a Fő út 53-ig terjedő, az úttest és a páratlan házszámú házak közötti terület;
b) Veresegyház belterület 207/8 hrsz-ú ingatlan érintett része, amely természetben a Fő út 60-tól a Fő út 80-ig, az Andrássy útig terjedő szervizút, a Fő út 54. és 56. számmal szemben lévő parkoló;
c) Veresegyház belterület 485 hrsz-ú ingatlan, természetben a Fő út 64. szám alatti üres telek;
d) Veresegyház belterület 486 hrsz-ú ingatlan, természetben a Fő út 62. szám alatti üres telek;
e) Veresegyház belterület 1451 hrsz-ú ingatlan, természetben a Fő út 27. szám alatti épület;
f) Veresegyház belterület 1453/1 hrsz-ú ingatlan,
g) Veresegyház belterület 1453/2 hrsz-ú ingatlan,
h) Veresegyház belterület 1455 hrsz-ú ingatlan,
i) Veresegyház belterület 1456 hrsz-ú ingatlan,
j) Veresegyház belterület 1457/3 hrsz-ú ingatlan,
k) az f)-j) pontok természetben a Fő út 29-től a Fő út 35-ig terjedő Városház előtti és szökőkút körüli terület a két parkolóval és az úttest melletti járdaszakasszal;
l) a Petőfi utca 1-3/a. szám előtti, úttestig terjedő közterület.
(2) A rendelet személyi hatálya a veresegyházi piac (a továbbiakban: piac) fenntartójára, üzemeltetőjére, a piacon kereskedelmi, szolgáltatási tevékenységet folytatókra és a piac területén tartózkodókra terjed ki.
(3) E rendelet hatálya kiterjed a búcsúra, a piac területén megtartott alkalmi (ünnepi) árusításra, és a használtcikk-piacra is, szabályait az itt értékesítő, szolgáltató tevékenységet végzők és a rendező szervek kötelesek betartani.
A piac területe, típusa
2. § (1) A piac térképe e rendelet 1. melléklete, területe az 1. § (1) bekezdésében megjelölt ingatlanok és leírt területek.
(2) Nem tartozik a piac területéhez a COOP ABC előtti parkoló, a parkoló bejárata, valamint a Fő úti Gyógyszertár és az orvosi rendelő előtti úttesttel párhuzamos parkolóhelyek és a merőleges parkolóhelyek mögötti zöldfelület, így ezeken a területeken az árusítás nem megengedett. Ezeken a területrészeken a parkolásra vonatkozó szabályokat a piac teljes időtartama alatt, folyamatosan be kell tartani. A piac teljes időtartama alatt biztosítani kell a Fő úti Gyógyszertár és a mellette lévő orvosi rendelő gépjárművel történő folyamatos és biztonságos megközelíthetőségét.
(3) A piac Városháza melletti, Kálvin utcáról nyíló területe élelmiszer, zöldség és gyümölcs árusításra van kijelölve.
(4) A piac típusa: állandó piac; elsősorban élelmiszerpiac, valamint helyi termelői piac.
Értelmező rendelkezések
3. § E rendelet alkalmazásában:
a) Árusító hely: üzlethelyiségnek minősülő és üzlethelyiségnek nem minősülő, árusító vagy szolgáltató tevékenység végzésére alkalmas, az üzemeltető által kijelölt hely.
b) Helyhasználó:
ba) Tartós helyhasználó: aki az üzemeltetőtől állandó helyre szóló féléves vagy éves tartós helyhasználati engedélyt vált a bérlet megvásárlásakor.
bb) Alkalmi helyhasználó: aki az üzemeltetőtől alkalmanként napijegyet vásárol nyugta ellenében.
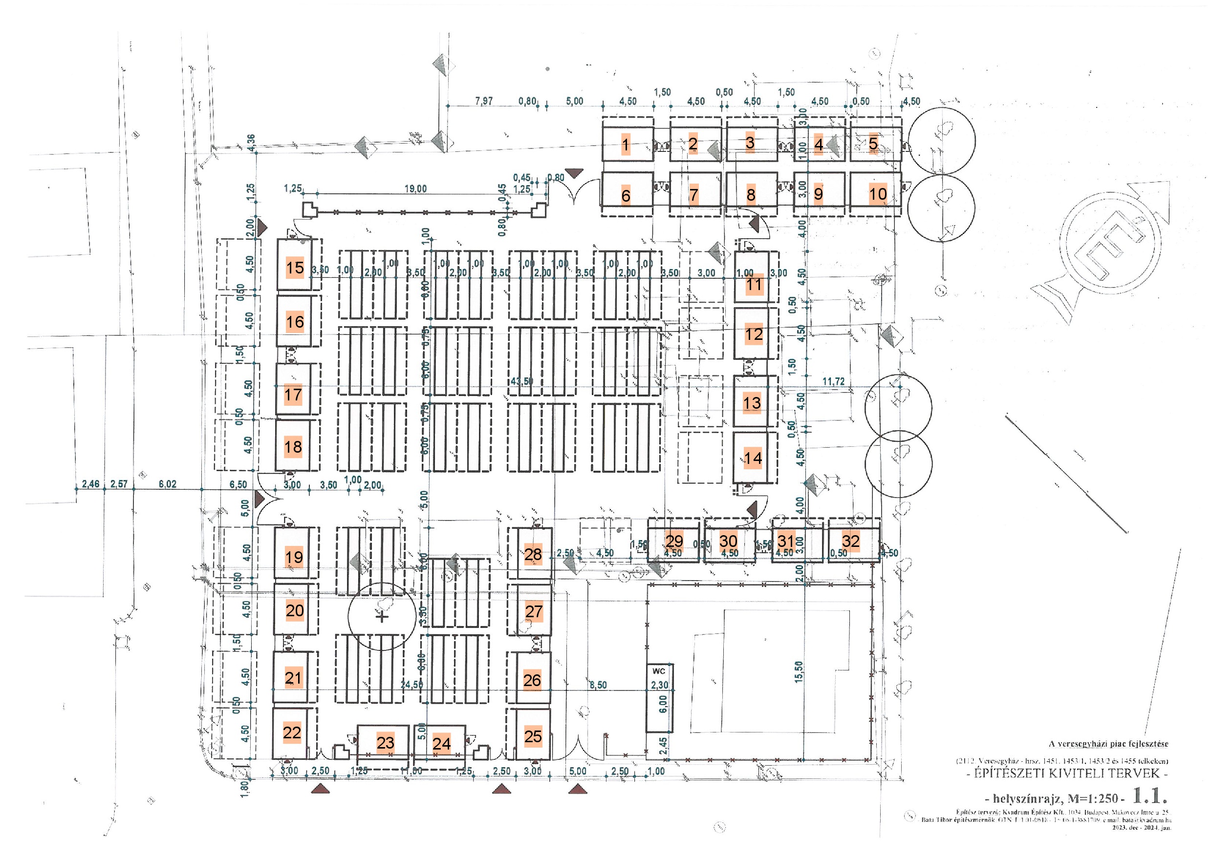
bc) Bérlő: aki az üzemeltetővel – pályázati eljárást követően – megkötött bérleti szerződéssel a piac területén lévő 1-től 32-ig arab számmal sorszámozott pavilont bérli. A pavilonok helyszínrajza e rendelet 2. melléklete.
A piac fenntartása, üzemeltetése
4. § (1) A piac fenntartója: Veresegyház Város Önkormányzata (a továbbiakban: fenntartó).
(2) A piac üzemeltetője: a Képviselő-testület által határozatban kijelölt, a fenntartóval a piac üzemeltetésére és működtetésére vonatkozó szerződésben megbízottként megjelölt önkormányzati gazdasági társaság (a továbbiakban: üzemeltető).
(3) A piac fenntartója a piac üzemeltetését, rendjének folyamatos biztosítását, a helyhasználati díjak beszedését az üzemeltető útján végzi.
(4) A piac területén a közterület rendjének biztosításában ellenőrzésre, intézkedés megtételére jogosult az 5. § (1) bekezdésben meghatározott piaci napokon a piacfelügyelő, az 5. § (2) bekezdésben meghatározott egyéb napokon pedig a Veresegyházi Polgármesteri Hivatal (a továbbiakban: Hivatal) illetékes osztályának rendésze, közterület-felügyelője.
A piac nyitvatartása
5. § (1) A piac nyitvatartási ideje: szerdán és szombaton – ünnepnap kivételével – 6.00 órától 13.00 óráig
(2) Az (1) bekezdéstől eltérően, a 2. mellékleten jelölt 1-5., 9-14. és 31-32. sorszámú 13 db pavilon nyitvatartási idejét a bérlője a hétfőtől vasárnapig 5.00 órától 20.00 óráig terjedő időtartamon belül jogosult kérelmezni és a nyitvatartási idejét a pavilonon köteles jól látható módon feltüntetni. E pavilonokban elsősorban közvetlenül fogyasztható készétel árusítható.
(3) A nyitvatartási időről és a piac működési rendjéről üzemeltető a piac területén jól látható helyen közzétett hirdetmény útján tájékoztatja a kereskedőket és a vásárlókat.
A piac általános rendje
6. § (1) A piacon árusításra jogosultak körét a kereskedelmi tevékenység végzésének feltételeiről szóló 210/2009. (IX. 29.) Korm. rendelet (a továbbiakban: Korm. rendelet), valamint a vásárokról, piacokról és a bevásárlóközpontokról szóló 55/2009. (III. 13.) Korm. rendelet határozza meg.
(2) A piacon árusítást kezdeni helyhasználati engedély, napijegy vagy bérleti szerződés birtokában lehet.
(3) A piacon az a kereskedő árusíthat, aki az árusítási szándékát bejelentette a Hivatal illetékes osztályánál, bemutatta az árusításhoz szükséges érvényes okmányait, és ennek alapján a Hivatal nyilvántartásba vette, valamint a Hivatal részéről a bejelentésköteles kereskedelmi tevékenységgel kapcsolatban kiadott igazolással rendelkezik. Ennek elmulasztásából eredő bármilyen jogkövetkezményekért vagy kárért az üzemeltető felelősséget nem vállal.
(4) A piaci árusítás során folyamatosan meg kell tartani az elárusító helyre, az árusítást végző személyre és az árusított termékekre vonatkozó kereskedelmi, építésügyi, közegészségügyi, élelmiszerlánc-biztonsági, élelmiszer-higiéniai, állat- és növény-egészségügyi, környezetvédelmi, köztisztasági, munkavédelmi és tűzvédelmi követelményeket.
(5) A mezőgazdasági terményforgalmazás általános szabályai a piaci árusításra is érvényesek.
(6) A mezőgazdasági őstermelő kizárólag saját gazdaságában előállított terméket árusíthat.
(7) A piacon árusítást végző kereskedők kötelesek:
a) a termékeik árát árcédulán vagy összesített árjegyzéken feltüntetni,
b) az árusító helyen a vásárlók számára jól láthatóan és olvashatóan feltüntetni a nevüket, címüket, székhelyüket, telefonszámukat és FELIR számukat.
(8) A piaci árusítás során kizárólag hitelesített mérleget, súlyt vagy egyéb mérőeszközt szabad használni. Ha az áru mérlegelése külön (kosár, doboz, stb. felhasználásával) történik, azon a mérőedény súlyát maradandó módon, a vásárlók által jól láthatóan fel kell tüntetni.
(9) A helyhasználó köteles az árusítás ideje alatt az árusító helyen és annak közvetlen környezetében folyamatosan összetakarítani, majd az árusítás befejeztével a keletkezett hulladékot a kijelölt gyűjtőponton elhelyezni, a nem értékesített árut maradéktalanul elszállítani. Ellenkező esetben az üzemeltető jogosult a takarítási díj felszámolására, valamint megtagadhatja a terület bérbe adását.
(10) Az árusítás végén a piac területén tárolt felépítményeket a használók kötelesek biztonságosan lezárni. A fenntartó és az üzemeltető a piacon lévő felépítmények, áruk őrzését nem biztosítja, azokért felelősséget nem vállal.
(11) A piac teljes területén a nyitvatartási idő alatt csak gyalogosforgalom engedélyezett.
(12) A piac területén víz és elektromos áram vételezési lehetőségről, a nyilvános WC fenntartásáról üzemeltető gondoskodik. Illemhely a Fő út 27. szám alatti épületben, a piac területén kialakított konténer épületben, mobil illemhely a Fő út 62-64. szám alatt található.
(13) Tilos a piac területén:
a) az árusításra ki nem jelölt helyeket, közlekedési útvonalakat árubemutatásra vagy árusításra igénybe venni;
b) a piac közlekedő útjain árut, göngyöleget, kézikocsit vagy egyéb tárgyat tárolni;
c) a nyitvatartási idő alatt kerékpárral, elektromos rollerrel a piac területére behajtani, illetve azokat tolva közlekedni;
d) kutyát (vakvezető és szolgálati rendőrkutya kivételével) a piac területére bevinni;
e) tüzet rakni vagy tűzrendészetileg nem engedélyezett módon nyílt lángot használni;
f) a piac területére, illetve az ahhoz tartozó közterületre hulladékot, romlott árut bevinni;
g) olyan tevékenységet végezni, amely a bérleti szerződésben foglalt tevékenységen kívül esik, közerkölcsöt sért vagy jogszabályba ütközik;
h) szerencsejátékot folytatni és minden olyan tevékenységet végezni, amely az emberek megtévesztésére, félrevezetésére irányul;
A piaci helyfoglalás rendje
7. § (1) Piaci árusító helyek típusai:
a) zárt állandó elárusítóhely, pavilon
b) fedett asztal
c) nem fedett asztal
d) egyéb szabad hely
(2) A fenntartó által gépjárműből, büfékocsiból árusításra kijelölt terület a Városháza oldalában, a Kálvin utca felől megközelíthető területrész, ahol az ilyen jellegű árusításhoz az elektromos áram vételezési lehetőség is biztosított.
(3) A helyhasználók a piaci árusító helyeket a nyitási idő előtt 2 órával foglalhatják el.
(4) A piac területét a kereskedőknek legkésőbb 14.00 óráig - rendezett és tiszta állapotban - kell elhagyniuk.
(5) 04.00-06.00 óra között a tartós helyhasználó kereskedők foglalhatják el bérelt helyüket a piac területén. A bérlettel rendelkező tartós helyhasználók 06.00 óra után nem tarthatnak igényt bérelt helyükre.
(6) 06.00 óra után az érvényes bérlettel nem rendelkező alkalmi helyhasználók elfoglalhatják a szabadon maradt árusítóhelyeket. 06.00 óra előtt a helyhasználati engedéllyel nem rendelkező alkalmi helyhasználók nem foglalhatnak helyet a piac területén.
(7) A piac területére - indokolt esetben, a piacfelügyelőtől kapott külön engedély birtokában - gépjárművel történő áruszállítás 06.30 óráig történhet.
(8) A piac területére a piac nyitásától, 06.00 órától a piac zárásáig, 13.00 óráig gépjárművel behajtani és ott gépjárművet tárolni tilos.
Pavilonokban folytatott kereskedelmi tevékenység külön szabályai
8. § (1) A piac területén lévő, a fenntartó tulajdonában álló 32 db, 1-től 32-ig arab számmal sorszámozott pavilont az üzemeltető pályázati eljárást követően bérbeadás útján hasznosítja. A pályázati feltételeket a fenntartó képviselő-testülete állapítja meg. A pályázó termékcsoportonként és pályázati kiírásonként csak egy pavilonra pályázhat.
(2) A bérleti szerződés időtartama első alkalommal legalább 3 év, amely a lejárat előtt kérelemre meghosszabbítható. A hosszabbítás több alkalommal lehetséges és időtartama alkalmanként legfeljebb további 2 év. A pavilonok minimális bérleti díjainak mértékét a 3. melléklet tartalmazza.
(3) A pavilonokban folytatott kereskedelmi tevékenység végzéséhez a tevékenységi körnek megfelelő szakhatósági engedélyekkel szükséges rendelkeznie a kereskedőnek, s ezen túlmenően a működés megkezdéséhez a Hivatal jegyzőjének a Korm. rendelet alapján kiadott igazolása is szükséges.
A piacon árusítható termékek köre
9. § (1) A piacon a vonatkozó jogszabályi rendelkezések, hatósági előírások és a piaci házirend megtartásával áru- és termékértékesítés, továbbá vendéglátóipari tevékenység folytatható.
(2) A Korm. rendelet szerint kizárólag üzletben forgalmazható termékeket csak a piac területén lévő pavilonokban lehet forgalmazni.
(3) A mezőgazdasági őstermelő kizárólag azt a terméket értékesítheti, amit saját gazdaságában állított elő és szerepel az őstermelői nyilvántartásban. Az őstermelő nevében kizárólag közeli hozzátartozója vagy alkalmazottja árulhat, az árusítás helyén pedig kötelező jól látható módon kihelyezni a „Saját őstermelői tevékenységből származó termék” feliratot, valamint az őstermelő Nébih tevékenység azonosító számát (FELIR szám).
(4) Népművész, népi iparművész, a képzőművész, kézműves és a fotóművész a saját előállítású alkotásait árusíthatja.
(5) Az egyéni vállalkozónak vagy mezőgazdasági kistermelőnek nem minősülő az Európai Gazdasági Térség (továbbiakban: EGT) valamely tagállamában lakóhellyel vagy székhellyel rendelkező magánszemély a tulajdonát képező vagyontárgyakat – a (4) bekezdésben meghatározott termékek kivételével – alkalomszerűen értékesítheti a mindenkori közegészségügyi, állategészségügyi és élelmezésügyi jogszabályok rendelkezésire tekintettel.
(6) A piacon nem hozható forgalomba a Korm. rendelet 3. mellékletében felsoroltak:
a) a kémiai biztonságról szóló törvény szerinti veszélyes anyagok és keverékek, kivéve a jövedéki adóról szóló törvény szerinti tüzelő-, fűtőanyag célú gázolaj, LPG és az üzemanyag;
b) az egyes festékek, lakkok és járművek javító fényezésére szolgáló termékek szerves oldószer tartalmának szabályozásáról szóló kormányrendelet hatálya alá tartozó termékek;
c) állatgyógyászati készítmények és hatóanyagaik;
d) fegyver, lőszer, robbanó- és robbantószer, gázspray, pirotechnikai termék, a polgári célú pirotechnikai tevékenységekről szóló kormányrendelet szerinti 1., 2. és 3. pirotechnikai osztályba tartozó termékek, az ott meghatározott kivételekkel;
e) növényvédő szerek és hatóanyagaik;
f) nem veszélyes hulladék;
g) az Országos Tűzvédelmi Szabályzat szerint fokozottan tűz- vagy robbanásveszélyes osztályba tartozó anyag, kivéve a jövedéki adóról szóló törvény szerinti tüzelő-, fűtőanyag célú gázolaj, LPG és az üzemanyag.
(7) A piacon nem árusítható:
a) kábítószer és pszichotróp anyag, új pszichoaktív anyag, illetve annak minősülő termék,
b) gyógyszer, gyógyszernek nem minősülő gyógyhatású anyag vagy készítmény, gyógyászati segédeszköz, veszélyesnek minősülő anyag e készítmény, növényvédő szer, növényvédelmi célú és termelésnövelő anyag,
c) veszélyes hulladék,
d) drágakő, nemesfém, nemesfémből készült ékszer, díszműáru és egyéb tárgy,
e) üzleten kívül a jövedéki adóról szóló 2016. évi LXVIII. törvény 3. § (1) bekezdés 29. pontjában szabályozott jövedéki termék (energia termék, a sör, a csendes és habzó bor, az egyéb csendes és habzó erjesztett ital, a köztes alkoholtermék, az alkohol termék és a dohány termék).
(8) A piac területén ital, melegétel és egyéb élelmiszer árusítása megengedett. A piac látogatói számára engedélyezett a helyben történő alkoholmentes ital és étel fogyasztása.
(9) A piacon gyűjtött, szedett gomba árusítható.
(10) Üzemeltető a piac területén a gombaértékesítési engedély kiadására és az értékesítés ellenőrzésére a gombavizsgáló szakellenőr részére a vásári, piaci és vásárcsarnoki árusítás közegészségügyi szabályairól szóló 59/1999. (XI. 26.) EüM rendelet 20. § (5) bekezdésében foglaltaknak megfelelő gombavizsgáló helyiséget biztosít.
Helyhasználat
10. § (1) A piacon az üzemeltetővel kötött helyhasználati engedély, napijegy vagy bérleti szerződés alapján és az üzemeltető által kijelölt helyen szabad árusítani. Engedélyhez kötött kereskedelmi tevékenység esetén a helyhasználati engedély, napijegy vagy bérleti szerződés csak az árusításra jogosító engedély bemutatása után köthető.
(2) Az a kereskedő vagy szolgáltató, aki tartós hellyel nem rendelkezik, illetve a tartós helyét a piac kezdetéig nem foglalja el, az érkezés sorrendjében foglalhat helyet. Az árusítás az élelmiszerpiac kivételével saját asztalról, sátorból történhet.
(3) A tartós helyhasználati engedélyt a tárgyévre lehet kiadni.
(4) A tartós (éves) helyhasználati díjat (bérletet) előre, az árusítást megelőző év december 31-ig, — későbbi kezdés esetén a helyfoglalás időpontjában — kell megfizetni az erről szóló megállapodás szerint.
(5) Lehetőség van féléves, szerdai és szombati, valamint csak szerdai, vagy csak szombati bérlet megváltására is. A második félévi díj befizetési határideje tárgyév június 30.
(6) A területhasználati díj 2 méter mélységig, folyóméterben számolandó. Minden megkezdett folyóméter egésznek számít.
(7) A piacfelügyelő egyedi elbírálás alapján jogosult a folyóméterenként 2 méter mélységnél nagyobb területnagyságot meghaladó esetekben a fizetendő összeget négyzetméterben meghatározni.
(8) A helyhasználó kizárólag a kifizetett területnagyságot foglalhatja el, a területnagyság túllépéséért pótdíj számítható fel, melynek mértékét a 3. melléklet tartalmazza.
(9) Igénylőnek a bérlet vagy napijegy kiváltásakor az árusításra vonatkozó jogosultságát igazoló okiratot (cégkivonat, egyéni vállalkozói engedély vagy őstermelői igazolvány) be kell mutatnia, mert annak másolati példánya a helyhasználati engedély, napijegy vagy bérleti szerződés mellékletét képezi.
(10) Őstermelő esetében a 6. § (3) bekezdése szerint kiadott jegyzői igazolásban megjelölt termékeken kívül más termék árusítása nem megengedett. Ennek megsértése esetén az őstermelő első alkalommal figyelmeztetésben részesül, ismétlődés esetén pedig kitiltásra kerül a piacról.
(11) A helyhasználat részletes feltételeit a helyhasználatra jogosító írásos engedély tartalmazza.
(12) A helyhasználó a kijelölt helyet az üzemeltető előzetes írásbeli engedélye nélkül nem változtathatja meg, a piac területén máshol nem árusíthat, árut és göngyöleget máshol nem rakhat le.
(13) A tartós vagy alkalmi helyhasználat jogának a helyhasználó által más személyre történő átruházása tilos. A helyhasználati engedély, napijegy vagy bérleti szerződés ezirányú megszegése esetén az üzemeltető értesíti a jegyzőt, aki a 11. § szerint jár el.
(14) A helyhasználati engedély kifüggesztése (az árusító pulton, jól látható helyen) kötelező.
(15) Az alkalmi helyhasználat jogának megszerzése helyhasználati díj megfizetésével történik a piacnapokon. Az alkalmi helyhasználati díj megfizetéséről kiadott nyugtának naptárszerűen tartalmaznia kell az időpontot is. Az alkalmi helyhasználati díj megfizetését igazoló nyugtát az árusítást végző személy a területhasználat megszűnéséig köteles megőrizni, továbbá köteles azt az ellenőrzést végző személy; piacfelügyelő, rendész, közterület-felügyelő, vagy a jegyző által ellenőrzésre feljogosító igazolvánnyal ellátott személy felhívására bemutatni. Az alkalmi helyhasználati díj megfizetését igazoló, bármilyen okból elveszett nyugta, csak újabb alkalmi helyhasználati díj megfizetésével pótolható. Amennyiben ennek a kereskedő nem tesz eleget, azonnal köteles elhagyni a piac területét.
(16) A tartós és az alkalmi helyhasználati díjak összegét a rendelet 3. melléklete tartalmazza.
(17) A tartós helyhasználatot az engedélyes 15 napos határidővel, írásban felmondhatja.
(18) Az üzemeltető a tartós helyhasználatot azonnali hatállyal felmondhatja, ha
a) az árusítást végző kereskedő a piac működési rendjét felszólítás ellenére sem tartja be,
b) az árusítást végző kereskedő az árusítóhelyén hulladékot vagy nem értékesített árut hagyott ott és e kötelezettségének elmulasztására már figyelmeztetést kapott,
c) az engedélyhez kötött termék árusítójától a kereskedői engedélyt megvonták, illetve
d) a tartós helyhasználó bérelt helyét 30 napot meghaladóan folyamatosan nem használja.
(19) A piac teljes területén fokozottan védendőek az ott található fák, fás szárú növények, az ültetett virágok és füves területrészek.
(20) A piac területén lévő virágágyásokban, zöldfelületeken az árusítás, göngyölegtárolás, parkolás és gyalogos közlekedés alkalmi jelleggel sem megengedett, ezekre a területekre éves bérlet, valamint napijegy nem adható.
(21) A növényzetben okozott kárt a kereskedő köteles megtéríteni, valamint károkozás esetén a piac területén végzett kereskedelmi tevékenysége azonnali hatállyal megszüntethető.
A piacfelügyelet
11. § (1) A piac rendjét, a forgalomba hozott termékeket, valamint a jogszabályokban foglaltak megtartását a jegyző, az ellenőrzésre jogosult más hatóságok, valamint tagjaik tekintetében a területi gazdasági kamarák is ellenőrzik.
(2) A piacfelügyelő ellenőrzi a piaci és az egyéb alkalmi árusítást a piac területén.
(3) A piacfelügyelő írásbeli javaslatára a piac általános rendjét megszegő személy vagy kereskedő árusítási jogát a jegyző – első alkalommal legfeljebb 3 hónapra – felfüggesztheti.
(4) A jegyző a piac rendjét ismételten megszegő személyt/kereskedőt véglegesen kitilthatja a piac területéről.
(5) A piacfelügyelő szükség esetén feladatainak ellátásához a Hivatal illetékes osztálya rendészének, közterület-felügyelőjének közreműködését kérheti.
(6) A jegyző piac területéről kitiltó határozata ellen fellebbezést a képviselő-testülethez lehet benyújtani.
(7) A piacfelügyelő, a Hivatal illetékes osztályának rendésze, közterület-felügyelője, a jegyszedő sértegetése, fenyegetése, verbális vagy fizikai bántalmazása, vagy más módon okozott testi sértése a piacról való végleges kitiltást von maga után, továbbá az esetről az üzemeltető köteles jegyzőkönyvet felvenni és szükség esetén feljelentést tenni. A piacról való kitiltó határozat meghozatalára a jegyző jogosult a fenti jegyzőkönyv alapján indított eljárásban.
(8) A piac rendjére vonatkozó szabályokat és a helyfoglalás díját az üzemeltető köteles a piac területén jól látható helyen kifüggeszteni.
Búcsú
12. § (1) A búcsú ideje a helyi hagyományok szerint az Erzsébet napot (november 19.) követő vasárnap.
(2) A búcsú helyszíne a Patak utca, Találkozók útja és Mogyoródi utca által határolt, ún. Búcsú tér közterület.
(3) A búcsúban értékesítő, szolgáltató, valamint mutatványos tevékenység folytatható a tevékenységre vonatkozó jogszabályok megtartásával.
(4) A búcsúban forgalmazhatók a kialakult szokások szerinti termékek: könyv, kiadvány, játék, emléktárgy, bazáráru, élő- és művirág, mézeskalács, édesipari termék, kulturális cikk, ruházat, kegytárgy, dísztárgy.
(5) A búcsúban sem hozható forgalomba az e rendelet 9. § (6)-(7) bekezdésében meghatározott termék.
Alkalmi (ünnepi) árusítás
13. § (1) Alkalmi, ünnepi árusítás a piac területén engedélyezhető, fenntartó által meghatározott időszakokban.
(2) Nem a piac területén tartott ünnepi árusításra a közterületek használatáról szóló 17/2022.(IX.30.) önkormányzati rendelet szabályai az irányadók.
(3) Az ünnepi árusítás jellemzően a Valentin-nap, nőnap, anyák napja, mindenszentek, advent, szilveszter ünnepekhez, valamint a ballagáshoz kapcsolódik.
(4) Az árusok érkezési sorrendben foglalhatják el árusító helyüket.
(5) Az árusítást a (3) bekezdésben megjelölt napok előtt 3 nappal lehet megkezdeni.
(6) Az árusítás 7.00 órától 19.00 óráig tarthat.
(7) Az alkalmi ünnepi árusítás területhasználati díjait a jelen rendelet 3. melléklete tartalmazza.
(8) A területhasználati díj megfizetésének módja: a piacfelügyelő a helyszínen nyugta ellenében szedi be a területhasználati díjat annak a napnak a reggelén, amikor az árus a helyét elfoglalta.
(9) A területhasználati díj összege az árusítással elfoglalt terület mértékéhez igazodik (folyóméterenkénti díj), legkisebb egysége az 1 napra vonatkozó díj megfizetése.
(10) Az árusítás befejeztével szemét, megmaradt áru, csomagolóanyag stb. a helyszínen nem hagyható. A kereskedő köteles az árusítás ideje alatt az árusító helyen és annak közvetlen környezetében folyamatosan összetakarítani, majd az árusítás befejeztével a keletkezett hulladékot, a nem értékesített árut maradéktalanul elszállítani.
(11) Az alkalmi árusítás során a piaci nyitvatartási rend figyelembevételével szükséges eljárni, ezért a piaci napokon az alkalmi árusítás megkezdésére csak 14 óra után van lehetőség.
Használtcikk-piac
14. § (1) Használtcikk alkalmi árusítása havonta 3 alkalommal vasárnaponként a piac területén, az 1. § (1) bekezdés b) pontjában körülírt ingatlanon, a Fő út 60-80. szám közötti területen engedélyezhető.
(2) Az 5. § (1)-(2) bekezdéseiben meghatározottaktól eltérően, a használtcikk-piac nyitvatartási ideje: 6.00 órától 14.00 óráig.
(3) Használtcikk árusítást a Hivatal illetékes osztálya által kiadott közterület-használati engedély, hozzájárulás birtokában lehet folytatni.
(4) A közterület használatért fizetendő díj mértéke a közterületek használatáról szóló 17/2022.(IX.30.) önkormányzati rendelet 2. melléklete szerint kerül megállapításra.
Záró rendelkezések
15. §1
16. § Ez a rendelet 2026. január 1-jén lép hatályba.
1. melléklet a 32/2025. (XI. 20.) önkormányzati rendelethez
1. 
2. melléklet a 32/2025. (XI. 20.) önkormányzati rendelethez
1. 
3. melléklet a 32/2025. (XI. 20.) önkormányzati rendelethez
|
Pavilonok minimális bérleti díjai: |
|
|
piaci napokon nyitva tartó - 6-8., 15-30. sorszámú - pavilon (Ft/hó) |
60 000 |
|
állandó nyitvatartási idővel üzemelő - 1-5., 9-14. és 31-32. sorszámú - |
80 000 |
|
Éves helyhasználati díjak (bérlet) |
|
|
sátor, asztal (Ft/m2/év) |
18 000 |
|
őstermelő (Ft/m2/év) |
11 000 |
|
Féléves helyhasználati díjak (bérlet) |
|
|
sátor, asztal (Ft/m2/félév) |
9 000 |
|
őstermelő (Ft/m2/félév) |
5 500 |
|
Árusító pad, sátor, egyéb árusítás földről |
|
|
napijegy bérlettel folyóméterenként |
1 100 |
|
bérlet nélkül folyóméterenként |
1 700 |
|
Őstermelők |
|
|
napijegy bérlettel folyóméterenként |
700 |
|
bérlet nélkül folyóméterenként |
900 |
|
Teherautó, büfékocsi (a Városháza mellett e célra kijelölt területen) |
|
|
éves bérlet (Ft/gépjármű/év) |
83 000 |
|
napijegy (Ft/gépjármű/nap) bérlettel |
9 000 |
|
bérlet nélkül |
12 000 |
|
Elektromos áram vételezése (Ft/nap) |
|
|
napijegy (nettó + 27%ÁFA összesen) |
1 500 |
|
Pótdíj (a kifizetett terület túllépése esetén) (Ft/m2) |
2 000 |
|
Alkalmi (ünnepi) árusítás díjtétele |
|
|
Alkalmi árusítás (Ft/m2) |
2 000 |
|
Pótdíj (a kifizetett terület túllépése esetén (Ft/m2) |
4 000 |
|
Búcsú díjtétele |
|
|
Napijegy (Ft/m2) |
2 500 |
|
Pótdíj (a kifizetett terület túllépése esetén (Ft/m2) |
5 000 |
|
Búcsú területén történő parkolás esetén |
|
|
személygépkocsi (Ft/nap) |
4 500 |
|
teherautó, vontatmány, pótkocsi, tréler (Ft/nap) |
9 000 |
A 15. § a 2010. évi CXXX. törvény 12. § (2) bekezdése alapján hatályát vesztette.