Berzék Község Önkormányzata Képviselő-testületének 1/2023. (II. 1.) önkormányzati rendelete

a helyi építési szabályzatról szóló 5/2002. (VI.21.) önkormányzati rendelet módosításáról

Hatályos: 2023. 02. 02- 2023. 02. 03

Berzék Község Önkormányzata Képviselő-testületének 1/2023. (II. 1.) önkormányzati rendelete

a helyi építési szabályzatról szóló 5/2002. (VI.21.) önkormányzati rendelet módosításáról

2023.02.02.

Berzék Község Önkormányzata Képviselő-testülete az épített környezet alakításáról és védelméről szóló 1997. évi LXXVIII. törvény 62. § (6) bekezdés 6. pontjában, valamint a 13. § (1) bekezdésében kapott felhatalmazás alapján, Magyarország helyi önkormányzatairól szóló 2011. évi CLXXXIX. törvény 13. § (1) bekezdésében meghatározott feladatkörében eljárva, - a településtervek tartalmáról, elkészítésének és elfogadásának rendjéről, valamint egyes településrendezési sajátos jogintézményekről szóló 419/2021. (VII. 15.) Korm. rendelet 78. § (1) bekezdés a) pontja felhatalmazása alapján - a településfejlesztési koncepcióról, az integrált településfejlesztési stratégiáról és a településrendezési eszközökről, valamint egyes településrendezési sajátos jogintézményekről szóló 314/2012. (XI. 8.) Korm. rendelet 42. § (4) bekezdésében biztosított véleményezési jogkörében eljáró i államigazgatási szervek véleményének kikérésével, a partnerségi egyeztetést követően a következőket rendeli el:

1. § A helyi építési szabályzatról szóló 5/2002. (VI. 21.) önkormányzati rendelet „Ipari Gazdasági terület” alcím címe helyébe a következő rendelkezés lép:

„Gazdasági ipari terület”

2. § A helyi építési szabályzatról szóló 5/2002. (VI. 21.) önkormányzati rendelet 30. §-a helyébe a következő rendelkezés lép:

„30. § (1) A Gip Gazdasági Ipari területre vonatkozó adatokat a IX. sz. táblázat tartalmazza.

(2) Egyéb előírások:

a) legkisebb zöldfelület 25 %, és a településkép-védelmi rendelet szerinti – nem bolyhosodó termésű –fafajokkal ültethető be.

b) környezetvédelmi besorolás

ba) levegőminőség: védett I.

bb) zajvédelmi: iparterület lakóterületekkel és intézményekkel vegyes terület

bc) rezgésvédelem: 40 m/s2

bd) épület alapozás eseti talajmechanikai szakvélemény alapján készítendő

c) Közművesítés: részleges

(3) A szennyvízszikkasztás átmenetileg sem engedhető meg. Káros és veszélyes anyagokat tartalmazó szennyvizek a közcsatornába, illetve szennyvízgyűjtőbe nem vezethetők. A káros és veszélyes anyagokat tartalmazó szennyvizeket a közcsatornába, ill. a zárt szennyvízgyűjtőbe vezetés előtt a telken belül előtisztítani, illetve előkezelni kell.

(4) Normatív szabályozás:

a) Terület beépíthető szintterület

aa) 1250 m2- ig 500 m2

ab) 1500 m2- ig 600 m2 és a fennmaradó terület 40 %-a

ac) 3000 m 2- ig 1000 m2 és a fennmaradó terület 30 %-a

b) A beépítettség maximum 50 % lehet.

(5) Nem kerülhet az ipari területre jelen esetben:

a) vörösiszap tároló

b) zagytér

c) veszélyes hulladéklerakó

(6) Eseti döntés alapján kerülhet a gazdasági ipari területre jelen esetben

a) műanyag feldolgozó

b) nyomtatott áramkör előállító üzem

c) üveggyártó

d) nehéz gépjárműjavító

e) hulladék feldolgozó

(7) A tiszta technológiák fogadását kell előtérbe helyezni!”

3. § (1) A helyi építési szabályzatról szóló 5/2002. (VI. 21.) önkormányzati rendelet az 1. melléklet szerinti táblázattal egészül ki.

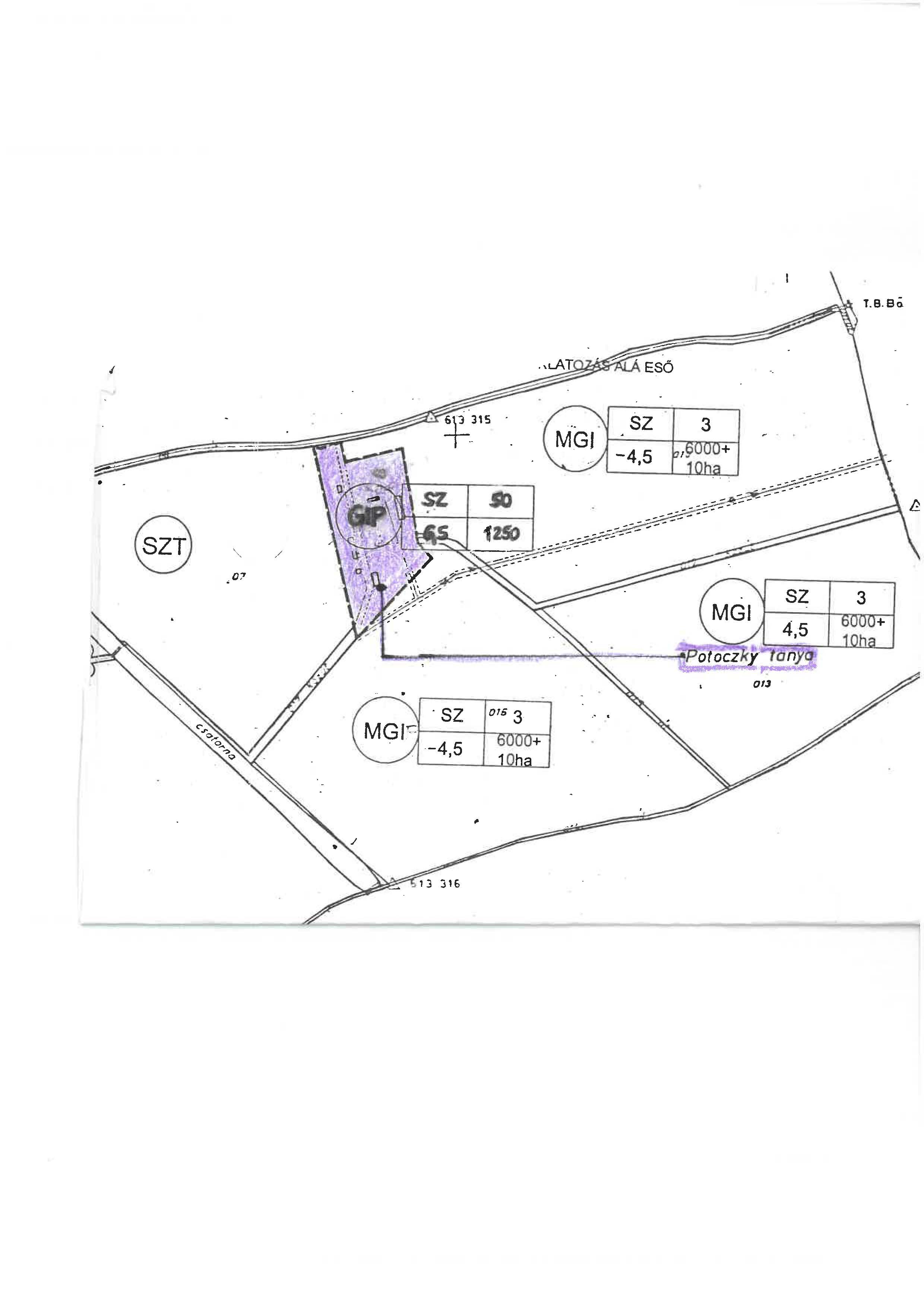
(2) A helyi építési szabályzatról szóló 5/2002. (VI. 21.) önkormányzati rendelet a 2. melléklet szerinti fedvényyel egészül ki.

4. § Ez a rendelet 2023. február 2-án lép hatályba.

1. melléklet az 1/2023. (II. 1.) önkormányzati rendelethez

táblázat
IX. sz. TÁBLÁZAT Gip Gazdasági Ipari terület

Beépítési mód

Övezeti jele

Legkisebb területe
m2

Legkisebb szélesség
m

Legkisebb mélység
m

Legnagyobb beépítettség
%

Építmény max. magasság
m

Szabadon álló

Gip

1250

25

50

50

6,5

2. melléklet az 1/2023. (II. 1.) önkormányzati rendelethez

fedvény
Fedvény
fedvény