Budapest Főváros XVII. kerület Rákosmente Önkormányzatának 27/2015 (VIII.27..) önkormányzati rendelete
a Budapest Főváros XVII. kerület MÁV Budapest-Hatvan (80-as számú) vasútvonal menti terület Kerületi Építési Szabályzatáról
Hatályos: 2015. 08. 28- 2018. 08. 30Budapest Főváros XVII. kerület Rákosmente Önkormányzatának 27/2015 (VIII.27..) önkormányzati rendelete
a Budapest Főváros XVII. kerület MÁV Budapest-Hatvan (80-as számú) vasútvonal menti terület Kerületi Építési Szabályzatáról
2015-08-28-tól 2018-08-31-ig
Budapest Főváros XVII. kerület Rákosmente Önkormányzatának Képviselő-testülete Magyarország Alaptörvénye 32. cikk (2) bekezdésében, a Magyarország helyi önkormányzatairól szóló 2011. évi CLXXXIX. törvény 13.§ (1) bekezdésének 1. pontjában és 23.§ (3) bekezdésében, (5) bekezdésének 5. és 6. pontjában valamint az épített környezet alakításáról és védelméről szóló 1997. évi LXXVIII. törvény 6.§ (1) bekezdésében, 13.§ (1) bekezdésében, 14/A.§ (2) bekezdés c) pontjában és 62.§ (6) bekezdés 6. pontjában kapott felhatalmazás alapján a településfejlesztési koncepcióról, az integrált településfejlesztési stratégiáról és a településrendezési eszközökről, valamint egyes településrendezési sajátos jogintézményekről szóló 314/2012. (XI. 8.) Korm. rendelet 42.§-ában biztosított véleményezési jogkörben eljáró szervek véleményének kikérésével a következőket rendeli el:
I. fejezet
Általános rendelkezések
- A rendelet területi hatálya
1.§
(1) E rendelet hatálya Budapest Főváros XVII. kerület Rákosmente, Budapest – Hatvan vasútvonal menti, az 1. számú mellékletet képező, Szabályozási Terven „tervezési terület határa” jellel körülhatárolt részére terjed ki (a továbbiakban: Terület).
2. Értelmező rendelkezések
2.§
E rendelet alkalmazásában:
Cégér: a rendeltetési egység megnevezését, jelképét (logo, piktogram, stb.) tartalmazó, az egységet magában foglaló épületen vagy az azzal érintett telken elhelyezett berendezés (szerkezet).
Cégfelirat, cégtábla: a rendeltetési egység megnevezését (nevét), funkcióját, tulajdonosát, az alapítás évét tartalmazó, az egységet magában foglaló épületen vagy az azzal érintett telken létesített felirat.
Fekvőtelek: az olyan lakótelek, melynek mélysége kisebb, mint az építési övezetre előírt legkisebb telekmélység, de nagyobb, mint az építési övezetre előírt legkisebb telekszélesség.
Fő rendeltetés szerinti épület: Az övezetben meghatározott rendeltetéseknek megfelelő épület.
Földszint: az építmény közvetlen terepszint feletti szintje. A földszint magasságát a szabályzat rendelkezéseinek értelmezése során, az épület szintszámmal meghatározott magasságának értelmezése során 4,5 méternek kell értelmezni. A telek szabályzatban megengedett földszintes 100%-os beépítettsége esetén ez az érték túlléphető.
Gerincmagasság:
a) A magastetős épület tetősíkjainak legmagasabb – általában – vízszintes metszésvonalának és meghatározott magassági alappont – ennek hiányában az épület meghatározott közterület felé néző építési vonalán kialakuló homlokzatsík terepcsatlakozási pontja – között függőlegesen mért távolság.
b) Lapostetős épület esetén a gerincmagasságot az épület legnagyobb magasságaként kell értelmezni, melyen túl csak kémény és felépítménynek nem minősülő szerkezet, illetve berendezés nyúlhat.
Ideiglenes jellegű építmény: Minden olyan épület, építmény, amelyre a kiadott építési engedélyre való hivatkozással az önkormányzat kártalanítás nélküli bontási kötelezettséget írhat elő.
Kiegészítő építmény: a szabályzat szempontjából kiegészítő építménynek minősül a terület, illetve a terület elsődleges rendeltetésének megfelelő építmény működését kiegészítő rendeltetésű építmény.
Közmű: víz-, gőz-, villany-, gáz-, hőenergia- termelő- és ellátó rendszer, melyet kiegészít a távközlés, az adat- és információátviteli-, távbeszélő-, távíró-, rádió-, televízió-, telex-, tengeralatti kábel üzemeltető rendszer, illetve az energia termelés rendszere.
Közterületről látható homlokzatszakasz: az épület közterület felőli homlokzata, az oldalhomlokzatok, továbbá zártsorú beépítés esetében legalább a közterülettel párhuzamos 20 m mély sávon belüli tűzfal.
Közvilágítás: a közterületek biztonsági célú megvilágítása.
Lapostető: a szabályzat szempontjából lapostetőként kell értelmezni a legfeljebb 10%-os lejtésű tetőt.
Pavilon (pavilon jellegű építmény): a szabályzat alkalmazása szempontjából a pavilon földszintes, 12 m2 bruttó alapterületet meg nem haladó legfeljebb 6,0 m épületmagasságú, általában szerelt szerkezetű meghatározott ideiglenes felhasználás céljára létesített építmény. Az alapterület számításánál az 1,5 m-nél nem nagyobb mértékben túlnyúló védőtető (árnyékoló) figyelmen kívül hagyható.
Reklám: reklámberendezés, valamely tevékenység ismertté tételére irányuló vagy valamely áru, termék megvásárlására vagy szolgáltatás igénybevételére ösztönző ábrát, feliratot, formát megjelenítő berendezés, szerkezet, hirdetés.
Szintterület: az összes bruttó szintterület és a telekterület hányadosa.
Teleknyúlvány: a földrészlet közterületi kapcsolatát biztosító, legalább 3 méter széles nyúlvány (nyél).
Tömör kerítés: olyan kerítés, melynek a kerítés síkjára merőleges átláthatósága 50%-nál nagyobb mértékben korlátozott.
Zavaró hatású tevékenység céljára szolgáló építmény: Minden olyan építmény, amely rendeltetésszerű használata a lakóterületre vonatkozó zaj, rezgés, légszennyezés, káros anyag kibocsátás normáit meghaladja, illetve a normatívához nem kötött, káros környezeti hatásai a lakások rendeltetésszerű használatát zavarja
3. A rendelet mellékletei
3.§
(1) Mellékletek:
1. számú melléklet: Szabályozási Terv (1:4000).
2. számú melléklet: Építési övezetek és övezetek beépítési paramétereit tartalmazó táblázatok
3. számú melléklet: Budapest Főváros XVII. kerület Rákosmente Önkormányzatának a Budapest XVII. kerület Rákosmente Városrendezési és Építési Szabályzatáról szóló 12/2014 (VI. 30.) önkormányzati rendeletének 5. számú melléklete „Kerületi Építési Szabályzatok”
4. Közterület alakításra vonatkozó előírások
4.§
(1) 6 m-nél keskenyebb közlekedési célú közterületről új gépjárműbehajtó nem létesíthető.
(2) A közterületek kialakítását az utcák berendezési tárgyainak - köztárgyak- elhelyezését is tartalmazó terv szerint kell elvégezni, a kertészeti tervekkel és az információs rendszer elemeivel összehangolva.
(3) Kerítés közműterület lekerítése céljából elhelyezhető.
(4) A közterületi pavilonok csak akkor létesíthetők (1. ábra), ha
a) az nem akadályozza a terület kerékpáros- és gyalogosközlekedését, azaz:
aa) az utca szélessége legalább 14 méter és
ab) a gyalogos-sáv szélessége (LG) – a biztonsági- és berendezési sávok megtartásával – legalább 2,5
méter és
ac) a járda teljes szélessége (LJ) legalább 5 méter és
ad) a gyalogos-sáv (LG) és a járda teljes szélességének (LJ) aránya nagyobb, mint 0,7.
b) a kapubejárat és az egyéb rendeltetési egységek kirakatainak és bejáratainak akadálytalan megközelítése biztosított,
c) az érintett ingatlan rendeltetésszerű használatát nem zavarja,
d) a pavilon legnagyobb szélessége nem haladhatja meg a 3,00 métert.
(5) Vendéglátó terasz közterületen vagy közterület céljára átadott magánterületen csak abban az esetben létesíthető, ha:
a) a gyalogos-sáv szélessége – a biztonsági- és berendezési sáv megtartásával – legalább 2,25 méter,
b) a gyalogos-sáv szélessége (LG) az árkád alatt legalább 1,5 méter és
c) a terasz legfeljebb 3 méter széles.

1. ábra: Pavilon elhelyezése
(6) GSM torony Lke-1 építési övezetekbe sorolt lakóterületen nem helyezhető el.
(7) Szobor, emlékmű, díszkút létesítéséhez a Főépítész véleményét be kell szerezni a városképi és közlekedési feltételek érvényesítése érdekében.
(8) Egyéb sátor, ponyva – övezeti előírás hiányában, ideiglenes jelleggel, kizárólag engedélyezett közterületi rendezvényekhez, legfeljebb 6 hónap időtartamra állítható fel településképi bejelentési eljárás lefolytatását követően nem közterületen felvonulási vagy árubemutatási célra.
(9) Cégtábla, cégér, cégfelirat csak településképi bejelentési eljárás lefolytatása alapján helyezhető el.
(10) Az épület homlokzatára függesztve vagy a közterületek felett átfeszítve csak idegenforgalmi, tudományos, kulturális, illetve nemzeti eseményekhez kötött rendezvények hirdetését szolgáló reklámhordozók, feliratok, valamint az időszakos ünnepi vásárok hirdetményei helyezhetők el, legfeljebb 30 napos időtartamra, a városképi szempontok érvényesítésével.
(11) A telefonfülke közvetlenül az épület homlokzati fala elé övezeti előírás hiányában nem telepíthető, helyét a járda berendezési sávjában kell biztosítani, úgy, hogy a visszamaradó járdafelület legalább 1,5 m legyen. Külső falsíkra szerelt telefon és a hozzátartozó védőtető csak a homlokzathoz igazodóan létesíthető.
(12) A járdavédelemre szolgáló akadályozó oszlopsornak, egyéb szerkezetnek legalább utcaszakaszonként egységes kivitelűnek kell lenni.
(13) Az üzlethelyiségek előtti árusításhoz tartozó közterületi kitelepülés csak hatósági engedély alapján helyezhető el. Az árubemutatásra szolgáló tartószerkezetek csak mobilak lehetnek, melyeket az árusítás befejeztével a közterületről el kell távolítani. Nyitott zöldséges-stand főútvonalak mentén nem helyezhető el.
(14) Árusító automata – a parkoló-, jegyárusító és bankjegy-automata kivételével – közterületen nem helyezhető el, kivéve a tömegközlekedési végállomások területeit.
(15) A vásári árusítóhelyek egyenként legfeljebb 3 m2 alapterületűek lehetnek, melyeket csak az esetenként külön meghatározott utcaszakaszokon és tereken, csoportos kialakítás esetén egységes terv alapján lehet elhelyezni.
(16) A közforgalmú közlekedési utak tömegközlekedési megállóhelyein utasvárók csak egységes terv szerint, és a járda szabad forgalmának akadályozása nélkül helyezhetők el.
5. Az épített környezet és a településkép alakítására vonatkozó előírások
A városkép védelme
5.§
(1) A városkép jellegzetességeinek, helyi karakterének megőrzése, a városkép védelme érdekében a környezettől idegen formai, szerkezeti megoldások nem alkalmazhatók.
(2) Új közművezetéket létesíteni, vagy – közmű rekonstrukció során – közművezetéket átépíteni, hálózatépítéssel járó karbantartást végezni (közép-, kisfeszültségű, valamint közvilágítású, villamos energia ellátási és vezetékes hírközlési hálózatokat) városkép szempontjából védett, városkép szempontjából egységes, illetve zártsorú beépítési móddal beépíthető területeken csak föld alatti elhelyezéssel szabad.
(3) A Területen összességében A0-ás méretet meghaladó plakát, reklám csak településképi bejelentési eljárás lefolytatása feltételével helyezhető el.
Az épített környezet értékeinek védelme
6.§
(1) A Területen az épület(ek) közterületről látható homlokzatainak részleges homlokzat-felújítása és átszínezése nem megengedett.
(2) Meglévő épület átalakítása, bővítése esetén bármely, az épület tömegének megváltoztatását eredményező beavatkozás esetén biztosítani kell, hogy az épület illeszkedjék a környezetébe.
(3) Védett területeken biztosítani kell a korábbi helyreállítási hibák korrekcióját, különös tekintettel a rálátásban érvényesülő épületekre.
6. A táji és a természeti környezet védelmére vonatkozó előírások
7.§
(1) A vízfolyások, mocsaras rét, legelők, bokrosodó területek növényzetét meg kell őrizni.
(2) Az összefüggő zöldfelületeket többszintes növényállomány-telepítésével - fa, cserje és gyepszint – kell kialakítani.
(3) A kötelező legkisebb zöldfelület számításánál
a) A növényzettel fedett terület alatt a szilárd burkolatú felületek nélküli, gyeppel, cserjékkel, fákkal betelepített beépítetlen terület sík vetülete értendő, ahol a vízfelület nem haladhatja meg a számított zöldfelület 15%-át.
7. Környezetvédelmi előírások
8.§
(1) A gazdasági- és mezőgazdasági területeken kívül üzemi jellegű pontszerű légszennyező forrás nem létesíthető.
(2) A Területen keletkező csapadék- és csurgalékvizek megfelelő elvezetéséről vagy szikkasztásáról a telek területén belül gondoskodni kell.
(3) Mélyfekvésű területen, terepszint alatti épületrészeket, egyéb építményeket csak geotechnikai és hidrogeológiai szakvélemény figyelembevételével lehet létesíteni. Az építési engedély iránti kérelem kötelező mellékletekén benyújtandó műleírásban ki kell térni (igazolni kell) a terepszint alatti vizek (talajvíz, rétegvíz)megfelelő elvezetésére, a talaj építési alkalmasságára.
(4) A Területen a feltöltés kialakítására a környezetet károsító anyag, illetve veszélyes hulladék nem alkalmazható.
(5) A Területen található, a környezetet károsító hulladékot a terület-előkészítés során el kell távolítani.
(6) A Területen keletkező hulladék átmeneti elszállításáig történő tárolásáról, elhelyezéséről a létesítmények kialakítása és átalakítása során úgy kell gondoskodni, hogy az a környezetet a vonatkozó hatályos rendelkezésekben megengedettnél nagyobb mértékben ne terhelje. A Területen keletkező veszélyes hulladék kezelését, elszállítását a vonatkozó hatályos rendelet előírásai szerint kell végezni.
8. Egyes sajátos jogintézményekkel kapcsolatos előírások
Telekalakítás
9.§
(1) Nyúlványos (nyeles) telek
a) a már meghatározó módon felosztott telektömbön belül,
b) az övezeti előírások figyelembevételével,
c) egymás mellett maximálisan 2 teleknyéllel,
csak akkor alakítható ki, ha a kialakítandó telek más módon közterületről, vagy magánútról nem közelíthető meg. A tömbbelsőben kialakítandó, önálló helyrajzi számú mélygarázs, illetve zöldterület létesítésére is alkalmas önálló nyúlványos telek minden esetben kialakítható. Új telektömb kiszabályozásánál nyúlványos telek nem alakítható ki. A teleknyúlvány (nyél) legfeljebb 40 méter hosszú lehet.
(2) Fekvőtelek esetében lakóterületen:
a) az előkert mélysége az érintett utcaszakaszon kialakult mérték, de legalább 3 méter, amennyiben a telek átlagos szélessége 15 méternél kisebb, egyéb esetben 5 méter,
b) a hátsókert mélysége legalább az oda néző homlokzat tényleges magassága, de legalább 4 méter az építmények közötti legkisebb távolságok megtartásával.
Elővásárlási jog
10.§
(1) Budapest Főváros XVII. kerület Rákosmente Önkormányzatát elővásárlási jog illeti meg az 1. számú függelékben meghatározott ingatlanokra – az épített környezet alakításáról és védelméről szóló törvény, és a vonatkozó jogszabályok keretei között – a hatásköri jegyzékben meghatározott önkormányzati feladatok ellátása, valamint az alábbi célok megvalósítása érdekében:
a) a település működésének biztosítása,
b) a települési értékek megóvása,
c) a zöldfelületi rendszer fejlesztése és fenntartása,
d) a városkép kedvezőbb alakítása,
e) a közlekedés és parkolás javítása.
Kisajátítás
11.§
(1) A közérdek érvényesítése, a településszerkezet kedvezőbb alakítása és a 10. § (1) bekezdésben meghatározott közérdekű célok megvalósítása érdekében, az alább meghatározott ingatlanok esetében kisajátítási jog keletkezik:
a) a KT övezetbe sorolt területek valamennyi telke, vagy érintett telekrésze,
b) a 138575/10 hrsz-ú telek Ev övezettel érintett része.
9. Közművek előírásai
12.§
(1) A Területen –, az övezetekre vonatkozó előírásokban megengedettek kivételével – építmények csak a teljes közművesítettséggel ellátott telkeken helyezhetők el.
(2) A szükséges közműkiváltásokat követően a használaton kívüli felhagyott vezetékeket és műtárgyakat el kell távolítani, felhagyott közművezeték, létesítmény sem terepszint felett, sem terepszint alatt nem maradhat.
(3) A telkeken keletkező szennyvizet, kizárólag a közcsatorna megvalósulásáig, ideiglenesen, ellenőrizhetően zártrendszerű szennyvíztározóban kell gyűjteni. Zártrendszerű szennyvíztározónak (közműpótlónak) tekinthető, ha a tározó vízzárósága az üzemelés alatt folyamatosan biztosított, az összegyűjtött szennyvíz elszállításának műszaki és tárgyi feltételei, valamint a szennyvíz tisztítása, és a tisztított szennyvíz elhelyezése biztosított.
(4) A telkeken keletkező csapadékvizet
a) a telken belül kell elhelyezni, illetve felhasználni (szikkasztás, locsolás, öntözés, „szürkevíz”, illetve a felhasználásig történő tárolás).
b) közterületi csapadékvíz elvezető rendszerbe bekötni csak abban az esetben szabad, ha az a) pontban meghatározott felhasználás igazoltan nem oldható meg. Ebben az esetben az 5000 m2-t meghaladó telekterületen megvalósuló beruházás esetén a csapadékvíz elvezetését biztosító rendszer szállítóképességét a végbefogadóig ellenőrizni kell. A beruházással keletkező többlet felszíni víz elvezetését a végbefogadóig biztosítani kell.
c) a szennyvízcsatornába bevezetni nem szabad.
(5) A felszíni vizek biztonságos elvezetését a tereprendezés, a (felszíni) vízelvezető-rendszer és a szivárgó-rendszer együttes kezelésével kell biztosítani.
(6) Rétegvíz előfordulása miatt a Területen minden ezzel összefüggő építési tevékenység csak ennek figyelembevételével végezhető.
(7) Önálló antennatartó szerkezet (torony) a Területen nem helyezhető el. Épületre szerelt antennatartó szerkezet:
a) csak a Rákos-patak menti sétányról nem látható módon és
b) csak a Pesti útról nem látható módon
helyezhető el.
10. Építmények funkciója és kialakítása
Funkcióra vonatkozó előírások
13.§
(1) A Terület nyugalmának biztosítása érdekében – a környezetet zavaró hatású tevékenység céljára szolgáló új építmény nem helyezhető el az alábbi területfelhasználási egységek területén:
a) lakóterületek,
b) intézményterületek.
(2) Új kerthelyiséggel üzemelő, illetve új közösségi szórakoztató építmény a gyűjtőút vagy annál magasabb rendű út mentén is csak abban az esetben létesíthető, ha a zaj elleni megfelelő védelem méretezett védőtávolság kialakításával biztosítható, figyelembe véve a vagyonvédelmi szempontokat is.
(3) Új kereskedelmi, illetve raktározási célú helyiségeket is magában foglaló építmény úgy létesíthető, ha a rakodási zaj ellen szükséges megfelelő védelem zárt és fedett rakodóudvarral vagy méretezett védőtávolság kialakításával biztosítható.
A beépítési módok sajátos előírásai
14.§
(1) Szabadonálló beépítés:
Az oldalkertnek a telekhatártól számított 3,0 méteres sávja a terepszint alatt nem építhető be, kivéve, ha a terepszint alatti gépkocsitároló kialakítása, parkoló megközelítése másként nem biztosítható. A meglévő és a szomszédos telken lévő növényzet megóvásának figyelembe vételével az egyik oldalkert a be- illetve kihajtás biztosítása érdekében a terepszint alatt beépíthető.
(2) Oldalhatáron álló beépítés:
a) Oldalhatárosan kialakított épület oldalhatáron álló homlokzatának magassága (F/L) nem haladhatja meg az övezetre előírt épületmagasság értékét.
b) Az oldalhatáros beépítési mód szerinti építési helyen belül az épület egyik építési vonalának az oldalsó telekhatártól legalább 1,0 m-re kell elhelyezkedni, amennyiben az építési telek 12 m-nél szélesebb.
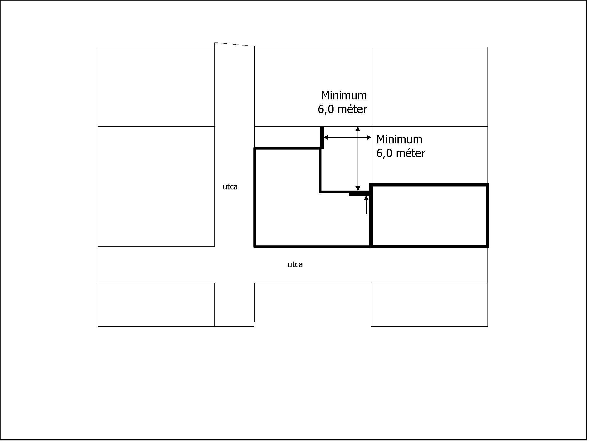
(3) Zártsorú beépítés:
Saroktelek esetén a közterületi határvonallal párhuzamos hátsó építési vonal a nem közterületi telekhatároktól mért legalább 6,0 méteres beépítetlen terület biztosításával alakítható ki.

2. ábra: Az épület kialakítása saroktelken, zártsorú beépítési mód esetén
Az elő-, oldal- és hátsókert előírásai
15.§
(1) Az előkert mérete szabályozási terv eltérő rendelkezése hiányában:
a) 5,0 méter, vagy
b) a túlnyomó részben beépült telektömbben az érintett utcaszakaszon kialakult méret, melyet az engedélyezési dokumentáció helyszínrajzán igazolni kell.
c) továbbá az épületnek legalább 40%-ban az előkert által meghatározott építési vonalon kell állnia.
(2) Az oldalkert mérete – szabályozási terv eltérő rendelkezése hiányában – az övezetre előírt épületmagasság értékének fele,
a) de szabadonálló és ikres beépítés esetében legalább 3,0 méter;
b) oldalhatáron álló, illetve hézagos zártsorúan kialakított építmény esetében – ha az egyik érintett homlokzaton a jogszabályban megengedett szellőzőnyílások kivételével nyílás nincs, az építmények közötti legkisebb távolságok megtartásával – legalább 5,0 méter.
(3) A hátsókert mérete szabályozási terv eltérő rendelkezése hiányában:
a) Az épület arra néző homlokzatának átlagos magasságával azonos érték, de legalább 6,0 m.
b) A zártsorú beépítési módú építési helyen nem zártsorúan kialakított épület esetében az épületek közötti legkisebb távolságot az illetékes szakhatóság(ok) előírásai alapján kell meghatározni.
d) A fő funkciót kiegészítő építmény lakóövezetben a hátsó telekhatárok mentén is létesíthető az oldalsó telekhatárok csatlakozásánál, összevont módon.
11. Járművek elhelyezése
16.§
(1) A Területen a parkolást az OTÉK-ben meghatározottak szerint kell megoldani.
(2) A 20 db, vagy annál több gépkocsit befogadó parkoló felületekről és az 500 m2-nél nagyobb, burkolt gazdasági területek belső felületéről összegyűjtött csapadékvíz csak hordalék és olajfogó műtárgyon keresztül vezethető a csapadékvíz elvezető hálózatba.
(3) Közintézmények, kereskedelmi-szolgáltató egységek, iskolák mellett, jogszabályban meghatározott számú, egységes kivitelű kerékpártolót kell elhelyezni. Közterületi kerékpártároló járdán csak akkor helyezhető el, ha mellette legalább 1,5 m szabad szélességű járda biztosítható.
12. Egyéb építmények elhelyezése
17.§
(1) Lakóterületen a fő rendeltetést kiegészítő, hátsó telekhatár mentén elhelyezett épületre az alábbi előírások vonatkoznak:
a) funkciója kizárólag a kertműveléshez kapcsolódhat; gépkocsi tárolásra is szolgálhat, ha az bizonyíthatóan másképp nem oldható meg;
b) kialakítása kerti építmény jellegű lehet, a telekhatártól 1,0 méteren belül;
c) anyaghasználatnál a fém és a műanyag nem megengedett;
d) az övezetre vonatkozó előírások betartása mellett legfeljebb 30m² alapterületű lehet;
e) az építmény magassága, és telekhatárra eső homlokzatának magassága nem haladhatja meg a 3,0 métert;
(2) Sportterület időjárás elleni védelmét szolgáló sátor csak évente október 1. és április 30. közti időtartamra, ideiglenesen létesíthető.
(3) Rendeltetésétől eltérően használt lakókocsi a Területen, közterületről látható helyen nem helyezhető el.
(4) Hulladékgyűjtő építmény, -tartály a Területen – a közterületi hulladékgyűjtő tartály kivételével – csak kerítéssel vagy támfallal, támfallétesítménnyel egybeépítve létesíthető.
II. fejezet
Részletes építési övezeti és övezeti előírások
1. Beépítésre szánt területek építési övezetei
Intenzív kertvárosias lakóterületek
18.§
(1) A kertvárosias lakóterületi építési övezetek területén, ha az övezeti előírások másként nem rendelkeznek:
a) lakóépület,
b) szálláshely-szolgáltató épület,
c) közintézmény épület (művelődési-, kulturális-, oktatási-, igazgatási-, egészségügyi épület),
d) irodaépület,
e) sportépítmény, valamint
f) maximum 2000 m2 bruttó szintterületű önálló kiskereskedelmi épület helyezhető el.
(2) Az (1) bekezdésben megengedett fő rendeltetésű épületeken belül a fő rendeltetést kiszolgáló helyiségeken kívül önálló rendeltetési egységként, az (1) bekezdésben felsorolt funkciókörökön túlmenően:
a) vendéglátási, kiskereskedelmi,
b) irodai, szolgáltatási,
c) igazgatási, kulturális, művelődési és oktatási célú,
d) egészségügyi, szociális, egyházi,
e) nem zavaró hatású kézműipari és kisipari
funkciók is elhelyezhetők az övezeti előírások figyelembevételével, a szükséges parkolószám telken belüli biztosításával.
(3) A kertvárosi építési övezetek területén önálló ipari, raktározási, nagykereskedelmi épület, valamint:
a) ipari, nagykereskedelmi funkciójú önálló rendeltetési egységet tartalmazó egyéb rendeltetésű épület,
b) nem a fő rendeltetést vagy a megengedett önálló rendeltetési egységet szolgáló önálló raktározási rendeltetési egység
nem létesíthető, meglévő épület használati módját ilyen célra megváltoztatni nem lehet.
(4) Az övezetek területén minden 300 m2 telekterület után – ha az övezeti előírások másként nem rendelkeznek – 1 db lakás vagy önálló rendeltetési egység építhető az övezeti jellemzők keretei között, de telkenként legfeljebb 4 db és épületenként legfeljebb 2db lakás vagy önálló rendeltetési egység létesíthető.
(5) Az építési övezetek területén a 14,0 m és annál szélesebb telkek esetén új épület és meglévő épület-bővítés utcára merőleges mélysége, közintézményi funkció esetén nem lehet több mint 25 méter, egyéb funkció esetén pedig nem lehet több 20,0 méternél.
(6) Az övezetben a kialakítható legnagyobb telekméret – ha az övezeti előírások másként nem rendelkeznek – a vonatkozó övezeti kialakítható legkisebb telek területének 2,5-szerese lehet.
(7) Az építési övezetben lakástól eltérő rendeltetésű egység kialakítása csak előkertből megközelítetten történhet.
(8) Az építési övezetek területén kerítést az alábbiak szerint kell kialakítani:
a) utcai kerítést kialakult területen az egységes utcaképi megjelenés érdekében - fotókkal és műleírással igazolhatóan - az utcára jellemző anyagú és arányú, de legalább 30 % -ban áttört kialakítással, legfeljebb 1,80 m magassággal,
b) az utcai kerítésen legfeljebb 2 db, egyenként legfeljebb 3,0 m szélességű, vagy 1 db legfeljebb 4,0 méter szélességű gépkocsi behajtást biztosító kapu, és legfeljebb 2 db, egyenként legfeljebb 1,5 m szélességű személykapu létesíthető,
c) hátsó és oldalsó telekhatáron tömör kerítés a szomszéd jogokra tekintettel nem létesíthető, kivéve a szomszédjogok védelme esetét, amikor környezetvédelmi okokból ez indokolt. Ebben az esetben hátsó és oldalsó telekhatáron a tömör kerítés legfeljebb 2,5 m magasságú lehet. A 2,0 m-nél magasabb tömör kerítés alapterülete a telek beépítettségébe beszámítandó.
(9) Az építési övezetek területén telkenként legfeljebb 1 db, 2,2m épületmagasságú hulladéktartály tároló létesíthető, kerítéssel egybeépített kialakítással. A hulladéktartály tároló alapterülete 3, vagy annál kevesebb lakás esetén legfeljebb 1,5 m2, 4, vagy annál több lakás esetén az alapterület 0,5 m2/lakás lehet.
(10) Az építési övezetek területén, az épületen belül, lakásonként legalább 2m2 alapterületű szerszám-, szánkó tárolót kell kialakítani a garázson túlmenően. A tároló a garázzsal közösen is kialakítható.
(11) Az övezet kialakult beépítésű területein
a) az új épületek a szűkebb környezet karakteréhez illeszkedő építészeti kompozícióval, tömegképzéssel, homlokzati architektúrával létesíthetők. Anyaghasználatoknál, homlokzati színválasztásnál is a meglévő építészeti értékekhez kell igazodni.
b) a meglévő épületek felújítása, bővítése, illetve rekonstrukciója esetén a meglévő értékeket át kell menteni.
c) foghíjtelken, ha a szomszédos épület korlátozza a tervezett épület építési határvonalon történő elhelyezését, a szomszédos épületek közötti telepítési távolság a kötelező védőtávolság – tűztávolság – mértékéig csökkenthető.
d) Bővítéssel vagy megosztással keletkező új lakást megközelíteni, csak belső lépcsőházból vagy zárt légterű külső lépcsőházból lehet.
(12) Az övezetben új épület építése esetén az előírt gépjármű férőhely legalább 50 %-át főépületen belül kell biztosítani.
(13) Az övezetben, telken belül négy, vagy annál több gépjármű elhelyezési kötelezettség esetén a megközelítésükre illetve elhelyezésükre szolgáló burkolt felület csak útszegélyes, vízzáró burkolattal létesíthető. A felület csapadékvize csak olaj- és homokfogó műtárgyon keresztül szikkasztható el, vagy kerülhet a befogadóba.
(14) Az övezetben, telken belüli három, vagy annál kevesebb gépjármű elhelyezési kötelezettség esetén a megközelítésükre illetve elhelyezésükre szolgáló burkolt felület víz- és légáteresztő burkolattal is létesíthető.
(15) Az övezet területén új épületet elhelyezni, rendezett terepszintjét kialakítani a meglévő terepszint figyelembe vételével lehet. Az új beépítésű telkek rendezett terepszintjének a szomszédos telkek rendezett terepszintjével azonos szinten kell csatlakoznia a telekhatárok mentén.
Kertvárosias, intenzív beépítésű lakóterületek építési övezetei
19.§
(1) Lke-1/01 jelű építési övezet előírásai:
a) Az építési övezet az intenzív kertvárosias területek, jellemzően alacsony sűrűségű, szabadonálló beépítési mód szerint beépített, vagy beépíthető területe.
b) Az építési övezet területén az egy lakóépületben elhelyezhető lakások száma az 500 m2 –t meg nem haladó méretű telken 1. Az 500 m2 –t meghaladó méretű telken annyi, hogy minden lakásra, illetve önálló rendeltetési egységre legalább 300 m2 telekterület jusson, de legfeljebb 4 lakás, illetve önálló rendeltetési egység lehet. 4 lakás, illetve önálló rendeltetési egység elhelyezése esetén épületenként legfeljebb 2 lakás, illetve önálló rendeltetési egység helyezhető el.
c) Az övezeti paramétereket a 2. számú melléklet 1. számú táblázata tartalmazza.
(2) Lke-1/02 jelű építési övezet előírásai:
a) Az építési övezet az intenzív kertvárosias területek, jellemzően alacsony sűrűségű, oldalhatáron álló beépítési mód szerint beépített, vagy beépíthető területe.
b) A telken legfeljebb 1 db fő rendeltetés szerinti épület helyezhető el. Az épületben 3 rendeltetési egység létesíthető.
c) Az övezeti paramétereket a 2. számú melléklet 1. számú táblázata tartalmazza.
(3) Lke-1/03 jelű építési övezet előírásai:
a) Az építési övezet az intenzív kertvárosias területek, kialakult, átlagos sűrűségű, szabadonálló beépítési mód szerint beépített, vagy beépíthető területe.
b) Az építési övezet területén az egy lakóépületben elhelyezhető lakások száma az 500 m2 –t meg nem haladó méretű telken 1. Az 500 m2 –t meghaladó méretű telken annyi, hogy minden lakásra, illetve önálló rendeltetési egységre legalább 300 m2 telekterület jusson, de legfeljebb 4 lakás, illetve önálló rendeltetési egység lehet. 4 lakás, illetve önálló rendeltetési egység elhelyezése esetén épületenként legfeljebb 2 lakás, illetve önálló rendeltetési egység helyezhető el.
c) Az övezeti paramétereket a 2. számú melléklet 1. számú táblázata tartalmazza.
Intézményi, jellemzően szabadonálló jellegű területek építési övezete
20.§
(1) Vi-2/01 jelű építési övezet előírásai:
a) Az építési övezet az intézményi, jellemzően szabadonálló jellegű területek részletesen szabályozott övezete.
b) Az övezeti paramétereket a 2. számú melléklet 2. számú táblázata tartalmazza.
Gazdasági, jellemzően kereskedelmi, szolgáltató területek építési övezetei
21.§
(1) Gksz-1/ 01 jelű építési övezet előírásai:
a) Az építési övezet a gazdasági, jellemzően kereskedelmi, szolgáltató területek részletesen szabályozott, szabadonálló beépítési móddal beépített, vagy beépíthető területe.
b) Az építési övezet területén lakóépület nem helyezhető el.
c) A területen önálló terepszint alatti építményként csak gépjárműtároló helyezhető el.
d) Épületenként legfeljebb 1 db világító (neon) berendezést szabad elhelyezni.
e) Az övezeti paramétereket a 2. számú melléklet 3. számú táblázata tartalmazza.
(2) Gksz-1/02 jelű építési övezet előírásai:
a) Az építési övezet a gazdasági, jellemzően kereskedelmi, szolgáltató területek részletesen szabályozott, zártsorú beépítési móddal beépített, vagy beépíthető területe.
b) Az építési övezet területén lakóépület nem helyezhető el. A vasútvonal szélső vágányától számított 50 m távolságon belül lakás nem létesíthető, egyéb építmény csak a külön jogszabályokban előírt feltételek szerint helyezhető el.
c) A területen önálló terepszint alatti építményként csak gépjárműtároló helyezhető el.
d) A jogszabályban meghatározott számú gépjárművet elsősorban telken belül kell elhelyezni, de a parkoló-mérlegbe a Hajdúcsárda utcában elhelyezhető parkolóhelyek is beszámíthatók.
e) A szabályozási terven jelölt előkert és az építési vonal közötti területen: kerti építmény, nyitott fedett terasz, védőtető helyezhető el, melynek vetületi területe a beépítés mértékébe beszámítandó.
f) A területen biztosítani kell a hátsókertek közterület felőli, gépjárművel történő megközelítését (áthajtó, hézagosan zártsorú beépítés).
g) Épületenként legfeljebb 1 db világító (neon) berendezést szabad elhelyezni.
h) Az övezeti paramétereket a 2. számú melléklet 3. számú táblázata tartalmazza.
(3) Gksz-1/03 jelű építési övezet előírásai:
a) Az építési övezet a gazdasági, jellemzően kereskedelmi, szolgáltató területek részletesen szabályozott, szabadonálló beépítési móddal beépített, vagy beépíthető területe.
b) Az építési övezet területén lakóépület nem helyezhető el.
c) Az övezeti paramétereket a 2. számú melléklet 3. számú táblázata tartalmazza.
(4) Gksz-1/04 jelű építési övezet előírásai:
a) Az építési övezet a gazdasági, jellemzően kereskedelmi, szolgáltató területek részletesen szabályozott, zártsorú beépítési móddal beépített, vagy beépíthető területe.
b) Az építési övezet területén elhelyezhető épületek zárt sora helyenként, legalább 12 m-es épületközzel megszakítható. Ha az épületköz területe két telekre esik, abból legalább 3 m széles résznek egy telekre kell esnie. Az épületeket ebben az esetben a közre néző oldalukon homlokzattal kell kialakítani.
c) A Pesti út melletti előkertben a telek lehatárolására kerítés nem építhető.
d) Az építési övezet területén lakóépület nem helyezhető el.
e) A fő funkciójú épületek földszintjén a Pesti út felőli homlokzaton csak a kereskedelemmel és szolgáltatással, ill. azok bejáratával kapcsolatos helyiségek helyezhetők el. Mellékhelyiség, iroda elhelyezése nem megengedett. Az épületek gazdasági kiszolgálása /árufeltöltés/ csak a szervizút felől, az É-i oldalról alakítható ki.
f) A jogszabályban előírt gépjármű-férőhely elhelyezést az övezet területén kialakított közös parkolóban kell biztosítani.
g) Az övezet területén a Pesti út és a Keresztúri út felé új útcsatlakozás vagy kapubehajtó közvetlenül nem létesíthető.
h) Az övezet területén kerítés nem létesíthető.
i) Az övezeti paramétereket a 2. számú melléklet 3. számú táblázata tartalmazza.
Gazdasági, jellemzően raktározást, termelést szolgáló területek építési övezetei
22.§
(1) Gksz-2/05 jelű építési övezet előírásai:
a) A gazdasági, jellemzően raktározást, termelést szolgáló területek szabadonálló beépítési móddal beépített, vagy beépíthető terület építési övezete.
b) Az övezeti paramétereket a 2. számú melléklet 3. számú táblázata tartalmazza.
(2) Gksz-2/06 jelű építési övezet előírásai:
a) Az építési övezet a gazdasági, jellemzően raktározást, termelést szolgáló területek, részletesen szabályozott, szabadonálló beépítési móddal beépített, vagy beépíthető területe.
b) Védőtávolságot nem igénylő üzemi jellegű tevékenység folytatható, raktározás vagy egyéb kereskedelmi, szolgáltató és ellátó funkcióhoz szükséges építmények helyezhetők el, amelyek káros környezeti hatásait a telekhatáron belül, a hatályos határértékek alatt maradnak.
c) Az új telekalakítások, azok telekkönyvi bejegyzése csak a meglévő közműhálózat fennmaradását és működését biztosító, telkenkénti szolgalmi jogok bejegyzésével együtt történhet.
d) A Cinkotai úti telekhatártól mért 6,0 m széles sávjában, illetve a Cinkotai út 22,0 m-re szélesített sávjában új, a Cinkotai úttal párhuzamos nyomvonalú közművezeték, földalatti vagy föld feletti építmény nem helyezhető el. Az ebben a sávban meglévő közművek üzemeltetése, felújítása, új csatlakozások készítése, valamint új közműbekötések merőleges átvezetése lehetséges.
e) Portaépület a kerítéssel összeépítve vagy önállóan kizárólag a személy- és teherbejárással kapcsolatos funkciók részére helyezhető el és az elhelyezésére szolgáló legfeljebb 150 m2-es területet építési helyként kell kezelni.
f) Az építési övezetben a gazdasági területeken megengedett építmények, illetőleg épületek közül a nem jelentős zavaró hatású gazdaság tevékenységi célú épületek, a kereskedelem építményei, az ellátó, szolgáltató építmények és a kutatás fejlesztés építményei helyezhetők el.
g) Üzemi termelő funkció nem telepíthető a Cinkotai úttal párhuzamos 95 m-es sávon belül, kivéve a meglévő, megmaradó üzemi épületet és annak engedélyezett bővítését.
h) Tűz- és robbanásveszélyes anyag tárolása esetén a Cinkotai úti telekhatárral párhuzamosan 150 m-es védősáv alakítandó ki és ezen a sávon belül a még be nem épített telek esetében új lakóépület nem helyezhető el.
i) A Liget sori telekhatárt kísérő 20 m széles kötelező zöldsávban lévő szivattyúház, vízmérőház és vasúti kimelegítőház kubatúrája szükség esetén bővíthető. Az itt található többi épület kubatúrája nem bővíthető.
j) Az építési hely határától függetlenül földalatti és föld feletti tároló tartályok az építménytávolságok és tűzrendészeti előírások megtartásával helyezhetők el.
k) A 129005/3 hrsz.-ú telken az f) pontban meghatározottakon túlmenően parkolóházak, üzemanyagtöltő, autómosó építményei helyezhetők el, a területen tárolt gipsziszap eltávolítása után.
l) Az 129005/20 és 129005/21 hrsz.-ú telkeken a gazdasági területeken megengedett építmények, illetőleg épületek közül a nem jelentős zavaró hatású gazdaság tevékenységi célú épületek, a kereskedelem építményei; az ellátó, szolgáltató építmények; és a kutatás fejlesztés építményei, parkolóházak, üzemanyagtöltő, autómosó építményei helyezhetők el. A telkek bejáratához egy db közös útcsatlakozás készülhet a Cinkotai útról.
m) Az övezeti paramétereket a 2. számú melléklet 3. számú táblázata tartalmazza.
(3) Gksz-2/07 jelű építési övezet előírásai:
a) A gazdasági, jellemzően raktározást, termelést szolgáló területek részletesen szabályozott, szabadonálló beépítési móddal beépített, vagy beépíthető terület építési övezete.
b) Az építési övezetben csak a mezőgazdasági termeléssel kapcsolatos üzemi építmények - terményfeldolgozó, tároló - és az azokat kiszolgáló építmények helyezhetők el.
c) A főrendeltetést kiszolgáló vagy kiegészítő épület elhelyezése érdekében (pl. porta) az előkert terhére az építési hely kiegészíthető.
d) Az építési övezet területén a meghatározott oldalkert legkisebb mérete: 15 m, a legkisebb hátsókert mérete: 15 m.
e) Az épületekre használatbavételi engedélyt kiadni csak a környezetrendezési munkák együttes elkészülte után lehet.
f) A burkolt felületek mértéke legfeljebb a telek 25 %-a lehet.
g) A zöldség- és gyümölcsfeldolgozó üzem vízellátása egyedi kutakról biztosítható.
h) A területen önálló szennyvíztározó nem létesíthető.
i) Zöldség- és gyümölcsfeldolgozó üzem területén belül a létesítendő parkolók mentén fasorok kialakítása szükséges, a szabályozási terven jelölt 25 m széles kötelező zöldsáv telepítése kötelező, a Budapest-Hatvan vasútvonal felé eső telekhatárnál ligetes fásítást kell végezni.
j) Az övezeti paramétereket a 2. számú melléklet 3. számú táblázata tartalmazza.
(4) Gksz-2/08 jelű építési övezet előírásai:
a) A gazdasági, jellemzően raktározást, termelést szolgáló területek, részletesen szabályozott,
szabadonálló beépítési móddal beépített, vagy beépíthető terület építési övezete.
b) A építési övezet területén a gazdasági területeken megengedett építmények, illetőleg épületek közül a nem jelentős zavaró hatású gazdaság tevékenységi célú épületek, a kereskedelem építményei, az ellátó, szolgáltató építmények, a kutatás fejlesztés építményei, parkolóházak, üzemanyagtöltő, autómosó építményei helyezhetők el.
c) Az előkertekben kizárólag a személy- és teherbejárással kapcsolatos funkciók részére helyezhető el portaépület.
d) Az övezeti paramétereket a 2. számú melléklet 3. számú táblázata tartalmazza.
Közlekedéshez kapcsolódó épületek elhelyezésére szolgáló különleges terület
építési övezete
23.§
(1) K-közl-1 jelű építési övezet előírásai:
a) A közlekedési különleges területen szabadonálló beépítési móddal beépíthető terület építési övezete.
b) Az építési övezet területén a megengedett építmények, illetőleg épületek közül a közlekedési, kereskedelmi, szolgáltató építmények, parkolóházak helyezhetők el.
c) Az előkertekben kizárólag a személy- és teherbejárással kapcsolatos funkciók részére helyezhető el portaépület.
d) Az övezetben telkeket csak a jelenlegi telekhatárok figyelembevételével összevonni lehet.
e) Az övezeti paramétereket a 2. számú melléklet 4. számú táblázata tartalmazza.
2. Beépítésre nem szánt területek övezetei
Közlekedési területek
24.§
(1) KÖu-1/01 jelű övezet előírásai:
a) Az övezet a közlekedési célú közterületek nyomvonal jellegű jelentős közlekedési építmények (gyorsforgalmi utak) elhelyezésére szolgáló területe.
b) Az övezeti paramétereket a 2. számú melléklet 5. számú táblázata tartalmazza.
(2) KÖu-3/01 jelű övezet előírásai:
a) Az övezet a közlekedési célú közterületek nyomvonal jellegű jelentős közlekedési építmények (másodrendű főutak) elhelyezésére szolgáló területe.
b) A 138575/9 és 138575/10 hrsz-ú telkek határán a lakóterület védelme érdekében zajvédő fal létesítendő.
c) Az övezeti paramétereket a 2. számú melléklet 5. számú táblázata tartalmazza.
(3) KÖu-4/01 jelű övezet előírásai:
a) Az övezet a közlekedési célú közterületek nyomvonal jellegű jelentős közlekedési építmények (településszerkezeti jelentőségű gyűjtőutak) elhelyezésére szolgáló területe.
b) Az övezeti paramétereket a 2. számú melléklet 5. számú táblázata tartalmazza.
(4) KÖk-01 jelű övezet előírásai:
a) Az övezet a közlekedési célú területek vasúti létesítmények elhelyezésére szolgáló területe.
b) Az övezetben az Lke és a Vi övezetek mentén zajgátló védőfal létesítendő.
c) Az övezeti paramétereket a 2. számú melléklet 5. számú táblázata tartalmazza.
Közterületek
25.§
(1) KT-01 jelű övezet előírásai:
a) Az övezet az egyéb közterületek jelölésére szolgál.
b) Az övezeti paramétereket a 2. számú melléklet 5. számú táblázata tartalmazza.
Erdőterületek előírásai
26.§
(1) Az erdőterületek övezetein fákkal borított területén – az erdőről, az erdő védelméről és az erdőgazdálkodásról szóló 2009. évi XXXVII. törvény hatálya alá tartozó erdők esetében – telekalakításhoz, építmények elhelyezéséhez az erdészeti hatóság előzetes hozzájárulása szükséges.
(2) Az övezetek területén csak ideiglenes (drótfonat), lábazat nélküli kerítés létesíthető a beépíthető és kialakítható legkisebb telekméret esetén, amennyiben annak legkisebb szélesessége meghaladja a 30m-t.
Közjóléti erdők
27.§
(1) Ek-0 jelű övezet
a) Az övezet a közjóléti erdők 1:1000 léptékű Szabályozási Terv alapján beépíthető területek övezete.
b) Az övezet területén a OTÉK-ban meghatározott építmények Szabályozási Terv alapján helyezhetők el.
c) Az övezeti paramétereket a 2. számú melléklet 6. számú táblázata tartalmazza.
(2) Ek-01 jelű övezet
a) Az övezet a közjóléti erdők területek övezete.
b) Az övezeti paramétereket a 2. számú melléklet 6. számú táblázata tartalmazza.
(3) Ek-02 jelű övezet
a) Az övezet a közjóléti erdők részletesen szabályozott területe.
b) Az övezet területét erdészeti üzemterv alapján erdőgazdálkodási területként kell fenntartani.
c) Az övezeti paramétereket a 2. számú melléklet 6. számú táblázata tartalmazza.
(4) Ek-03 jelű övezet
a) Az övezet a közjóléti erdők, részletesen szabályozott területei.
b) Az övezet területén az oldalkert legkisebb szélessége: 15 m, a hátsókert legkisebb szélessége: 15 m.
c) Az előkertben kizárólag a közmű becsatlakozás építménye, valamint a kerítéssel egybeépített, vagy azzal összekapcsolt hulladéktároló helyezhető el.
d) A területen kerítés a szabályozott telekhatárvonalon létesíthető, lábazattal, átlátható kialakítással. Tömör át nem látható kerítés nem létesíthető.
e) Az övezeti paramétereket a 2. számú melléklet 6. számú táblázata tartalmazza.
Védelmi erdők
28.§
(1) Ev-01 jelű övezet
a) Az övezet az erdőterületek véderdők telepítésére szolgáló, részletesen szabályozott területe.
b) Az övezet területén közlekedési építmények, távvezetékek és a terület fenntartásához szükséges építmények helyezhetők el.
c) Az erdősítést a határoló út építésével egy időben kell végezni.
d) Az övezeti paramétereket a 2. számú melléklet 7. számú táblázata tartalmazza.
III. fejezet
Záró rendelkezések
29.§
(1) E rendelet az elfogadását követő napon lép hatályba.
(2) E rendelet hatálybalépésével egyidejűleg Budapest Főváros XVII. kerület Rákosmente Önkormányzatának a Budapest XVII. kerület Rákosmente Városrendezési és Építési Szabályzatáról szóló 12/2014 (VI. 30.) önkormányzati rendeletének 1.§-a helyébe az alábbi rendelkezés lép: „Jelen – Rákosmente Városrendezési és Építési Szabályzatáról szóló – rendelet (a továbbiakban: a KVSZ) hatálya a XVII. kerület közigazgatási területének az 5. számú mellékletben felsorolt „Kerületi Építési Szabályzatok” által nem érintett részére (továbbiakban: terület) terjed ki.
(3) E rendelet hatálybalépésével egyidejűleg Budapest Főváros XVII. kerület Rákosmente Önkormányzatának a Budapest XVII. kerület Rákosmente Városrendezési és Építési Szabályzatáról szóló 12/2014 (VI. 30.) önkormányzati rendeletének 2.§-a az alábbi ponttal illetve melléklettel egészül ki:
„f) 5. melléklet Kerületi Építési Szabályzatok”
Budapest, 2015. augusztus 27.
Dr. Rúzsa Ágnes s.k. Riz Levente s.k.
jegyző polgármester
A rendelet kihirdetve: 2015. augusztus 27.
Dr. Rúzsa Ágnes s.k.
jegyző
INDOKOLÁS
Budapest Főváros XVII. kerület Rákosmente Önkormányzata Képviselő-testületének
a Budapest Főváros XVII. kerület
MÁV Budapest-Hatvan (80-as számú) vasútvonal menti terület
Kerületi Építési Szabályzatáról szóló
27/2015. (VIII. 27.) önkormányzati rendeletéhez
Az egyes közlekedésfejlesztési projektekkel összefüggő közigazgatási hatósági ügyek nemzetgazdasági szempontból kiemelt jelentőségű üggyé nyilvánításáról és az eljáró hatóságok kijelöléséről szóló 345/2012. (XII. 6.) Korm. rendelet (a továbbiakban: Korm. r.) 1. számú mellékletének 2.7. pontja alapján a nemzetgazdasági szempontból kiemelt jelentőségű beruházások körébe tartozik a 80. és 100c. számú vasútvonalak, Rákos-Hatvan-Miskolc-Nyíregyháza szakasz rekonstrukciója, valamint 2.8. pontja alapján a budapesti elővárosi vasútvonalak rekonstrukciója, amihez a Nemzeti Infrastruktúra Fejlesztő Zrt. által elkészíttetett engedélyezési terv alapján Kerületi Építési Szabályzat (a továbbiakban: KÉSZ) készítése szükséges, mivel a hatályos fővárosi és kerületi településrendezési eszközök nem tették lehetővé a fejlesztést.
RÉSZLETES INDOKOLÁS
1.§-hoz
E paragrafus rögzíti a KÉSZ területi hatályát.
2.§-hoz
A KÉSZ-ben előforduló fogalmak értelmezését tartalmazza.
3.§-hoz
A rendelet mellékleteit határozza meg.
4.§-hoz
A közterületek alakítására vonatkozó rendelkezéseket rögzíti.
5.§-hoz
A városkép védelemére vonatkozó, általános előírásokat határozza meg.
6.§-hoz
Az épített környezet értékeinek védelmére határoz meg általános előírásokat.
7.§-hoz
A táji és természetvédelmi környezet védelmére vonatkozóan ír elő rendelkezéseket.
8.§-hoz
A környezet védelme érdekében fogalmaz meg előírásokat.
9.§-hoz
Telekalakítási szabályokat határoz meg nyúlványos, illetve fekvőtelek esetében.
10.§-hoz
Az elővásárlási jog céljait és az azzal érintett ingatlanokat határozza meg az 1. számú függelékre hivatkozva.
11.§-hoz
A kisajátítási jog céljait és az azzal érintett ingatlanokat határozza meg.
12.§-hoz
A közművekre vonatkozó általános előírásokat határozza meg.
13.§-hoz
Az építmények funkciójára és kialakítására vonatkozó előírásokat rögzíti.
14.§-hoz
E paragrafus az egyes beépítési módokra vonatkozó sajátos előírásokat tartalmazza.
15.§-hoz
Az elő-, oldal- és hátsókertre vonatkozó előírásokat tartalmazza.
16.§-hoz
A járművek elhelyezésére vonatkozóan határoz meg szabályokat.
17.§-hoz
Az egyéb építményekre vonatkozóan fogalmaz meg szabályokat.
18.§-hoz
Az intenzív kertvárosias lakóterületekre vonatkozó előírásokat rögzíti.
19.§-hoz
A kertvárosias, intenzív beépítésű lakóterületek övezeteit határozza meg.
20.§-hoz
Az intézményi, jellemzően szabadonálló jellegű területek építési övezetét határozza meg.
21.§-hoz
A gazdasági, jellemzően kereskedelmi, szolgáltató területek építési övezeteit határozza meg.
22.§-hoz
A gazdasági, jellemzően raktározást, termelést szolgáló területek építési övezeteit határozza meg.
23.§-hoz
A közlekedéshez kapcsolódó építmények elhelyezésére szolgáló különleges terület építési övezetét határozza meg.
24.§-hoz
A közlekedési területekre vonatkozó övezeti előírást határozza meg.
25.§-hoz
A közterületekre vonatkozó szabályokat határozza meg.
26.§-hoz
Az erdőterületekre vonatkozó általános előírásokat tartalmazza.
27.§-hoz
A közjóléti erdők övezeteit határozza meg.
28.§-hoz
A védelmi erdők övezeteit határozza meg.
29.§-hoz
A rendelet hatályba lépéséről rendelkezik a településfejlesztési koncepcióról, az integrált településfejlesztési stratégiáról és a településrendezési eszközökről, valamint egyes településrendezési sajátos jogintézményekről szóló 314/2012. (XI. 8.) Korm. rendelet 43.§ (1) bekezdés b) pontjában foglaltakra figyelemmel. Továbbá Budapest Főváros XVII. kerület Rákosmente Önkormányzatának a Budapest XVII. kerület Rákosmente Városrendezési és Építési Szabályzatáról szóló 12/2014 (VI. 30.) önkormányzati rendeletének e rendelet területi hatályával érintett részének hatályon kívül helyezését rögzíti.