Fót Város Önkormányzata Képviselő-testületének 21/2022. (IX. 30.) önkormányzati rendelete
Fót Város Helyi építési szabályzatáról szóló 33/2019. (IX.26.) önkormányzati rendelet módosításáról
Hatályos: 2022. 10. 01- 2022. 10. 01Fót Város Önkormányzata Képviselő-testületének 21/2022. (IX. 30.) önkormányzati rendelete
Fót Város Helyi építési szabályzatáról szóló 33/2019. (IX.26.) önkormányzati rendelet módosításáról1
Fót város Önkormányzatának Képviselő-testülete az épített környezet alakításáról és védelméről szóló 1997. évi LXXVIII. törvény 62. § (6) bekezdés 6. pontjában kapott felhatalmazás alapján, az Alaptörvény 32. cikk (1) bekezdés a) pontjában és a Magyarország helyi önkormányzatairól szóló 2011. évi CLXXXIX. törvény 13. § (1) bekezdés 1. pontjában meghatározott feladatkörében eljárva, valamint a településfejlesztési koncepcióról, az integrált településfejlesztési stratégiáról és a településrendezési eszközökről, valamint egyes településrendezési sajátos jogintézményekről szóló 314/2012. (XI. 8.) Korm. rendeletben meghatározott szervek véleményének kikérésével a következőket rendeli el:
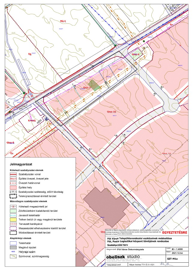
1. § Fót Város Helyi Építési szabályzatáról szóló 33/2019. (IX.26.) önkormányzati rendelet 1. melléklet SZT-4 és SZT-6 jelű tervlapjának Fót Posta Logisztikai Központ tömbjének 'a módosítással érintett terület határa' jelöléssel körülhatárolt terület normatartalma a rendelet 1. melléklet SZT-M1a és SZT-M1b tervlap szerinti tartalommal módosul.
2. § Ez a rendelet a kihirdetését követő napon lép hatályba.
1. melléklet
1. 
2. 
A rendelet a 2010. évi CXXX. törvény 12/B. §-a alapján hatályát vesztette 2022. október 2. napjával.