Sajóecseg Község Önkormányzat Képviselő-testületének 12/2017.(XII.22.) önkormányzati rendelete
a településkép védelméről
Hatályos: 2022. 04. 29 14:00Sajóecseg Község Önkormányzat Képviselő-testületének 12/2017.(XII.22.) önkormányzati rendelete
a településkép védelméről
Sajóecseg község Önkormányzatának Képviselő-testülete a településkép védelméről szóló 2016. évi LXXIV. törvény 12. § (2) bekezdésében kapott felhatalmazás alapján, az épített környezet alakításáról és védelméről szóló 1997. évi LXXVIII. törvény 6/A. § (1) bekezdés a) pont aa) alpontjában, (2) bekezdés b) pontjában meghatározott feladatkörében eljárva, a településfejlesztési koncepcióról, az integrált településfejlesztési stratégiáról és a településrendezési eszközökről, valamint egyes településrendezési sajátos jogintézményekről szóló 314/2012. (XI. 8.) Korm. rendelet 43/A. § (6) bekezdésében biztosított véleményezési jogkörében eljáró Borsod-Abaúj-Zemplén Megyei Kormányhivatal Kormánymegbízotti Kabinet Állami Főépítész, Bükki Nemzeti Park és az Aggteleki Nemzeti Park Igazgatósága, Nemzeti Média és Hírközlési Hatóság és a Borsod-Abaúj-Zemplén Megyei Kormányhivatal Miskolci Járási Hivatala, a Miniszterelnökség, valamint az önkormányzat településfejlesztési és településrendezési döntéseinek társadalmi magalapozása, és a partnerségi egyeztetések szabályairól szóló 14/2017. (V. 31.) önkormányzati rendelet szerinti partnerek véleményének kikérésével a következőket rendeli el:
Első rész
Bevezető rendelkezések
Általános rendelkezések
1. § A rendelet célja Sajóecseg község sajátos településképének társadalmi bevonás és konszenzus által történő védelme és alakítása
2. § A helyi védelem célja Sajóecseg község településképe és történelme szempontjából meghatározó építészeti örökség kiemelkedő értékű elemeinek védelme, jellegzetes karakterének a jövő nemzedékek számára történő megóvása.
3. A településképi szempontból meghatározó területek megállapításának célja
3. § A településképi szempontból meghatározó területek megállapításának célja az olyan területek kijelölése, amelyek az épített környezet olyan összefüggő, vagy azonos építészeti karakterű részeire, valamint térre, utcára, utcaszakaszra terjednek ki, amelyek a jellegzetes településszerkezet történelmi folyamatosságát dokumentálják, vagy ahol a település és a környék arculatát meghatározó építmények együttest alkotnak.
4. A rendelet hatálya
4. § (1) A rendelet tárgyi hatálya Sajóecseg község településkép védelmére terjed ki.
(2) A rendelet személyi hatálya minden természetes személyre, jogi személyre, jogi személyiséggel nem rendelkező egyéb szervezetre terjed ki.
5. Értelmező rendelkezések
5. § A rendelet alkalmazásában:
Második rész
A helyi védelem
A helyi védelem feladata, általános szabályai, önkormányzati és tulajdonosi kötelezettségek
6. § Sajóecseg község Önkormányzatának (továbbiakban: Önkormányzat) feladata a helyi védelem alá helyezhető építészeti örökség
7. § (1) A helyi védetté nyilvánítással kapcsolatos eljárás hivatalból, vagy írásbeli kérelem alapján indulhat, mely kérelmet a polgármesterhez kell benyújtani.
(2) A kérelemhez mellékelni kell
a) a védendő érték megnevezését és rendeltetését,
b) a védendő érték pontos helyét, utca, házszám, helyrajzi szám, épület-, illetve telekrész pontos megjelölésével,
c) a védendő érték rövid leírását,
d) a kezdeményező nevét, személyes adatait, lakcímét, telefonos és elektronikus elérhetőségét.
(3) A helyi építészeti értékek egyedi védelme és az egyes területi védelem fajták védetté nyilvánításának kérelméhez - ha az nem áll rendelkezésre - az Önkormányzat elkészítteti az értékvizsgálatot.
(4) A védettség elrendeléséről a Képviselő-testület dönt.
8. A helyi védettség megszüntetése
8. § (1) A helyi védettség megszüntetésével kapcsolatos eljárás hivatalból, vagy írásbeli kérelem alapján indulhat, melyet a polgármesterhez kell benyújtani.
(2) Helyi védettség megszüntetése akkor kezdeményezhető, ha a védettséget alátámasztó indokok már nem állnak fenn. Az értékvizsgálati eljárást a benyújtott dokumentumok alapján le kell folytatni.
(3) Helyi védettség megszüntetésére irányuló kérelmet lehet benyújtani, amennyiben
a) műszakilag indokoltható,
b) életveszély-elhárítása miatt,
c) a védett elemet országos védelmi kategóriába emelték.
(4) A helyi védettség megszüntetésére irányuló kérelemhez mellékelni kell
a) a védett elem teljes körű műszaki felmérését, mely magában foglalja alaprajzokat, metszeteket, homlokzatok dokumentációját, a védett elem minden irányú fényképes dokumentációját,
b) amennyiben szükséges, a történeti kutatás megtörténtét igazoló dokumentumot.
(5) A helyi védettség megszüntetése nem járhat a települési arculat kedvezőtlen irányú változásával.
(6) A helyi védettség megszüntetéséhez jelen rendelet módosítása szükséges, mely módosítás előfeltételeként a vonatkozó jogszabályokban előírt egyeztetési eljárásokat le kell folytatni.
(7) A védettség megszüntetéséről a Képviselő-testület dönt.
9. A képviselő-testület döntésével összefüggő feladatok
9. § (1) Az előzetes értékvizsgálat elkészíttetéséről az Önkormányzat gondoskodik.
(2) A védetté nyilvánítással kapcsolatos javaslatot a partnerségi rendeletben megfogalmazott előírások szerint partnerségi egyeztetésre kell bocsátani.
(3) A partnerségi egyeztetés időtartama alatt a javaslat és az értékvizsgálat megtekintését a településen biztosítani kell. A kezdeményezéssel kapcsolatosan a partnerségi rendelet szabályai szerint írásos észrevételt lehet tenni.
(4) A helyi védettség alá helyezési, illetve annak megszüntetésére irányuló eljárás megindításáról az érdekelteket az Önkormányzatnak értesítenie kell.
(5) A helyi egyedi védelemre vonatkozó kezdeményezés esetén az értesítést az érdekeltnek írásban kézbesíteni kell. Amennyiben az érdekeltek felkutatása aránytalan nehézségekbe ütközne, úgy az értesítésük a helyben szokásos módon is történhet.
(6) A helyi védettség alá helyezés tényéről az érték használóját az érték tulajdonosa köteles értesíteni.
10. § (1) A helyi védettségre vonatkozó ingatlan-nyilvántartási bejegyzésnek tartalmaznia kell, hogy az ingatlan a rendelet alapján helyi védelem alá vont érték.
(2) A késedelmes bejegyzés, vagy annak esetleges elmaradása a védettség fennállásának tényét nem érinti.
11. § A helyi védettség alá helyezett értékekről nyilvántartást kell vezetni, mely a település megbízott főépítészének feladata.
10. A védett értékek megjelölése
12. § (1) A helyi védettség alatt álló védett építészeti értéket a közterületről jól látható helyen elhelyezett, egységes táblával kell megjelölni.
(2) Az egységesen kialakított tábla tartalmazza, hogy az adott védett értéket Sajóecseg község Önkormányzata védetté nyilvánította, és tartalmazza a védetté nyilvánítás évének megjelölését.
(3) A tábla elhelyezését a tulajdonos tűrni köteles.
(4) A tábla elkészíttetéséről a jegyző, az elhelyezéséről és eltávolításáról a főépítész gondoskodik.
(5) A tábla fenntartása és karbantartása a tulajdonos feladata.
11. Az egyedi védelemhez kapcsolódó tulajdonosi kötelezettségek
13. § (1) A védett érték karbantartása, állapotának megóvása a tulajdonos alapvető kötelezettsége.
(2) A tulajdonos kötelezettsége kiterjed a védelem alá helyezett érték minden alkotóelemére és részletére, függetlenül attól, hogy azok a rendeltetésszerű használathoz szükségesek-e vagy sem.
(3) A védett értékek megfelelő fenntartását és megőrzését a rendeltetésnek megfelelő használattal kell biztosítani.
(4) Amennyiben a rendeltetéstől eltérő használat a védett érték állagának romlásához vagy megsemmisüléséhez vezetne, úgy e használat a hatályos jogszabályok szerint korlátozható.
Harmadik rész
A településképi szempontból meghatározó és kiemelt területek
Az épített és természeti környezet településképi szempontból meghatározó területei
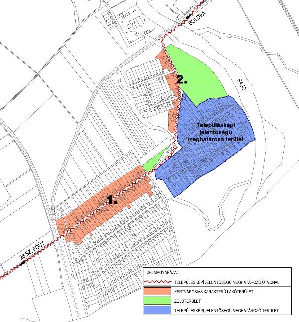
14. § (1) Az épített környezet településképi szempontból meghatározó területei:
a) a településképi szempontból jelentős, meghatározó útvonalak és a mellettük fekvő, az úthoz csatlakozó telkek sora, melyek felsorolását és térképvázlatát a rendelet 1. melléklete tartalmazza,
b) a településképi jelentőségű meghatározó területek melyek felsorolását és térképvázlatát a rendelet 2. melléklete tartalmazza,
c) a helyi egyedi építészei értékvédelemmel védett épületek, melyek felsorolását és térképvázlatát a rendelet 3. melléklete tartalmazza,
d) a helyi védettség alatt álló műalkotások, melyek felsorolását és térképvázlatát a rendelet 4. melléklete tartalmazza,
e) a külön jogszabályban megállapított műemlék épület, műemlék épület telke, műemléki környezet felsorolását és térképvázlatát, leírását a rendelet 1. függeléke tartalmazza,
f) a külön jogszabályban meghatározott régészeti érdekű területek, felsorolását és térképvázlatát, leírását a rendelet 2. függeléke tartalmazza,
g) a természetvédelmi szempontból településképet meghatározó területek (a NATURA 2000 területek, a Nemzeti Ökológiai Hálózat és a Tájképvédelmi szempontból kiemelt területek) térképvázlatát a rendelet 3. sz. függeléke tartalmazza.
(2) Az épített és természeti környezet településkép védelem szempontjából meghatározó területeinek összefoglaló ábrázolását a rendelet 5. melléklete tartalmazza.
Az épített és természeti környezet településképvédelmi szempontból kiemelt területei
15. § (1) Az épített környezet településképvédelmi szempontból kiemelt területei:
a) a helyi értékvédelmi terület,
b) a helyi egyedi építészeti értékvédelemmel védett épületek,
c) a műemlékek területe és a műemléki környezet,
d) a régészeti érdekű terület és a régészeti lelőhely.
(2) A természeti környezet településképi szempontból kiemelt területei:
a) a természetvédelemmel érintett területek,
b) a helyi jelentőségű természetvédelmi terület és a védett természeti érték.
(3) A természetvédelmi területeket, az országos ökológiai hálózat területeit, valamint a tájképvédelmi szempontból kiemelt területeket a rendelet 3. függeléke tartalmazza.
Negyedik rész
A településképi követelmények
Általános építészeti követelmények
16. § (1) Homlokzati felületképzés esetében nem alkalmazható harsány, földszínektől, a pasztell földszínektől eltérő színű homlokzatfestés,
(2) Tetőfedés esetében nem alkalmazható
a) harsány, a természetes fedési módoktól eltérő színű fémlemezfedés a gazdasági területek kivételével,
b) főépületeken, illetve utcai homlokzaton műanyag hullámlemez,
c) felületkezelés nélküli, fénylő, káprázatot okozó fém tető.
(3) A közterület határán épülő kerítések esetén
a) a teljesen zárt, tömör fémlemez kerítés, színtől függetlenül, a közterületek felőli oldalon nem alkalmazható,
b) Teljesen zárt, típus betonkerítés a gazdasági területek kivételével a közterületek felőli oldalon nem alkalmazható.
(4) Új építmények építése, meglévő épületek héjazatának felújítása, cseréje során nem megengedett a hullámpala, trapézlemez valamint a bitumenes hullámlemez alkalmazása.
(5) A függőleges homlokzatfelületeken az ipari, gazdasági területeken lévő építmények és a felvonulási építmények kivételével nem alkalmazható a homlokzat felület 15 %-át meghaladó mértékben:
a) nád,
b) kezeletlen farost-, pozdorja-, faháncslemez, deszka,
c) kezeletlen fém,
d) műanyag lemez,
e) szürke műpala (Eternit),
f) hagyományos bitumenes lemez.
17. § (1) A fényszennyezés megakadályozása céljából nem alkalmazható a hideg fehér fényű világítás, amely 500 nanométernél rövidebb hullámhosszúságú fényt tartalmaz, kizárólag 3000K alatti érték alkalmazható a kültéri világítás színhőmérsékletére.
(2) Közterületen a fényt a szükséges helyre kell irányítani, a fény nem irányítható a gyalogosok, járművezetők szemébe, az épületek ablakai felé vagy az égbolt irányába. A közterületet egyenletesen és alacsony fényintenzitással kell megvilágítani.
18. §1 A település közigazgatási területén a használaton kívüli, romos, felhagyott épület felújítását, átalakítását, bontását az Önkormányzat képviselő-testülete kötelezési eljárás keretében elrendelheti
a) a településkép védelmében,
b) a közbiztonság védelmében,
c) az életet, egészséget, vagyonbiztonságot veszélyeztető állapotok elhárításának érdekében,
d) az épület hatásterületéhez tartozók védelme érdekében, vagy
e) az egyes területek leromlásának megakadályozása céljából.
A településképi szempontból meghatározó területekre vonatkozó területi építészeti követelmények
19. § (1) Az általános településkép és a helyi védelem alatt álló épületek és környezetük védelme érdekében
a) meg kell őrizni a település jellegzetes szerkezetét, telekrendszerét, utcavonal vezetését, új telek kialakítása, vagy telekalakítás csak ezzel összhangban engedélyezhető,
b) a területen lévő építményeket, illetve új építményeket egymással összehangoltan, a jellegzetes településkép, valamint az épített és természetes környezet megjelentését biztosító módon kell építeni, illetve a meglévőt fenntartani, bővíteni, átalakítani,
c) a főépülettel egybe épített melléképület nem lehet magasabb a főépületnél.
(2) Az (1) bekezdés c) pontjában foglalt követelmény tekintetében meghatározó jelentőségű az épületek
a) fő tömeg- és tetőformája,
b) külső homlokzata,
c) az alkalmazott anyag
ca) színe,
cb) felületképzése.
(3) A területen az új épületek tömegarányait, fő méreteit, és a tetőformáját (kontyolt vagy oromfalas kialakítás) a környezetében lévő hagyományos épületekhez való harmonikus illeszkedését, ezen épületek homlokzatszélességét, gerinc- és párkánymagasságát, tetőformáját, anyaghasználatát figyelembe véve kell meghatározni.
(4) A településképi szempontból meghatározó és a településképvédelmi szempontból kiemelt területen lévő építményeket fenntartani, bővíteni, átalakítani, illetve új építményeket építeni egymással összehangoltan, a jellegzetes településkép, valamint az épített és természetes környezet megjelenését biztosító módon kell. E tekintetben az épületek fő tömeg- és tetőformája, külső homlokzata, az alkalmazott anyag, azok színe, felületképzése meghatározó jelentőségű.
(5) Az illeszkedés érdekében
a) amennyiben az épület szélessége az utcai oldalon meghaladja a 10 métert, a tetőt az utca felé a hagyományoknak megfelelően kontyolni kell alkalmazni.
b) utca felőli oromfalba erkély nem építhető,
c) terepszint alá süllyesztett garázs utca felől nem létesíthető, (ez nem zárja ki az alagsor építését amennyiben terepadottságok ezt lehetővé teszik)
d) főépületen lapos tető nem építhető
(6) Az előkertek mélységét a környezetben kialakult beépítésnek megfelelően kell meghatározni.
(7) Kialakult telektömbben az építési vonal:
a) foghíj és saroktelek esetében illeszkedjék a csatlakozó szomszédos telek beépítésének utcai (közterület) beépítési vonalaihoz,
b) ha a közbenső telek egyik csatlakozó szomszédos telke beépítetlen, illeszkedjék legalább két szomszédos beépített telek, illetve az érintett utcaszakasz beépítésének utcai (közterületi) építési vonalaihoz.
(8) A területen meg kell tartani a hagyományos
a) kerítés- és kapuformákat,
b) építményfajtákat, melléképületeket és azok elhelyezési módját
c) növényzetet.
(9) A felszínformákat, terepfelszínt az ingatlan építése és használata során lehetőség szerint egyaránt meg kell őrizni.
20. § (1) A tetőfedés anyaghasználata során nem alkalmazható 20. § (2) bekezdésében foglalt általános előírásban tiltott anyaghasználaton túlmenően
a) a bitumenes zsindely és hasonló műszaki tulajdonságú építőanyag,
b) a hullámpala és hasonló műszaki tulajdonságú építőanyag, és
c) a cserepes lemez fedés, ha az műszakilag elkerülhetetlen, akkor csak szürke, antracit vagy barna színű lehet,
d) harsány, a természetes fedési módoktól eltérő színű fémlemezfedés
e) főépületeken, illetve utcai homlokzaton műanyag hullámlemez,
f) a hullámpala
g) a bitumenes hullámlemez alkalmazása,
h) fém trapézlemez
i) felületkezelés nélküli, fénylő, káprázatot okozó fém tető.
sem.
(2) Épületgépészeti berendezés kültéri egysége az építészeti értéket zavaró módon nem helyezhető.
21. § Főépületek esetében oldalhatáron álló beépítési módnál
a) utcaszakaszonként egységes melléképület elhelyezést kell megvalósítani a kialakult állapotokhoz illeszkedően.
b) a sajátos, egyedi telepítésű épület-elhelyezésnél a történetileg kialakult, egyedi jelleg megőrzését biztosító épület-elhelyezést kell alkalmazni.
22. § Melléképület
a) oldalhatáron álló beépítés esetében a melléképületeket is oldalhatáron kell elhelyezni,
b) esetében a kialakult állapot szerint, az illeszkedés szabályaira figyelemmel, a szabályozott beépítési módtól eltérő, más beépítési mód is alkalmazható.
c) kismélységű telkek oldalkert felőli építési helyén belül csak a főépülettel egybeépítve, az illeszkedési szabályok megtartása mellett engedélyezhető.
d) főépülettel egybeépített melléképület nem lehet magasabb a főépületnél.
23. § A magastető
a) építése egységes, teljes épületegyüttest magába foglaló módon történhet,
b) hajlásszöge a 45°-ot nem haladhatja meg,
d) építése esetén nem építhető alacsony hajlásszögű, 30° alatti tetőszerkezet,
e) építése esetén a tetőtérben több önálló hasznos szint nem alakítható ki.
24. § A kerítés
a) építése során áttört kerítést kell létesíteni, kivéve
aa) forgalmi terhelés mérséklése,
ab) történeti hagyományok megtartása, (tömör természetes kő anyagú kerítés 1,8 méter magasságig)
ac) utcaképi illeszkedés biztosítása, vagy
ad) építészeti koncepció érvényesítése céljából,
ae) vagy az ideiglenes jelleggel legfeljebb egy évre, vagy az építkezés idejére épülő kerítés esetében
b) magassága legfeljebb 2,0 méter lehet,
c) a tömör lábazat magassága legfeljebb 80 cm lehet,
d) a kapuépítmény legmagasabb pontja legfeljebb 3,0 méter lehet.
e) építése és fenntartása során kötelező
ea) az időtálló, minőségi anyaghasználat,
eb) az élénk színek kerülése, a harmonikus, telítetlen földszínek, vagy a fehér szín alkalmazása,
ec) a természetes anyagok használata,
ee) a balesetmentes kialakítás,
ef) műszaki állapotának folyamatos karbantartása.
25. § (1) A homlokzatok kialakítása során
a) az új lakó- és közösségi épületek földszinti, illetőleg bejárati padlómagasságát a közterület tervezett, vagy már kiépített magasságának figyelembevételével úgy kell kialakítani, hogy az építmény megközelítése biztonságos, a külső képe pedig településképi szempontból elfogadható legyen,
b) az üzletportálokat, cégtáblákat, feliratokat, előtetőket, nyílászáró-rácsokat és az egyéb díszítéseket, berendezéseket az egész épület tömegformájához, homlokzati jellegéhez és részletmegoldásaihoz illeszkedő anyagokból, formai megoldásokkal és színezéssel kell kialakítani,
c) tilos a homlokzatok építészeti egységét részleges átalakítással vagy átfestéssel, oda nem illő burkolatokkal megbontani.
(2) A homlokzatok rekonstrukciója során feleslegessé vált közműveket környezetbarát módon kell felhagyni, és a terület helyreállítását el kell végezni.
14. Egyedi építészeti követelmények
26. § Az anyaghasználatnak
a) illeszkedőnek,
b) időtállónak,
c) minőséget képviselőnek,
d) természetesnek, vagy ahhoz hasonló megjelenésűnek
e) a környezetétől nem elütő színűnek, és
f) árnyalatában pasztell földszínűnek vagy fehérnek
kell lennie.
27. § A tömegformálásnak
a) illeszkedőnek
b) építészeti minőséget tükrözőnek,
c) arányosnak,
d) funkciójával összhangot mutatónak
kell lennie.
28. § (1) A homlokzat kialakításnak
a) a homlokzattagolást arányosan alkalmazónak,
b) a tagozatokat visszafogottan használónak,
c) díszítésében egyszerűségre törekvőnek,
d) pasztell földszíneket alkalmazónak vagy fehér színűnek,
e) nyílásrendszerében rendezettnek, és
f) lehetőleg természetes anyagokat vagy megjelenésében azt mutatónak
kell lennie.
(2) Szabadlépcső legfeljebb 1,50 m szintkülönbségig alkalmazható, kivéve az épületek hátsó homlokzatán lévő padfeljárókat.
(3) Építmény homlokzatán égéstermék kivezető kémény nem helyezhető el.
29. § (1) Az előkertben elhelyezett műtárgyakat növényzettel kell eltakarni vagy mérsékelni.
(2) Antenna a településképi jelentőségű meghatározó területek útvonalai felőli homlokzatra nem rögzíthető.
(3) Szellőzőt és klímaberendezést utcafronti homlokzatra tilos elhelyezni.
A településképi szempontból meghatározó eltérő karakterű területekre vonatkozó építészeti követelmények
30. § A településképi szempontból meghatározó területekre vonatkozó szabályokat e Fejezet rendelkezéseivel együtt kell alkalmazni.
31. § (1) A történelmi településrész és településközpont területének védelme érdekében
a) meg kell őrizni a település jellegzetes szerkezetét, telekrendszerét, utcavonal vezetését, új telek kialakítása, vagy telekalakítás csak ezzel összhangban engedélyezhető.
b) a területen lévő építményeket, illetve új építményeket egymással összehangoltan, a jellegzetes településkép, valamint az épített és természetes környezet megjelentését biztosító módon kell építeni, illetve a meglévőt fenntartani, bővíteni, átalakítani.
(2) Az (1) bekezdés b) pontjában foglalt követelmény tekintetében meghatározó jelentőségű az épületek
a) fő tömeg- és tetőformája,
b) külső homlokzata,
c) az alkalmazott anyag
ca) színe,
cb) felületképzése.
(3) A területen az új épületek tömegarányait, fő méreteit, a környezetében lévő hagyományos épületekhez való harmonikus illeszkedését, ezen épületek homlokzatszélességét, gerinc- és párkánymagasságát, tetőformáját, anyaghasználatát figyelembe véve kell meghatározni.
(4) A területen meg kell tartani a hagyományos
a) kerítés- és kapuformákat,
b) építményfajtákat, melléképületeket és azok elhelyezési módját
c) növényzetet.
(5) A területen berendezéseit különösen az utcabútorokat, a hirdető berendezéseket, a világítótesteket, a pavilonokat, az autóbuszvárókat az utcakép jellegzetességének megtartásával kell elhelyezni.
(6) A közterületeken elhelyezhető utcabútorok és egyéb tárgyak kiválasztásánál vagy tervezésénél és színezési terveinek elkészítésénél figyelembe kell venni, hogy
a) a mikroarchitektúra elemei és az utcabútorok egy tárgyegyüttest alkossanak, lehetőleg egyedi tervezésű, vagy alkalmas típusú, illeszkedő, időtálló kivitelűek legyenek,
b) el kell kerülni a stíluskeveredést, az épített környezethez és a terek, közterületek karakteréhez nem illő tárgyak elhelyezését,
c) a tárgy önmagában is a tér, a közterület karakteréhez illeszkedő legyen, összhangban legyen a mikroarchitektúra elemeivel és a többi tárggyal,
d) a védett közterületre kihelyezett tárgyegyüttes, utcabútor család terveinek része lehet az egyes épületekre elhelyezett felirat, reklámhordozó arculatterve is.
32. § (1) A történeti településrész területen végzett épületrekonstrukció esetében az energetikai korszerűsítés során hőszigetelés teljes homlokzati felületen alkalmazható, tilos a mozaikszerű homlokzati hőszigetelés.
(2) Az épületrekonstrukció során az egyes épületek homlokzatait, azonos időben kell megvalósítani kivéve, ha a jelentős közterület felőli homlokzatrekonstrukció önállóan is megvalósítható azzal, hogy a további rekonstrukciós munkák során figyelembe kell venni az első ütemben elkészült építészeti és műszaki megoldásokat.
(3) A tetőfedés anyaghasználata során nem alkalmazható 18. § (2) bekezdésében foglalt általános előírásban tiltott anyaghasználaton túlmenően
a) a bitumenes zsindely és hasonló műszaki tulajdonságú építőanyag,
b) a hullámpala és hasonló műszaki tulajdonságú építőanyag, és
c) a cserepes lemezfedés
sem.
(4) Épületgépészeti berendezés kültéri egysége az építészeti értéket zavaró módon nem helyezhető el.
16. Kertvárosias karakterű lakóterület
33. § A kertvárosias lakóterületek esetében a településképi szempontból meghatározó megjelölés, csak a településképi szempontból jelentős utak melletti, ahhoz csatlakozó teleksorra vonatkozik.
34. § Hagyományosan kialakult beépítésű kertes lakózóna területein az épület fő tetőgerincét az utcával párhuzamosan, vagy az oldalkert felőli oldalon merőleges tetőgerinccel kell kialakítani, ha
a) az oldalhatáron álló beépítési mód szerint elhelyezett új épület, vagy meglévő épület bővítése esetén, ha a tervezett utcai homlokzatszélesség nagyobb 9,0 méternél,
b) ikres beépítési mód szerint elhelyezett új épület építésére, vagy meglévő épület bővítésére kerül sor.
35. § Szabadonálló beépítés esetén megengedett az épületek tagoltabb tömegformálása, azonban törekedni kell az egyszerűbb, a csatlakozó ingatlanokkal összhangban lévő megvalósításra.
36. § Magas tetős épület esetén a földszintes, földszint és tetőteres épület tetőhajlásszöge 30-47° között alakítható ki.
37. § Lapostető nem létesíthető a lakóépületek főépülete esetében.
38. § A járdák és a közút közötti utcakertek, zöldsávok zöldterületi jellegét meg kell őrizni.
39. § Kismélységű telkek oldalkert felőli építési helyén belül melléképület csak a főépülettel egybeépítve az illeszkedési szabályok megtartása mellett valósítható meg.
17. Gazdasági területek
40. § (1) Az újonnan kialakításra kerülő termelő, tároló, állattartó és egyéb épületeket hosszúkásan nyújtott tömeggel, magastetővel kell kialakítani. Az ettől való eltérés csak technológiával igazolt módon lehetséges.
(2) A gazdasági, ipari épületek esetén az egyszerű formák alkalmazása támogatott, ezen belül a nagy fesztávú (10 méter fölötti szélességű) csarnokszerkezet esetében nyeregtető, alacsony hajlású félnyereg tető és lapostető, valamint ezek kombinációja is alkalmazható.
(3) Nem alkalmazható a túlságosan tördelt épülettömeg, valamint a s manzárd tetős épület.
(4) Az újonnan kialakítandó gazdasági területeken a telken belül egybefüggő zöldsávot kell kialakítani, legalább az előírt zöldfelületi terület mértékének 50%-ában. Az előírt zöldfelületet 3 szintes növényállománnyal kell megvalósítani.
(5) Ahol a gazdasági terület közvetlenül lakóterülettel szomszédos, ott háromszintes növényállománnyal legalább 5 méter széles egybefüggő zöldsávot kell kialakítani.
(6) Az állattartó épületek esetében a tájegységre jellemző hagyományos épületformák és anyaghasználat alkalmazható.
18. Települési zöldterületek és jelentős zöldterületi intézmények
41. § (1) A közutak építési területén - amennyiben műszakilag lehetséges -
a) legalább egyoldali zöldsávot, út menti fasort kell telepíteni, melyek helyét a közművek és az útburkolatok tervezésekor biztosítani kell,
b) új közutak, utcák kialakításánál legalább egyoldali fasor telepítéséhez területet kell biztosítani,
c) ahol a szabályozási szélességek és a közműadottságok lehetővé teszik, a meglévő utcákban is fasorokat kell telepíteni.
(2) A telek előkertként meghatározott részét zöldterületként kell kialakítani, mely a közterülettől legfeljebb 2,0 m magas áttört kerítéssel, vagy legfeljebb 2,0 m magas élősövénnyel választható el.
(3) A telek védőzöldsávként meghatározott, valamint a gazdasági területeken lévő telek más besorolású építési telkekkel határos, legalább 5,0 m széles sávját fásítani kell. A védőzöldsávban többszintes növényállomány telepítésével környezetvédelmi és látványvédelmi célú takaró fásítást kell kialakítani. A védőzöldsávban tilos épületet, – a közműépítmények kivételével – melléképítményt, és parkolót elhelyezni.
(4) Légvezeték alatt csak olyan kisnövésű fák, cserjék ültethetők, amelyek rendszeres csonkolása nem szükséges.
(5) Burkolatkészítésnél, vagy annak felújításakor a burkolat területébe eső fás növényzet csak úgy vehető körbe burkolattal, hogy annak töve körül legalább 2,5 m2 területű szabad, földes terület maradjon, melyet faverem-ráccsal vagy vízáteresztő kavicsozással kell ellátni.
(6) A közművek elhelyezésénél a zöldterületek védelme érdekében a közműveket a műszaki lehetőségek figyelembe vétele mellett a járda vagy az útburkolat alatt kell vezetni.
(7) A közművesítés, vagy közmű bekötés munkálatainak során történő burkolat bontások esetén a burkolatot teljes szélességében kell helyreállítani a közút, a közterület kezelője által meghatározott határidőig.
42. § (1) A zöldfelület kialakítása során bármely
a) fás szárú, elsősorban nagy lombkoronát növesztő,
b) az épületek, vagy tartózkodási helyek árnyékolására alkalmas,
c) a művi értékekkel egységben kezelt,
d) a táji jellegzetességet, termőhelyi adottságokat visszatükröző,
e) nem allergén és nem invazív fajokat tartalmazó, és
f) közterületen, utcaszakaszonként egységes, minőségi megjelenést biztosító
növényzet telepíthető.
(2) A zöldfelületen kerti építmény úgy helyezhető el, és burkolat úgy alakítható ki, hogy
a) egységes arculatot teremtsen,
b) ne eredményezzen zavarosan vibráló burkolatot,
c) teremtse meg az építmény és a burkolat összhangját,
d) a burkolt felületeket a szükséges mértékre korlátozza,
e) utcaszakaszonként egységes megjelenést biztosítson, és
f) építészi és tájépítészi szakmai szempontokat képviseljen.
A helyi védelemben részesülő értékekre vonatkozó egyedi építészeti követelmények
43. § Az egyedi védelemben részesített épületek esetében az általános építészeti követelményeket e Fejezet rendelkezéseivel együtt kell alkalmazni.
19. Általános építészeti követelmények
44. § (1) Az egyedi védelemben részesített épületek közvetlen környezetében és területén minden változtatást, beavatkozást, a helyileg védett épület településképi, illetve tájképi megjelenésének és értékei érvényesülésének kell alárendelni.
(2) Átalakítás során tilos megváltoztatni az épület
a) tömegét,
b) homlokzatát,
c) anyaghasználatát,
d) jellegzetes formai kialakítását,
a falfelületek és nyílászárók arányát.
(3) A homlokzati díszítőelemeket - különösen a műalkotásokat, a tagozatokat, a mozaikokat, a festett díszítéseket, a szobrokat -, az eredeti épület-kiegészítőket, korlátokat, belső nyílászárókat, kapukat, anyaghasználatot meg kell őrizni.
(4) Az egyedi védelem alatt álló épületek esetében a védelem érdekében az illetékes hatóság a helyreállítási kötelezettséget elrendelheti.
(5) A homlokzaton, a tetőfelületen önálló, álló tetőablak nem építhető, kivéve, ha az eredeti formában van jelen és ahhoz illeszkedik.
(6) Fekvő tetőablak egyedileg és sorolva is elhelyezhető.
(7) A nyílás és falfelületek aránya a meglévő arányrendszerrel és tagozati gazdagsággal jelenhet meg.
20. A teljes épület vagy építmény és az építészeti részértékek védelme
45. § (1) A helyileg védett építészeti értékek megőrzése érdekében az eredeti vagy ahhoz közel álló rendeltetésnek megfelelő használatot fenn kell tartani, vagy a közcélú hasznosítást kell biztosítani.
(2) A védett épület, építmény
a) hagyományos építészeti értékeit, tömegét, tetőformáját és homlokzati jellegét meg kell tartani,
b) eredeti nyílásrendje, a nyílászárók osztása, a díszek, a homlokzati és kiegészítő tagozatok nem változtatható meg, szükség esetén helyre kell állítani.
(3) A védett épület bővítése esetén
a) az eredeti tömegforma, homlokzati kialakítás, utcaképi és településszerkezeti szerep nem változhat, és
b) a tervezett bővítés a meglévő épület formálásával, szerkezetével, anyaghasználatával összhangban legyen.
(4) A védett épület felújítása, bővítése esetén a védett részértékeket meg kell őrizni, esetleges bontás után az értékes részeket új épület létesítése esetén az épületbe lehetőleg vissza kell építeni.
(5) Amennyiben az értéket csak az épület tömege képezi, az a bontás után a meglévővel azonos, párkány- és gerincmagasságú és tetőhajlásszögű épülettel pótolható.
21. Helyi építészeti örökség fenntartása
46. § (1) A helyi védettségű építészeti örökség használata és fenntartása nem veszélyeztetheti az épület építészeti értékeinek megőrzését.
(2) Helyi védettségű építészeti örökségen és a helyi egyedi védettségű építmény közvetlen környezetében csak olyan építési, átalakítási munka, illetve olyan állapot fennmaradása megengedett, amely a helyi védettségű építészeti örökség létét, állagát nem veszélyezteti, vagy azt esztétikai szempontból károsan nem befolyásolja és az a jellegzetes településkép karakteréhez igazodik.
(3) A helyi védettségű építészeti örökség korszerűsítését, átalakítását, bővítését vagy részleges bontását a védelem ténye nem zárja ki, amennyiben az építmény védelmére okot adó jellegzetességek nem változnak meg, azok eredeti helyükön megtarthatók.
(4) Helyi védettségű építészeti örökséghez történő hozzáépítés, ráépítés, vagy annak telkén új építmény, építményrész építése nem sértheti a védett építészeti érték fennmaradását, érvényesülését, hitelességét.
(5) A védett építészeti értéket lehetőség szerint eredeti állapotban kell megőrizni. Előnyben kell részesíteni az ezt elősegítő, az eredeti építőanyag, szerkezet, forma megőrzését biztosító, állagjavító, konzerváló eljárásokat, a restaurálást, valamint a hagyományos építészeti-műszaki megoldásokat.
(6) Amennyiben az eredeti állapot megőrzése nem lehetséges, a védett építészeti értéket anyagi és eszmei értékei összefüggéseire tekintettel hitelesen és meghatározó módon érvényre kell juttatni.
(7) A műszaki, gazdaságossági és funkcionális szempontból egyenértékű beavatkozások közül előnyben kell részesíteni a védett építészeti értékek fennmaradását, érvényesülését szolgáló és visszafordítható megoldásokat.
(8) A helyi védettségű építészeti örökség jókarbantartása keretében nem végezhető olyan tevékenység, amely a védett építészeti érték fizikai sérülésével, roncsolásával, továbbá a védett építészeti érték megjelenésének megváltoztatásával jár. Az értékőrző helyreállítás során a jókarbantartási munkák elvégzését segítő szerkezeti megoldások alkalmazása és kiegészítő szerelvények rejtett elhelyezése szükséges.
22. Helyi védettségű építészeti örökség bonthatósága
47. § (1) Helyi védelem alatt álló építményt, építményrészt csak a helyi védettség megszüntetését követően lehet elbontani.
(2) Helyi egyedi védettségű építmény részlegesen akkor bontható, ha
a) a bontani kívánt építményrész építészeti értéket nem hordoz,
b) a bontás a helyi védelem alatt álló építmény használata érdekében, a védelem alá helyezését megalapozó építészeti értékek sérelme nélkül megvalósítható.,
(3) A helyi egyedi védettségű épületegyüttesek területén és a helyi egyedi védettségű építmények közvetlen környezetében az adott környezetbe illeszkedő megoldások alkalmazása érdekében az építészeti értékkel nem rendelkező építmény bontható.
A tájképvédelmi és természetvédelmi szempontból meghatározó és kiemelten kezelendő területekre és a beépítésre nem szánt külterületi mezőgazdasági területekre vonatkozó területi és egyedi építészeti követelmények
48. § A tájképvédelmi és természetvédelmi szempontból kiemelten kezelendő és a beépítésre nem szánt külterületi mezőgazdasági területeken
49. § A tájképvédelmi és természetvédelmi szempontból kiemelten kezelendő és a beépítésre nem szánt külterületi mezőgazdasági területeken
a) az anyaghasználat vonatkozásában a 27. § rendelkezéseit,
b) a tömegformálás tekintetében a 28. § rendelkezéseit,
c) a homlokzatkialakítás során a 29. § (1) bekezdésének rendelkezéseit
d) a zöldfelületek kialakítása során a 42. § bekezdésének rendelkezéseit
e) a sajátos építményfajták elhelyezése során
ea) a tájba történő beillesztését meg kell oldani
eb) az antennák nem helyezhetők el
ec) a légkondicionáló kültéri egységei táji megjelenést zavaróan nem helyezhetők el.
50. § (1) A gazdasági épületek esetében a 41. § előírásait is alkalmazni kell.
(2) Az épületek tetőfedésének és homlokzatainak anyaghasználata nem készülhet zavaró fényhatást okozó, tükröződő felülettel.
(3) Az épületeken lévő egyes technológiai berendezéseket az épület homlokzataival összhangban, (klíma, kémény) takartan kell megvalósítani.
51. § (1) A település területén a teljes település ellátását biztosító felszíni energiaellátási és elektronikus hírközlési sajátos építmények, műtárgyak elhelyezésére
A reklámokra, reklámhordozókra vonatkozó településképi követelmények
52. § (1) A reklámok elhelyezésével kapcsolatos területi besorolásokat a településkép védelméről szóló törvény reklámok közzétételével kapcsolatos rendelkezéseinek végrehajtásáról szóló kormányrendelet tartalmazza, melynek alapja a község mindenkor hatályos Településrendezési terve.
(2) Reklámhordozók elhelyezése a hagyományosan kialakult településképet nem változtathatja meg hátrányosan.
(3) Kizárólag olyan reklámhordozó helyezhető el, amely
a) a kihelyezés időtartama alatt az időjárásnak ellenálló technológiával készült,
b) nem korrodálódik,
c) állékony,
d) karbantartása könnyű,
e) nem használ élénk színeket,
f) a reklám megjelenését nem befolyásolja,
g) másik reklámhordozót nem takar el.
(4) Reklámhordozó az épületek utcai homlokzatán – építési reklámháló kivételével – nem helyezhető el.
(5) Magántulajdonban álló ingatlanon elhelyezett reklámhordozó a telekhatárt nem keresztezheti és közvetlenül a telekhatáron nem helyezhető el.
(6) A reklám, reklámhordozó folyamatos karban-, és megfelelő esztétikai állapotban tartásáról a tulajdonos köteles gondoskodni. Ennek elmaradása esetén - előzetes írásbeli felszólítás és teljesítési határidő biztosítás után – a közterület kezelője a reklámot, reklámhordozót a tulajdonosa költségére eltávolíthatja.
(7) Egy adott útszakasz menetirány szerinti azonos oldalán 100 méteren belül CityLight formátumú eszköz, nem helyezhető el.
53. § (1) Reklámhordozó
a) megvilágítása céljából kizárólag 80 lumen/Watt mértéket meghaladó hatékonyságú, statikus meleg fehér színű fényforrás használható
b) analóg és digitális felületen, állandó és változó tartalommal is közzé tehető.
54. § (1) Az épületek homlokzatain elhelyezhető hirdető berendezéseket (cégéreket, cégtáblákat és cégfeliratokat) úgy kell kialakítani, hogy azok szervesen illeszkedjenek a homlokzatok meglévő, vagy tervezett vízszintes és függőleges tagolásához, a nyílászárók kiosztásához, azok ritmusához úgy, hogy együttesen összhangban legyenek az épület építészeti részletképzésével, színezésével, építészeti hangsúlyaival.
(2) Amennyiben cégérek és hirdetőtáblák utólagos elhelyezésénél az (1) bekezdésben foglaltak nem alkalmazhatók, akkor az utólagos elhelyezés nem engedhető meg.
(3) Az épületek homlokzataira kerülő cég- és címtábla, információs vagy más célú berendezés épületdíszítő tagozatot nem takarhat el.
(4) Az egyes épületek közterületről látható egy-egy homlokzatának 10 %- nagyobb felületén nem helyezhető el hirdető berendezés.
55. § Közvilágítási, hírközlési berendezésen, oszlopon, egyéb közmű berendezésen kizárólag tájékozódást segítő jelzést megjelenítő reklámcélú eszköz helyezhető el, melynek száma oszloponként, berendezésenként legfeljebb 2 darab, mérete legfeljebb 2,0 m2 lehet.
56. § (1) Megállítótábla
a) kizárólag
aa) akciós termékek hirdetése,
ab) rendezvények, programok népszerűsítése, hirdetése,
ac) standolás, szervezés
céljából megengedett,
b) legfeljebb A0-ás méretű,
c) a településképi védettségekhez és karakterekhez igazodó, a védettségi szintnek megfelelő, ahhoz illeszkedő lehet.
(2) Megállító tábla csak ott helyezhető el, a balesetmentes közlekedés biztosítva van, és az elhelyezés a gyalogos forgalmat nem akadályozza.
(3) Reklámhordozóként utánfutó közterületen, vagy közterületről látható módon nem helyezhető el.
(4) Totemoszlop és zászlótartó csak üzemanyagtöltő állomások és 300 m2-nél nagyobb kereskedelmi, szolgálató egységek esetében helyezhető el.
27. Az utcabútorokra vonatkozó szabályok
57. § (1) A helyi értékvédelemmel érintett ingatlanon és környezetében és műemléki környezetben kizárólag olyan funkcionális célokat szolgáló utcabútor helyezhető el, amelynek kialakítása a településképi megjelenést hátrányosan nem befolyásolja.
(2) A helyi értékvédelemmel érintett ingatlanon és környezetében és műemléki környezetben létesített funkcionális célú utcabútor esetén kizárólag az utcabútor felülete vehető igénybe reklámközzététel céljából.
(3) A funkcionális célú utcabútoron reklámhordozót tartó berendezés – az utasváróban és a kioszkon elhelyezett CityLight formátumú eszköz kivételével – nem helyezhető el.
(4) A funkcionális célokat szolgáló utcabútorként létesített információs célú berendezés reklámközzétételre alkalmas felületének legfeljebb kétharmadán tehető közzé reklám.
(5) Más célú berendezés reklámcélra nem használható, kivéve a közterület fölé nyúló árnyékoló berendezést, amelynek egész felülete hasznosítható reklámcélra.
28. Egyes utcabútorok elhelyezésére vonatkozó különleges szabályok
58. § (1) A településképi jelentőségű meghatározó területeken belül az utasvárók azonos kialakításban és típusban jelenjenek meg.
(2) Közterületen kioszk nem létesíthető.
(3) Közterületen közművelődési célú hirdetőoszlop egymástól legalább 100 méteres távolságra létesíthető, kivéve, ha az intézmény telekszélessége meghaladja az 50 métert, akkor egy telekre több közművelődési célú hirdetőoszlop is elhelyezhető.
(4) Információs célú berendezés az alábbi gazdasági reklámnak nem minősülő közérdekű információ közlésére létesíthető:
a) az önkormányzat működés körébe tartozó információk;
b) a település szempontjából jelentős eseményekkel kapcsolatos információk;
c) a településen elérhető szolgáltatásokkal, ügyintézési lehetőségekkel kapcsolatos tájékoztatás nyújtása;
d) idegenforgalmi és közlekedési információk;
e) a társadalom egészét vagy széles rétegét érintő, elsősorban állami információk;
f) gazdasági reklámnak nem minősülő közérdekű információk
(5) Az információs célú berendezés felületének legfeljebb kétharmada vehető igénybe reklám közzétételére, felületének legalább egyharmadának közérdekű információt kell tartalmaznia.
29. A reklámokra, reklámhordozókra vonatkozó követelményektől való eltérés szabályai
59. § (1) A település szempontjából jelentős valamely eseményről való tájékoztatás érdekében szükséges reklámhordozó, reklámhordozót tartó berendezés kihelyezése évente összesen 12 naptári hét időszakra, bármely települési területen megengedett.
(2) Építési reklámháló kihelyezésére az építési tevékenység időtartamára akkor van lehetőség, ha
a) a felújítás megkezdésének időpontja az építésinaplóba történt bejegyzéssel igazolható,
b) építési napló vezetési kötelezettség nem áll fenn, azonban az érintettek vállalják azt, és ezzel igazolják a felújítás megkezdését.
Az egyéb műszaki berendezésekre vonatkozó településképi követelmények
60. § Az egyéb műszaki berendezések esetén
a) a technikailag szükséges legkisebb tömeget közelítő,
b) arányos, és
c) a funkcióját tükröző
kialakítás alkalmazható.
61. § Az egyéb műszaki berendezésekre vonatkozó anyaghasználata során
a) nem rozsdásodó,
b) minőséget képviselő,
c) könnyen karbantartható,
d) élénk színeket nem használó,
e) az épület vagy építmény megjelenését kedvezőtlenül nem befolyásoló
anyag használható.
62. § (1) A településképi szempontból meghatározó területen a közműlétesítmények, különösen a nyomvonalas létesítmények, az elektromos transzformátor, a közvilágítási kapcsolószekrény, a távközlési elosztószekrény, a gáznyomásszabályzó elhelyezésénél figyelemmel kell lenni a településképi megjelenésre.
(2) Védett és településképi szempontból meghatározó területen
a) a vezetékes elektronikus és hírközlési hálózat föld alatt vagy meglévő oszlopsoron vezethető, új oszlop létesítése nem megengedett,
a) a kisfeszültségű erőátviteli és közvilágítási hálózatokat, illetve a vezetékes elektronikus hírközlési hálózat nyomvonalas létesítményeit földalatti elhelyezéssel kell kivitelezni.
63. § Kisméretű mobilhálózati bázisállomás (mikrocella)
a) meglévő közműoszlopokon,
b) épületek tetőszerkezetén takart módon
helyezhető el.
64. § (1) A településképi szempontból meghatározó területen magas tetős épület esetén, táblás napelem vagy napkollektor a védett, vagy településképi jelentőségű út felé néző homlokzaton nem helyezhető el.
(2) Napelemcserép a tető teljes felületén alkalmazható, kivéve védett épületen.
(3) Homlokzati napelem elhelyezésének igazodnia kell az épület nyílásméretéhez és kiosztásához.
65. § Védett épületen homlokzati napelem, napkollektor nem helyezhető el.
66. § Műszaki berendezés homlokzaton történő elhelyezésének
a) illeszkednie kell a homlokzat képébe,
b) helyi védelemmel érintett épületeken a településképi jelentőségű útvonal felőli oldalon közterület felől látható módon klíma berendezés kültéri egysége nem helyezhető el.
67. § Hulladéktároló konténerek és kukák tárolása céljából a közterületeken robosztus, fedett, rácsos építmény nem helyezhető el.
Ötödik rész
Településkép-érvényesítési eszközök
A településkép-védelmi tájékoztatás és szakmai konzultáció
68. § Kötelező a szakmai konzultáció minden egyszerű bejelentés alapján végezhető építési tevékenység, valamint a településképi értelemben meghatározó és kiemelt jelentőségű területeken végzett építési tevékenység megkezdése előtt, legyen az építési engedély köteles, egyszerű bejelentés köteles, vagy építési engedély és egyszerű bejelentés nélkül végezhető építési tevékenység.
69. § (1)2 A szakmai konzultáció lefolytatása a megbízott települési főépítész (annak hiányában az önkormányzat) feladata. Igény esetén a megbízott települési főépítész bármely építési ügyben tájékoztatást és szakmai konzultációt biztosít.
(2) A szakmai konzultációt a tulajdonos, a beruházó, vagy a tervező írásban kezdeményezi az alábbi tartalmi követelménnyel:
a) tervezett tevékenység területi beazonosítása,
b) tervezett tevékenység rövid leírása;
c) fotók a közterület felőli arculati megjelenés bemutatásához,
d) beépítési koncepció vázlatos bemutatása.
(3) A településkép védelme érdekében a főépítész tájékoztatást ad és a szakmai konzultációt biztosít legfőképpen az alábbi településképi követelmények esetében:
a) építési helyen belüli építményelhelyezés,
b) építési helyen belüli melléképület elhelyezése,
c) az illeszkedés szabályainak megállapítása,
d) egy építési telken több épület elhelyezése,
e) tetőidomok, tetőhajlásszögek, és tetőablakok megállapításánál
f) védelem alatt álló területen lévő épület felújítása, átalakítása során, reklámok, feliratok, közművek homlokzaton való elhelyezése során, annak érdekében, hogy az épület eredeti formavilágának megtartása biztosított legyen,
g) az épületek homlokzati színezésének, tetőformájának és tetőhéjazatának kialakításánál, változtatásánál, anyagának és színezésének meghatározásánál,
h) közterületen elhelyezkedő, és újonnan elhelyezendő mikroarchitektúra elemek, utcabútorok, képzőművészeti alkotások, térburkolatok, jelző és irányító táblák, és minden egyéb közterületi tárgy esetében, ha a közterületről látható változást eredményez,
i) kivitelezési időszakra, ideiglenesen felállított állvány, felvonulási épület, mobil wc, mobil mosdó-zuhanyozó építmény elhelyezése,
j) vízfelület létesítése
(4) A szakmai konzultációról emlékeztető készül, melyben az alábbiak kerülnek rögzítésre:
a) a tervezett tevékenység helyszínét érintő – településképi rendeletben szereplő – településképi követelmények;
b) felvetett javaslatok
(5) A szakmai konzultáció során a főépítész javaslatot tehet a településképi követelmények érvényesítésének módjára.
(6) A tervezés során ugyanazzal az építési munkával kapcsolatban az építtető, illetve az általa megbízott tervező több szakmai konzultációt is kezdeményezhet.
A településképi véleményezési eljárás
70. § A településképi véleményezési eljárás lefolytatásának megindításához szükséges kérelmet a rendelet 6. melléklete tartalmazza.
71. § Az eljárás során a tervdokumentáció tartalmát az önkormányzati főépítész ellenőrzi.
72. §3 A képviselő-testület a 7. mellékletben meghatározottak szerint ad véleményt a települési főépítész álláspontja alapján.
73. § A településképi véleményezési eljárás során
a) településrendezési eszköznek való megfelelés tekintetében vizsgálni kell, hogy a tervezett építési tevékenység megfelel-e a jelen rendeletben foglalt településképi követelményeknek és illeszkedési szabályoknak,
b) az alaprajzi elrendezéssel kapcsolatban vizsgálni kell, hogy
ba) a földszinti alaprajz, a tervezett rendeltetés, illetve az azzal összefüggő használat sajátosságaiból eredően, nem korlátozza, akadályozza vagy nem zavarja-e a szomszédos ingatlanok rendeltetésszerű használatát,
bb) az alaprajzi megoldások nem eredményezik-e az épület tömegének és homlokzatainak településképi szempontból kedvezőtlen megjelenését,
c) a határoló közterülettel való kapcsolatot illetően vizsgálni kell, hogy a tervezett építési tevékenység vagy építmény
ca) korlátozza-e a közúti közlekedést és annak biztonságát,
cb) korlátozza-, illetve zavarja-e a gyalogos és a kerékpáros közlekedést és annak biztonságát,
cc) megfelelően veszi-e figyelembe a közterület adottságait és esetleges berendezéseit, műtárgyait, a meglévő, vagy telepítendő növényzetét,
cd) szükségessé tesz-e közterületet érintő beavatkozást és a terv tartalmaz-e erre vonatkozó javaslatot,
ce) a közterület fölé benyúló építmény-része, szerkezete és berendezése befolyásolja-e a közterület használatát, különös tekintettel a meglévő, illetve a telepítendő növényzetre.
d) vizsgálni kell, hogy
da) – amennyiben sor került rá – figyelembe veszi-e az előzetes tájékoztatás, illetve szakmai konzultáció során készült emlékeztetőben foglaltakat,
db) amennyiben da) pontban foglalt emlékeztetőben foglaltak mellőzésre kerülnek, az eltérő megoldás azzal egyenértékű vagy kedvezőbb-e,
e) vizsgálni kell, hogy a kérelem tárgya megfelel-e a rendeletben foglalt településképi követelményeknek.
A településképi bejelentési eljárás
74. § Az eljárás megindításához szükséges bejelentés formanyomtatványát a rendelet 8. melléklete tartalmazza.
75. § Településképi bejelentési eljárást kell lefolytatni a rendelet 9. mellékletében meghatározott esetekben, az építési tevékenységet megelőzően,
a) az építésügyi hatósági engedélyhez vagy az egyszerű bejelentéshez nem kötött építési tevékenységek esetében,
b) a reklámok elhelyezése tekintetében, a reklámelhelyezést megelőzően,
c) az építmények rendeltetésének megváltoztatása tekintetében, a rendeltetés-változtatást megelőzően.
76. § (1) A bejelentést és a mellékletét képező dokumentációt a tevékenység megkezdése előtt legalább 15 nappal kell benyújtani a polgármesterhez.
(2)4 A településképi bejelentési eljárás során a képviselő-testület a főépítész szakmai álláspontját megismerve hatósági határozatban dönt.
(3) A településképi megfelelőség körében a rendeletben foglalat településképi követelményeknek való megfelelőséget kell vizsgálni, különös tekintettel az alábbiakra:
a) a településképi megfelelőség körében elsősorban
aa) a telepítés (környezetbe illeszkedés, a beépítés vagy az építészeti jellegzetesség és látvány, a helyi jelleg védelme) településképbe való illesztése, a helyi építészeti érték védelmének érvényre juttatása, azokra gyakorolt hatása,
ab) a településrendezési eszközöknek való megfelelést, a rálátás és kilátás követelményeinek való megfelelés,
ac) az épület homlokzatának és tetőzetének kialakítási módja,
ad) közterület mentén az épület kialakításának módja, feltételei,
ae) az építmény takaratlanul maradó és közterületről közvetlenül látható határfelületeinek kialakítási módja és feltételei, valamint
af) közterületen folytatott építési tevékenység végzése esetén a közterület burkolatának, műtárgyainak, köztárgyainak, növényzetének, továbbá a díszvilágító és hirdető-berendezések kialakítása.
b) a kialakult település-, illetve telekszerkezetnek való megfelelés,
c) a környezet kialakult illetve védendő építészeti valamint zöldfelületi adottságaihoz történő illeszkedés,
d) a tervezett jövőbeli beépítéshez történő illeszkedés,
e) a kialakult magassági adottságokhoz történő illeszkedés,
f) a reklám-, illetve hirdető-berendezések kialakításával és elhelyezésével kapcsolatos szabályoknak és követelményeknek való megfelelés
(4)5 A képviselő-testület döntésében nem javasolja, illetve megtilthatja, ha a tervezett építési munka:
a) A helyi területi védettség esetén a meglévő utcaszerkezet, építési vonal, telekosztás, építmények tér- és tömegarányának, tetőformájának, párkány- és gerincmagasságának megváltoztatásával jár;
b) A helyi területi védettség esetén a településkép feltárulása szempontjából zavaró megjelenésű, színű, formájú, a település általános építészeti színvonalát rontja;
c) HV egyedi védettség esetén az épület, építmény tömegének, homlokzatának, tetőzetének, homlokzati tagozatainak, díszítőelemeinek, burkolatainak, tetőfelépítményeinek, kéményeinek, nyílászáró szerkezeteinek, valamint egyéb épülettartozékainak megváltoztatásával, eltávolításával vagy elbontásával jár;
d) bármely védettségi és településképi szempontból meghatározó kategória esetén a környezetbe nem illő építéstechnológia, homlokzatkiképzés, felületképzés és színezés alkalmazását tervezi, és a védett érték vagy településkép megőrzését veszélyeztetné, jellegét hátrányosan megváltoztatná, vagy értékcsökkenését eredményezné.
(5)6 A képviselő-testület döntésében a rendeletben foglalt településképi követelményt egyedileg is meghatározhatja az alábbiak szerint:
a) meghatározhatja az épület tetőfedésének anyagát,
b) előírhatja a homlokzat kialakításának módját és színezését,
c) korlátozhatja az építmények falán reklám felfestését vagy reklámhordozó elhelyezését, a portálokon és nyílászárókon elhelyezett reklámgrafikák megjelenését;
d) megtilthatja az építmények közterületről látható megjelenését kedvezőtlenül befolyásoló gépészeti berendezések, antennák, légvezetékek, árnyékolók alkalmazását;
e) előírhatja és korlátozhatja reklámhordozók, hirdetőfelületek, hirdető berendezések, cégérek, cégtáblák, címfeliratok elhelyezésének módját és formáját.
A településképi kötelezés, a településképi kötelezési eljárás
77. § (1) A településképi kötelezés alapja a rendeletben foglalt településképi követelmények és eljárási kötelezettségek megsértése, így különösen:
a) szakmai konzultáció elmulasztása,
b) települési véleményezési eljárás elmulasztása,
c) településképi bejelentési eljárásban megtiltott tevékenység folytatása,
d) településképi bejelentési eljárásban tudomásul vett tevékenység eltérő végrehajtása,
e) településképi rendeletben meghatározott követelmények nem teljesítése.
(2) Településképi rendeletben meghatározott követelmények nem teljesítésének minősül különösen:
a) helyi védett területeken területi és egyedi építészeti követelmények be nem tartása,
b) településképi szempontból meghatározó területeken területi és egyedi építészeti követelmények be nem tartása,
c) építmény, építményrész vonatkozásában, ha annak:
ca) műszaki állapota nem megfelelő, balesetveszélyes, homlokzati elemei hiányosak, töredezettek, színezése kopott,
cb) nem a rendeltetésnek megfelelő funkcióra használják,
cc) megjelenése, színezése az egységes és harmonikus településképet rontja,
cd) az építési övezetre előírt zöldfelületi kialakítás, parkoló-fásítás, növényzettelepítés nem valósult meg, hiányos, vagy az elpusztult növényzet pótlása nem történt meg,
ce) a telek szabad területét nem a terület-felhasználási előírásoknak megfelelően használják,
cf) az építkezéssel érintett telek és környezete az építés ideje alatt nincs a vonatkozó előírásoknak megfelelően rendben tartva, bekerítve,
d) a 17. § (3) bekezdés szerinti esetekben.
78. § (1)7 A képviselő-testület településképi kötelezés formájában – önkormányzati hatósági döntéssel – a településképi követelmények teljesülése érdekében az ingatlan tulajdonosát az építmény, építményrész
a) felújítására,
b) átalakítására,
c) elbontására,
kötelezheti.
(2)8 Az (1) bekezdésben foglalt kötelezéssel egyidejűleg a képviselő-testület az ingatlan tulajdonosát 1.000.000,-Ft-ig terjedő, közigazgatási bírságnak minősülő településkép-védelmi bírság megfizetésére kötelezheti.
(3) Amennyiben a tulajdonos a helyi védelem alatt álló építményt, építményrészt jogsértő módon elbontja, a kiszabható legmagasabb településkép-védelmi bírsággal sújtandó.
79. § (1) A településképi kötelezési eljárás hivatalból, vagy kérelemre indul, és az alábbi eseteket vizsgálja:
a) a szakmai konzultáció elmulasztása,
b) településképi véleményezési eljárás elmulasztása,
c) településképi bejelentési eljárásban megtiltott tevékenység folytatása,
d) településképi bejelentési eljárásban tudomásul vett tevékenység eltérő végrehajtása,
e) településképi rendeletben szereplő követelmények nem teljesítése.
(2)9 A településképi kötelezési eljárást a képviselő-testület folytatja le, és – szükség esetén, hatósági határozat formájában – kötelezést bocsát ki.
(3) A kötelezés a településképi követelmények teljesülése érdekében, az ingatlan tulajdonosát, az építmény/építményrész
a) felújítására,
b) átalakítására, vagy
c) elbontására,
d) a több egységből álló építmények homlokzatainak, kirakatszekrényeinek, feliratainak, reklámberendezéseinek összehangolt építészeti-műszaki tervezésére és kivitelezésére,
e) a rossz műszaki állapotban lévő, a településképet rontó építmények külső helyreállítására és színezésére, legfeljebb 2 éves határidővel;
f) a jogszabályok előírásaival ellentétesen – de 10 évnél nem régebben – elhelyezett, illetőleg felszerelt pavilonok, sátrak, elmozdítható (térelemes vagy kerekes) építményjellegű szerkezetek, árusítás vagy szolgáltatás céljára használt, üzlethelyiségtől független védőtetők, szabadtéri pultok, asztalok, hirdető- vagy reklámberendezések és más szerkezetek eltávolítására, legfeljebb 30 napos határidővel;
g) az egységes utcakép biztosítása, a telek településképileg megfelelő állapotának megőrzése, vagy a közterület és a szomszédos ingatlanoknak – a telken folytatott tevékenység miatt – szükségessé váló védelme céljából a telek bekerítésére, vagy pedig a telek kerítésének elbontására, illetőleg bekerítésének elhagyására, és helyette a telekhatár kertészeti eszközökkel (sövénnyel, rézsűvel, kis támfallal, stb.) történő megjelölésére, legfeljebb 1 éves határidővel
kötelezheti.
80. § (1) A településképi kötelezési eljárásban kiszabott bírságot az Önkormányzat bírságról szóló határozatában szereplő bankszámlaszámára kell megfizetni.
A helyrehozatali kötelezettség
81. § A településkép javítása érdekében, az azt rontó állapotú építményekre helyrehozatali kötelezettség írható elő, a következő feltételek együttes teljesülésével:
a)10 Helyrehozatali kötelezettséget a képviselő-testület hatósági döntésében írhat elő.
b) Helyrehozatali kötelezettség kizárólag a településképben megjelenő (közterületről látható, közterület felőli rálátással érintett) építmény(ek)re írható elő.
c) A helyrehozatali kötelezettségnek tartalmaznia kell az alábbiakat:
ca) az építmény beazonosítására alkalmas adatait (cím, helyrajzi szám, alaptérképi elhelyezkedés);
cb) a helyrehozatali kötelezettség címzettjét, aki az építménynek helyet adó ingatlan tulajdonosa;
cc) a helyrehozatali kötelezettség által érintett szerkezet, arculati elem leírását, vagy a teljes építmény megnevezését;
cd) a helyrehozatal teljesítésének végső határidejét;
ce) a határidő meghosszabbításának lehetőségeit, indokait;
cf) a helyrehozatal kivitelezéséhez nyújtható önkormányzati támogatás lehetőségét és feltételeit; valamint
cg) a helyrehozatal nem teljesítésének szankcióit (pl. településképi kötelezés, településkép-védelmi bírság).
Záró rész
Záró rendelkezések
82. § (1) Ez a rendelet 2018. januárt 1. napján lép hatályba.
(2) A rendelet előírásait a hatálybalépést követően indult eljárásokban kell alkalmazni.
(3) A rendelet hatálybalépésekor már folyamatban lévő ügyekben, kizárólag az építtető, vagy a tulajdonos kérésére, alkalmazhatók jelen rendelet előírásai.
(4) A rendelet hatálybalépésével egyidejűleg hatályát veszti Sajóecseg község Helyi Építési Szabályzatáról és Szabályozási Tervéről szóló 7/2009 (XI.25.) önkormányzati rendeletének
6. § (4) bekezdése, 8. § (5) bekezdése, 10. §-a, 17. § (15) bekezdése, 24. § (3) bekezdése, 24. § (4) bekezdése, 24. § (5) bekezdése, 24. § (6) bekezdése, V. Fejezetének 25. § - 33. §- ai, 2.számú Függeléke.
1. Melléklet a 12/2017.(XII.22.) önkormányzati rendelethez
1. Településképi szempontból jelentős, meghatározó útvonalak
A |
B |
|
|---|---|---|
1 |
Sorszám |
Utca |
2 |
1. |
Állomás utca |
3 |
2. |
Petőfi S. utca |
Melléklet 1. ábra: Településképi szempontból jelentős, meghatározó útvonalak térképvázlata
2. Településképi szempontból jelentős, meghatározó útvonalak mellett fekvő, az úthoz csatlakozó telkek sora
Melléklet 2.ábra: Településképi szempontból jelentős, meghatározó útvonalak mellett fekvő, az úthoz csatlakozó telkek sorát és azok területfelhasználását tartalmazó térképvázlat
2. Melléklet a 12/2017.(XII.22.) önkormányzati rendelethez

3. Melléklet a 12/2017.(XII.22.) önkormányzati rendelethez
1. Általánosan helyi védett épületek
A |
B |
C |
D |
E |
|
|---|---|---|---|---|---|
1 |
Sor |
Helyrajzi szám |
Utcanév |
Ház |
Leírás |
2 |
1 |
73/4 |
Széchényi u. |
2. |
I. Rákóczi György Általános Iskola épülete |
3 |
2 |
74 |
Széchényi u. |
4. |
Református Egyházhoz tartozó parókia és imaház |
4 |
3 |
154 |
Széchényi u. |
5. |
lakóház |
5 |
4 |
75 |
Széchényi u. |
6. |
lakóház |
6 |
5 |
76/1 |
Széchényi u. |
8. |
lakóház |
7 |
6 |
77/1 |
Széchényi u. |
10. |
lakóház |
8 |
7 |
146 |
Széchényi u. |
15. |
lakóház |
9 |
8 |
83/1 |
Széchényi u. |
16. |
lakóház |
10 |
9 |
88 |
Széchényi u. |
20. |
lakóház |
11 |
10 |
132 |
Széchényi u. |
35. |
lakóház |
12 |
11 |
95 |
Széchényi u. |
34. |
lakóház |
13 |
12 |
131 |
Széchényi u. |
37. |
lakóház |
14 |
13 |
100 |
Széchényi u. |
42. |
lakóház |
15 |
14 |
123 |
Széchényi u. |
43. |
lakóház |
16 |
15 |
101 |
Széchényi u. |
46. |
lakóház |
17 |
16 |
116 |
Széchényi u. |
51. |
lakóház |
18 |
17 |
115 |
Széchényi u. |
53. |
lakóház |
19 |
18 |
112 |
Széchényi u. |
57. |
lakóház |
20 |
19 |
108 |
Széchényi u. |
61. |
lakóház |
21 |
20 |
194 |
Thököly u. |
17. |
lakóház |
22 |
21 |
144 |
Thököly u. |
20. |
lakóház |
23 |
22 |
180 |
Thököly u. |
43. |
lakóház |
24 |
23 |
172/1 |
Thököly u. |
59. |
lakóház |
25 |
24 |
172/2 |
Thököly u. |
59. |
lakóház |
26 |
25 |
188 |
Thököly u. |
27. |
lakóház |
2. Tömegében megtartandó helyi védett épületek
A |
B |
C |
D |
E |
|
|---|---|---|---|---|---|
1 |
Sor |
Helyrajzi szám |
Utcanév |
Ház |
Leírás |
2 |
1 |
155/1 |
Széchényi u. |
3. |
melléképület |
3 |
2 |
78 |
Széchényi u. |
12. |
lakóház |
4 |
3 |
149/1 |
Széchényi u. |
13. |
lakóház |
5 |
4 |
84 |
Széchényi u. |
18. |
lakóház |
6 |
5 |
145 |
Széchényi u. |
19. |
lakóház |
7 |
6 |
88 |
Széchényi u. |
20 |
lakóház |
8 |
7 |
143/1 |
Széchényi u. |
21. |
lakóház |
9 |
8 |
90 |
Széchényi u. |
24. |
lakóház |
10 |
9 |
140 |
Széchényi u. |
25. |
lakóház |
11 |
10 |
92 |
Széchényi u. |
26. |
lakóház |
12 |
11 |
126 |
Széchényi u. |
41. |
lakóház |
13 |
12 |
201/1 |
Thököly u. |
1. |
lakóház |
14 |
13 |
199 |
Thököly u. |
7. |
lakóház |
15 |
14 |
157 |
Thököly u. |
12. |
lakóház |
16 |
15 |
152 |
Thököly u. |
16. |
lakóház |
17 |
16 |
134 |
Thököly u. |
28. |
lakóház |
18 |
17 |
180 |
Thököly u. |
45. |
lakóház |
Melléklet 4. ábra: Helyi egyedi építészeti értékvédelemmel védett épületek elhelyezkedésének térképvázlata
4. Melléklet a 12/2017.(XII.22.) önkormányzati rendelethez
1. Helyi védelem alatt álló műalkotások
A |
B |
C |
D |
|
|---|---|---|---|---|
1 |
Sor |
Alkotás megnevezése |
Anyaga |
Hely |
2 |
1 |
I. és II. világháborús emlékmű |
műkő, márvány lapokkal |
Sajóecseg, Református templom mögötti közpark |
3 |
2 |
1956-os emlékmű |
márvány |
Sajóecseg, Református templom mögötti közpark |
4 |
3 |
Emléktábla az 1944-45-ben sajóecsegi gyűjtőtáborban szenvedők valamint a szovjet kényszermunka- és fogolytáborokba elhurcoltak emlékére |
márvány |
Sajóecseg, Széchényi utca 7. |
5 |
4 |
Egyházi emlékmű |
műkő, márvány |
Sajóecseg, Római Kat. templom kertje, Petőfi S. u. |
6 |
5 |
Egyházi emlékmű |
műkő, márvány |
Sajóecseg, temető területe |
Melléklet 5. ábra: Helyi védelem alatt álló műalkotások elhelyezkedésének térképvázlata
5. Melléklet a 12/2017.(XII.22.) önkormányzati rendelethez


6- Melléklet a 12/2017.(XII.22.) önkormányzati rendelethez
Kérelmező tölti ki |
Kérelem - Településképi véleményezési eljárás lefolytatásához |
||||||
|---|---|---|---|---|---|---|---|
A Kérelem az ..../2017.(.. . .. .) Ö.r. 7. mellékletének ..................pontja alapján kerül benyújtásra |
|||||||
I. Építtető adatai (kötelező) |
Tervező adatai |
||||||
Név: |
Tervező: |
||||||
Lakcím vagy székhely: |
|||||||
Levelezési cím: |
Levelezési cím: |
||||||
Kapcsolattartó: |
Tervezői jogosultság sz.: |
||||||
Tel./e-mail: |
Tel./e-mail: |
||||||
Kérelmező: |
Építtető; Ingatlan tulajdonosa |
||||||
II. Építési helyszín adatai - az ingatlan adatai |
|||||||
Ingatlan címe: |
Hrsz.: |
||||||
Igen |
Nem |
Igen |
Nem |
||||
Területi védelem |
Közterület |
||||||
Helyi egyedi védelem |
Önk. tul. v. kezelés |
||||||
III. Építési tevékenység |
|||||||
a) rövid leírása: |
|||||||
b)a tervezett épület(ek) részletes adatai: |
|||||||
ba) telken létesítendő épületek száma: |
db |
be) tervezett építménymagasság: |
m |
||||
bb) telek területe: |
m2 |
bf) tervezett szintterületi mutató: |
m2/m2 |
||||
bc) telek tervezett beépítettsége: |
% |
bg) parkolóhelyek, garázsok száma: |
db |
||||
bd) zöldfelület tervezett mértéke: |
% |
bh) közművesítettség: |
|||||
bi) az épület(ek) rendeltetése (több rendeltetési egység esetén az egyes rendeltetési egységek elnevezései /lakások, üdülő, szállás, stb./ és darabszámuk felsorolása): |
|||||||
IV. Az ÉTDR tárhelyre feltöltött építészeti-műszaki tervdokumentáció |
|||||||
ÉTDR azonosítója: |
Az ÉTDR tárhelyre feltöltött építészeti-műszaki tervdokumentáció tartalma |
||||||
a) helyszínrajzi elrendezés ábrázolása, a szomszédos beépítés bemutatása, védettség lehatárolása, terepviszonyok megjelenítése szintvonalakkal |
|||||||
b) településképet befolyásoló tömegformálás, homlokzatkialakítás, utcakép, illeszkedés ábrázolása (lehet makett, fotómontázs, digitális megjelenítés is) |
|||||||
c) reklámelhelyezés ábrázolása |
|||||||
d) rendeltetés meghatározása |
|||||||
e) rövid műszaki leírás a különböző védettségek bemutatásával, a telepítésről és az építészeti kialakításról |
|||||||
f) egyéb (nem kötelező): |
|||||||
Sajóecseg , 20.... ...................... hónap ...... nap |
…………………………………… |
7. melléklet a 12/2017. (XII.22.) önkormányzati rendelethez
Településképi véleményezési eljárás |
||||
ESETEI - építmény építésére, bővítésére irányuló építési, összevont, fennmaradási |
A polgármesteri VÉLEMÉNY |
|||
TERÜLET |
LÉTESÍTMÉNY |
MÓDJA: |
||
I. |
II. |
III. |
||
A |
A település egyes - alábbiakban felsorolt - területeihez kötődő településképi véleményezési eljárás |
|||
1. |
Védett helyi művi értékkel érintett vagy azzal szomszédos ingatlan |
|
- g önkormányzati főépítész |
|
2. |
A településképi szempontból |
|||
3. |
Településképi jelentőségű |
|||
4. |
A SZT szerinti településközpont |
|||
5. |
Az országos közutak mentén |
|||
6. |
A SZT szerinti különleges |
|||
7. |
A SZT szerinti gazdasági |
- önkormányzati főépítész |
||
B |
Az egész település területén egyes - alábbiakban felsorolt - építményekhez kötődő településképi eljárás |
|||
1. |
a./ |
kettő vagy annál több |
|
|
b./ |
az OTÉK vagy a HÉSZ szerint |
|||
c./ |
szobor, emlékmű, kereszt, |
|
||
d./ |
emlékfal építése, amelynek |
|||
e./ |
10 méternél nagyobb teljes |
|||
C |
A település egyes területein, egyes építményekhez kötődő településképi véleményezési eljárás |
|||
|
A kertes mezőgazdasági jelű |
a./ |
90 m2 szintterület fölötti építmények és |
|
b./ |
a lakó funkciót is magukba |
|||
|
A település látványvédelemmel |
a./ |
90 m2 szintterület fölötti |
|
b./ |
a lakó funkciót is magukba |
|||
|
A település beépítésre nem szánt |
a./ |
10 méternél nagyobb beépítési |
|
b./ |
250 m2-nél nagyobb beépített |
|||
4. |
A vasútvonal mentén |
a./ |
zajgátló építmények |
|
8. melléklet
Kérelmező tölti ki |
Kérelem, Településképi bejelentési eljárás lefolytatásához |
|||||
|---|---|---|---|---|---|---|
A Kérelem az ..../2017.(.. . .. .) Ö.r. 8. mellékletének ..................pontja alapján kerül benyújtásra |
||||||
1. Bejelentő adatai (kötelező) |
Tervevező adatai (értelem szerűen) |
|||||
Név: |
Tervező: |
|||||
Lakcím vagy székhely: |
Tervező szervezet: |
|||||
Levelezési cím: |
Levelezési cím: |
|||||
Kapcsolattartó: |
Tervezői jogosultság sz.: |
|||||
Tel./e-mail: |
Tel./e-mail: |
|||||
2. A bejelentés tárgyának helye - az ingatlan adatai |
||||||
Ingatlan címe: |
Hrsz.: |
|||||
Igen |
Nem |
Igen |
Nem |
|||
Területi védelem |
Közterület |
|||||
Helyi egyedi védelem |
Önk. tul. v. kezelés |
|||||
3. A bejelentés tárgya |
4. A bejelentéssel kérelmezett időtartam |
|||||
Építési tevékenység |
Építési tevékenység |
|||||
Reklámelhelyezés |
Hirdető berendezés |
|||||
Rendeltetés változás |
Rendeltetés változás |
|||||
Rövid leírása: |
||||||
5. A bejelentéshez mellékelt dokumentáció tartalma |
2 pld-ban |
|||||
Műszaki leírás (telepítésről, építészeti kialakításról) |
||||||
Helyszínrajz szomszédos építmények és a terepviszonyok feltüntetésével: |
||||||
Alaprajzok: |
||||||
Homlokzatok: |
||||||
Utcaképi vázlat, színterv, látványterv (Fotó dokumentáció): |
||||||
Egyéb (nem kötelező) |
||||||
9. melléklet
Településképi bejelentési eljárást kell lefolytatni |
|||||
|---|---|---|---|---|---|
I. |
II. |
||||
A |
Bontási tevékenységek esetében |
||||
1. |
Építményt, építményrészt érintő |
a./ |
védett helyi művi értékkel érintett ingatlanon minden esetben, |
||
b./ |
településképi meghatározó területen, |
||||
B |
az építésügyi és építésfelügyeleti hatósági eljárásokról és ellenőrzésekről, valamint az építésügyi hatósági szolgáltatásról szóló jogszabályban meghatározott alábbi építési engedély nélkül végezhető építési tevékenységek esetén |
||||
1. |
Építmény átalakítása, felújítása, helyreállítása, korszerűsítése, homlokzatának megváltoztatása, kivéve zártsorú vagy ikres beépítésű építmény esetén, ha e tevékenységek a csatlakozó építmény alapozását vagy tartószerkezetét is érintik |
a./ |
védett helyi művi értékkel érintett ingatlanon, és műemléki környezetben |
||
b./ |
településképi jelentőségű meghatározó útvonalak és területek esetében |
||||
c./ |
kettő vagy annál több rendeltetési egységet magába foglaló épület, továbbá ikerház, csoportház (sorház, láncház, átriumház) - közterület felőli homlokzata - esetében az egész település területén |
||||
2. |
Meglévő építmény utólagos hőszigetelése, homlokzati nyílászáró– cseréje, a homlokzatfelület színezése, a homlokzat felületképzésének megváltoztatása |
a./ |
védett helyi művi értékkel érintett ingatlanon, és műemléki környezetben, |
||
b./ |
településképi jelentőségű meghatározó útvonalak és területek esetében, |
||||
c./ |
kettő vagy annál több rendeltetési egységet magába foglaló épület, továbbá ikerház, csoportház (sorház, láncház, átriumház) - közterület felőli homlokzata - esetében az egész település területén |
||||
3. |
Az épület homlokzatához illesztett előtető, védőtető, ernyőszerkezet építése, meglévő felújítása, helyreállítása, átalakítása, korszerűsítése, bővítése, megváltoztatása |
a./ |
védett helyi művi értékkel érintett ingatlanon, és műemléki környezetben, |
||
b./ |
településképi jelentőségű meghatározó útvonalak és területek esetében, |
||||
c./ |
kettő vagy annál több rendeltetési egységet magába foglaló épület, továbbá ikerház, csoportház (sorház, láncház, átriumház) - közterület felőli homlokzata - esetében az egész település területén |
||||
4. |
A 312/2012.(XI. 8) Korm. rendelet 1. melléklet 14.pont e) alpontjában és a 29. pontban foglaltak figyelembevételével a kereskedelmi, vendéglátó rendeltetésű épület építése, bővítése, amelynek mérete az építési tevékenység után sem haladja meg a nettó 20,0 m2 alapterületet |
a./ |
védett helyi művi értékkel érintett ingatlanon, és műemléki környezetben, |
||
b./ |
településképi jelentőségű meghatározó útvonalak és területek esetében, |
||||
c./ |
az országos közutak mentén elhelyezkedő - a SZT-ben - közlekedési, közműépítési területnek jelölt telkeken és a vele szomszédos telkeken/építési telkeken |
||||
5. |
Nem emberi tartózkodásra szolgáló építmény építése, átalakítása, felújítása, valamint bővítése, amelynek mérete az építési tevékenység után sem haladja meg a nettó 100 m3 térfogatot és 4,5 m gerincmagasságot |
a./ |
védett helyi művi értékkel érintett ingatlanon, és műemléki környezetben |
||
b./ |
településképi jelentőségű meghatározó útvonalak és területek esetében |
||||
Településképi bejelentési eljárást kell lefolytatni |
|||||
|---|---|---|---|---|---|
I. |
II. |
||||
6. |
Önálló reklámtartó építmény építése, meglévő felújítása, helyreállítása, átalakítása, korszerűsítése, bővítése, megváltoztatása |
a./ |
az országos vagy helyi védettség alatt álló építményeken, illetve területeken, valamint azok környezetében |
||
b./ |
településképi jelentőségű meghatározó útvonalak és területek esetében |
||||
c./ |
az országos közutak mentén elhelyezkedő - a SZT-ben - közlekedési, közműépítési területnek jelölt telkeken és a vele szomszédos telkeken/építési telkeken |
||||
7. |
Kerítés, kerti építmény, tereplépcső, járda és lejtő, háztartási célú kemence, húsfüstölő, jégverem, valamint zöldségverem építése, építménynek minősülő növénytámasz, növényt felfuttató rács építése, meglévő felújítása, helyreállítása, átalakítása, korszerűsítése, bővítése |
a./ |
védett helyi művi értékkel érintett ingatlanon és műemléki környezetben |
||
b./ |
településképi jelentőségű meghatározó útvonalak és területek esetében |
||||
8. |
Napenergia-kollektor, szellőző-, klíma-, riasztóberendezés, villámhárító-berendezés, áru- és pénzautomata, kerékpártartó, zászlótartó |
a./ |
védett helyi művi értékkel érintett ingatlanon és műemléki környezetben |
||
b./ |
településképi jelentőségű meghatározó útvonalak és területek esetében |
||||
c./ |
kettő vagy annál több rendeltetési egységet magába foglaló épület, továbbá ikerház, csoportház (sorház, láncház, átriumház) - közterület felőli homlokzata - esetében az egész település területén |
||||
9. |
Építménynek minősülő, háztartási hulladék elhelyezésére szolgáló hulladékgyűjtő és tároló, sorompó, árnyékoló elhelyezése |
a./ |
védett helyi művi értékkel érintett ingatlanon és műemléki környezetben |
||
10. |
Utasváró fülke építése. |
a./ |
a település egész közigazgatási területén. |
||
11. |
Megfelelőség-igazolással - vagy 2013. július 1-je után gyártott szerkezetek esetében teljesítménynyilatkozattal - rendelkező építményszerkezetű, és legfeljebb 180 napig fennálló |
a./ |
védett helyi művi értékkel érintett ingatlanon és műemléki környezetben |
||
b./ |
településképi jelentőségű meghatározó útvonalak és területek esetében |
||||
C |
Építési engedélyezési eljáráshoz nem kötött, építési tevékenységnek minősülő egyéb tevékenység |
||||
1. |
Közterületen bérleti szerződés keretében végzett, építési tevékenységnek minősülő vendéglátó ipari üzleti előkert létesítése |
a./ |
fokozott védelmet élvező közterületeken. |
||
2. |
Zajgátló építmények |
a./ |
a vasút- és a főútvonalak mentén. |
||
3. |
Utasváró fülke építése |
a./ |
a település egész közigazgatási területén. |
||
Településképi bejelentési eljárást kell lefolytatni |
|||
I. |
II. |
||
D |
Építési engedélyhez nem kötött - reklámok elhelyezése tekintetében: |
||
1. |
A településképi jelentőségű meghatározó útvonalak és területek esetében valamint az országos vagy helyi védettség alatt álló |
||
2. |
a településtáj és természetvédelemmel érintett kiemelt térségi övezeteiben állandó vagy mobil tartószerkezettel rendelkező, |
||
E |
Építmények rendeltetésének (rendeltetés módjának) megváltoztatása esetében: |
||
1. |
Építési engedélyhez nem kötött |
a./ |
a település egész közigazgatási területén. |
1. Függelék a 12/2017.(XII.22.) önkormányzati rendelethez
1. Külön jogszabályban megállapított műemlék épület, műemlék épület telke
A |
B |
C |
D |
E |
|
|---|---|---|---|---|---|
1 |
Megnevezés |
Cím |
Helyrajzi szám |
Műemléki törzsszám |
Műemléki azonosító szám |
2 |
Református templom |
Sajóecseg, Széchényi utca |
72 |
8827 |
3058 |
2. Külön jogszabályban megállapított műemlék műemléki környezete
A |
B |
C |
D |
E |
|
|---|---|---|---|---|---|
1 |
Megnevezés |
Cím |
Érintett helyrajzi szám |
Műemléki törzsszám |
Műemléki azonosító szám |
2 |
Református templom |
Sajóecseg |
061/23, 65, 70, 71, 73/4, 149/1, 150, 151/1 |
8827 |
23027 |

2. Függelék a 12/2017.(XII.22.) önkormányzati rendelethez
A |
B |
C |
D |
E |
F |
G |
|
|---|---|---|---|---|---|---|---|
1 |
Azonosító |
Település |
Lelőhely |
Név |
HRSZ |
EOV Y koordináta |
EOV X koordináta |
2 |
16263 |
Sajóecseg |
1 |
Homokbánya |
076/2, 070/2, 076/13, 076/4, 075, 076/12 |
779125 |
316851 |
3 |
45455 |
Sajóecseg |
3 |
Körtvélyes-dűlő |
037/9 |
777924 |
319454 |
4 |
51832 |
Sajóecseg |
4 |
Nyugati főút mentén |
08/4, 08/3, 08/5, 021, 022/1, 022/2 |
777505 |
317306 |
5 |
57729 |
Sajóecseg |
5 |
26-os főúttól ÉK-re |
022/2, 022/3, 020 |
776996 |
317246 |
6 |
57733 |
Sajóecseg |
6 |
Kövecses 2. |
029/5, 030, 029/6, 029/7, 029/8 |
776401 |
318355 |
7 |
57806 |
Sajóecseg |
7 |
Kövecses |
029/5, 029/1, 029/4 |
776832 |
318099 |
8 |
75181 |
Sajóecseg |
8 |
Temető-dűlő |
026/1, 022/4 |
777301 |
317756 |
9 |
21273 |
Sajóecseg |
9 |
Kövecses-dűlő |
030, 060, 059/4 |
776166 |
318963 |
10 |
16264 |
Sajóecseg |
11 |
"Vasúti őrház" |
059/1, 059/3, 059/4, 072/8, 072/2, 061, 2951/5, 2951/3, 2951/2, 074/4, 074/3, 074/2, 074/1, 075/1, 073/1, 073/2 |
775552 |
319174 |

3. Függelék a 12/2017.(XII.22.) önkormányzati rendelethez
1. NATURA 2000 terület
Sajó-völgy (HUAN20006) által érintett ingatlanok helyrajzi számok szerint: 037/2, 037/3, 037/4, 037/6, 037/7, 037/8, 037/9, 038, 039, 041, 042/1, 042/2, 043/1, 043/2, 044, 045, 046, 047/3, 049/10, 051/2, 052, 063, 065, 070, 072

Függelék 3. ábra: NATURA2000 által érintett területek térképvázlata
2. Nemzeti ökológiai hálózat övezete

Függelék 4. ábra: Nemzeti ökológiai hálózat elhelyezkedésének térképvázlata
3. Tájképvédelmi szempontból kiemelt területek
Függelék 5. ábra: Tájképvédelmi szempontból kiemelt terület elhelyezkedésének térképvázlata
4. Helyi védett területek
A tájkép feltáruló látványának helyileg védett pontjai:
- a Thököly utca Sajó folyóhoz kifutó pontjából és
- a „Tóalj”, 02 hrsz.-ú telken, északi és déli irányok felé
- a község temetője felől a település irányába.

Függelék 6. ábra: A tájkép feltáruló látványának helyileg védett pontjainak térképvázlata
4. Függelék a 12/2017.(XII.22.) önkormányzati rendelethez
1. Fásításra, növénytelepítésre javasolt őshonos növények jegyzéke
A TELEPÍTÉSRE JAVASOLT NÖVÉNYFAJTÁK FELSOROLÁSA
1. Fásításra, növénytelepítésre javasolt őshonos növények jegyzéke
1.1 Lombos fafajok
tudományos (latin) elnevezés |
magyar elnevezés |
|---|---|
Acer campestre |
mezei juhar |
Acer platanoides |
korai juhar |
Acer pseudoplatanus |
hegyi juhar, jávorfa |
Acer tataricum |
tatár juhar, feketegyűrű juhar |
Alnus glutinosa (allergén) |
enyves éger, mézgás éger, berekfa |
Alnus incana |
hamvas éger |
Betula pendula (allergén) |
közönséges nyír, bibircses nyír |
Betula pubescens |
szőrös nyír, pelyhes nyír |
Carpinus betulus |
közönséges gyertyán |
Cerasus avium (Prunus avium) |
vadcseresznye, madárcseresznye |
Cerasus mahaleb (Prunus mahaleb) |
sarjmeggy, török meggy |
Fagus sylvatica |
közönséges bükk |
Fraxinus angustifolia ssp. pannonica |
magyar kőris |
Fraxinus excelsior |
magas kőris |
Fraxinus ornus |
virágos kőris, mannakőris |
Juglans regia |
közönséges dió |
Malus sylvestris |
vadalma |
Padus avium |
zelnicemeggy, májusfa |
Populus alba * |
fehér nyár, ezüst nyár |
Populus canescens * |
szürke nyár |
Populus nigra * |
fekete nyár, topolyafa, csomoros nyár |
Populus tremula |
rezgő nyár |
Pyrus pyraster |
vadkörte, vackor |
Quercus cerris |
csertölgy, cserfa |
Quercus petraea (Q. sessiliflora) |
kocsánytalan tölgy |
Quercus pubescens |
molyhos tölgy |
Quercus robur (Q. pedunculata) |
kocsányos tölgy, mocsártölgy |
Salix alba (allergén) |
fehér fűz, ezüst fűz |
Salix fragilis |
törékeny fűz, csörege fűz |
Sorbus aria |
lisztes berkenye |
Sorbus aucuparia |
madárberkenye |
Sorbus domestica |
házi berkenye, fojtóska |
Sorbus torminalis |
barkóca berkenye, barkócafa |
Tilia cordata (T. parviflora) |
kislevelű hárs |
Tilia platyphyllos (T. grandifolia) |
nagylevelű hárs |
Ulmus glabra (U. montana, U. scabra) |
hegyi szil |
Ulmus laevis |
vénic szil, lobogós szil, vénicfa |
Ulmus minor (Ulmus campestris) |
mezei szil, simalevelű mezei szil |
1.2 Tűlevelű fajok (fenyők)
tudományos (latin) név |
magyar elnevezés |
|---|---|
Juniperus communis |
közönséges boróka, gyalogfenyő |
1.3 Lombos cserjék
tudományos (latin) név |
magyar elnevezés |
|---|---|
Colutea arborescens |
pukkanó dudafürt |
Cornus mas |
húsos som |
Cornus sanguinea |
veresgyűrű som |
Crataegus laevigata (C. oxyacantha) |
kétbibés galagonya |
Crataegus monogyna |
egybibés galagonya |
Euonymus europaeus |
csíkos kecskerágó |
Euonymus verrucosus |
bibircses kecskerágó |
Frangula alnus (Rhamnus frangula) |
kutyabenge |
Hippophae rhamnoides |
homoktövis |
Lonicera xylosteum |
ükörke lonc, ükörke |
Prunus spinosa |
kökény |
Rhamnus catharticus |
varjútövis (benge) |
Ribes uva-crispa |
- |
Rosa canina |
gyepűrózsa |
Salix caprea |
kecskefűz |
Salix cinerea |
rekettyefűz, hamvas fűz |
Salix purpurea |
csigolyafűz |
Salix viminalis |
kosárkötő fűz |
Sambucus nigra |
fekete bodza |
Sambucus racemosa** |
fürtös bodza |
Spirea salicifolia |
fűzlevelű gyöngyvessző |
Staphylea pinnata |
mogyorós hólyagfa |
Viburnum lantana |
ostorménfa |
Viburnum opulus |
kányabangita |
* nem „szöszös”, hím egyedek telepítése javasolt csak
** 500 m felett javasolható a telepítése
Allergén növényfajok telepítése kizárólag külterületen, belterülettől és beépítésre szánt területtől nagy távolságra javasolható.
2. TELEPÍTÉSRE NEM JAVASOLT, AZ EURÓPAI UNIÓ SZÁMÁRA VESZÉLYT JELENTŐ IDEGENHONOS, INVÁZIÓS NÖVÉNYFAJOK (IAS) JEGYZÉKE (Hatályos 2017.08.02-tól)

3. TELEPÍTÉSRE NEM JAVASOLT FAJOK A NATURA 2000 GYEPTERÜLETEKEN
3.1. Fásszárú inváziós és termőhely-idegen növényfajok:
Magyar név |
Tudományos név |
|---|---|
akác |
Robinia pseudo-acacia |
amerikai kőris |
Fraxinus americana |
bálványfa |
Ailanthus altissima |
keskenylevelű ezüstfa |
Elaeagnus angustifolia |
fekete fenyő |
Pinus nigra |
erdei fenyő |
Pinus silvestris |
gyalogakác |
Amorpha fruticosa |
kései meggy |
Prunus serotina |
zöld juhar |
Acer negundo |
3.2. Lágyszárú inváziós növényfajok:
Magyar név |
Tudományos név |
|---|---|
alkörmös |
Phytolacca americana |
japánkeserűfű fajok |
Fallopia spp. |
kanadai aranyvessző |
Solidago canadensis |
magas aranyvessző |
Solidago gigantea |
parlagfű |
Ambrosia artemisifolia |
selyemkóró |
Asclepias syriaca |
süntök |
Echinocystis lobata |
4. ÁLTALÁNOS IRÁNYELVEK
A növénytelepítések során őshonos fajok használatára kell törekedni, illetve olyan fajok és kultúrváltozatok alkalmazására, melyek bizonyítottan nem vadulnak ki. Természetvédelmi szempontból nem támogathatók azoknak a növényfajoknak a telepítése, melyek könnyen kivadulnak, természetes élőhelyeken is megjelenhetnek, és károsíthatják az ott előforduló életközösségeket és fajokat.
Ezen fajok listája:
Magyar név |
Tudományos név |
|---|---|
zöld juhar |
Acer negundo |
bálványfa |
Ailanthus altissima |
parlagfű |
Ambrosia artemisiifolia |
gyalogakác |
Amorpha fruticosa |
selyemkóró |
Asclepias syriaca |
lándzsáslevelű őszirózsa |
Aster lanceolatus |
kopasz őszirózsa |
Aster novi-belgii |
fűzlevelű őszirózsa |
Aster x salignus |
kerti seprűfű |
Bassia scoparia |
nyugati ostorfa |
Celtis occidentalis |
süntök |
Echinocystis lobata |
keskenylevelű ezüstfa |
Elaeagnus angustifolia |
kanadai átokhínár |
Elodea canadensis |
japánkeserűfű fajok |
Fallopia spp. |
amerikai kőris |
Fraxinus pennsylvanica |
csicsóka |
Helianthus tuberosus |
parlagi ligetszépe |
Oenothera biennis |
közönséges vadszőlő |
Parthenocissus inserta |
tapadó vadszőlő |
Parthenocissus quinquefolia |
alkörmös |
Phytolacca americana |
karmazsinbogyó |
Phytolacca esculenta |
kései meggy |
Prunus serotina |
akác |
Robinia pseudoacacia |
magas kúpvirág |
Rudbeckia laciniata |
kanadai aranyvessző |
Solidago canadensis |
magas aranyvessző |
Solidago gigantea |
A 18. § a Sajóecseg Község Önkormányzata Képviselő-testületének 6/2022. (IV. 29.) önkormányzati rendelete 1. §-ával megállapított szöveg.
A 69. § (1) bekezdése a Sajóecseg Község Önkormányzata Képviselő-testületének 6/2022. (IV. 29.) önkormányzati rendelete 2. §-ával megállapított szöveg.
A 72. § a Sajóecseg Község Önkormányzata Képviselő-testületének 6/2022. (IV. 29.) önkormányzati rendelete 3. §-ával megállapított szöveg.
A 76. § (2) bekezdése a Sajóecseg Község Önkormányzata Képviselő-testületének 6/2022. (IV. 29.) önkormányzati rendelete 4. § (1) bekezdésével megállapított szöveg.
A 76. § (4) bekezdése a Sajóecseg Község Önkormányzata Képviselő-testületének 6/2022. (IV. 29.) önkormányzati rendelete 4. § (2) bekezdésével megállapított szöveg.
A 76. § (5) bekezdése a Sajóecseg Község Önkormányzata Képviselő-testületének 6/2022. (IV. 29.) önkormányzati rendelete 4. § (2) bekezdésével megállapított szöveg.
A 78. § (1) bekezdése a Sajóecseg Község Önkormányzata Képviselő-testületének 6/2022. (IV. 29.) önkormányzati rendelete 5. §-ával megállapított szöveg.
A 78. § (2) bekezdése a Sajóecseg Község Önkormányzata Képviselő-testületének 6/2022. (IV. 29.) önkormányzati rendelete 5. §-ával megállapított szöveg.
A 79. § (2) bekezdése a Sajóecseg Község Önkormányzata Képviselő-testületének 6/2022. (IV. 29.) önkormányzati rendelete 6. §-ával megállapított szöveg.
A 81. § a) pontja a Sajóecseg Község Önkormányzata Képviselő-testületének 6/2022. (IV. 29.) önkormányzati rendelete 7. §-ával megállapított szöveg.