Budapest I. kerület Budavári Önkormányzat Képviselő-testületének 16/2000. (VIII.15.) Kt. rendelete
Budapest I. kerület Kerületi Építési Szabályzatáról
Hatályos: 2020. 10. 03Budapest I. kerület Budavári Önkormányzat Képviselő-testületének 16/2000. (VIII.15.) Kt. rendelete
Budapest I. kerület Kerületi Építési Szabályzatáról
2020-10-03-tól
A Budavári Önkormányzat Képviselőtestületének
16/2000 (VIII.15.) Kt. számú önkormányzati rendelete
a Bp. I. kerületi Építési Szabályzatáról[1]
A Budavári Önkormányzat Képviselőtestülete a helyi önkormányzatokról szóló 1990. évi LXV tv. 16. § (1) bekezdésében, az épített környezet alakításáról és védelméről szóló 1997. évi LXXVIII. törvényben és a végrehajtására vonatkozó az Országos Településrendezési és Építési Követelmények közzétételéről szóló 253/1997 (XII.20) kormányrendelet, valamint a Fővárosi Közgyűlés 47/1998 (X.15) számú, a Budapesti Városrendezési Keretszabályzatról szóló rendeletében foglalt felhatalmazás alapján az alábbi rendeletet alkotja:
I. FEJEZET
A SZABÁLYZAT HATÁLYA ÉS RÉSZEI
A szabályzat hatálya
1.§
A Kerületi Építési Szabályzat (KÉSZ) Budapest I. kerület közigazgatási területére (továbbiakban: terület) terjed ki.
2.§
A területen területet felhasználni, továbbá telket alakítani, építményt, építményrészt, épületegyüttest építeni, átalakítani, bővíteni, felújítani, helyreállítani, korszerűsíteni és lebontani, elmozdítani, a rendeltetését megváltoztatni (a továbbiakban együtt: építési munka) és ezekre hatósági engedélyt adni csak az általános érvényű egyéb rendelkezéseknek és hatósági előírásoknak, a vonatkozó szabványoknak, valamint a Budapesti Városrendezési szabályok együttes alkalmazásával a Keretszabályzat vonatkozó előírásainak és jelen szabályzatnak megfelelően, szabad.
A KÉSZ tartalma
3.§
(1) A Kerületi Építési Szabályzat (KÉSZ) részei:
a) Övezeti tervlap .................................................................................. (ÖT),
b) Kerületi Városrendezési és Építési Szabályzat szövege ............ (KVÉSZ),
c) A Kerületi Építési Szabályzat részeként meghatározott Kerületi Városrendezési és Építési Szabályzat szövegének rövidítése a rendeletben mindenütt KVÉSZ-re módosul.[2]
d) Szabályozási tervlapok..................................................................... (KSZT),[3]
(2) mellékletek:
a) 1. számú melléklet
értelmező rendelkezések (fogalom-meghatározások),
b) 2. számú melléklet
Általános kerületi településrendezési célok
II. Fejezet
a településrendezés helyi eszközei
A településrendezési eszközök egységes rendszert alkotnak, amelyek elemei a következők:
Kerületi Építési Szabályzat (KÉSZ)
4.§
(1) A Fővárosi Szabályozási Keretterv (FSZKT) és a Budapesti Városrendezési Keretszabályzat (BVKSZ) által megengedett körben
a) a kerületi Övezeti Tervben (ÖT) lehatárolja az egyes helyi övezeteket,
b) a Kerületi Városrendezési és Építési Szabályzatban (KVÉSZ) és
c) a Kerületi szabályozási tervlapokon (KSZT)
meghatározza azok jellemzőit, ezen belül:
1 az övezet határát,
2 az elhelyezhető építményfajták rendeltetését,
3 a beépítés módját,
4 a beépítés mértékét,
5 a szintterületi mutató értékeit,
6 a megengedett építmény, illetve építményrész - magasságokat,
7 a kötelező zöldfelület legkisebb mértékét,
8 a terepszint alatti beépítés szabályait,
9 egyéb sajátos építési követelményeket.
(2) Az övezeti terv (ÖT) méretaránya 1:4000.
(3) A kerületi szabályozási terv (KSZT), melynek tartalma több tervlapon, illetve az 5.§-ban meghatározott tervfajtákon is ábrázolható (szabályozási tervlapok, telekalakítási tervlapok, fedvény-terv lapok). Méretarányuk: M=1:1.000. A fedvény-terv lapok méretaránya M=1:500 is lehet.
(4) A KÉSZ készítésére és felülvizsgálatára az Önkormányzat ad megbízást.
5.§
(1) A KÉSZ módosításához, illetve kiegészítéséhez az alábbi tervfajták készíthetők.
a) Szabályozási Terv ................................................. (SZT)
b) Speciális Szabályozási Terv ............................... (SSZT)
c) Rehabilitációs Szabályozási Terv ...................... (RSZT)
Szabályozási Terv (SZT)
6.§
(1) A SZT az egyes összefüggő területegységek sajátosságai alapján részletesebb szabályozást igénylő elemek és az egyéb sajátos építési követelmények meghatározására szolgál.
(2) A SZT-t legalább az érintett területek városszerkezetileg együtt kezelendő egységére (tömbjeire) kell kidolgozni.
(3) A szabályozási tervek (SZT) készítéséről az érintett terület lehatárolásáról a Képviselő-testület határozatával dönt.
(4) A SZT méretaránya M=1:1000.
(5) A SZT készítésére és felülvizsgálatára az Önkormányzat ad megbízást. (Étv 7.§ 3)c)
Speciális Szabályozási Terv (SSZT)
7.§
(1) SSZT készíthető a különleges helyi települési viszonyok szabályozására. az FSZKT-ben meghatározott területen, a kialakult állapot védelmében,
(2) A szabályozási tervek (SSZT) készítéséről az érintett terület lehatárolásáról a Képviselő-testület határozatával dönt.
(3) A területen - jogszabályi felhatalmazás alapján - megengedően is el lehet térni a keretövezetben meghatározott értékektől.
(4) Az SSZT kötelező tartalma és a kidolgozás előírásai megegyeznek a KSZT kötelező tartalmával és kidolgozásának előírásaival. E tervfajtához sziluett- és tömegvizsgálat is készítendő.
(5) Az SSZT méretaránya M=1:1000, vagy indokolt esetben M=1:500.
(6) Az SSZT készítésére és felülvizsgálatára az Önkormányzat ad megbízást. (Étv 7.§ 3)c)
Rehabilitációs Terv (RSZT)
8.§
(1) RSZT - a jogszabály keretei között - a rehabilitációs típusú beavatkozások szabályozására, az ezzel összefüggő sajátos helyi követelmények meghatározására szolgál.
(2) A RSZT-et az FSZKT-ben meghatározott területen, legalább az érintett területek városszerkezetileg együtt kezelendő egységére (tömbjére) kell kidolgozni.
(3) A szabályozási tervek (RSZT) készítéséről az érintett terület lehatárolásáról a Képviselő-testület határozatával dönt.
(4) A RSZT kötelező tartalma és a kidolgozás előírásai megegyeznek a KSZT kötelező tartalmával és kidolgozásának előírásaival, de sziluett és tömegvizsgálat is készítendő.
(5) Az RSZT méretaránya M=1:1.000, indokolt esetben M=1:500.
(6) A RSZT készítésére és felülvizsgálatára az Önkormányzat ad megbízást. (Étv 7.§ 3)c)
Közterületrendezési Terv (KÖRT)
9.§
(1) A KÖRT készíthető – illetve a KVÉSZ vagy a Képviselő-testület határozata alapján készítendő – a jogszabályok keretei között a városszerkezetileg, forgalom-technikailag vagy városképi szempontból együtt kezelendő közterületekre a
a) helyszínrajzi kialakítás, elrendezés,
b) magassági méretek, keresztmetszetek,
c) berendezések, utcabútorzat, burkolatok,
d) a városképi megjelenés követelményeinek,
e) a közműhálózat kialakításának,
f) a köz- és díszvilágítás megoldásának,
g) a műtárgynak nem minősülő építmények létesítési szabályainak,
h) a parkolás megoldásának,
i) a terület kertészeti kialakításának meghatározására.
(2) A KÖRT méretaránya M=1:500 illetve indokolt esetben M=1:100, M=1:50.
(3) A KÖRT-et az Önkormányzat Képviselő-testülete határozattal hagyja jóvá.[4]
Elvi engedély (ELEN)
10.§[5]
Városrendezési Hatástanulmány (VRHT)
11.§[6]
(1) A városrendezési tanulmány olyan szakvizsgálatokon alapuló, az építési tevékenységet megelőző komplex műszaki dokumentum, amely a környezeti hatások vizsgálata mellett tartalmazza a tervezett beavatkozás városrendezési, városképi hatásainak vizsgálatát, a közlekedési- és közvizsgálatokat, és javaslatot tesz a beavatkozással összefüggésben szükséges változásokra, feltételekre.
(2) A létesítést, városrendezési hatásvizsgálat figyelembevételével szabad megvalósítani:
a) 2500 nm-nél nagyobb vagy összességében ekkora alapterületű kereskedelmi létesítményt tartalmazó építmény esetén,
b) új parkoló építmény esetén, ha a 100 méteres körzetben meglévő és kialakuló parkolók kapacitása – beleértve a közterületi parkolókat is – az 50 férőhelyet meghaladja,
c) az övezetben meg nem határozott, a domináns funkciótól eltérő nem tiltott funkció kialakítása esetén.
III. Fejezet
Sajátos jogintézmények
12.§
A sajátos jogintézmények alkalmazásának célját, az ezekkel érintett területek lehatárolását és a jogintézmények gyakorlásának helyi módját a KÉSZ állapítja meg.
Tilalmak
13.§[7]
Kötelező telekalakítás
14.§
(1) A területen kötelező telket alakítani:
a) A szabályozási vonal változásával érintett telkek esetében,
b) közterületi támfal-létesítmények elhelyezése céljára,
c) egyéb, jogszabályban meghatározott esetekben
legkésőbb az ingatlant érintő építéssel vagy funkcióváltással egyidejűleg.
(2) A szabályozási vonal változásával érintett telkeket a szabályozási terv (KSZT) tartalmazza.
Elővásárlási jog
15.§
(1) Az Önkormányzatot a közigazgatási területen fekvő meghatározott ingatlanok esetében (Étv 25. §(1))
a) a település működésének biztosítása,
b) a települési értékek megóvása,
c) a zöldfelületi rendszer fejlesztése,
d) a városkép kedvezőbb alakítása,
e) a közlekedés és parkolás javítása,
f) a települési értékvédelem
érdekében elővásárlási jog illeti meg.
(2) Az elővásárlási joggal érintett további telkek megállapításáról az Önkormányzat rendelettel dönt.
(3) [8]A zöldfelületi rendszer fejlesztése érdekében a Budavári Önkormányzatot a törvényben meghatározott elővásárlási jog illeti meg a következő ingatlanokra:
- 6268 hrsz. (Apród u. 6. sz.)
- 14003 hrsz. (Toldy F. u. 57. sz.)
- 14004 hrsz. (Toldy F. u. 59. sz.)
- 14057 hrsz. (Hunfalvy u. 12. sz.)
- 14391 hrsz. (Lánchíd u. 6. sz.)
- 14441/2 hrsz. (Bem rkp. 27. sz.)
Kiszolgáló és lakóút céljára történő lejegyzés
16.§
(1) Új közút kialakítással vagy meglévő közút átalakítással, szabályozással kapcsolatos beavatkozásokat a szabályozási tervek (KSZT) tartalmazzák.
(2) [9]
Településrendezési kötelezések
17.§
(1) Beépítési kötelezettség
a) A tervszerű telekgazdálkodás, a beépítés helyes sorrendje, valamint a városkép védelme érdekében
1 az Önkormányzat által elidegenített, be nem épített, illetve a szabályozási tervben bontással érintett telkek
2 a meglévő építmény bontásával (megsemmisülésével) létrejött, a szabályzat szerint beépíthető üres telkek
tulajdonosait az elidegenítéstől, illetve a bontás megkezdésétől (megsemmisülésétől) számított 3 éven belül beépítési kötelezettség terheli.
b) A kötelezettség akkor tekinthető teljesítettnek, ha az új beépítés a szabályzatban meghatározottnak megfelel.[10]
c) [11]
(2)[12] Helyrehozatali kötelezettség
A helyrehozatali kötelezettség a tulajdonost annak érdekében érinti, hogy az építmény tömege és látványa az építmény eredeti (építéskori) látványát és tömegét nyerje vissza, és az rendeltetésszerű biztonságos használatra alkalmassá váljon. A helyrehozatali kötelezettség a területen található valamennyi olyan településképet rontó építményre kiterjed, amelynek tömege, homlokzati megjelenése, anyaghasználata az eredeti állapothoz képest akár a jókarbantartási kötelezettség elmulasztása miatt, akár más okból kedvezőtlenül megváltozott.
(3) [13]Beültetési kötelezettség
A beültetési kötelezettség a terület valamennyi szabadonálló beépítésű, illetve zöldterületi övezetben fekvő telkét érinti. A beültetési kötelezettség elrendelésének célja a telek jogszabályban előírt zöldterületének aktív kialakítása, adott esetben a városkép és látvány kedvezőbb alakítása, közvetve a térség környezeti állapotának javítása.
Sajátos helyi településrendezési eszközök
18.§
(1) Kötelező építészeti pályázat
a) Kötelező építészeti pályázat alapján kell minősíteni az építmény városképi megfelelőségét, környezethez történő illeszkedését és az – az egyes építészeti munkákkal kapcsolatban -építészeti minőséget. Ennek alapján kell meghatározni a Világörökségi védettségű területen az önkormányzati vagy állami tulajdonú telken létesítendő, illetve az egyéb jogszabályban meghatározott új beépítéseknek az engedélyezésnél figyelembe veendő jellemzőit.
b) A kötelező tervpályázat lebonyolításának, kiértékelésének, további felhasználásának, stb. rendjét külön jogszabály[14] állapítja meg.
(2) Kötelező tervtanács (zsűri) és szakvélemény
a) A jogszabályban meghatározott esetekben a településrendezési tervek illetve egyes építmények építészeti-műszaki terveit – jóváhagyásuk, illetve engedélyezésük előtt - tervtanács (zsűri) véleményezi.
b) A tervezőnek, illetve a tervezéssel megbízott szervezet vezetőjének tervtanácsi kötelezettségét külön jogszabály(ok) állapítják meg.[15]
c) A tervtanácsra nem kötelezett dokumentációknál a környezetképet, a városképet érintő (homlokzati) beavatkozások esetén az illeszkedésre, az építészeti minőségre, valamint a városképi megjelenésre vonatkozóan a főépítész szakmai véleményt ad.[16]
(3) NYILVÁNTARTÁSOK
a) A településrendezési terveket,
b) a helyi építési szabályzatokat,
c) a helyi értékvédelemmel kapcsolatos jogszabályban előírt dokumentumokat
a főépítész tartja nyilván.
IV. Fejezet
A területfelhasználás rendszere
Területi változások
19.§
(1) A terület igazgatási határvonala - az erre vonatkozó hatályos jogszabályok keretei között - abban az esetben módosítható, ha
a) a határos kerületi önkormányzat a módosítással egyetért
b) a terület nagysága nem csökken.
Területfelhasználási egységek
20.§
(1) A terület teljes terjedelemben belterület.
(2) A terület a következő területfelhasználási egységekre oszlik:
a) beépítésre szánt területek
1. lakóterületek .......................................................... (L1, L2, L2/A, L3),
2. vegyes területek .................................................... (VK, I, IZ),
3. különleges városgazdálkodási területek ........... (KV-EN, KV-IK).
b) beépítésre nem szánt területek.
1. közlekedési területek ............................................ (KL-KT, egyéb keretövezetbe nem sorolt közlekedési területek),
2. zöldterületek .......................................................... (Z-EZ, Z-FK, Z-KK, Z-KP, Z-VP).
(3) Lakóterületek
a) Nagyvárosias, jellemzően zártsorú lakóterület (L1 jelű keretövezet), amely az alábbi helyi övezetekre van felosztva:
1. L1-V1-Z.............. nagyvárosias, védett, magas sűrűségű, jellemzően zártsorú beépítésű lakóterület,
2. L1-V2-Z.............. nagyvárosias, védett, közepes sűrűségű, jellemzően zártsorú beépítésű lakóterület,
3. L1-V3-SZ........... nagyvárosias, védett, alacsony sűrűségű, jellemzően szabadonálló beépítésű lakóterület,
4. L1-KP-1.............. nagyvárosi közpark
b)[17]
c) Kisvárosias, jellemzően zártsorú lakóterület (L2A jelű keretövezet), amely az alábbi helyi övezetekre van felosztva:
1. L2A-V2-Z........... kisvárosias, védett, közepes sűrűségű, jellemzően zártsorú beépítésű lakóterület,
2. L2A-V3-SZ........ kisvárosias, védett, alacsony sűrűségű, jellemzően szabadonálló beépítésű lakóterület,
3. L2A-K7............... kisvárosias, kertes, igen alacsony sűrűségű lakóterület.
4. L2A-KP............... kisvárosias közpark
d) Kisvárosias, jellemzően szabadonálló lakóterület (L3 jelű keretövezet), amely az alábbi helyi övezetekre van felosztva:
1. L3-K4-SZ.. kisvárosias, kertes, magas sűrűségű, jellemzően szabadonálló beépítésű lakóterület,
2. L3-K5-SZ.. kisvárosias, kertes, közepes sűrűségű, jellemzően szabadonálló beépítésű lakóterület,
3. L3-K7........ kisvárosias, kertes, igen alacsony sűrűségű lakóterület,
(4) Vegyes területek
a) Városközponti terület (VK jelű keretövezet), amely az alábbi helyi övezetekre van felosztva:
1. VK-FV1-Z. városközponti, fokozottan védett terület, Budavári Polgárváros,
2. VK-FV2-Z városközponti, fokozottan védett terület, Budavári Palotanegyed,
3. VK-V1-Z... városközponti, védett, magas sűrűségű, jellemzően zártsorú beépítésű terület,
4. VK-V2-Z... városközponti, védett, közepes sűrűségű, jellemzően zártsorú beépítésű terület,
5. [18]
6. VK-KP-1.... városközponti közpark
7. [19]VK-1-Z városközponti, magasabb sűrűségű, jellemzően zártsorú beépítésű terület
8. [20]VK-2-Z városközponti, magas sűrűségű, jellemzően zártsorú beépítésű terület
9. [21]VK-KP-2 városközponti közpark
b) Intézményi terület (I jelű keretövezet), amely az alábbi helyi övezetekre van felosztva:
1. I-V1-Z........ intézményi, védett, magas sűrűségű, jellemzően zártsorú beépítésű terület,
2. I-V2-Z........ intézményi, védett, közepes sűrűségű, jellemzően zártsorú beépítésű terület,
3. I-V3-SZ..... intézményi, védett, alacsony sűrűségű, jellemzően szabadonálló beépítésű terület.
4. [22]I-1-Z intézményi, közepes sűrűségű, jellemzően zártsorú beépítésű terület.
5. [23]I-KP övezet, intézményi zöldterület.
c) Jelentős zöldterületű szabadon álló intézményterület (IZ jelű keretövezet), amely az alábbi helyi övezetekre van felosztva:
1. IZ-V3-SZ... jelentős zöldfelületű intézményi, védett, alacsony sűrűségű szabadonálló beépítésű terület,
2. IZ-K5-SZ... jelentős zöldfelületű intézményi, kertes, közepes sűrűségű szabadonálló beépítésű terület,
3. IZ-K7......... jelentős zöldfelületű intézményi, kertes, igen alacsony sűrűségű szabadonálló beépítésű terület,
4. IZ-KP-1..... intézményi sport, szabadidő célú zöldterület,
5. [24]IZ-V2-SZ jelentős zöldfelületű intézményi védett közepes sűrűségű, szabadon álló beépítettségű terület.
(5) Különleges városüzemeltetési területek (KV-EN, KV;IK jelű keretövezetek), amelyek az alábbi helyi övezetekre vannak felosztva:
1. KV-EN-V1-Z különleges városüzemeltetési energiaszolgáltató, védett, magas sűrűségű, jellemzően zártsorú beépítésű terület,
2. [25] KV-IK-1 Különleges, intézményekkel vegyes közlekedési terület kétszintes területfelhasználással, közepes sűrűségű, jellemzően zártsorú beépítéssel.
3. [26]KV-IK-2 különleges, intézményekkel vegyes közlekedési terület kétszintes területfelhasználással, meghatározóan közlekedési terület.
(6) A beépítésre nem szánt területek az alábbiak:
a) Közlekedési területek (KL jelű keretövezetek), amelyek az alábbi helyi övezetekre vannak felosztva:
1. KL-KT................. keretövezetbe sorolt közlekedési terület,
2. egyéb, keretövezetbe nem sorolt közlekedési terület
(az övezeti terven jel nélkül, egységesen fehér színnel jelölve).
b) Zöldterületek (Z-VP, Z-KP, Z-FK, Z-KK, Z-KP jelű keretövezetek), amelyek az alábbi helyi övezetekre vannak felosztva:
1. Z-FK-KP-1 fásított köztéri park,
2. Z-KK-KP-1... közkert,
3. Z-VP-KP-1 városi közpark,
4. Z-KP-KP-1 közpark,
5. Z-EZ-KP-1 különleges parkterület.
V. Fejezet
Általános területfelhasználási követelmények
A föld védelme
21.§
(1) Építmények létesítése, illetve az építési terület előkészítése során a termőföld védelméről, összegyűjtéséről, megfelelő kezeléséről és a jogszabályban előírt újrahasznosításáról az építtető köteles gondoskodni.
(2) Építési munkát csak úgy lehet végezni, építményt csak úgy lehet használni, hogy az ott keletkező szennyező anyagok ne kerülhessenek a talajba.
(3) [27]A területen a feltöltés(ek) és visszatöltés(ek) kialakítására környezetet károsító anyag illetve veszélyes hulladék nem alkalmazható. Amennyiben a feltöltés a telek kötelező zöldfelületre kijelölt területére esik, úgy a termőréteg anyaga csak biológiailag alkalmas, a zöldterületek tartására szolgáló termőföld (anyag) lehet.
(4) A területen található környezetet károsító anyagokat a terület előkészítése során el kell távolítani.
(5) Az FSZKT 9. sz. mellékletében lehatárolt barlang- és mélypince-előfordulásos területen épületet, támfalat, terepszint alatti építményt létesíteni, bővíteni, a terhelési viszonyokat megváltoztató módon átalakítani, illetve megszüntetni csak geotechnikai szakvélemény megállapításainak figyelembevételével és az illetékes szakhatóság hozzájárulásával szabad.
A levegő védelme
22.§
(1) A levegő tisztaságának védelme érdekében a területen semmilyen, a hatályos határértéket meghaladó légszennyezéssel járó
a) tevékenységet folytatni,
b) új építményt elhelyezni, illetve ilyen célra hatósági engedélyt adni nem szabad.
(2) A területen a környezetben is érzékelhető bűzzel járó funkció nem megengedett.
(3) A légszennyezési határértéket a vonatkozó jogszabályok rögzítik.
A vizek védelme
23.§
(1) A területen a vízfolyások és a Duna védelme érdekében azok szennyezését okozó építmény nem helyezhető el, ezzel járó funkció nem engedélyezhető.
(2) A területen keletkező szennyvizeket a közcsatorna-hálózatba kell bevezetni.
(3) A csatornarendszerbe káros illetve veszélyes anyagokat tartalmazó szennyvizek nem vezethetők illetve abban ezek nem szállíthatók. A káros illetve veszélyes anyagokat tartalmazó szennyvizek előtisztítását, kezelését a keletkezés helyén illetve a szakhatóságok által előírt módon, a csatornahálózatba vezetés előtt kell biztosítani.
(4) A területen vízvételi hellyel ellátott építményt csak a csatornahálózathoz csatlakoztatva szabad elhelyezni. Forrás, rétegvíz, egyéb vizek elvezetéséről - az illetékes szakhatóságok véleményének figyelembevételével - a hatályos jogszabályok szerint kell gondoskodni.
(5) A rétegvizek elvezetésére, forrás foglalására és vizének felhasználására csak az illetékes szakhatóságok egyetértésével kerülhet sor.
(6) A területnek a KÉSZ 10. sz. függelékében lehatárolt része a főváros hévíz- és víznyerő telkek védőterületeibe tartozik. E területen a terepszint 1 m-nél nagyobb mértékű megváltoztatásával járó építési munkát csak az illetékes szakhatóságok hozzájárulásával lehet végezni.
(7) A terület a felszín alatti vizek tekintetében „A” - fokozottan érzékeny - besorolású. A területfelhasználás, építés csak erre tekintettel, a vonatkozó előírások betartásával megengedett.[28]
Környezeti zaj és rezgés elleni védelem
24.§
(1) Bármely zajt kibocsátó vagy rezgést okozó építmény csak abban az esetben létesíthető, ilyen funkció csak akkor engedélyezhető, ha az általa okozott környezeti zaj, rezgés a jogszabályban meghatározott létesítmények környezetében az előírt határértékeket nem haladja meg.
(2) A területen a zaj- és rezgésterhelés csökkentése, valamint a csend védelme érdekében, - legalább a főutak érintett szakaszai mentén - az újonnan létesítendő és a teljes felújításra kerülő egészségügyi, oktatási, szociális és kulturális létesítmények esetében azok zaj elleni megfelelő védelmét biztosítani kell.
(3) A zajvédelemmel kapcsolatos határértékeket a vonatkozó jogszabályok rögzítik.
(4) [29]
(5) A vasúti üzemi területek alatt és felett, illetve a szélső vágányoktól számított 50 méteres távolságon belül, emberi használatra szolgáló építmény csak előzetes zaj- és rezgésvizsgálati tanulmány alapján, az esetben létesíthető, (olyan funkcióra használható), amelynél a környezeti terhelés a vonatkozó jogszabályokban megengedett értéket nem haladja meg.[30]
Az élő természet védelme
25.§
(1) Az élővilág igénybevétele csak olyan módon történhet, amely az életközösségek természetes folyamatait és viszonyait, a biológiai sokféleséget nem károsítja, illetőleg funkcióit nem veszélyezteti.
(2) A területnek a 7. sz. függelékben helyrajzi számmal (hrsz) meghatározott része az Országos Jelentőségű Természetvédelmi terület. A területen bármilyen a környezetet érintő építési munka csak az illetékes szakhatóságok hozzájárulásával végezhető.
(3) [31] Meglévő fát (növényzetet) kivágni, illetve csonkolni csak rendkívül indokolt esetben szabad. A kivágás esetén a jogszabályban előírt pótlásról kell gondoskodni, a csonkolást pedig csak szakszerűen, úgy szabad elvégezni, hogy az a növényzet továbbélését ne veszélyeztesse.
(4)[32] A visszapótlási kötelezettségtől el lehet tekinteni, ha
a) a növényzet kivágására (elpusztulására) veszélytelenítés vagy természeti csapás,
b) a terület engedélyezett kertészeti rendezése
során, illetve következtében kerül sor és a visszapótlás szakmai okokból (kertészeti szakvéleménnyel alátámasztva) nem szükséges.
(5) A visszapótlásra szánt növényállomány fajtáját, a telepítés helyét és idejét a hatályos jogszabályok alapján az eljáró hatóság meghatározza.
(6) A visszapótlásra szánt növényzetet - lehetőség szerint - az eredeti helyen, vagy annak közvetlen környezetében kell telepíteni.
(7) A visszapótlásra szánt növényzet kihelyezéséről az építési tevékenység megkezdése előtt kell gondoskodni, ha a visszapótlásra nem az építési területen kerül sor.
(8)[33]
(9) Az építési telkek be nem épített (burkolatlan) felületeit kertként kell kialakítani és fenntartani.
(10) A területen elhelyezkedő kertek értékes növényzetét meg kell őrizni.
(11) [34]
Az épített környezet értékeinek védelme
26.§
(1) [35]Műemléki védettség
a) [36]
b.) A védett épületek jegyzékét és a védett terület (MJT) lehatárolását a 6. sz. függelék tartalmazza.
(2) Fővárosi és kerületi (helyi) védettség
a) A fővárosi (helyi) védettséggel összefüggő követelményeket a hatályos fővárosi jogszabály tartalmazza.
b) A kerületi (helyi) védettséggel összefüggő követelményeket a hatályos helyi rendelet tartalmazza.
c) A szabályzatban szereplő:
- KHV - Kerületi Helyi Védelem,
- KHVH - Kerületi Helyi Védett Homlokzat,
- KHVÉ - Kerületi Helyi Védett Épületrész,
- KHVL - Kerületi Helyi Védett Látvány” jelöléssel ellátott, helyi építészeti értéket hordozó épületen az eredeti karaktert megváltoztató beavatkozás nem végezhető.[37]
d) [38]
(3) [39]
Látványvédelem, a városkép védelme
27.§[40]
Közlekedés, közmű,
Egyéb követelmények
28.§
(1) Közlekedés:
a) Parkolási rendelet eltérő rendelkezésének hiányában, olyan teleknél ahol a ki- és behajtás forgalomtechnikai okokból nem engedélyezhető, vagy a telken már meglévő épület ill. a telek méretei a telken belüli parkolást nem teszik lehetővé, az egyéb jogszabályban előírt kötelező új parkolóhelyeket lakó- és középületi funkció esetén a létesítmény 500 méteres körzetében is lehet biztosítani.(OTÉK 42.§ 11.)
b) A jogszabályban megengedett felszíni parkoló biztosításánál zöldterület csak azonos nagyságú pótlás esetén szűntethető meg.
c) Szabadonálló vagy vegyes beépítési mód szerint elhelyezhető új épületnél vagy meglévő épület bővítésénél, funkcióváltásánál a telek felszínén parkolás csak a kötelező zöldfelületek zavartalan biztosításával engedhető meg.
d) A területen parkolóhely csak annak 500 méteren belüli egyidejű pótlásával szüntethető meg.
Közterületen megszüntetett parkolót közhasználatú parkolóval kell pótolni.
e) A zaj- és rezgésterhelés csökkentése érdekében az úthálózat felújítása vagy átépítése során az e követelményeknek legmegfelelőbb műszaki megoldásokat illetve anyagokat kell alkalmazni.
f) A forgalomtervezés során különös gondot kell fordítani a zaj- és rezgés elleni védelemre.
g) A várfalakkal és védőművekkel határolt területre a BKV menetrendszerinti tömegközlekedési járművek kivételével 3,5 tonna összsúly feletti jármű
– csak élet- vagy balesetveszély elhárítás céljából
– építkezéshez elengedhetetlenül szükséges mértékben és esetekben
hajthat be.
h) A közcélra szolgáló (közterület jellegű) területek, létesítmények akadálymentes megközelítését és használatát biztosítani kell.[41]
i)[42] A Lovas utca mentén – a Jávorka Sándor lépcső és a Korlát lépcső (a Lovas utca 15-30. számú telkek) közötti szakaszon – a Várfal és a bástyák közötti szakaszon:
1. a Lovas utca délnyugati telekhatárától mért 10 m széles sáv szabadon hagyásával terepszint alatti parkoló építmény (mélygarázs) helyezhető el,
2. a terepszint alatti parkoló építményt (mélygarázs) teljes egészében zöldfelülettel fedetten, terepszint alatti építményként kell kialakítani,
3. a Lovas út felé az átépített meglévő támfal magassága legfeljebb 1,0 méterrel növelhető, de a támfal(ak) magassága legfeljebb 1,5 m lehet, a be- és kijáratok, a személyközlekedést szolgáló építmények, a terepszint alatti építményrészeket szolgáló bevilágítók, gépészeti berendezések és az élet- és vagyonvédelem érdekében szükséges építmények, építményrészek magasságának kivételével, de az sem lehet magasabb, mint a műszakilag indokolt, de legfeljebb 4 m,
4. a gépjárművek közlekedésére szolgáló be- és kijáratokat – legalább a Lovas utca délnyugati oldalától számított 15 méteren belül bevágásként kell kialakítani a biztonsági szempontok figyelembe vételével,
5. a terepszint alatti parkoló építmény (mélygarázs) felső födémszerkezetét legalább 0,85 m vastag talajtakarással, intenzív kertként kell kialakítani és a terepszint Várfalhoz csatlakozásának jelenlegi vonalát meg kell tartani,
6. a zöldfelület legkisebb aránya legalább 50% kell, hogy legyen,
7. a parkolóhoz kapcsolódóan – a szabályozási tervben meghatározott helyen felvonó és feljárat létesíthető.
(2) Közművek
a) A területen a közmű-, távközlési és adatátviteli hálózatokat és létesítményeket a vonatkozó szabványoknak, ágazati előírásoknak és eseti szakhatósági, illetve üzemeltetői előírásoknak megfelelően, a korszerű technológiák felhasználásával kell elhelyezni, illetve kialakítani (közműalagutas, közműfolyosós vagy közműcsatornás megoldás).
b) A területen a közmű-, távközlési és adatátviteli hálózatok felújítása vagy telepítése esetén az ott található, meglévő, használaton kívüli vezetéket el kell távolítani.
c) A közüzemi közművek, a termékvezetékek, az adatátvitel-hálózatok építményeit közterületen kell elhelyezni. Ettől csak ott szabad eltérni, ahol ahhoz az üzemeltető hozzájárul, egyéb általános érvényű előírás megengedi, vagy előírja.
d) A területen közüzemi közműhálózatokat és egyéb vezetékeket terepszint alatt kell elhelyezni.
e) Légvezeték csak rendkívül indokolt esetben –. általában más kivitelezéssel összefüggésben – ideiglenes jelleggel és meghatározott időtartamra létesíthető.
f) A meglévő közműlétesítmények biztonsági védőtávolságait a létesítésénél vagy átalakításnál, felújításnál figyelembe kell venni.
g) Az új beépítésekhez önálló közműbekötések létesítendők.
h) Az új bekötő vezetékek az előírásoknak megfelelő közös közműárkos kivitelben fektetendők.
i) [43]A területen út- és pályaépítéssel kapcsolatos, valamint közműmunkálatokat – beleértve az adatátvitel hálózatait is – az üzemzavart illetve veszély-elhárítási munkákat kivéve – a terület biztonságos használata, a közlekedés biztosítása és a környezetvédelmi szempontok érvényesítése érdekében csak összehangoltan, egymásra tekintettel szabad végezni.
j) [44]A burkolatbontással járó munka esetén, amennyiben azt a városképi látvány, a környezet képe indokolja, a gyalog járda teljes szélességű helyreállítását vagy roncsolás-mentesen bontható burkolat kialakítását kell elvégezni.
k) [45]A területen, közterületen, burkolatbontással járó kivitelezési munka november 15. és március 15. közötti időben – üzemzavar-elhárítás kivételével – nem végezhető, kivéve, méltánylást érdemlő esetekben – amennyiben az időjárás a folyamatos munkavégzést lehetővé teszi és a munka legfeljebb 5 nap alatt elvégezhető.
(3) a) A területen:
-új épület létesítése,
-a meglévő építmény terhelési viszonyainak megváltoztatásával járó beavatkozás különösen a magastető létesítése, emeletráépítés, tetőtérbeépítés, bővítés, toldaléképítés, továbbá
-az eredeti terep 1.0 méternél mélyebb megbontásával járó földmunka, támfal építése, bontása, illetve
-a terepszint 1.0 méternél nagyobb mértékű megváltoztatása (rézsű, feltöltés, bevágás, stb.),
csak az érintett területre vonatkozó részletes talajmechanikai szakvélemény alapján kidolgozott terv szerint végezhető. A szakvélemény ki kell terjedjen a barlang- és üregvédelemre, pincefeltárásra, a talaj- és rétegvíz viszonyokra, a talajmozgás veszélyére, továbbá az adott építési tevékenységgel összefüggő, és ennek megfelelően a feltétlenül együttkezelendő terület lehatárolására és az ezeknek megfelelő műszaki megoldásra.
b)[46]
(4)[47]
(5)[48]
(6) A területen háborús maradványok előbukkanása várható, így bármilyen, a terepviszonyok megváltozását eredményező beavatkozás esetén előzetes tűzszerészeti vizsgálat indokolt.
(7) Rétegvíz előfordulása miatt a területen minden evvel összefüggő építési tevékenység csak ennek figyelembevételével végezhető.
(8) A természeti és épített környezet védelme érdekében a területen csak a környezetet nem károsító (környezetbarát) fagy-, illetve csúszásmentesítés alkalmazható.
A METRO védelmi zónáján belül csak olyan fúrás végezhető, mely a METRO műtárgyát – bármely irányból – csak a biztonságos mértékig közelíti meg.[49]
(9) A területen minden területfelhasználási egység teljes közművesítettségű.[50]
(10)[51]
(11) A közműfejlesztési szükségesség esetén új beépítésnél, ill. átalakítások (funkcióváltás) esetén körkörös és/vagy kettős betáplálású tüzivíz hálózatot kell kialakítani a jogszabályokban előírt esetekben.[52]
VI. Fejezet
Létesítési feltételek
Általános feltételek
29.§
(1) A területen bármely létesítésnek vagy átalakításnak - beleértve a funkció megváltoztatását is - meg kell felelni a jogszabályokban előírt követelményeknek. Ezen belül különös gondot kell fordítani a magas színvonalú építészeti megoldásra, az épített és természeti környezet harmóniájára és a humánus, lakható környezet biztosítására.
A beépítésre szánt területek általános előírásai
30.§
(1) Területfelhasználás
a) A terület helyi építési övezetekre tagozódik.
b) A területfelhasználás sajátos szabályait az egyes övezetek előírásai tartalmazzák.
c) A terület beépítésre szánt területein a telkeket teljes közművesítéssel kell ellátni.
d) A területen beépíthető, de átmenetileg be nem épült üres telkek ideiglenes használata csak:
1 gépkocsitárolás céljára,
2 közellátási célokra, meghatározott időre, ideiglenes jelleggel a telek 5%-ánál nem nagyobb beépítésű pavilon jellegű építmények elhelyezésével,
3 korlátozottan, hulladékudvar céljára (lásd még: 43.§)
megengedett.
(2) Telekalakítás
a) Az övezetekben megengedett telekméretek megegyeznek a kialakult (meglévő) teleknagyságokkal.
b) A településszerkezeti okból indokolt telekalakításokat a szabályozási terv (KSZT) tartalmazza.
c) A szabályozási terven nem szereplő megengedett telekalakítások csak akkor engedélyezhetők, ha az érintett telkek beépítési mutatói a telekalakítás után is megfelelnek az övezeti előírásoknak.
d) A telek szabályzatban előírt vagy megengedett szabályozása esetén a közterületté váló terület a közterületi, a beépítésre szánt területhez csatolt rész pedig az ennek megfelelő övezeti besorolást kapja.
e) A KÉSZ módosítása nélkül egy ízben megengedett a telkek egymás közötti szabályozása (telekhatárrendezés), ha az övezet-határt nem érint és annak mértéke az érintett ingatlanok egyike esetén sem eredményezi a terület 10%-nál nagyobb méretváltozását (területváltozását).
f) Támfalak, várfalak és barlangbejáratok fenntartásához és indokolt létesítéséhez a minimálisan szükséges mértékben a telkek alakítása a KÉSZ módosítása nélkül is elvégezhető.
g) Amennyiben a várfalakhoz és védőművekhez önálló telek nem alakul ki, azok a KÉSZ módosítása nélkül a csatlakozó vári telkekhez szabályozhatók.
(3) Az építmények rendeltetése
a) A területen jellemezően az egyes építési övezetekben meghatározott rendeltetésű építmények illetve az ennek megfelelő funkciók helyezhetők el, alakíthatók ki.
b) A területen nem helyezhető el olyan funkció, amely a környezetet károsítja vagy térség forgalmi viszonyait túlterheli.
c) [53]
d) [54]A területen bármely jelentősebb, gépjármű forgalommal összefüggő rendeltetés kialakítása esetén az érintett térségre kiterjedő közlekedési hatásvizsgálat figyelembevételével kell az építés feltételeit meghatározni.
e) [55]
f) A területen meglévő gépkocsitároló csak a parkolóhelyek egyidejű pótlása mellett szüntethető meg.
g) [56]A lakó-funkció kötelező dominanciájának biztosítása érdekében a lakóterületi keretövezetek területén:
Az épület eredeti lakófunkciójának megváltoztatása, továbbá a lakófunkciótól eltérő emeleti funkció kialakítása nem megengedett, ha ezzel a tömbben az emeleti, lakás céljára szolgáló bruttó szintterület mértéke 60% alá csökkenne.
A kötelező lakó-dominancia biztosítását szolgáló előírásnak történő megfelelést – kétség esetén – a kérelmezőnek szintterületi vizsgálattal kell igazolnia.
h) A területen új üzemanyagtöltő állomás csak parkolóház, vagy terepszint alatti parkoló részeként létesíthető.
i) [57]A területen haszonállat elhelyezésére szolgáló vagy bármilyen állattenyésztési célú építmény nem helyezhető el, ilyen funkcióra meglévő építmény(rész) nem alakítható át.
(4) A telkek beépítési módja
a) A területen az egyes (építési) övezetekben a telkek beépítési módja az alábbi:
1 zártsorú .................................. (Z), továbbá kivételes esetben
2 szabadonálló ......................... (SZ)
3 oldalhatáron álló................... (O) és
4 ikresen csatlakozó................ (IK) beépítés
lehet.
b) Az egyes telektömbökben a telkek beépítésének módját a meghatározott építési övezet, illetve a kialakult állapot figyelembe vételével – az illeszkedés szabályai szerint kell meghatározni.
(5) Az építmények elhelyezésére szolgáló terület (építési hely)
a) Az építési helyet – az általános előírások mellett – a szabályozási terv esetenként
1. kötelező építési vonallal,
2. irányadó építési vonallal,
3. az elő-, oldal- és hátsókertre vonatkozó előírásokkal szabályozza.
b) [58]A meglévő beépítés bontása estén a közterület felőli építési vonal kötelező építési vonalnak tekintendő, kivéve, ha városképi ok vagy építészeti értékvédelem az eltérést nem indokolja.
c) A kötelező építési vonaltól
1. a terepszint alatt el lehet térni.
2. A terepszinttől számított 3.0 m-es magasságig az eltérés maximum 0.5 m lehet, de ez a homlokzat teljes hosszának 2/3-ánál nem lehet hosszabb. [59]
3. A terepszinttől számított 3.0 m-es magasság felett az eltérés maximum 1.5 m lehet, 3,0 m-es magasság felett a kiugrás mértéke a közterület irányában legfeljebb 1,5 m lehet, az adott teljes homlokzathossz legfeljebb 2/3-án. [60]
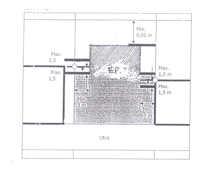
4. [61]az építési hely felé a főbejárat érintett szakaszánál maximum 3 méter mélységben el lehet térni, [62]legfeljebb 3,0 m mélységben, az adott teljes homlokzathossz legfeljebb 1/3-án.
d) Az irányadó építési vonal a megengedett terepszint feletti beépítés szélső építési határvonalát jelöli. Ezen túl városképileg indokolt esetben 3.0 m-es magasság fölött maximum 1.5 m széles erkély, függőfolyosó, vagy párkány nyúlhat.
(6) Az építmények elhelyezése
a) Zártsorú beépítés
1. [63]Az előkert méretét – eltérő rendelkezés hiányában – a közterület felőli kötelező építési vonallal, meglévő épület részleges vagy teljes bontása esetén a bontott épület közterület felőli építési vonalával, mint kötelező építési vonallal kell meghatározni. Az előkert mértékét az utcában (útszakaszon) kialakult méretnek megfelelően a környezethez illeszkedés érdekében, céljából ettől eltérően is ki lehet alakítani.
2. saroktelek esetén a közterületi határvonallal párhuzamos hátsó (irányadó) építési vonal – eltérő rendelkezés hiányában – a csatlakozó szomszédos meglévő épületek hátsó építési vonalától maximum 1,5 méterrel eltérő, a közterületi határvonallal(építési vonallal) párhuzamos vonal. Csatlakozó beépítés illetve az egyik oldal utcavonali beépítése hiányában a megengedett új beépítés szélessége – 6 méteres beépítetlen területsáv biztosításával – a közterülettel párhuzamosan mért 12 métert nem haladhatja meg.
(1. ábra).

3. a hátsókert méretét a hátsókerti (irányadó) építési vonallal kell meghatározni. Ez – a szabályozási terv irányadó építési vonalának jelölése hiányában – a szomszédos épületekhez csatlakozástól (telekhatártól) mért 3 méteren belül legfeljebb 1,5 méterrel térhet el a szomszédos beépítés hátsó építési vonalától. Az építési vonal további szakaszát úgy kell meghatározni, hogy az övezeti határértéken belüli beépíthető terület távolsága a hátsó telekhatártól minimum 6 méter legyen.
Ott, ahol a szomszédos beépítés nem oldalhatáron áll, a számításnál a beépítés szélső hátsó sarokpontjának az oldalsó telekhatárra eső vetületét kell figyelembe venni
(2. ábra).

4. [64]Azoknál az épületrészeknél, amelyek nem telekhatárra épülnek, az oldalsó telekhatár irányában az oldalkert mérete a szabadon álló beépítésre vonatkozó előírások szerint határozandó meg.
b) Szabadonálló beépítés
1. A terület 1000 m2 -nél kisebb területű szabadonálló beépítésű telkein csak egy terepszint feletti épület létesíthető.
2. [65]A terület 1000 m2 területegység fölötti szabadonálló beépítésű telkein a városképi szempontok érvényesítését, a környezetbe nem illő nagyságrendű épülettömegek létrejöttének megakadályozása érdekében, a megengedett beépítés két vagy több épületben (tömegben) történő létrehozásával kell biztosítani.
3. Amennyiben a megengedet beépítés önálló ütemekben valósul meg, az egyes ütemekkel kialakult állapotnak önállóan is meg kell felelni a szabályzati előírásoknak. Ez esetben a végleges állapot megépíthetőségét tervekkel is igazolni kell.
4. [66]A szabadonálló épület utcai építési vonalra merőlegesen mért vetületi hossza - ha a szabályozási terv ettől eltérően nem rendelkezik - legfeljebb 20 m lehet.
5. [67]Az előkert mértéke minimum 5,0 méter. Az előkert méretét az utcában (útszakaszon) kialakult méretnek megfelelően, a környezethez illeszkedés céljából ettől eltérően is meg lehet határozni.
Az oldalkert mértéke a szabályozási terv eltérő jelölése hiányában az épület arra néző átlagos homlokzatmagasságának fele, de legalább 3,0 méter.
A hátsókert mértéke a szabályozási terv eltérő jelölése hiányában az épület arra néző átlagos homlokzatmagasságának értéke, de legalább 6,0 méter.
6.[68]
7. [69]Amennyiben az építési helyen belül értékes növényzet található és az építmény az építési helyen belül e növényzet megóvása esetén is elhelyezhető, az építési helyen belül az építményt úgy kell elhelyezni, hogy a védendő növényzet megmaradjon.
c) Oldalhatáron álló és ikresen csatlakozó beépítés
Az elő-, oldal- és hátsókert méretét a jellemző beépítési módnak (szabadonálló, zártsorú) megfelelő előírások alkalmazásával kell meghatározni.
(7) Beépítés és szintterület
a) Az egyes övezetek beépítési mutatóit és beépíthető szintterületét az övezeti táblázatok tartalmazzák.
b) Ott, ahol az építési hely által kijelölt terület az övezeti határértéknél kisebb a megengedett beépítés mértékénél az építési hely által kijelölt terület nagyságát kell figyelembe venni, azaz a megengedett beépítés az építési hely által meghatározott.
c) Az egyes övezetekben megengedett beépítési és szintterületi mutatóktól az engedményes értékkel csak az alábbi esetekben lehet eltérni:
1. ha a szabály azt megengedi,
2. saroktelek esetén - a városképi illeszkedés érdekében. Telekegyesítés esetén az engedményes érték legfeljebb az egyesített telek 500 m2 területű részén, a sarok megfelelő (város)építészeti kialakításának érdekében érvényesíthető[70]
3. túlépített (beépítés, szintterület) építmény részleges bontásával járó új beépítésénél
4. 1970 előtt épült lakóépület meglévő tetőterének beépítése, illetve újjáépített tetőzetének beépítése esetén.[71]
5. [72]A Lánchíd hídfőjénél – saroktelek beépítése esetén, a városkép kedvezőbb kialakítása érdekében a beépítettség, illetve a szintterületi mutató a keretövezetben a saroktelek esetén megengedett értékig túlléphető.
6. [73] A terepszint (a támfalak, várfalak felső rendezett terepszintje) alatt régészeti-, építészeti- vagy egyéb történeti érték bemutatása indokolt.
d)[74] Az egyes építési övezetekben megengedett beépítési, szintterületi és magassági mutatók maximum a BVKSZ határértékéig túlléphetők:
1. A terepszint alatti további parkoló(hely) létesítésével. Ez esetben a funkciókhoz előírt, valamint az így létrehozott parkolóterület funkciója nem változtatható meg.
2. [75]Beépítésre szánt területen, lejtőre merőleges út (utca), helyi övezethatár mentén fekvő saroktelek esetén. A túllépés maximum a magasabb beépíthetőségű átellenes saroktelek megfelelő mértékéig megengedett. E kedvezmény csak olyan teleknél vehető figyelembe, amelyet a kötelező szabályozáson túl 10 éven belül telekalakítás nem érintett.
3. A magassági mutatók kivételével – az ehhez szükséges nagyságban - abban az esetben, ha a telken védendő régészeti érték található (illetve kerül elő) és ennek közcélú bemutatását az Örökségvédelmi Hatóság szakvéleményében szükségesnek tartja, továbbá a bemutatást az ingatlantulajdonosok megfelelő jognyilatkozattal vállalják. A közcélú bemutathatóságot megfelelő jogi eszközökkel mindaddig biztosítani kell, amíg az érintett paraméterek a mindenkor hatályos szabályzati értékeket túllépik.[76]
4. egy felvonó számára az ehhez szükséges minimális értékekkel meglévő, legalább háromszintes, lifttel nem rendelkező lakóépület esetén.[77]
e) A területen a BVKSZ-ban megengedett 100 %-os beépítés csak a KL-KT keretövezet (utak), illetve az ezekhez csatlakozó terek mentén fekvő L1, VK, I és KV-IK keretövezetekbe sorolt területek zártsorú beépítésű telkein, továbbá a VK-FV-1 és VK-FV-2 övezetekben konkrétan meghatározott helyeken megengedett, az alábbiak szerint:
1. csak a földszint építhető be. Az udvarterület egyszintes lefedése – amennyiben beszámítandó - ezzel egy tekintet alá esik;
2. [78]a beépítés nem járhat:
- 50 cm-nél nagyobb törzsátmérőjű fa kivágásával,
- építészeti érték megsemmisülésével (burkolat, épületdísz, karakteres építészeti elem),
- a beépítés feletti területek rendeltetésszerű használatának zavarásával.
A beépítés (lefedés) módját (tömör, átlátszó) és kialakítását (fedés, kertészeti kialakítás) az építmény építészeti karakterére, a feltárulkozó látvány kedvező kialakítására tekintettel kell megoldani.
f) A szabadon álló beépítésű övezetekben 1000 m2-t meghaladó teleknagyság esetén – a kialakult városkép védelme érdekében – a beépítés és szintterület értékeinek kiszámításánál az 1000 m2 fölötti telekterület 50%-át figyelmen kívül kell hagyni.
g) A szabályozási tervlapokon jelölt kötelező gyalogúttal (átjárás), továbbá közcélú aluljárókkal, átjárókkal, árkádokkal érintett telkeknél a megállapodás alapján közcélra rendelkezésére bocsátott és az ingatlan nyilvántartásba bejegyzett területek 50 %-át a beépítés és szintterület számításánál figyelmen kívül kell hagyni. Az így növelt érték azonban az övezetben meghatározott kedvezményes értékeket nem lépheti túl.
h) Meglévő épületnél
1. Ott, ahol a szabályozási terv konkrét bővítési, emeletráépítési, magastetőssé alakítási lehetőséget tartalmaz, az övezeti mutatók (beépítési százalék, szintterület) a BVKSZ határértékéig ezzel túlléphetők.
2. Ahol a szabályozási terv tetőidom korrekciót jelöl, a korrekció során a városképi illeszkedési szabályok érvényesítendők. A korrigált tetőtér egy szintben történő beépítéséhez a szintterületi mutató az övezetben meghatározott engedmény értékével növelhető.
3. Meglévő, 1970 előtt létesített, rossz állagú, felújításra illetve megerősítésre szoruló épület meglévő tetőterének egy szintben történő beépítésével a meghatározott szintterületi mutató a BVKSZ határértékéig túlléphető, ha a beépítéssel egyidejűleg az épület teljes szakvizsgálata alapján indokolt megerősítésekre, beavatkozásokra, továbbá legalább a közterületről látható homlokzatok és tetőzet indokolt felújítására is egyidejűleg sor kerül.
4. Lakófunkció esetén, túlépített telken a meglévő tulajdoni helyzet műszaki rendezése (megosztás, egyesítés) érdekében egy alkalommal megengedett a telek meglévő beépítésének 1 %-os növelése és az ehhez műszakilag indokolt szintterület növelés.[79]
i) [80]
j) [81]A szintterület számítása során – jogszabály eltérő rendelkezése hiányában – nem kell figyelembe venni a lakók tárolóinak területét lakás rendeltetési egységenként legfeljebb 25 m2 szintterületig, illetve a gépjárműtároló területét gépjárművenként legfeljebb 30 m2 szintterületig.
k) [82]A terepszinten zöldfelületként kialakított parkoló területe a zöldfelületek területének számítása során nem vehető figyelembe.
(8) Építmények létesítése és átalakítása
a) Új építmény létesítése, meglévő épület bővítése, tetőtér-beépítése, átalakítása, funkciójának megváltoztatása
Az övezeti határértékek mértékéig elvileg megengedett, amennyiben
– az építési hely határai megengedik,
– a városképi illeszkedés biztosított és
– az ingatlant érintő, a szabályzatban konkrétan meghatározott beavatkozásokat – különösen az előírt telekalakításokat, bontásokat, tetőidom-korrekciókat és közhasználat biztosítását – egyidejűleg végrehajtják;
funkcióváltás esetén ez csak az építmény teljes vagy az eredeti, (létesítéskori) rendeltetéshez képest 50%-os szintterületet meghaladó részleges funkcióváltás elérése esetén érvényesítendő.
b) Meglévő épület
1. – emeletráépítéssel történő bővítése,
– lapostetejének magastetőssé alakítása
csak a szabályozási tervben megjelölt helyen illetve a szabályzatban meghatározott esetben megengedett.
2. Az emeletráépítéssel érintett terület meglévő tetőtere nem építhető be.
3.[83]
4. Az eredeti architektúra visszaállítása érdekében az eredeti tervekkel igazolt tetőidom visszaépítése a szabályzat alkalmazása szempontjából meglévő tetőnek, (tetőtérnek) tekintendő.
5. [84]Meglévő magastetős épület tetőszerkezetének átalakítása (és beépítése) vagy magastetős létesítése (és beépítése) esetén az építés következtében a homlokzatmagasság nem növelhető, kivéve
- műszaki szükségességből vagy
- a városkép kedvezőbb alakítása érdekében.
Ez esetben a homlokzatmagasság maximum 0,8 m-rel növelhető.
6. Az épületek jelentős vagy teljes felújítása esetén a szabályozási tervlapon jelölt tetőkorrekciókat végre kell hajtani.
7. Ahol a szabályozási terv meglévő beépítésénél jelöl ki építési helyet:
- a meglévő épület bontása esetén az új beépítést ez a építési hely határozza meg,
- a szabályzatban megengedett épületnagyság a meglévő épület meghatározott építési vonalon belüli bővítésével (emeletráépítésével) is kialakítható – az illeszkedési szabályok betartásával.[85]
8. Meglévő épület bontása esetén új építményt építeni csak az a). pontban meghatározottak szerint szabad, kivéve ha a bontásra vis-major (pld.: elemi csapás, tűzvész) miatt vagy élet- és balesetveszély elhárítása érdekében kerül sor. Ez esetben az esemény előtt meglévő épület eredeti tömege azonos rendeltetéssel 2 éven belül még az esetben is visszaépíthető, ha az a hatályos szabályoknak egyébként nem felelne meg.
9. [86]
[87]10.[88] Olyan esetben, ha meglévő építmény bővíthetősége a szabályzatban konkrétan meg van határozva (szintszámmal vagy emeletráépítés jelöléssel), a meglévő épület teljes bontása esetén az új beépítésnél az általános illeszkedési szabályok alkalmazandók.
11.[89]
(9) Építmények részleges vagy teljes bontása
a) A területen védett vagy védettséggel érintett építmény bontására csak a védelem megszüntetését követően kerülhet sor.
b) A műemléki jelentőségű (Világörökségi védettségű) területeken teljes, vagy az épület tömegét jelentősen érintő bontás csak az illetékes műemlékvédelmi szakhatóság hozzájárulásával és az abban foglalt feltételekkel végezhető.
c) [90]A területen meglévő épület teljes vagy tömegét jelentősen érintő bontására világörökségi védettségű területen csak tudományos és régészeti dokumentáció, egyéb területen 1:100 léptékű felmérési tervek alapján kerülhet sor.
d) A szabályzatban konkrétan meghatározott bontandó építmények, építményrészek bővítése nem megengedett. Átalakításukat csak a legszükségesebb közegészségügyi illetve életvédelmi célból lehet végezni. Felújításuk csak a rendeltetésszerű használathoz szükséges mértékig, a kötelező jókarbantartás körében megengedett.
e) Meglévő épület részleges bontásával járó új beépítés esetén ott, ahol a szabályozási terv kijelöli az új építési helyet, az ezen kívül eső felszín feletti építmények egyidejű bontása kötelező.
f) A szabályzatban vagy szabályozási terven kötelezőnek jelölt bontástól csak az esetben lehet részlegesen vagy teljes mértékben eltekinteni, ha azt kulturális, illetve történeti érték védelme indokolja és azt a KÖH szükségesnek tartja.[91]
g) [92]Lapostetős épület lebontása esetén annak helyén csak lapostetős épület létesíthető, kivéve, ha a magastetős épület létesítését a városkép védelme, alakítása indokolttá teszi.
10) Városképi illeszkedési szabályok
a) A területen új építmény elhelyezése vagy meglévő épület tömegének, látványának megváltoztatása esetén biztosítani kell a környezethez és a környező épületekhez történő illeszkedést. A városképi illeszkedés szempontjából a homlokzatmagassági , párkánymagassági, gerincmagassági értékek a meghatározók.
b) Lejtős terepszakaszon az új épület homlokzatmagasságát - utcakép alapján - a szabályzat keretei között úgy kell meghatározni, hogy annak magassági tagolása kövesse a tereplejtést és a környező beépítés karakterét.
c) Új vagy átalakítandó magastetők hajlásszöge megközelítőleg legyen azonos a csatlakozó, illetve az épület közvetlen környezetében álló épületek tetősíkjának hajlásszögével.
d) Zártsorú beépítés esetén
1. a csatlakozó új épület(rész) zárópárkánya (ereszvonala) a csatlakozástól számított 3 méteren belül maximum 0.8 m-rel lehet alacsonyabb, illetve - városképileg indokolt esetben - magasabb a csatlakozó meglévő épület megfelelő eleménél. A további homlokzati szakasz magassága nem lépheti túl a magasabb csatlakozási értéket;
2. új vagy átalakított magastető látványának csökkentenie kell a szomszédos épületek takaratlan tűzfalainak felületét.
e) Ahol a szabályozási terv meghatározott bővítést (emeletráépítést) vagy kötelező magasság-csökkentést (visszabontást) jelöl, az illeszkedést az így növelt, illetve csökkentett értékhez kell biztosítani.
f) [93]Ahol az illeszkedési előírások alkalmazása ellentmondásra vezetne, úgy azt, hogy melyiket kell alkalmazni, a városképi szempontok érvényesítésével kell meghatározni.
g) [94]Eltérő traktusmélységű magastetős épületek gerincmagasságát össze kell hangolni és a magasságkülönbség legfeljebb 1,5 méter lehet.
Beépítésre nem szánt területek általános előírásai
31.§
(1) Területfelhasználás
a) A terület helyi övezetekre tagozódik.
b) A beépítésre nem szánt területek közhasználatát - a jogszabályok keretei között - folyamatosan biztosítani kell.
c) A közhasználat meghatározott időre és feltételekkel – megfelelő jogi keretek között – az alábbi esetekben korlátozható:
– a szabályzatban megengedett építmények elhelyezésével (állandó, ideiglenes),
– közterületek időszakos védelmével (pl.: játszóterek lekerítése, lezárása),
– más jogszabály alapján meghatározott közterület-használattal (rendezvény, vásár, stb.)
– karbantartási, építési, átalakítási, bontási munkák végzése céljából,
– kialakult veszélyes állapot esetén, annak elhárításához szükséges legrövidebb időre.
d) Terepszint alatti beépítések felszíni területein – még önálló ingatlan kialakítása esetén is – biztosítani kell a közcélú használat lehetőségét.
e) A területfelhasználás sajátos szabályait az egyes övezetek előírásai tartalmazzák.
(2) Telekalakítás
a) Az övezetek megengedett telekméretei megegyeznek a történetileg kialakult (meglévő) teleknagyságokkal.
b) A kötelező szabályozásokat a szabályozási terv (KSZT) tartalmazza. Ezeket a terület rendezése során végre kell hajtani.
c) A telek szabályzatban előírt vagy megengedett szabályozása esetén a közterületté váló terület a közterületi, a beépítésre szánt területhez csatolt rész pedig az ennek megfelelő övezeti besorolását kapja.
d) Közterületen, a keretövezeten, övezeten belül telkek alakítása a szabályzat módosítása nélkül megengedett.
(3) Beépítés, szintterület
a) Az egyes övezetek beépítési mutatóit és beépíthető szintterületét az övezeti táblázatok tartalmazzák.
Meglévő, kialakult közterületek felújítása, átalakítása esetén – amennyiben a kötelezően előírt zöldterületi érték már jelenleg sincs meg – a felújítási, átalakítási, építési munka elvégezhető, ha a meglévő zöldterület nagysága tovább nem csökken.[95]
b)[96] közterület, útterület felett, illetve alatt kialakítható épületrész szintterülete az érintett területek vízszintes vetületén számítva, egyenlő mértékben osztandó meg és számítandó az érintett épületek szintterületéhez.
(4) Az építmények rendeltetése
a) A területen a KL illetve Z keretövezetekben illetve a helyi övezetekben meghatározott rendeltetésű építmények illetve az ennek megfelelő funkciók helyezhetők el[97], alakíthatók ki.
b) [98]A területen olyan funkció (tevékenység) nem alakítható ki, amely a közlekedést akadályozza vagy a térség forgalmát túlterheli. Ilyen tevékenységre rendeltetési mód sem változtatható meg.
c) [99]
d) A területen új üzemanyagtöltő állomás csak terepszint alatti parkoló részeként létesíthető.
e) [100]A területen haszonállat elhelyezésére vagy bármilyen állattenyésztési célú elhelyezésre szolgáló építmény nem helyezhető el, ilyen funkcióra meglévő építmény(rész) nem alakítható át.
(5) Építmények elhelyezése
a) Közterületen új építmény, közműlétesítmény, transzformátorház, nyilvános illemhely, telefonfülke, utasváró, valamint a 33-36.§, 39-43. §-okban szabályozott építmények kivételével csak szabályozási terv (SZT) alapján létesíthető.
b) A területen művészeti alkotás (köztéri szobor, plasztika díszkút) felállítása a 43.§ rendelkezései szerint megengedett
(6) Közterület kialakítása
a) [101]
b) [102]
c) [103]
d) A járdák vagy utak felújítása, átalakítása, helyreállítása keretében a mozgáskorlátozottak számára feljárókat kell kialakítani az előírásos módon.
e) A járdafelület, vagy egy részének parkolási célú igénybevétele esetén egyidejűleg a döntött szegély kialakításáról és a parkolási határ jelzéséről megfelelően gondoskodni kell.
f) [104]
g) [105]
VII. Fejezet
Egyes építményfajták sajátos előírásai
Üregek, barlangok
32.§
(1) A területen meglévő üregeket és barlangokat az illetékes szakhatóságok előírásainak betartásával és egyetértésével lehet felhasználni.
(2) Barlangot megszüntetni - az illetékes szakhatóságok egyetértésével is - csak rendkívül indokolt esetben, más értékek védelme vagy a terület biztonságos használatának érdekében lehet.
(3) Az üregek, barlangok kialakítása, megerősítése, felújítása során a hatályos jogszabályok között meg kell határozni és ki kell alakítani a létesítmények funkcióját.
Kerítések
33.§[106]
Támfal
34.§[107]
Egyéb támfallétesítmények
35.§
(1) Támfallétesítmény a meglévő támfalba építve abban az esetben létesíthető, ha:
a) az a meglévő támfal magasságának megnövelése nélkül, illetve – ha azt a városkép, vagy a környezethez való illeszkedés indokolja – az eredeti támfalmagasság legfeljebb 0.50 m-rel történő emelésével kialakítható.
b) A rendezett felszínen az eredeti terepszint legfeljebb 1,00 m-rel változik meg.
(2) Új támfal-létesítmény abban az esetben létesíthető, ha:
a) az a bejárat kivételével teljes terjedelemben terepszint alá kerül. Saroktelek esetében a bejárat és egy további, támfalként kialakított fal létesíthető.
b) az a környező közterület(ek)ről a kert(ek)re való rálátást indokolatlanul nem korlátozza.
(3) [108]
(4) [109]
(5) Támfal-létesítmény csak az ingatlan be-, illetve feljáratát is magában foglaló támfallal együtt, - a telek teljes utcai oldalára vonatkozó - terv szerint alakítható ki.
(6) [110]
(7) A telek közterületi telekhatárán létesített támfallétesítménynél – közcélú, közellátási funkció esetén – a szintterületi mutató az övezetre megállapított kedvezményes értékkel növelhető.
Terepszint alatti parkoló építmények
36.§
(1) Az építmények – a Z-KK keretövezetek kivételével – beépítésre szánt és beépítésre nem szánt területen a szabályzat rendelkezéseinek figyelembevételével egyaránt elhelyezhetők.
(2) Az építményhez csak a legszükségesebb alapterületű, földszintes, kizárólag a megközelítést és gépészetet szolgáló felépítmény helyezhető el a szint alatti kontúr maximum 5%-ban.
(3) A szint alatti beépítés legalább 80%-a a gépkocsitárolást illetve ahhoz közvetlenül kapcsolódó kiegészítő funkciót kell, hogy szolgáljon.
(4) A terepszint alatti parkolóépítmény szintterületi mutatója:
a) beépítésre szánt területen nem haladhatja meg a keretövezetre a BVKSZ-ban előírt értéket.
b)[111]
(5) A létesítéshez a meglévő terepszint 1,00 méternél nagyobb mértékben véglegesen csak talajmechanikai, hidrológiai és hidrogeológiai szakvéleményben igazolt módon, az illetékes szakhatóságok egyetértésével változtatható meg.
(6) 50 férőhely kapacitás fölött a létesítés feltételeit a 11.§-ban szabályozott Városrendezési Hatástanulmány (VRHT) alapján kell meghatározni.
(7) [112]
(8) Nem közterületen (alatt) a felszíni területeket kertészeti terv alapján kell kialakítani.
(9) [113]
(10) [114]
(11) A területen városszerkezeti, forgalmi okokból javasolt terepszint alatti parkolók helyszíneit a szabályozási terv (KSZT) tartalmazza.
Önálló parkoló építmények
37.§
(1) önálló parkoló-építmények (terepszint feletti parkolóházak, garázsházak) a szabályzat keretei között csak a KL-KT keretövezetek mentén fekvő L1 és VK keretövezetekben, az övezetek zártsorú beépítésű részein helyezhetők el.
(2) Az önálló parkolóépítmény szintterületi mutatója:
a) a helyi övezetekre előírt értéket legfeljebb a keretövezetre előírt mértékig túllépheti,
b)[115]
(3) 50 férőhely kapacitás fölött a létesítés feltételeit a 11.§-ban szabályozott Városrendezési Hatástanulmány (VRHT) alapján kell meghatározni.
(4)[116]
Sorgarázsok
38.§[117]
Aluljárók, felüljárók
39.§
(1) [118]A területen aluljáró, illetve a városképi követelményeket is kielégítő, indokolt felüljáró csak közlekedési és környezetvédelmi hatástanulmány alapján létesíthető.
(2) Az aluljáróhoz csatlakozóan, annak részeként - a hatályos szabályok keretei között - kereskedelmi és szolgáltató építmények is kialakíthatók.
(3) Közcélú aluljárókhoz illetve felüljárókhoz a nagyobb környezetben történő eligazítást biztosító információs felületet, berendezést kell biztosítani.
Pavilon jellegű építmények
40.§[119]
Cégérek, hirdetések, reklámok, díszvilágítás
41.§[120]
Kikötők, úszóművek
42.§
(1) Hajó- (úszómű-) kikötő – az egyéb jogszabályokban tiltott helyek kivételével, a vonatkozó előírások betartása mellett – a terület dunaparti szakaszain elhelyezhető.
(2) A kikötői felépítmények közül:
a) helyszínenként egy 12 m2 bruttó területet meg nem haladó földszintes építmény Közterületrendezési Terv (KÖRT) alapján létesíthető.
b) Ennél nagyobb, illetve több felépítmény csak szabályozási terv (SZT) alapján létesíthető.
(3) [121]
(4) Olyan úszóművek, amelyeken gazdasági tevékenységet folytatnak – a kizárólag közlekedést szolgálók kivételével – a területen csak akkor helyezhetők el, ha:
a) a rendeltetéshez szükséges parkolóhely egyidejűleg biztosítható,
b) a megközelítés és forgalom forgalomtechnikai vizsgálatokkal igazolt módon, biztonságosan megoldott,
c) az úszóművön folytatott tevékenység a környezetet nem zavarja.
(5)[122]
Egyéb építmények
43.§
(1) Egyes mérnöki létesítmények (BVKSZ 5.§ (1) ) csak az érintett övezetekben megengedett egyéb építményen belül (annak részeként), illetve támfallétesítményként vagy terepszint alatt helyezhetők el.
(2) [123]
(3) [124]
(4) [125]
(5) [126]
(6) [127]
(7) [128]
(8) [129]
(9) [130]
(10) [131]
(11) [132]A terület 5%-nál nagyobb átlaglejtésű telkein a telek természetes terep szintjét 1,0 méternél nagyobb mértékben végleges jelleggel megváltoztatni csak abban az esetben szabad, ha az megfelel a talajmechanikai, hidrogeológiai és barlangtani viszonyoknak. Az átlaglejtést a telek legalacsonyabban és legmagasabban fekvő pontjai közötti magasságkülönbségként kell értelmezni.
(12) [133]A területen 100 m3-nél nagyobb térfogatú, nem közcélú, szabadon álló (épülettel nem egybeépített) víz-, fürdőmedence nem létesíthető. 100 m3-nél kisebb térfogatú, nem közcélú kerti víz-, fürdőmedence a medence környezetére kidolgozott kertépítészeti terv alapján engedélyezett helyen akkor létesíthető, ha a műszaki megoldása megfelel a talajmechanikai, hidrogeológiai és barlangtani viszonyoknak, és esetleges meghibásodása nem veszélyezteti a környező telkeket, illetve azok beépítését.
VIII. Fejezet
Övezeti előírások
44.§
(1) A terület a területfelhasználás a beépítés jellemzői alapján helyi építési övezetekre tagolódik.
(2) Az övezeti előírásokat az általános és egyedi előírások szabályokkal együtt kell alkalmazni.
(3) Az övezeti jel:
a) első betűjele a Fővárosi Keretövezet jele
b) a további jelek a helyi övezet
1 a területfelhasználás jellegét............... védett: .......................... V
fokozottan védett: ...... FV
2 a beépítés módját................................. zártsorú:........................ Z
szabadonálló: .............. SZ
3 a beépítés jellegét.................................. kertes............................. K
4 jellemző felhasználását....................... zöldterület..................... KP
valamint
c) a tovább-szabályozandóságot................................................... SZT
jelölik.
(4) A helyi övezetek előírásai tartalmazzák az adott övezetekben fekvő telkekre vonatkozó részletes előírásokat is.
a) Ahol ilyen nincs, ott csak a tömbhatárok vannak feltüntetve.
b) Ahol a tömböt több helyi övezet is érinti, az egyedi rendelkezések az érintett övezeti előírásoknál szerepelnek.
Lakóterület
Nagyvárosias lakóterület
L1 jelű övezetek
45.§
(1) Az övezetek területén a telkekre és az építményekre vonatkozó jellemzőket a 4. számú táblázat tartalmazza.
4. számú táblázat
Övezet jel | Beépítettség | Szintterületi határérték(1) | Legkisebb zöldfelület | Megengedett legna-gyobb magasság | ||||
terepszint | Engedmény | határérték | Engedmény | építmény-magasság | homlokzat-magasság | |||
alatt | felett | |||||||
L1-V1-Z | 100 | 75 | 5 | 3,5 | +0,3 | 15 | kialakult | kialakult |
L1-V2-Z | 100 | 60 | 5 | 2,25 | +0,25 | 20 | kialakult | kialakult |
L1-V3-SZ | 65 | 35 | 5 | 1 | +0,15 | 35 | meghat.(2) | 9,5 |
L1-KP-1[134] | ||||||||
RSZT esetén szintterületsűrűség
közterület felöli homlokzatmagasság által meghatározott
(2) Az övezetek területén a hatályos építési szabályok és a KÉSZ keretei között az L1-KP-1 övezet kivételével az alábbi építmények helyezhetők el:
a) lakóépület,
b) szálláshely-szolgáltató épület,
c) közintézmény épület,
d) irodaház,
e) legfeljebb 2.500 m2 bruttó szintterületű kiskereskedelmi épület,
f) sportépítmény,
g) ahol azt a KÉSZ előírásai lehetővé teszik, parkolóház, illetve
h) terepszint alatti parkolóépítmény.
(3) A pince,-földszint és első emeleti szinteken elhelyezhető kereskedelmi funkciót bruttó össz-szintterülete a telkenkénti 1500 m2–t nem haladhatja meg.
(4) Az övezetek területén ipari épületet, önálló raktárépületet, nagykereskedelmi épületet elhelyezni, meglévő épület használati módját e célra megváltoztatni nem lehet.
L1-V1-Z jelű övezet
46.§
(1) L1- V1-Z jelű övezetek területén az építmények kialakítására vonatkozóan a KVÉSZ előírásait az alábbi kiegészítésekkel és eltérésekkel kell alkalmazni.
17. TÖMB (Donáti u. - Hunyadi J. út 14168 hrsz határa)
a) a tömbben támfalakkal és mellvédekkel a középkori eredetű térfalat vissza kell állítani.
b) Hunyadi J. u. 23/a. sz. 14173/3. hrsz.
A be nem épített tetőtér csak a Hunyadi J. u. felé néző tetőablak átépítésének esetén építhető be.
c) Donáti u. 2. (Hunyadi J. u. 21.) 14172 hrsz.
tetőtérbeépítés tilos
d) Donáti u. 4-6-8. sz. 14168. hrsz.
A Donáti u. mentén megengedett új bővítés csak földszintes lehet, tetejét lapostetővel kell kialakítani. A bővítmény magasságának igazodnia kell a környező terepviszonyokhoz.
18. TÖMB (Toldi F. u. - Donáti u. - 14168 telken át - Hunyadi J. u. között Hunyadi J. u. - Jezsuita lépcső - Várfalak - Schulek lépcső - Hunyadi J. u. - 14180/3 hrsz)
a) Donáti u. 10., 14168 hrsz
Toldi F. u. 2. 14177 hrsz
Toldi F. u. 4. 14178 hrsz
Toldi F. u. 6. 14179 hrsz
telkeket érintő, az utca mentén megengedett új beépítés feltétele a szabályozási tervlapon jelzett telkek kialakítása és a meglévő lakóépület elbontása. A telekalakítás utáni Szabó Ilonka u. felé eső teleksáv övezeti besorolása L1-KP-1.
b) a beépítésnél az eredeti telekosztást homlokzati tagolással jelezni kell.
c) az új beépítés lefedése járhatóan vagy zölddel fedetten is kialakítható.
d) a tömbből fennmaradó területen felszín feletti beépítés nem helyezhető el, azt parkként kell kialakítani és fenntartani.
37. TÖMB (Batthyány u. - Gyorskocsi u. - Iskola u.)
Gyorskocsi u. 6. (Iskola u. 33) 14117 hrsz
beépítésével a Gyorskocsi u. 2-4. (14116 hrsz) ingatlan északi oldalán előírt közterület-jellegű áthajtót biztosítani kell,
Gyorskocsi u. 8. 14124 hrsz
Gyorskocsi u. 10. 14123 hrsz
telkek tervlapon jelölt bővítése során a bővítmények új homlokzatmagasságát úgy kell kialakítani, hogy azok a Gyorskocsi u. 6. (14117 hrsz) megengedett magasságához lépcsőzzenek le. A telekhatárokon alkalmazható lépcsőzés min. fél, max 1 szint lehet.
38. TÖMB (Batthyány u. - Málna u. - Csalogány u. - Gyorskocsi u.)
a) A Batthyány u. 13. 13891 hrsz
meglévő épület tetőterének akár részleges felhasználása esetén a szabályozási tervlapon szereplő tetőidom korrekciót végre kell hajtani.
39.[135] TÖMB (Batthyány u. - Iskola u. - Franklin u. - Donáti u. - Mária tér)
a) Batthyány u. 8. 14101 hrsz és 14102 hrsz alatti iskola
1. az Iskola u. 46. sz. 14102 hrsz telekkel történő összevonása után bővíthető
2. a meglévő és az új épület közötti udvar egy szintben lefedhető,
3. az új épület csatlakozási magassága legfeljebb a meglévő épület párkány-magassága lehet,
4. a magastetővel és lapostetővel is kialakítható új épület legnagyobb magassága a 14103 hrsz-ú telek csatlakozó rendezett terepszintjéhez képest legfeljebb 9,5 m lehet,
5. az iskola bővítése több ütemben is megvalósítható.
40. TÖMB (Fazekas u. - Csalogány u. - Málna u. - Mária tér)
50. TÖMB (Kapás u. – Csalogány u. – Fazekas u. – Batthyány u.)
51. TÖMB (Csalogány u. – Kapás u. – Hattyú u. – Erőd u.)
52. TÖMB (Hattyú u. – Vándor u. – Csalogány u. – Erőd u.)
53. TÖMB (Hattyú u. – Széna tér – Csalogány u. – Vándor u.)
54. TÖMB (Hattyú u. – Batthyány u. – Fiáth u.)
59. TÖMB (Szabó I. u. - Ostrom u. - Batthyány u. - Fiáth J. u.)
60. TÖMB (Ostrom u. - Széna tér - Hattyú u. - Fiáth J. u. - Batthyány u.)
a) A Fiáth J. u. 14. 13962 hrsz
1 a telek Fiáth J. u. felé eső határán legalább félszintes lépcsőzéssel kell követni a terepemelkedést.
2 Az új épületnél a meglévő, illetve megengedett mértékig növelt épületekhez történő csatlakozás a szabályozás szempontjából elsődleges.
61. TÖMB (Vérmező u. - Ostrom u. - Batthyány u. - Várfok u.)
a) A szabályozási tervlapon szereplő, a Vérmező u. és Batthyány u. között kialakítandó, közcélú gyalogos átjárás megoldására csak műemléki és régészeti vizsgálatot követően és annak megfelelően kerülhet sor. Az átjáró minimális szélessége 3 m.
b) Vérmező u. 4. sz. 13969. hrsz.
az épület bontása esetén a szabályozási tervlapon jelölt új beépítés alakítható ki. A jobboldali, utcára merőleges épületszárny nem bővíthető.
c) [136] Batthyány utca 61., hrsz 13977. Az épület Batthyány utca menti, a szabályozási terven lehatárolt része emeletráépítéssel bővíthető, a magastető beépíthető.
Az épület hátsó telekhatár melletti részén emeletráépítés, a magastető beépítése, átalakítása esetén a Vérmező utca 4. (hrsz 13969) felőli tűzfal kialakult magassága nem növelhető, a tetőzet kialakítása a tűzfal magasságának növelésével nem járhat. A zártudvaros épület oldalsó szárnyainak szabályozási terven lehatárolt része csak olyan módon, mértékben és csak akkor építhető be, ha a bővítés (emeletráépítés, tetőtérbeépítés)
1. a csatlakozó épületek tűzfalait takarja,
2 a csatlakozó épületek tűzfalainak megengedett magasságát nem haladja meg
3. A csatlakozó szomszédos épületek benapozását nem csökkenti és
4. a rálátásban nem jelent jelentős változást.
62. TÖMB (Várfok u. - Batthyány u. - Ostrom u.)
a) Batthyány u. 54. ................................. 13982 hrsz
Batthyány u. 56........................................ 13981 hrsz
Várfok u. 9. 1........................................... 13985 hrsz
Várfok u. 7………………………..13986 hrsz.
1. a telkek akár páronként is egyesíthetők. A beépítés esetén az eredeti telekosztást az új épületek tömegformálásával és architektúrájával jelezni kell
2. a telkek engedményes értékkel növelhető megengedett beépítését a Várfok u. megfelelő szintje által kijelölt síkon, illetve a fölött kell értelmezni.
3. az udvarterületeket zölddel fedetten kell kialakítani
64. TÖMB (Mátray u. - Logodi u. - Várfok u.)
65. TÖMB (Vérmező u. - Logodi u. - Körmöczi lépcső - Attila út)
66/A TÖMB (Attila út - Körmöczi lépcső - Logodi u. - Jávorka lépcső kiépíthető szakasza)
a) A Logodi u. mentén az ingatlanok új beépítésnél az oldalsó és hátsó homlokzatok sem emelkedhetnek túl a Logodi u. mentén megengedett közterület felöli magasságnál.
b) Logodi u. 68. 6790/4
az új épület(ek) HM és GM igazodjék a Logodi u. 72. sz. 6793/2 telken kialakult illetve megengedett értékekhez.
c) Attila út 127. 6790/1 hrsz
az épületre építhető emelet szintmagassága azonos a kialakult szintmagassággal, homlokzata pedig a meglévő homlokzati architektúrával azonos kialakítású legyen.
66/B TÖMB (Jávorka lépcső kiépíthető szakasza - Logodi u. - Korlát u. - Attila út)
Logodi u. 64-66. 6789/1 és 6788 hrsz
az új épület(ek) HM és G igazodjék a Logodi u. 72. sz. 6793/2 hrsz telken kialakult, illetve megengedett értékekhez
69. TÖMB (Logodi u. - Korlát u. - Várfalak - Bugát lépcső)
a) Logodi u. 39-41-43-45-47. 6742 hrsz
1. a telkeken létesíthető új beépítések HM és GM-nek a Logodi u. 37. sz 6746 hrsz ingatlanon meglévő épület megfelelő utcai méreteihez kell alkalmazkodnia
2. az épületek architektúrájának követnie kell a kialakuló telekosztást
3.[137]
b) Logodi u. 37. (Lovas út 11-12.) 6746 hrsz
Az ingatlanból a szabályozási tervlapon szereplő telekosztás után kialakuló Lovas úti új telek övezeti besorolása L2-V3-SZ.
70. TÖMB (Attila út - Korlát u. - Logodi u. - Bugát lépcső)
a)[138]
c) Logodi u. 50. 6780 hrsz
1. tetőidom-korrekció: az északi oldalon, valamint az oldalszárnyakon a szabályozási terven jelölt nyeregtetőssé alakítás akár a tetőtér részleges beépítése esetén is kötelező.
2. Az épület felújítása esetén az oldalszárnyak második és harmadik emeleti szintjeinek homlokzatosítását végre kell hajtani.
71. TÖMB (Bugát u. - Logodi u. - Mikó u. - Attila út)
a) Attila út 81. 6767/3 hrsz.
Attila út 83. sz. 6767/4. hrsz.
Attila út 85. sz. 6767/5. hrsz.
1 a létesíthető max. 6 m-es magastető semmilyen része nem nyúlhat túl az utcai, illetve azzal párhuzamos hátsó homlokzati élre állított 45 fokos síkon.
2 A meglévő lapostető közterület felé eső 3 méteres sávja nem építhető be, az csak teraszként alakítható ki.
b) Attila út 89. 6769/1 hrsz
a HM az Attila út 87.sz. 6768 hrsz meglévő épület utcai HM-hoz igazodjék
c) Attila út 93. 6771 hrsz.
a HM az Attila út 87. sz. 6768 hrsz meglévő épület utcai HM-hoz igazodjék
72. TÖMB (Logodi u. - Bugát lépcső vonala - Várfalak – Gránit lépcső)
a) Logodi u. 27/a 6755/4 hrsz
a meglévő épület bontása esetén a szabályozási terv szerint létesíthető új beépítés homlokzatmagassága (Hm) és gerincmagasság (Gm) nem lépheti túl a Logodi u. 25. sz. 6756/1 hrsz meglévő épület utcai homlokzatmagasságát és gerincmagasságát.
b) Logodi u. 31. 6752/2 hrsz
a tetőzet korrekciója – az északi részen nyeregtetőssé alakítás.
73. TÖMB (Tábor u. - Gránit lépcső - Várfalak - Zerge lépcső vonala)
75. TÖMB (Attila út - Mikó u. - Logodi u. - Zerge lépcső)
76. TÖMB (Attila út - Zerge Lépcső - Logodi u. – Alagút tengelye)
78. TÖMB (Alagút u. - Váralja u. - Sarló u. - Attila út)
a) Attila út 43. - Váralja u. 11. 7148 hrsz
1 emeletráépítés csak oly módon létesíthető, ha az az épület eredeti nagyságának és architektúrájának visszaállítását eredményezi
2 a szabályozási tervlapon szereplő bővítés csak az egész épületre egyidejűleg megengedett.
b) Váralja u. 9/a 7150/4 hrsz
az ingatlanon a magastetőssé alakítás, emeletráépítés nélkül is végrehajtható
80. TÖMB (Váralja u. - Dózsa Gy. tér - Attila út - Sarló u.)
Attila út 35. sz. 7143. hrsz.
a szabályozási tervlapon megengedett tetőszinti bővítés lapostetősen, maximum egy szintben az Attila köz felé eső már meglévő tetőszinti épületrész magasságáig emelkedhet, az Attila köz felé eső homlokzatsíkja a már megépült tetőszint függőleges síkja elé nem nyúlhat.
82. TÖMB (Dózsa György tér - Váralja u. - (6343/2) hrsz. közterület - Attila út)
Attila út 29. - Váralja u. 25. 6348/4 hrsz
a meglévő garázs bontása után új épület építhető a Váralja u. szintjéig. Az építmény felső födémét növényzettel telepítetten kell kialakítani, legalább 85 cm vastag talajréteg visszatöltésével. Az új beépítés többszintes is lehet.
83. TÖMB (Váralja u. - (6339/1) hrsz közterület - Attila út - (6343/2) hrsz közterület)
a) Attila út 17. - Váralja u. 41. 6339/2 hrsz
a homlokzat legkésőbb az épület felújításakor színezésében korrigálandó
b) Attila út 21. – Váralja u. 37. 6342 hrsz.
a tetőtér akár részleges beépítése esetén a tetőidom az eredeti terveknek megfelelően állítandó vissza
84. TÖMB (6339/1) hrsz közterület - Váralja u. - Szarvas tér - Attila út)
85. TÖMB (Attila út 6184 hrsz határa - Apród u. - Ybl Miklós tér - Döbrentei u.)
86. TÖMB (Várkert rkp. - Fátyol u. - Döbrentei u. - Fogas u.)
87. TÖMB (Várkert rkp. - Döbrentei tér - Döbrentei u. - Fátyol u.)
88. TÖMB (Döbrentei u. - Ybl Miklós tér - Várkert rkp. - Fogas u.)
a) Várkert rkp. 5 14386 hrsz
a jelenlegi felszín feletti beépítése nem növelhető, kivéve a belső udvaroknak a szabályzatban megengedett lefedésével.
90. TÖMB (Várkert rkp. – Ybl M. tér 14386 hrsz – Lánchíd u. - Északi Cortina fal 14373/2 hrsz - Várfalak - Sikló vonala - Clark Á. tér)
a) A Lánchíd u. menti épületek jelentősebb átépítése vagy akár részleges funkcióváltása esetén is az illetékes Építési Hatóság előírja a meglévő tetőfelépítmények korrekcióját az előnyösebb városképi megjelenés érdekében.
b) a tömbben a telkek engedményes értékkel növelhető megengedett beépítését az Öntőház utca megfelelő szintje által kijelölt síkon, illetve a fölött kell értelmezni. A fennmaradó 20 % felület min. 50 %-át növényzettel telepítve kell kialakítani.
c) Lánchíd u. 5. - Öntőház u. 2-4. 14374 hrsz
1 a tetőtérbeépítés tilos
2 az épület teljes bontással járó cseréje esetén az új épület előírt homlokzatmagassága az elbontottéval azonos legyen.
d) Lánchíd u. 7. - Öntőház u. 6. 14375 hrsz
az épület teljes bontással járó cseréje esetén az új épület homlokzatmagassága a Lánchíd u. 5.sz. épület homlokzatmagasságát nem haladhatja meg.
e) Lánchíd u. 9-11. - Öntőház u. 8. 14376 hrsz
1.[139]
2. az épület teljes bontással járó cseréje esetén az új épület homlokzatmagassága a Lánchíd a 13. sz. (14378 hrsz) épület homlokzatmagasságát nem haladhatja meg.
f) Lánchíd u. 13. - Öntőház u. 10. 14378 hrsz
épület teljes bontással járó cseréje esetén az új épület homlokzatmagassága az elbontott épület homlokzatmagasságát nem haladhatja meg.
g) Lánchíd 15-17. - Öntőház u. 12-14. 14380 hrsz
1 az épület teljes bontással járó cseréje esetén az új épület homlokzatmagassága a Lánchíd u. 13.sz. (14378 hrsz) épület homlokzatmagasságát nem haladhatja meg.
h) Lánchíd u. 19-21. - Öntőház u. 16. 14381 hrsz
az emeletráépítéssel növelt épülettömeg homlokzatmagassága a Lánchíd u. 23. sz. (14382 hrsz) meglévő épület homlokzatmagasságához igazodjék.
i) Lánchíd u. 23. - Öntőház u. 18. 14382 hrsz
1. a tetőtér további bővítése csak a jelenlegi tetőtér-felépítmények városképi szempontoknak megfelelő átalakításával engedélyezhető
2. az épület teljes bontással járó cseréje esetén az új épület homlokzatmagassága az elbontott épület homlokzatmagasságával azonos legyen.
93. TÖMB (Kuny D. u. - MÁV Déli pályaudvar - Kosciuszko T. u.)
a) A szabályozási terven megengedett új beépítés akár részleges megvalósítására is csak az előírt telekalakítások végrehajtásával egyidejűleg kerülhet sor.
1 az új beépítés további feltétele a telket határoló új közterület szabályozásának végrehajtása és annak legalább a gyalogosforgalom céljára történő kialakítása
2 Az új beépítés homlokzatmagassága sehol sem lépheti túl a Kuny D. u. 17. (7619/5 hrsz) meglévő épület homlokzatmagasságának abszolút magasságát (tengerszint feletti magasság)
3 a tömbben a szabályozási terven jelölt új beépítéshez önálló telek alakítható a használat és beépítés figyelembevételével.
94. TÖMB (Márvány u. - Győző u. - Kuny D. u. - Kosciuszko T. u.)
a) Azoknál a telkeknél, amelyeket a szabályozási terv szerinti közútkorrekció érint, az új beépítés feltétele az útterületek szabályozásának végrehajtása mellett, a közterület kialakítása és azon legalább a gyalogosforgalom céljára alkalmas burkolat megépítése. További feltétel, az újonnan beépíthető telkek közterületről történő megfelelő megközelíthetőségének biztosítása.
b) A telkek megengedett összevonása esetén az új épületek homlokzati és tömegtagolásával az eredeti telekosztásra utalni kell.
c) Győző u. 9. (7578 hrsz)
Győző u. 11. (7579 hrsz)
Márvány u. 7. (7577 hrsz) telkek, illetve
e telkekből kialakuló telkek beépítése során az új épület legnagyobb magassága (HM, GM) nem lépheti túl a Márvány u. 7.sz. (7577 hrsz) alatti telken meglévő épület megfelelő magassági értékeit. E telkek beépítése az engedményes értékkel növelhető.
d) Márvány u. 5. (7576 hrsz)
a telek beépítése során az új épület legnagyobb magassága (HM, GM) nem lépheti túl a Márvány u. 7.sz. (7577 hrsz) alatti telken meglévő épület megfelelő magassági értékeit.
e) Márvány u. 1.c. (7583/3 hrsz)
Az épület felújítása vagy a szabályzatban megengedett telekegyesítés, bővítés esetén a szabályozási terven jelölt melléképületet el kell bontani.
f) a tömbben megengedett beépítés utcai traktusának mélysége – ahol ez az építési hely határával a szabályozási terven nincs jelölve – 15 méternél, illetve a meglévő megmaradó beépítés vonalánál nagyobb nem lehet.[140]
g)[141] Márvány u. 3/a. (7575/1 hrsz.)
A szabályozási tervlapon jelölt emeletráépítésekkel a meglévő épülettömeg növelhető.
Amennyiben a meglévő épületet elbontják, az új beépítést 5 méteres előkerttel, az illeszkedési szabályok betartásával lehet megvalósítani.
95. TÖMB (Győző u. - Márvány u. - Kosciuszko T. u. - Pálya u.)
a) Márvány u. 18. (7571 hrsz)
Márvány u. 20. (Győző u. 7.) (7572 hrsz)
telkeken létesíthető új épületek legnagyobb homlokzat- és gerincmagassága sehol sem haladhatja meg a Pálya u. 17. (7551 hrsz) (Győző u. 5.) meglévő épület csatlakozó homlokzat- és gerincmagasságának abszolút magasságát (tengerszint feletti magasság)
b) Márvány u. 10. (7567 hrsz)
beépítése esetén a telken a szabályozási tervben meghatározott közcélú gyalogos átjárást biztosítani kell.
c) a tömbben megengedett beépítés utcai traktusának mélysége – ahol ez az építési hely határával a szabályozási terven nincs jelölve – 15 méternél, ill. a meglévő beépítés vonalánál nagyobb nem lehet.[142]
96. TÖMB (Mészáros u. - Győző u. - Pálya u.)
a) Pálya u. 2/a. (7545 hrsz)
az épület részleges funkcióváltása, felújítása vagy akár a tetőtér részleges beépítése esetén az épület eredeti tetőfelépítményeit vissza kell állítani.
b) Mészáros u. 13. (7546 hrsz) (Pálya u. 2.b.)
1. az épület teljes bontása esetén a meglévő épület kontúrjának (alaprajzi körvonalainak) megfelelő, legfeljebb F+3 szintes új épület létesíthető
2. az új épület legnagyobb homlokzatmagasságai legfeljebb a csatlakozó Mészáros u. 9-11. (Pálya u. 2/a) 7545 hrsz alatti épület homlokzatmagasságával azonosak lehetnek.
99. TÖMB (Krisztina krt. - Mikó u. - Pauler u. - Roham u.)
a) Krisztina tér 3. (7079 hrsz)
1. A meglévő épület Krisztina krt. 34. (7078/1 hrsz) felé csatlakozó (F+1 emeletes) részének megtartása esetén az épület kiegészítésére ezen épületrész homlokzat- és gerincmagasságával azonos méretekkel kerülhet sor (eredeti tömeg kiegészítése, helyreállítása). Ebben az esetben az udvari földszintes beépítés megtartható.
2. A meglévő épületrészek felhasználásával (részleges bontás) legfeljebb a csatlakozó Krisztina krt. 34. (7078/1 hrsz) eresz-, homlokzat- és gerincmagasságához illeszkedő méretű bővítés (emeletráépítés és/vagy tetőtérbeépítés) alakítható ki. Ebben az esetben az udvari földszintes beépítés megtartható.
3. A meglévő épület teljes bontása esetén az új beépítésnél a kedvezményes érték nem alkalmazható. Az új épület legnagyobb magassága sehol sem haladhatja meg a Krisztina krt. 34. (7078/1 hrsz) eresz-, homlokzat és gerincmagasságát. Ebben az esetben az udvari földszintes beépítést el kell bontani.
b) Roham u. 5. (7080 hrsz)
A szabályozási tervlapon megengedett szintszámok a Krisztina tér 3. sz. (7079 hrsz) épület teljes bontásával járó új beépítés esetén további egy emelettel növelhetők.
c) Pauler u. 12. (7082 hrsz)
telek beépítésénél az előírt illeszkedést a Pauler u. 10. (7078/2 hrsz) meglévő épület megfelelő méreteihez kell biztosítani.
100. TÖMB (Roham u. - Pauler u. - Mikó u. - Attila út)
Roham u. 3. (7092 hrsz)
A telken létesíthető új épület legnagyobb homlokzatmagassága – az épület teljes homlokzatán - nem haladhatja meg a Pauler u. 7. (7165 hrsz) épület homlokzatmagasságának értékét.
101. TÖMB (Pauler u. - Roham u. - Attila út - Alagút u.)
Alagút u. 3. (7169 hrsz)
Az épület funkcióváltása (lakás-funkció megszűnése) esetén annak felső 8 szintje visszabontandó.
102. TÖMB (Alagút u. - Krisztina krt. - Roham u. - Pauler u.)
103. TÖMB (Krisztina krt. - Orvos lépcső - Gellérthegy u. - Krisztina tér)
a) A tömb Vár felől látható épületein végzendő tetőtérbeépítés esetén annak megfelelő városképi kialakítását utcaképpel, illetve látványtervvel (fotómontázzsal) kell igazolni.
b) Krisztina krt. 65-67. (Gellérthegy u. 2-4.) 7221 hrsz
a telek jelenlegi beépítettsége még a bontással járó új beépítés esetén sem növelhető.
c) Gellérthegy u. 8. sz. 7219/1. hrsz. új beépítés magassági méretei a Gellérthegy u. 10. sz. 7218. hrsz. épület Gellérthegy utca felé eső megfelelő magassági értékeihez kell, hogy igazodjanak, azokat nem léphetik túl.[143]
104. TÖMB (Gellérthegy u. - Orvos lépcső - Naphegy u. - Krisztina tér)
a)[144]
b) Gellérthegy u. 33-35. (Naphegy u. 40-42) 7246/2 hrsz
a telek jelenlegi beépítettsége nem növelhető még a bontással járó új beépítés esetén sem
c) Gellérthegy u. 1. sz. (Naphegy u. 6. sz.) 7226. hrsz., Naphegy utca menti szárnyára (tömbjére) megengedett magastető tömege csak az eredeti tervekkel igazolt tető-tömeg lehet. Megépítésével, illetve beépítésével az eredeti homlokzati architectura karaktere visszaállítandó.[145]
105. TÖMB (Lisznyai u. - Naphegy u. - Orvos lépcső)
117. TOMB (Mészáros utca - Naphegy utca - Tigris utca - Ág utca)
a) A tömb L1-V1-Z övezetben fekvő telkeinél a megengedett beépítés utcai traktusának mélysége max. 18,0 méter lehet. Az így létesíthető bővítmény homlokzatmagassága nem nyúlhat az utcai homlokzatmagasság által meghatározott sík fölé.
b) A tömbben megengedett új beépítés, épületbővítés vagy az épület teljes funkcióváltása esetén a tömbbelső gépjárművel történő megközelítését (a telek területre történő beállást) biztosítani kell.
118. TÖMB (Mészáros utca - Ág utca - Tigris utca - Róka utca)
a) A tömb L1-V1-Z övezetben fekvő telkeinél a beépítés utcai traktusának mélysége max. 16,0 méter lehet. E mértéken túl csak a szabályozási tervben meghatározott módon építhető oldalszárny nyúlhat. Az így létesíthető bővítmény homlokzatmagassága nem nyúlhat az utcai homlokzatmagasság által meghatározott sík fölé.
b) A tömbben megengedett új beépítés, épületbővítés vagy az épület teljes funkcióváltása esetén a tömbbelső gépjárművel történő megközelítését (a telek területre történő beállást) biztosítani kell.
c) A Mészáros u. 16. sz. 7524/2 hrsz. telket érintő megengedett telekalakítás csak a Tigris u. 9-11. sz. 7522/2 hrsz. telekkel történő telekegyesítéssel együtt hajtható végre.
145. TÖMB (Attila út - Döbrentei u. - Döbrentei tér - Erzsébet híd hídfő - Krisztina krt. - (6310/5) hrsz déli oldala)
a) Attila út 2-4. 6313 hrsz
az épület tovább nem bővíthető
L1- V2-Z jelű övezet
47.§
(1) L1- V2-Z jelű övezetek területén az építmények kialakítására vonatkozóan a KVÉSZ előírásait az alábbi kiegészítésekkel és eltérésekkel kell alkalmazni.
19. TÖMB (Toldy F. u. - Toldy lépcső - Donáti u.)
a) a tömbben részben épülettel, részben támfallal és mellvédekkel a középkori eredetű térfalakat vissza kell állítani,
b) lapostetőt építeni, még magastető kiegészítéseként sem lehet,
c) Toldy F. u. 1.c. 14166/4 hrsz.
HM nem növelhető, magastetőssé alakításnál GM= HM+4,5 m
d) Toldy F. u. 1.b. 14166/3 hrsz
HM nem növelhető, magastetőssé alakításnál GM= HM+4,5 m
e) Donáti u. 14. 14165/2 hrsz
1 A szabályozási tervlapon jelölt telek kialakítása után beépíthető.
2 HM és G megegyezik a Donáti u. 17-19. sz. 14249/2 hrsz. jelenlegi megfelelő méreteivel
f) Donáti u. 16. 14165/1 hrsz.
tetőtérbeépítés tilos
74. TÖMB (Logodi u. - Tábor u. - Zerge lépcső)
a) Logodi u. 11-13. (Tábor u. 2-4) 7121 hrsz
1 a telek szabályozási tervlap szerinti megosztását követően a Logodi u. mentén kialakuló új telek övezeti besorolása L1-KP-1.
2 ennek teteje nem építhető be, azt zölddel fedetten kell kialakítani
77. TÖMB (Logodi u. - Zerge lépcső - Palota úton át - Várfalak - Alagút tengelye)
a)[146]
b) Logodi u. 5-7. (Tábor u. 22-24.) 7127 hrsz.
beépítése tekintetében csak az L1-V2-Z övezetben fekvő terület vehető figyelembe.
106. TÖMB (Naphegy u. - Fém u. - Lisznyai u. - Orvos lépcső)
A tömb Vár felől látható épületein végzendő tetőtérbeépítés esetén annak megfelelő városképi kialakítását utcaképpel, illetve látványtervvel (fotómontázzsal) kell igazolni.
119. TÖMB (Mészáros utca - Róka utca - Tigris utca - Nyárs utca)
a) A tömb L1-V2 Z övezetben fekvő telkeinél a beépítés utcai traktusának mélysége max. 15,0 méter lehet. E mértéken túl csak az utcával párhuzamos hátsó homlokzat 1/3 szélességénél nem nagyobb, max. 4,0 méter mélységű keresztszárny nyúlhat. A létesíthető bővítmény homlokzatmagassága nem nyúlhat az utcai homlokzatmagasság által meghatározott sík fölé.
b) A tömbben megengedett új beépítés, épületbővítés vagy az épület teljes funkcióváltása esetén a tömbbelső gépjárművel történő megközelítését (a telek területre történő beállást) biztosítani kell.
c) A Mészáros u. 30. 7512 hrsz. telken teljes bontással járó építés esetén az eredeti párkány és gerincmagasság értékeit kell tartani.
d) A Mészáros u. 26. 7514/1 hrsz. telken álló épület megengedett emeletráépítése esetén a Mészáros u. 28. 7513/2 hrsz. épület jelenlegi párkány- és gerincmagassága a mértékadó.
120. TÖMB (Mészáros utca - Nyárs utca - Tigris utca - Tibor utca)
a) A tömb L1-V2-Z övezetben fekvő telkeinél a beépítés utcai traktusának mélysége max. 15,0 méter lehet. E mértéken túl csak az utcával párhuzamos hátsó homlokzat 1/3 szélességénél nem nagyobb, max. 4,0 m mélységű keresztszárny nyúlhat. Az így létesíthető bővítmény homlokzatmagassága nem nyúlhat az utcai homlokzatmagasság által meghatározott sík fölé.
b) A tömbben megengedett új beépítés, épületbővítés vagy az épület teljes funkcióváltása esetén a tömbbelső gépjárművel történő megközelítését (a telek területre történő beállást) biztosítani kell.
c) A Mészáros u. 46. 7497/2 hrsz.
1. a telek beépítése az engedményes értékkel nem növelhető.
2. a Mészáros utca felé eső épülettömeg homlokzatmagassága nem lehet magasabb a Mészáros utcai járdaszinthez viszonyított 12,50 méternél, a középső csatlakozó tömeg maximális homlokzatmagassága ugyanehhez a szinthez képest 14,50 méter lehet.
3. A Tigris u. 33. 7497/1 hrsz. telek felé eső telekhatár a szabályozási tervlap szerint a jelenlegi ingatlanhatár egyidejű megszüntetésével módosítható.
d) A Mészáros u. 38. 7503/2 hrsz. és a Mészáros u. 36. 7504 hrsz. telkeken álló épületek tetőtere csak a meglévő párkány- és gerincmagasság és tetőhajlásszög megnövelése nélkül építhető be.
121. TÖMB (Mészáros utca - Tibor utca - Tigris utca - Derék utca - Zsolt u.)
a) A tömb L1-V2 Z övezetben fekvő telkein a beépítés csak a szabályozási tervlapon jelölt helyen és nagyságban növelhető.
b) A tömb L1-V2 Z övezetben fekvő telkein megengedett új beépítés, épületbővítés vagy az épület teljes funkcióváltása esetén a tömbbelső gépjárművel történő megközelítését (a telek területre történő beállást) biztosítani kell.
c) Zsolt u. 7. 7480 hrsz *
d) A Zsolt u. 9. sz. 7489 hrsz. és a Tigris u. 47. sz. 7484 hrsz. telkeket érintő telekalakítás csak a kialakuló terület Tigris u. 45. 7485/1 hrsz. telekkel történő egyesítéssel egyidejűleg hajtható végre. Ez esetben a Tigris u. 45. sz. 7485/1 hrsz telek teljes (megnövelt) területének övezeti besorolása L3-K4-SZ.
122. TÖMB (Mészáros u - 7619/3 MÁV terület - Zsolt u. - Aladár u)
a) A meglévő üzemanyagtöltő-állomáshoz önálló telek alakítható ki. a jelenlegi üzemanyagtöltő és mosóállomás méretei (szintterület, szintszám) nem növelhető. A meglévő felépítmények funkcióváltása, illetve e területen más, az üzemanyagtöltő-állomáshoz nem tartozó funkció elhelyezése nem megengedett. A jelenlegi funkció tartós (hat hónapnál hosszabb) szüneteltetése vagy végleges megszüntetése esetén a meglévő építményeket el kell bontani.
b) A Mészáros u. 58., Zsolt u. 4-8., 7432 hrsz. telek, illetve az ennek megfelelő terület maximális beépíthetősége az építési hellyel meghatározott. Az így meghatározott 50%-os érték betartandó a telek megosztását követő beépítésnél is.
1. A megengedett épülettömb-szélesség sehol sem haladhatja meg a meglévő Zsolt utca menti ipari csarnok szélességi értékét, a 20,0 métert.
2. A megengedett beépítés legnagyobb homlokzatmagasságának értéke sehol sem haladhatja meg:
- a terület Zsolt utcai határán a csatlakozó járdaszinttel párhuzamosan mért 14,5 m-es magasságot,
- az Aladár utcai oldalon, a Mészáros utcai saroktól - a Csap utca páratlan oldal határvonalának meghosszabbításából adódó töréspontig - az Aladár utca 21., 4731/3 hrsz. ingatlan sarkán a járdaszinttől mért 18,5 métert és a beépítés töréspontjára állított, a járdaszinttől mért 16,5 méter magasságokat összekötő egyenes által kijelölt értékeket,
- az Aladár utcai 7425 hrsz. játszótér felé a beépítés töréspontja és a Zsolt utcai sarokpont megengedett magasságát összekötő egyenes által kijelölt értéket,
- az Aladár utca menti beépítés töréspontjánál a szabályozási tervlapon jelölt helyen a megengedett homlokzatmagasság értéke legfeljebb 3,0 méterrel túlléphető,
- a Mészáros utcai oldalon a Mészáros utca 60/a számú, 7431/5 hrsz. sarokpontjától a csatlakozó járdaszinttel párhuzamosan mért 18,0 illetve 16,0 méteres magasságot,
- a benzinkút 7541 hrsz. közterület felé eső oldalon a Mészáros utcai és Zsolt utcai megengedett magasságokat összekötő egyenes által kijelölt értéket.
- A Mészáros utca mentén megengedett magassági értékek által meghatározott sík fölé a tömbbelsőben sem emelkedhet az épületek (épületrészek) homlokzata.
3. A beépítés Zsolt és Aladár utcai térfalait, homlokzati megjelenését a szemben lévő beépítés tagoltságának (épület, telek) megfelelően tagolni kell, a Mészáros utcai térfalat a már kialakult tagoltságnak megfelelően kell kialakítani.
4. A telek felosztása az azon létesíthető épületek egységeihez az övezeti előírások betartása mellett megengedett.
5. A terület akár részleges felhasználására, illetve beépítésére csak a telken meglévő összes felépítmény bontásával egyidejűleg kerülhet sor. Amennyiben a csarnoképületek állékonysága megfelelő, e két épület bontása nem kötelező.
6. A beépítéshez előírt parkolóhelyeket területen belül, terepszint alatt kell biztosítani.
c) A tömb Mészáros utcai beépítésének első szintjén (fölszint, magasföldszint, félemelet) lakások nem helyezhetők el.
126. TÖMB (Hegyalja út - Csap utca - Aladár utca)
a) [147]A tömb területén
1. a beépítés csak a szabályozási tervlapon jelölt helyen és nagyságban növelhető.
2. az épületek zárt sora minimum 10,0 m-es épületközzel megszakítható; ha az épületköz területe két telekre esik, minimum 3,0 m széles résznek egy telekre kell esnie.
b) [148]A 7403 hrsz.-ú telek beéptésénél a KVÉSZ 30.§ (10) b) és d) pontjai szerinti városképi illeszkedési szabályokat kell figyelembe venni, ennek megfelelően a szabályozási terven jelölt építési helyen legfeljebb F+4 szintes, nem magastetős épületrész építhető, a 7402 hrsz. közös telekhatárán létesítendő zártsorú csatlakozás kivételével.
c) Aladár u. 4/a. 7396/1 hrsz. *
d) Aladár u. 12.sz. 7405 hrsz.
Aladár u. 14.sz. 7406 hrsz.
Csap u. 4. sz. 7409 hrsz.
A beépíthetőség az általános előírások betartása mellett csak a meglévő tetőtér egyszintű beépítésével, újraépítésével növelhető – az épület egyidejű felújítása mellett.[149]
127. TÖMB Csap u. 5. sz. 7418 hrsz.
A beépíthetőség az általános előírások betartása mellett csak a meglévő tetőtér egyszintű beépítésével, újraépítésével növelhető – az épület egyidejű felújítása mellett.[150]
L1-V3-SZ jelű övezet
48.§
(1) L1-V3-SZ jelű övezetek területén az építmények kialakítására vonatkozóan a KVÉSZ előírásait az alábbi kiegészítésekkel lés eltérésekkel kell alkalmazni.
39. TÖMB (Batthyány u. - Iskola u. - Franklin u. - Donáti u. - Mária tér)
58. TÖMB Ostrom u. – (13998) közterület – Fiáth J. u.)
107. TÖMB (Naphegy u. - Czakó u. - Lisznyai u. - Fém u.)
Fém u. 2/b. (Lisznyai u. 38.) 7287 hrsz
A terepszint alatti beépítésnél annak felső födémét (a rendezett terepszint) növényzettel fedetten tetőkertként kell kialakítani. Amennyiben a terepszint alatti beépítés felső födémének (rendezett terepszint) több mint 50 %-a beépített területként vagy burkolt felületként kerül kialakításra, a hátsó- és az oldalsó telekhatárok mentén egy legalább 6,00 m széles, fák telepítésére alkalmas, a terepszint alatt sem beépíthető sávot szabadon kell hagyni.
Városias lakóterület
L2 jelű övezetek
50.§
(1) Az övezetek területén a telkekre és az építményekre vonatkozó jellemzőket a 5. számú táblázat tartalmazza.
5. számú táblázat
Övezet jel | Beépítettség | Szintterületi határérték(1) | Legkisebb zöldfelület | Megengedett legnagyobb magasság | ||||
terepszint | enged-mény | határérték | enged-mény | építmény-magasság | homlokzat-magasság | |||
alatt | felett | |||||||
L2-V1-Z | 100 | 70 | 5 | 3,5 | +0,3 | 20 | kialakult | kialakult |
L2-V2-Z | 100 | 60 | 5 | 2,25 | +0,25 | 20 | kialakult | kialakult |
L2-V3-SZ | 65 | 35 | 5 | 1 | +0,15 | 35 | meghat. (2) | 9,5 |
L2-KP-1 | 75 | 2 | - | - | - | 75 | 3,5 | 3,5 |
RSZT esetén szintterületsűrűség
közterület felöli homlokzatmagasság által meghatározott
(2) Az övezetek területén – az L2-KP-1 övezet kivételével - az alábbi építmények helyezhetők el az övezeti- és az építmények elhelyezésére és kialakítására vonatkozó előírások és a KÉSZ előírásainak keretei között:
a) lakóépület,
b) szálláshely-szolgáltató épület,
c) közintézmény épület,
d) irodaház,
e) legfeljebb 2.500 m2 bruttó szintterületű kiskereskedelmi épület,
f) sportépítmény,
g) terepszint alatti parkolóépítmény.
(3) Az övezetek területén ipari épületet, önálló raktárépületet, nagykereskedelmi épületet elhelyezni, meglévő épület használati módját e célra megváltoztatni nem lehet.
(4) A pince-, földszint és első emeleti szinten elhelyezhető kereskedelmi funkciók bruttó össz- szintterülete a telkenkénti 1500 m2-t nem haladhatja meg.
(5)[152] A szabadonálló beépítésű telkek minden 100 m2-e után legalább egy fa telepítéséről és fenntartásáról kell gondoskodni. Amennyiben a telek adottságai, vagy más ok miatt az előírt számú fa kihelyezése a telken belül nem biztosítható, lehetőleg az érintett ingatlan környezetében kell a pótlást telepíteni.
L2- V1-Z jelű övezet
51.§
(1) L2-V1-Z jelű övezetek területén az építmények kialakítására vonatkozóan a KVSZ előírásait az alábbi kiegészítésekkel és eltérésekkel kell alkalmazni.
7. TÖMB (Hunyadi J. u. - Hunyadi L. lépcső - Király lépcső - Várfalak - Magas u. - Szalag lépcső)
8. TÖMB (Hunyadi J. u. - Szalag lépcső - Magas u. - Hunyadi J. u. - Várfalak - Jezsuita lépcső)
a) Csónak u. 7. 14349 hrsz.
tetőtérbeépítés tilos
b) Szalag lépcső 4. (Magas u. 5.) 14345 hrsz.
a tervlapon szereplő épületrész egy szinttel bontandó, tetőtérbeépítése tilos.
9. TÖMB (Szalag u. - Hunyadi János út - Donáti u. - Ponty u.)
a) Hunyadi J. u. 19. 14232 hrsz.
tetőtérbeépítés tilos
b) Ponty u. 14. 14237 hrsz.
tetőtérbeépítés tilos
c) Ponty u. 16. 14238/2 hrsz.
tetőtérbeépítés tilos
10. TÖMB (Pala u. - Hunyadi János út - Szalag u. - Szőnyeg u.)
68. TÖMB (Logodi u. - Jávorka lépcső vonala - Várfalak - Korlát lépcső vonala)
Logodi u. 55. (Lovas út 22.) 6734 hrsz
Logodi u. 53. 6735/1 hrsz
A telkek szabályozási terven jelölt megosztását és egyesítését követő beépítése esetén a HM azonos a Logodi u. 57. sz. 6733/2 hrsz meglévő épület 3. emelet feletti terasz párkányának magasságával.
A TÖMB L2-V1-Z jelű övezetében a beépítés kedvezményes értékei alkalmazhatók.[153]
L2- V2-Z jelű övezet
52.§
(1) L2-V2-Z jelű övezetek területén az építmények kialakítására vonatkozóan a KVÉSZ előírásait az alábbi kiegészítésekkel és eltérésekkel kell alkalmazni.
41. TÖMB (Toldy F. u. - Kagyló lépcső - Donáti u. - Franklin u.)
a) Toldy F. u. 25. sz. 14096/2 hrsz
telken a terület rendezése illetve beépítése után zöldterület alakítandó ki.
b) Toldy F. u. 19/a 14093/1 hrsz
Toldy F. u. 19/b 14093/2 hrsz
telkeken legalább 5 m széles, a Toldy F. utcával szintbe hozott zöld növényzettel betelepített előkert alakítandó ki. A szabályozási tervlapon meghatározott magassági értékek (szintszám) e síktól értelmezendők. A magastetős beépítésnek takarnia kell a Donáti u. 42. épület erre nézve takaratlan tűzfalát Gmin -0,8 m. A telkek egyesíthetők. Ez esetben az új épület tömegalakításával az eredeti telekfelosztást jelezni kell.
42. TÖMB (Toldy F. u. - Franklin u. - Szabó I. u. - Kagyló lépcső)
a) Toldy F. u. 32-36. 14083/2 hrsz
1 a telek megosztása esetén az új épület tömegformálásával jelezni kell eredeti telekosztást
3[155] Toldy F. u. 32-36. sz. 14083/2 Hrsz.
A homlokzat magassága a földszint + 3 szintet, a maximum 13,5 m értéket nem haladhatja meg, kivéve a Toldy F. u. mentén a telek északi sarkától számított 25 méteren belüli 8 méteres hosszban, ahol a magasságnövekedés 3,5 m lehet.
46. TÖMB (Toldy F. u. - Kagyló lépcső - Szabó I. u. - Jácint lépcső)
47. TÖMB (Toldy F. u. - Jácint lépcső - Szabó I. u. - Linzi lépcső)
48. TÖMB (Batthyány u. - Kagyló lépcső - Toldy F. u. - Jácint lépcső)
Toldy F. u. 31. (Batthyány u. 14.) 14019 hrsz
Toldy F. u. 33. (Batthyány u. 16.) 14018 hrsz
Toldy F. u. 35. (Batthyány u. 18.) 14017 hrsz.
telkek Toldy F. u. menti telekhatárán előírt áttört kerítés mögött legalább 1,2 m magas zöldsövény létesítendő.
49. TÖMB (Toldy F. u. - Linzi lépcső - Mária tér - Batthyány u. - Jácint lépcső)
Toldy F. u. 39. 14014 hrsz
telek Toldy F. utcai határán előírt áttört kerítés mögött legalább 1,2 m magas zöld sövény létesítendő.
55. TÖMB (Toldy F. u. – Fiáth J. u. – Batthyány u. – Linzi lépcső)
A Batthyány u. felöli telekhatáron előírt áttört kerítések mögött legalább 1,2 m magas zöld sövény létesítendő.
56. TÖMB Fiáth u. – Toldy F. u. – Linzi lépcső – Szabó I. u.)
Toldy F. u. 80. 14042 hrsz
Az építés illetve bővítés feltétele előzetes műemléki és régészeti vizsgálat alapján kialakított szakhatósági egyetértés is.[156]
- [157]
L2- V3-SZ jelű övezet
53.§
(1) L2-V3-SZ jelű övezetek területén az építmények kialakítására vonatkozóan a KVÉSZ előírásait az alábbi kiegészítésekkel és eltérésekkel kell alkalmazni.
(2)[158] A telkek minden 100 m2-e után legalább egy fa telepítéséről és fenntartásáról kell gondoskodni. Amennyiben a telek adottságai, vagy más ok miatt az előírt számú fa kihelyezése a telken belül nem biztosítható, lehetőleg az érintett ingatlan környezetében kell a pótlást telepíteni.
7. TÖMB (Hunyadi J. u. - Hunyadi L. lépcső - Király lépcső - Várfalak - Magas u. - Szalag lépcső)
a) A Csónak u. 1.sz. 14357. hrsz. és
1 A telek be nem épített részeit kertészeti tervek alapján zöldterületként kell kialakítani és fenntartani.
2[159] A telken megengedett új épület elhelyezésének és tömegének azonosnak kell lennie az Ybl Miklós által eredetileg ide tervezett épületével. Az így kialakított épület esetében a meglévő épületre vonatkozó előírásokat kell alkalmazni és az övezetben előírt legnagyobb magasság az eredeti épületnek megfelelő mértékig túlléphető. Az új épület architektúrájának az Ybl-féle stíluselemek felhasználásával az eredeti homlokzati képhez kell igazodnia.
2.1. A bruttó szintterület értékének meghatározása során az övezetben megengedett engedményes érték alkalmazható.
2.2. Amennyiben a terepszint (a támfalak, várfalak felső rendezett terepszintje) alatt régészeti-, építészeti- vagy egyéb történeti érték bemutatása indokolt:
- a bruttó szintterület engedményes értéke, kizárólag a terepszint alatt legfeljebb további 0,35 m2/m2 értékkel túlléphető, de a terepszint felett a szintterületi mutató így sem haladhatja meg a 0,60 m2/m2, a teljes bruttó szintterületi mutató az 1,50 m2/m2 értéket,
- a legkisebb zöldfelület mértéke legfeljebb 20%-ig csökkenthető.
30. TÖMB (Szabó I. u. - Hunyadi J. u. - Schulek lépcső - Várfalak - Ilona lépcső)
a) Szabó Ilonka u. 2-4. 14206 hrsz
1. A terepszint alatti beépítéshez a kedvezményes szintterületi érték alkalmazható.
2. A gimnáziumi épület bővítése és korrekciója az eredeti tervek figyelembevételével, de azt el nem érő mértékben történhet. A korrigált tető illetve a ráépítéssel érintett rész tetőzete nem építhető be.
43. TÖMB (Hunfalvy u. - Kagyló lépcső - Szabó I. u. - Ilona lépcső)
a) Szabó I. u. 6. 14066 hrsz
Szabó I. u. 8. 14067 hrsz
Szabó I. u. 10-12. 14068 hrsz
Szabó I. u. 14. 14069 hrsz
épületek funkcióváltása vagy felújítása esetén a támfal-rekonstrukciót is végre kell hajtani.
44. TÖMB (Hunfalvy u. - Ilona lépcső - Várfalak - 6563 hrsz közterület)
a) Hunfalvy u. 4. 14064 hrsz
Hunfalvy u. 6/a 14063 hrsz
Hunfalvy u. 6/b 14062 hrsz
Hunfalvy u. 8. 14061 hrsz
telkeknél a Várfal körüljárására a védőművek mentén min. 3 m széles közterületi sávot vagy ingatlan-nyilvántartásba bejegyezhető közcélú átjárási szolgalmat kell biztosítani a szabályozási tervlapon jelölt módon.
45. TÖMB (Linzi lépcső - Szabó I. u. - Kagyló lépcső - Hunfalvy u.)
57. TÖMB (Fiáth J. u. - Szabó I. u. - Linzi lépcső - Ostrom u.)
63. TÖMB (Ostrom u. - (6563) hrsz. közterület - Várfalak - Körmöci lépcső - Logodi u. - Mátrai u. - Várfok u.)
a.) Mátrai u. 12/a. 6708/2 hrsz.
Mátrai u. 12/b. 6708/3 hrsz. megengedett beépítés magassági értékeinek a
Mátrai u. 10/a 6707/5 hrsz. meglévő épület utcaszinttől mért HM és GM
magassági értékeihez kell igazodnia.[160]
b.)[161]
c.) Lovas út 37. 6703/2 hrsz
a telken álló épület csak az eredeti tervek szerint az eredeti nagyságra bővíthető (+1 em.)
d.) A tömbben tört-síkú, illetve íves felületű ún. mansard tető csak meglévő épület eredeti tetőidomának visszaépítéseként létesíthető.
67. TÖMB (Logodi u. - Körmöci lépcső - Várfalak - Jávorka lépcső vonala)
a) Lovas út 30. és 31/a 6726 és 6725/2 hrsz
a telkek Logodi utcai oldalán megengedett terepszint alatti beépítéshez önálló telek alakítható. Ennek övezeti besorolása L2-KP-1.
b) Lovas út 31/a 6725/2 hrsz.
Lovas út 26-27. 6724/1 hrsz.
telkek területén a létesíthető magastető semmilyen része nem nyúlhat túl, sem a Tóth Árpád sétány e szakaszán lévő járdaszint magasságán, sem a Lovas út érintett ingatlanok előtti szakaszának járdaszintjéhez viszonyított 9 méteres síkkal meghatározott magasságon.
c) A tömbben ún. mansard tető, tört-síkú, illetve íves felületű csak meglévő épület eredeti tetőidomának visszaépítéseként létesíthető.
d) A Lovas út menti meglévő magastetős épületeknél az egyébként megengedhető tetőidom-növelés, valamint homlokzat-magasítás a vári kilátás, illetve rálátás védelme érdekében korlátozható, illetve megtiltható
68. TÖMB (Logodi u. - Jávorka lépcső vonala - Várfalak - Korlát u. vonala)
a) A telkek új beépítésnél az oldalsó és hátsó homlokzatok sem emelkedhetnek túl a Lovas út mentén megengedett közterület felöli magasságnál
b) Lovas út 26-27. 6727/4 hrsz
Lovas út 24-25. 6729 hrsz.
Lovas út 22. 6734 hrsz
Lovas út 21. 6735 hrsz
Lovas út 19-20. 6736 hrsz
telkek területén a létesíthető magastető semmilyen része nem nyúlhat túl, sem a Tóth Árpád sétány e szakaszán lévő járdaszint magasságán, sem a Lovas út érintett ingatlanok előtti szakaszának járdaszintjéhez viszonyított 9 méteres síkkal meghatározott magasságon.
c) A tömbben ún. mansard tető, tört-síkú, illetve íves felületű csak meglévő épület eredeti tetőidomának visszaépítéseként létesíthető.
d) A Lovas út menti meglévő magastetős épületeknél az egyébként megengedhető tetőidom-növelés, valamint homlokzat-magasítás a vári kilátás, illetve rálátás védelme érdekében korlátozható, illetve megtiltható.
69. TÖMB (Logodi u. - Korlát lépcső vonala - Várfalak - Bugát lépcső vonala)
a)[162] Logodi u. 37. (Lovas út 11-12.) 6746/1 hrsz a telken:
1. a beépítésnél az övezet engedményes értékei alkalmazhatók;
2. a Lovas út mentén megengedett új beépítés homlokzatmagassága (HM) alkalmazkodjék a Lovas út 13. sz. 6745 hrsz, a gerincmagasság (G) értéke alkalmazkodjék a Lovas út 10. sz. 6748 hrsz meglévő épületek megfelelő méreteihez;
3. az új beépítésnél az oldalsó és hátsó homlokzatok sem emelkedhetnek túl a Lovas út mentén megengedett közterület felöli HM-nál.
c) Lovas út 18. 6739 hrsz
alatti épület teljes felújítása vagy funkcióváltása esetén a Lovas út felé eső lapostetős részen a tetőfelépítmények megszüntetendők.
d) Lovas út 10. 6748 hrsz
Lovas út 11-12. 6746 hrsz.
Lovas út 13. 6746 hrsz
Lovas út 15. 6743 hrsz.
Lovas út 17. 6740/1 hrsz
telkek területén a létesíthető magastető semmilyen része nem nyúlhat túl, sem a Tóth Árpád sétány e szakaszán lévő járdaszint magasságán, sem a Lovas út érintett ingatlanok előtti szakaszának járdaszintjéhez viszonyított 9 méteres síkkal meghatározott magasságon.
e)[163] Lovas út 15. 6743 hrsz.
épület magastetőssé alakításánál – a várfalak közelsége miatt – a tetőidom magasságot a megengedett érték csökkentésével, a városképi szempontok, kilátás- és rálátás védelem figyelembe vételével kell kialakítani.
f) A tömbben ún. mansard tető, tört-síkú, illetve íves felületű csak meglévő épület eredeti tetőidomának visszaépítéseként létesíthető.
g) A Lovas út menti meglévő magastetős épületeknél az egyébként megengedhető tetőidom-növelés, valamint homlokzat-magasítás a vári kilátás, illetve rálátás védelme érdekében korlátozható, illetve megtiltható.
h) [164]Lovas út 11-12. sz. 6746 hrsz. Lovas út felé eső építési vonalának legalább a teljes épülethossz kétharmadáig az utcai telekhatáron kell állnia.
72. TÖMB (Logodi u. - Bugát lépcső vonala - Várfalak – Gránit lépcső)
a) Lovas út 5. 6756/2 hrsz
1. a telek szabályozási tervlapon jelölt megosztása után kialakuló telkek. beépíthetőségénél a kedvezményes érték alkalmazható.
2. a telken meglévő beépítés elbontandó,
3. a megengedett beépítések homlokzatmagassága a Lovas út 4. sz. 6757 hrsz meglévő épület utcai homlokzatmagassághoz igazodjék
4. a Lovas út szintje fölé a lejtő irányában csak 12 m mély épületrész emelkedhet
5. új beépítésnél az oldalsó- és hátsó homlokzatok sem emelkedhetnek túl a Lovas út mentén megengedett közterület felöli magasságnál
6.[165] Amennyiben a telek egy épülettel épül be, úgy annak az utcai telekhatárral párhuzamos vetülete a 18 métert, amennyiben 2 épülettel épül be, úgy a legalább 10m-es térközzel kialakuló 14-14 méteres hosszat nem haladhatja meg.
b) Lovas út 6/a 6755/3 hrsz
1. a homlokzatmagasság a Lovas út 4. sz. 6757 hrsz meglévő épület utcai homlokzatmagassághoz igazodjék.
2. az új beépítésnél az oldalsó és hátsó homlokzatok sem emelkedhetnek túl a Lovas út mentén megengedett közterület felöli magasságnál
3. a Lovas út szintje fölé a lejtő irányában csak 12 m mély épületrész emelkedhet
c) Lovas út 7. 6754 hrsz
Lovas út 6/B. 6755/2 hrsz
Lovas út 6/A. 6755/3 hrsz.
Lovas út 5. 6756/2 hrsz.
Lovas út 4. 6757 hrsz
telkek területén a létesíthető magastető semmilyen része nem nyúlhat túl, sem a Tóth Árpád sétány e szakaszán lévő járdaszint magasságán, sem a Lovas út érintett ingatlanok előtti szakaszának járdaszintjéhez viszonyított 9 méteres magasságon.
d)[166] Lovas út 6/B 6755/2 hrsz.
épület magastetőssé alakításánál – a várfalak közelsége miatt – a tetőidom magasságot akár a szabályzatban megengedett érték csökkentésével, a városképi szempontok, kilátás- és rálátás védelem figyelembe vételével kell kialakítani.
e) A tömbben ún. mansard tető, tört-síkú, illetve íves felületű csak meglévő épület eredeti tetőidomának visszaépítéseként létesíthető.
f) A Lovas út menti meglévő magastetős épületeknél az egyébként megengedhető tetőidom-növelés, valamint homlokzat-magasítás a vári kilátás, illetve rálátás védelme érdekében korlátozható, illetve megtiltható.
73. TÖMB (Tábor u. - Gránit lépcső – Várfalak – Zerge lépcső vonala)
A tömbben ún. mansard tető, tört-síkú, illetve íves felületű csak meglévő épület eredeti tetőidomának visszaépítéseként létesíthető.
a) Lovas út menti meglévő magastetős épületeknél az egyébként megengedhető tetőidom-növelés, valamint homlokzat-magasítás a vári kilátás, illetve rálátás védelme érdekében korlátozható, illetve megtiltható
L2-KP-1 JELŰ ÖVEZETEK
54.§
1 Az övezet területén a BVKSZ Z-KP KP keretövezetében meghatározott funkciók helyezhetők el.
2[167] A telkek minden 100 m2-e után legalább egy fa telepítéséről és fenntartásáról kell gondoskodni. Amennyiben a telek adottságai, vagy más ok miatt az előírt számú fa kihelyezése a telken belül nem biztosítható, lehetőleg az érintett ingatlan környezetében kell a pótlást telepíteni.
45. TÖMB (Linzi lépcső – Szabó I. u. – Kagyló lépcső – Hunfalvy u.) 55.
55. TÖMB (Toldy F. u. – Fiáth J. u. – Batthyány u. – Linzi lépcső)
69. TÖMB (Logodi u. – Körmöci lépcső – Várfalak – Jávorka lépcső)
Kisvárosias lakóterület I.
L2A jelű övezetek
55.§
(1) Az övezetek területén a telkekre és az építményekre vonatkozó jellemzőket a 6. számú táblázat tartalmazza.
6. számú táblázat
Övezet jel | Beépítettség | Szintterületi határérték(1) | Legkisebb zöldfelület | Megengedett legnagyobb magasság | ||||
terepszint | enged-mény | határ-érték | enged-mény | építmény-magasság | homlokzat-magasság | |||
alatt | felett | |||||||
L2A-V2-Z | 100 | 60 | 5 | 2 | +0,25 | 25 | kialakult | kialakult |
L2A-V3-SZ | 75 | 60 | - | 2 | +0,15 | 25 | kialakult | kialakult |
L2A-K7 | 100 | 10 | - | 2 | - | 50 | 1,5 | 1,5 |
L2A-KP[168] | 25 | - | - | - | - | 75 | - | - |
(1) RSZT esetén szintterületsűrűség
(2) Az övezetek területén az alábbi építmények helyezhetők el az övezeti- és az építmények elhelyezésére és kialakítására vonatkozó előírások és a KÉSZ előírásainak keretei között:
a) lakóépület,
b) szálláshely-szolgáltató épület,
c) közintézmény épület,
d) irodaház,
e) legfeljebb 2.500 m2 bruttó szintterületű kiskereskedelmi épület,
f) sportépítmény,
g) terepszint alatti parkolóépítmény.
(3) Az övezetek területén ipari épületet, raktárépületet elhelyezni, meglévő épület használati módját e célra megváltoztatni nem lehet.
(4) [169]A szabadonálló beépítési telkek minden 100 m2-e után legalább egy fa telepítéséről és fenntartásáról kell gondoskodni. Amennyiben a telek adottságai, vagy más ok miatt az előírt számú fa kihelyezése a telken belül nem biztosítható, lehetőleg az érintett ingatlan környezetében kell a pótlást telepíteni.
L2A- V2-Z jelű övezet
56.§
(1) L2A-V2-Z jelű övezetek területén az építmények kialakítására vonatkozóan a KVÉSZ előírásait az alábbi kiegészítésekkel és eltérésekkel kell alkalmazni.
6. TÖMB (Jégverem u. - Hunyadi János út - Pala u. - Kapucinus u.)
Pala u. 8. 14313 hrsz
az utcai védett épület tetőterének beépítése tilos.
11. TÖMB (Kapucinus utca – Pala utca – Szőnyeg u. – Szalag u. - Ponty u.)
a) Pala u. 7. 14295 hrsz.
homlokzatmagasság nem növelhető, tetőráépítés gerincmagassága (G)+4 m
b) Pala u. 9. 17308 hrsz.
homlokzatmagasság nem növelhető, tetőráépítés gerincmagassága (G)+4 m
c) Kapucinus u. 22. 14298/2 hrsz.
tetőtérbeépítés tilos
16. TÖMB (Ponty u. – Donáti u. – Donáti lépcső – Iskola u. – Szalag u.)
()[170]
a) a tömbben részben épületekkel, részben támfalakkal és mellvédekkel a középkori eredetű térfalakat vissza kell állítani,
b) lapostetőt építeni még magastető kiegészítéseként sem szabad,
c) az új beépítéseknek követniük kell a történelmileg kialakult telekosztások ritmusát, tagozódását,
d) a szabályozási tervlapon szereplő telekalakítástól eltérő, a Szalag utcai és Donáti utcai szabályozási vonalat nem érintő telekszabályozás (telekosztás) megengedett, azonban ebben az esetben is csak a szabályzatban meghatározott beépítés hozható létre.
e)0[171]
f) Donáti u. 33. 14259 hrsz.
1 homlokzatmagasság (Hm) a Donáti u. 17-19. sz. 14249/2 hrsz. jelenlegi homlokzat-magassága - 4,5 m
3 gerincmagasság (G), a Donáti u. 17-19. jelenlegi gerincmagassága -4,5 m
g) Donáti u. 29-31. 14258 hrsz.
1 homlokzatmagasság (Hm), a Donáti u. 17-19. jelenlegi homlokzatmagassága -3,0 m
3 gerincmagasság (G), a Donáti u. 17-19. jelenlegi gerincmagassága -3,0 m
g) Donáti u. 27. 14257 hrsz
1 homlokzatmagasság (Hm), a Donáti u. 17-19. jelenlegi homlokzatmagassága -1,5 m
3 gerincmagasság (G), a Donáti u. 17-19. jelenlegi gerincmagassága -1,5 m
h) Donáti u. 13/b. 14247/2 hrsz
magastető ráépítésénél max. G a jelenlegi Hm+5 m
i) Donáti u. 9. 14245/2 hrsz Szalag u. 14.
Donáti u. 11. 14245/4 hrsz Szalag u. 16.
1 a telkek akár páronként is megoszthatók, illetve összevonhatók.
2 a telkek Donáti u. menti beépítésénél 12 m szélességen túl épületrész a Donáti u. szintje fölé nem nyúlhat, kivéve a lentebbiek szerint,
3 a tömbbelsőben az övezetre előírt beépítettség megtartása mellett max 6 m széles, a beépítésre merőlege irányú keresztszárny is létesíthető.
4 a Donáti u. és Szalag u. között meglévő szintkülönbségek a tömbbelsőben max. 3 m magas, a rétegvonalakhoz igazodó támfalrendszerrel lehet áthidalni.
j) [172]Donáti utca 21-25. szám (Szalag u. 24-30. szám) 14254 Hrsz. telken amennyiben a gyalogos átjáráshoz végrehajtják a megengedett telekalakítást, úgy az így létrejövő telek (útterület) „övezeten belüli út” övezeti besorolást kap.
20. TÖMB (Iskola u. - Donáti lépcső - Donáti u. - Vám u.)
a) a Donáti u. és Vám u. mentén a szabályozási vonalon tömör, át nem látható kerítés létesítendő
b) Donáti u. 37-45. 14261/2 hrsz
a telken álló épület nem bővíthető, távlatilag bontandó. A bontás esetén az új beépíthetőséget szabályozási terv (SZT) alapján kell meghatározni
c) Iskola u. 20. 14270 hrsz
a telek bontás utáni új beépítésénél a kedvezményes értékek alkalmazhatók. A megengedett új beépítés maximális homlokzat- és gerincmagasság értékei megegyeznek a jelenleg meglévő épület megfelelő értékeivel.
d) Iskola u. 12. 12463 hrsz
tetőtérbeépítés tilos
e) Iskola u. 14. 14265 hrsz
tetőtérbeépítés tilos
27. TÖMB (Iskola u. - Vám u. - Donáti u. - Franklin u.)
a) Iskola u. 26. 14151/1 hrsz
1. az új beépítésnél HM: Iskola u. 28. sz. 14152/1 hrsz jelenlegi HM+3 m
2. GM: az Iskola u. 28. jelenlegi G+3 m
c) Iskola u. 22. 14147 hrsz
Iskola u. 24. 14150 hrsz
a telken álló épület bontása esetén az új beépítés HM és G értéke megegyezik az Iskola u. 26. 14151/1 hrsz előírt értékeivel.
d) Donáti u. 47. 14147 hrsz
1. az új beépítés tetőtérbeépítése tilos.
2. a beépítésnél a kedvezményes értékek nem alkalmazhatók.
e) Iskola u. 28. 14152/1 hrsz
Tetőtérbeépítés tilos.
28. TÖMB (Donáti u. – Toldy lépcső - Toldy F. u. - Franklin lépcső)
a) Toldy F. u. 3. 14160 hrsz
a telek beépítésénél a kedvezményes értékek alkalmazhatók
b) Donáti u. 28. 14157 hrsz
1. a telek utcával határos a szabályozási tervlapon jelölt sávja az illeszkedési szabályok szerint építhető be
2. a telkek a Donáti u. 30. 14156 hrsz telekkel történő egyesítése esetén a hátsókertet érintő megengedett beépítés magassága (fenntartható zöldfelülettel kialakított lapostető) – a terület maximum 20 %-át meg nem haladó, maximum 1.0 magasságú felülvilágítók kivételével – sehol sem emelkedhet a szomszédos Toldi F. u. 7. sz. 14158 hrsz telek hátsó (közös) telekhatárán jelenleg meglévő terepszint fölé.
c) Donáti u. 30. 14156 hrsz
tetőtérbeépítés tilos
29. TÖMB (Szabó I. u. - Franklin lépcső - Toldi F. u. – 14180/3 hrsz)
a) új beépítéseknek követniük kell a történelmileg kialakult telekalakítások ritmusát, tagozódását
b) Toldy F. u. 8. (Szabó I. u.7.) 14180/2 - 14180/1 hrsz.
1. a telkek esetében a kedvezményes értékek alkalmazhatók
2. HM és Gm igazodjék a Toldy F. u. 12. sz. 14182/1 hrsz jelenlegi épület méreteihez, illetve a
3.[173] Szabó I. u. 9. sz. 14181/1 hrsz. jelenlegi épület méreteihez + max 1,2 m eltéréssel.
c)[174] Toldy F. u. 20. (Szabó I. u. 19.) 14186 hrsz.
Toldy F. u. 22. 14187/2 hrsz.
Toldy F. u. 24. 14188/1 hrsz.
Toldy F. u. 26. 14189/1 hrsz.
Toldy F. u. 28. 14190 hrsz.
Szabó I. u. 21. 14187/1 hrsz.
Szabó I. u. 25. 14189/2 hrsz.
A telkek bármelyikének beépítése esetén a telkek együttesének és a kialakult környezet együttesének városképi megjelenése, utcaképi ritmusa alapján kell konkrét homlokzat magasságot kialakítani.
d) [175]
e) [176]
f.) [177]
g.) A Toldy F. u. menti beépítésnél a HM és GM igazodjék a Toldy F. u. 7. sz 14158 hrsz. jelenlegi épület megengedett bővítése utáni méreteihez.
A Szabó Ilonka u. beépítésnél a HM és GM igazodjék a Szabó Ilonka u. 23.sz. 14188/2 hrsz. jelenlegi épület megfelelő méreteihez.[178]
L2A- V3-SZ jelű övezet
57.§
(1) L2A-V3-SZ jelű övezetek területén az építmények kialakítására vonatkozóan a KVÉSZ előírásait az alábbi kiegészítésekkel és eltérésekkel kell alkalmazni.
(2)[179] Az ingatlanok minden 100 m2-e után legalább egy fa telepítéséről és fenntartásáról kell gondoskodni. Amennyiben a telek adottságai, vagy más ok miatt az előírt számú fa kihelyezése a telken belül nem biztosítható, lehetőleg az érintett ingatlan környezetében kell a pótlást telepíteni.
123. TÖMB (Zsolt utca - Derék utca - Tigris utca - Piroska utca)
a) A tömbben fekvő telkeknél az építési hely a jelenlegi beépítés épületkontúrjai által meghatározott.
b) A Derék u. 14. 7476 hrsz. *
124. TÖMB (Aladár utca - Piroska utca - Tigris utca - Galeotti u.)
A tömbben fekvő telkeknél az építési hely a jelenlegi beépítés épületkontúrjai által meghatározott.
125. TÖMB (Aladár utca - Galeotti utca - Tigris utca - Hegyalja út)
a) A tömbben fekvő telkeknél az építési hely a jelenlegi beépítés épületkontúrjai által meghatározott.
b) Az Aladár utca 1/b-3. 7438/1 hrsz *
L2A- K7 jelű övezet
58.§
(1) L2A-K7 jelű övezetek területén az építmények kialakítására vonatkozóan a KVÉSZ előírásait az alábbi kiegészítésekkel és eltérésekkel kell alkalmazni.
(2)[180]
(3) A terepszint feletti beépítés csak lapostetős lehet, zöldtetős kialakítással és csak a terepszint alatt megengedett beépítés funkcióját szolgálhatja.
(4)[181] Az ingatlanok minden 100 m2-e után legalább egy fa telepítéséről és fenntartásáról kell gondoskodni. Amennyiben a telek adottságai, vagy más ok miatt az előírt számú fa kihelyezése a telken belül nem biztosítható, lehetőleg az érintett ingatlan környezetében kell a pótlást telepíteni.
85. TÖMB (Attila út - Apród u. - Ybl Miklós tér - Döbrentei u.)
89/A tömb (Váralja u. – 6452/3 hrsz közpark mentén - Várfalak - Északi Cortina fal 14373/2 hrsz - Ybl Miklós tér - Apród u.)
L2A- KP jelű övezet
58/A.§[182]
(1) Az övezet területén:
a) nyilvános illemhely,
b) terepszint alatti építmények helyezhetők el.
(2) A telkek minden 100 m2-e után legalább egy fa telepítéséről és fenntartásáról kell gondoskodni. Amennyiben a telek adottságai, vagy más ok miatt a fenti számú fa kihelyezése a telken belül nem biztosítható lehetőleg az érintett telek környezetében kell a pótlást telepíteni.
Kisvárosias lakóterület II.
L3 jelű övezetek
59.§
(1) Az övezetek területén a telkekre és az építményekre vonatkozó jellemzőket a 7. számú táblázat tartalmazza.
7. számú táblázat
Övezet jel | Beépítettség | Szintterületi határérték(1) | Legkisebb zöldfelület | Megengedett legnagyobb magasság | ||||
terepszint | enged-mény | határ-érték | enged-mény | építmény-magasság | homlokzat-magasság | |||
alatt | felett | |||||||
L3-K4-SZ | 50 | 20 | - | 0,6 | +0,15 | 65 | meghat. (2) | 9,5 |
L3-K5-SZ | 30 | 15 | 5 | 0,3 | +0,1 | 65 | meghat. (2) | 7,5 |
- | - | - | - | - | - | - | - | |
RSZT esetén szintterületsűrűség
közterület felöli homlokzatmagasság által meghatározott
(2) Az övezetek területén az alábbi építmények helyezhetők el az övezeti- és az építmények elhelyezésére és kialakítására vonatkozó előírások és a KÉSZ előírásainak keretei között:
a) lakóépület,
b) szálláshely-szolgáltató épület,
c) közintézmény,
d) iroda,
e) legfeljebb 1.500 m2 bruttó szintterületű kiskereskedelmi célú épület, épületrész,
f) sportépítmény,
g) támfallétesítmény,
h) terepszint alatti parkoló építmények.
(3) Az övezetek területén ipari épületet, raktárépületet elhelyezni, meglévő épület használati módját e célra megváltoztatni nem lehet.
(4) [184]A telkek minden 100 m2-e után legalább egy fa telepítéséről és fenntartásáról kell gondoskodni.
Amennyiben a telek adottságai, vagy más ok miatt az előírt számú fa kihelyezése a telken belül nem biztosítható, lehetőleg az érintett ingatlan környezetében kell a pótlást telepíteni.
L3- K4-SZ jelű övezet
60.§
(1) L3-K4-SZ jelű övezetek területén az építmények kialakítására vonatkozóan a KVÉSZ előírásait az alábbi kiegészítésekkel és eltérésekkel kell alkalmazni.
(2) A telkek minden 80 m2-e után legalább egy fa telepítéséről és fenntartásáról kell gondoskodni.
Amennyiben a telek adottságai, vagy más ok miatt az előírt számú fa kihelyezése a telken belül nem biztosítható, lehetőleg az érintett ingatlan környezetében kell a pótlást telepíteni. [185]
109. TÖMB (Dezső utca - Derék utca - Lisznyai utca - Czakó utca)
Lisznyai utca 25/b 7374 hrsz., *
Lisznyai utca 27. 7375 hrsz., *
Dezső utca 3. 7379 hrsz. *
110. TÖMB (Czakó utca - Tigris utca - Derék utca - Dezső utca)
a) Tigris utca 50. 7383 hrsz., *
Dezső utca 2. 7388/1 hrsz., *
Czakó utca 15. 7392 hrsz., *
Czakó utca 11. 7390 hrsz., *
Tigris utca 54. 7386/4 hrsz., *
Tigris utca 56. 7386/5 hrsz. *
b) Czakó u. 15. 7392 hrsz., valamint
Tigris u. 62. 7388/1 hrsz. és
Tigris u. 64. 7393 hrsz.
A telkeket érintő telekalakítás esetén ez utóbbi két telken álló terepszint feletti melléképületeket meg kell szüntetni. A meglévő üzlet bontása esetén e funkció a telek Czakó utcai oldalán a szabályozási tervlapon kizárólag e célra a kijelölt helyen visszapótolható.
111. TÖMB (Tigris utca - Tibor lépcső - Naphegy tér - Dezső utca - Derék utca)
a) Tigris utca 42-46. 7367/2 hrsz. *
b) A Tibor lépcső 7366/1 hrsz. telek jelenlegi beépítése csak kiskereskedelmi, illetve lakossági szolgáltatási funkció esetén tartható fenn.
A meglévő üzletépület bontása esetén a Tibor lépcső közterület eredeti déli határvonala visszaállítandó.
112. TÖMB (Dezső utca - Naphegy tér - Fém utca - Lisznyai utca - Derék utca)
114. TÖMB (Tigris utca - Párduc utca - Naphegy tér - Tibor lépcső)
Naphegy tér 4/a 7323/19 hrsz. *
115. TÖMB (Orvos utca - Naphegy tér - Párduc utca - Fenyő utca - Lisznyai utca)
Naphegy tér 5/b 7323/13 hrsz. *és
Naphegy tér 6/a 7323/12 hrsz. *
116. TÖMB (Fenyő utca - Tigris utca - Lisznyai utca)
Tigris utca8/a 7320 hrsz., *
Fenyő utca 7. 7326 hrsz., *
Fenyő utca 11. 7323/9 hrsz. *
117. TÖMB (Mészáros utca - Naphegy utca - Tigris utca - Ág utca)
Tigris utca 3. 7538 hrsz *
118. TÖMB (Mészáros utca - Ág utca - Tigris utca - Róka utca)
A Tigris u. 9-11. sz. 7522/2 hrsz telket érintő telekalakítás csak a Mészáros u. 16. sz. 7524/2
telekalakítással együtt hajtható végre.
Ág utca 3. 7527 hrsz. *
119. TÖMB (Mészáros utca - Róka utca - Tigris utca - Nyárs utca)
120. TÖMB (Mészáros utca - Nyárs utca - Tigris utca - Tibor utca)
A Tigris u. 27. 7503/1 hrsz.
telken új épület építése esetén az épület járdaszinthez viszonyított magassága legfeljebb F+1 szintes lehet.
121. TÖMB (Mészáros utca - Tibor utca - Tigris utca - Derék utca - Zsolt u.)
Tigris u. 47. 7484 hrsz-ú., valamint
Zsolt u. 9. 7489 hrsz-ú
a) telkeket érintő telekalakítás esetén és e két telekből leeső telekrészeket a Tigris u. 45/b 7485/1 hrsz ingatlannal egyesíteni kell.
b) A Zsolt u. 9. 7489 hrsz telekből leeső telekrész övezeti besorolása ez esetben L3-K4-SZ.
129. TÖMB (Hegyalja út - Harkály utca - Avar utca)
Hegyalja út 28. 4882/4 hrsz. *
130. TÖMB (Hegyalja út - Alsóhegy utca - Harkály utca)
133. TÖMB (Berényi u. – Mihály u. – Szirtes u. – Hegyalja út)
134. TÖMB ( Szirtes u. – Mihály u. – Sánc u. – Hegyalja út)
139. TÖMB (Sánc u. - Szirtes u. - Bérc u. - Antal u. - Orom u.)
Orom u. 20. 5313 hrsz
a) az épület tömegének visszaállításához a beépítés kedvezményes értéke alkalmazható.
b) Ennek feltételei:
1 az épület legalább egy szintjének 70%-án kereskedelmi szolgáltató, vendéglátó funkciót kell kialakítani,
2 az épület szükséges szerkezeti felújítását valamint tetőzetének és homlokzatának felújítását végre kell hajtani
3 egyidejűleg a teljes bővített épület szabályzat szerinti parkolását biztosítani kell
4 a bővítmény magassága a meglévő épület párkánymagasságát nem lépheti túl
5 a tetőtér csak egy szintben építhető be.
140. TÖMB (Bérc u. - Antal u. - Orom u. - 5413/3 hrsz. park)
141. TÖMB[186] (Szirtes u. – Kocsány u. – Bérc u. – 5413/3. hrsz. közpark)
Bérc u. 2. 5331 hrsz.
Bérc u. 4/a. 5332 hrsz.
Bérc u. 4/b. 5333 hrsz.
Bérc u. 6/b. 5319/9 hrsz.
Bérc u. 8. 5319/3 hrsz.
Bérc u. 10. 5319/6 hrsz.
a) telkeknél megengedett beépítés semmilyen része nem nyúlhat túl a Bérc utca érintett szakaszán az útburkolat szintjétől mért 20 m magas vízszintes síkon.
b) az oldalkert méretét úgy kell meghatározni, hogy a beépítés szabadonálló karaktere az épületek közé benyúló zöldterületek révén megmaradjon.[187]
c) ezen túlmenően a telkeken épület csak az alábbi korlátozások betartásával helyezhető el: az előkert minimális mérete 5.0 m, az oldalkert minimális mérete 5.0 m, a hátsókert minimális mérete 12.0 m.
L3-K5-SZ JELŰ ÖVEZET
61.§
(1) L3-K5-SZ jelű övezetek területén az építmények kialakítására vonatkozóan a KVÉSZ előírásait az alábbi kiegészítésekkel és eltérésekkel kell alkalmazni.
(2) A telkek minden 50 m2 -e után legalább egy fa telepítéséről és fenntartásáról kell gondoskodni.
Amennyiben a telek adottságai, vagy más ok miatt az előírt számú fa kihelyezése a telken belül nem biztosítható, lehetőleg az érintett ingatlan környezetében kell a pótlást telepíteni.[188]
131. TÖMB (Alsóhegy u. – Hegyalja u. – Berényi u. – Mihály u. – Somlói út)
Alsóhegy u. 2. 5184 hrsz
a meglévő beépítés elbontásáig a meglévő épületen csak a folyamatos lakhatást biztosító állagvédelmi munkák végezhetők
132. TÖMB (Mihály u. – Gyula u. – Számadó u. (5226/2 hrsz) közterület )
a) A tömbben a telkek beépítettségénél és fedettségénél az engedményes érték alkalmazható.
b) Mihály u. 10/a. 5237/3 hrsz.
Mihály u. 10/b. 5237/4 hrsz.
Mihály u. 12/a. 5231/1 hrsz.
Mihály u. 12/b. 5235/2 hrsz.
1 Teleknél az utcai telekhatár mentén, terepszint alatti létesítmény építése esetén, a telek előtti közterületi támfal a telek teljes szélességében elbontandó.
2 A csatlakozó támfalszakaszok és közterületi területsáv megfelelő kialakításáról egyidejűleg gondoskodni kell.
135. TÖMB (Szirtes u. – Sánc u. – Mihály u. )
A tömbben a telkek beépítettségénél és fedettségénél az engedményes érték alkalmazható.
136. TÖMB (Szirtes u. – Tündérlaki mélyút – Számadó u. – 5226/2 hrsz-ú közterület )
- A tömbben a telkek beépítettségénél és fedettségénél az engedményes érték alkalmazható.
- A tömbben meglévő épületek tetőtérbeépítéséhez a kedvezményes szintterületi érték felhasználható.
137. TÖMB (Tündérlaki mélyút – Számadó u. – Szirtes u. )
A tömbben a telkek beépítettségénél és fedettségénél az engedményes érték alkalmazható.
138. TÖMB (Bérc u. – Szirtes u. – Kocsány u.)
139. TÖMB (Sánc u. – Szirtes u. – Bérc u. – Antal u. – Orom u. )
A tömbben a telkek beépítettségénél és fedettségénél az engedményes érték alkalmazható.
141. TÖMB [189]
Városközponti terület
VK jelű övezetek
63.§
(1) Az övezetek területén a telkekre és az építményekre vonatkozó jellemzőket az 1. számú táblázat tartalmazza.
1. számú táblázat
Övezet jel | Beépítettség | Szintterületi határérték(1) | Legkisebb zöldfelület | Megengedett legna-gyobb magasság | |||||
terepszint | enged-mény | határérték | Engedmény | építmény-magasság | homlokzat-magasság | ||||
alatt | felett | ||||||||
VK-V1-Z | 100 | 75 | 5 | 3,5 | +0,3 | 15 | kialakult | kialakult | |
VK-V2-Z | 100 | 60 | 5 | 2,25 | +0,25 | 20 | kialakult | kialakult | |
VK-FV1-Z (2) | 100 | 75 | 5 | Kialakult * | kialakult | kialakult | |||
VK-FV2-Z (3) | 100 | 75 | 5 | Kialakult * | kialakult | kialakult | |||
VK-KP-1 | 75 | 2 | - | 3,5 | - | 75 | 3,5 | 3,5 | |
VK-1-Z4 [192] | 100 | 100 | - | 5,5 | +0,5 | - | 29,0** | 30,0 | |
VK-2-Z [193] | 100 | 75 | - | 5,5 | - | 15 | 22,0*** | 23,0 | |
[194]VK-KP-2 | 75 | 5 | - | - | - | 75 | 3,5 | 3,5 | |
(1) RSZT esetén szintterületsűrűség
(2) Budai Vár Polgárváros
(3) Budai Vár Palotanegyed
(4) [195]A VK-1-Z övezet területén az engedményes érték közhasználat céljára szerződéssel átadott területért vehető igénybe.
(5) [196]A magasságok az Alkotás u. menti közterületi telekhatároktól értelmezendők.
* Lsd. még tömbökre vonatkozó előírásokat
** de max. 144,5 Bf
*** de min. 15,0
(2) [197]A VK-FV1-Z, VK-FV2-Z, VK-1-Z és VK-2-Z övezetek területén a hatályos építési szabályok és a KÉSZ keretei között az alábbi építmények helyezhetők el:
a.) közintézmények épületei,
b.) igazgatási épületek,
c.) irodaépületek,
d.) szálláshely-szolgáltató épületek,
e.) szolgáltatás épületei,
f.) vendéglátás épületei,
g.) egyéb közösségi szórakoztató épületek,
h.) sportépítmények,
i.) a kutatás-fejlesztés nem üzemi technológiájú építményei,
j.) legfeljebb 2.500 m² bruttó szintterületű kiskereskedelmi célú épületek,
k.) lakóépületek,
l.) terepszint alatti parkolóépítmények,
m.) ahol azt a KÉSZ előírásai megengedik parkolóház, valamint
n.) az a.)-m.)-ig felsoroltakat kiszolgáló és kiegészítő funkciójú épületek helyezhetők el, amennyiben azok terhelési határértéke nem haladja meg a városközponti területekre vonatkozó egyéb jogszabályban rögzített előírt határértékeket,
o.) a VK-1-Z és VK-2-Z övezetekben továbbá a vasútközlekedés és üzemeltetés kiszolgáló létesítményei.
(3) Az övezetek területén ipari épületet, raktárépületet elhelyezni, meglévő épület használati módját e célra megváltoztatni nem lehet.
(4) A VK keretövezetbe tartozó építési övezetekben meglévő épületet érintő – lakó és intézményi funkció esetén – az előírt parkoló-mennyiség 100 %-a a tulajdonos hozzájárulásával kialakított új felszíni közterületi parkolóval is teljesíthető. E körben a megszűnő parkolók pótlására kialakított új parkolók nem vehetők figyelembe.
(5)[198] Az övezetek területén a telkek minden 100 m2-e után legalább egy fa telepítéséről és fenntartásáról kell gondoskodni. Amennyiben a telek adottságai, vagy más ok miatt az előírt számú fa kihelyezése a telken belül nem biztosítható, lehetőleg az érintett ingatlan környezetében kell a pótlást telepíteni.
VK-V1-Z jelű övezet
64.§
(1) VK-V1-Z jelű övezetek területén az építmények kialakítására vonatkozóan a KVÉSZ előírásait az alábbi kiegészítésekkel és eltérésekkel kell alkalmazni.
1/A tömb (Fő u. - Clark Ádám tér - Hunyadi János út - Apor Péter u.)
a) Fő u. 2. 14337 hrsz.
1 A telek beépítésének feltétele a szabályozási tervlapon meghatározott telekszabályozás végrehajtása.
2 A telek területéből a közterület felé leeső telek(rész) beépítésre nem szánt terület. Ez a terület a terepszinten nem építhető be.
3 [199]
4 A párkány- és gerincmagasság megengedett legnagyobb értékeit a szabályozási tervlap tartalmazza:
5 [200]A telek a földszinten és az első emeleten 100%-ban beépíthető a külön jogszabályban meghatározott esetekben.
b) Hunyadi János út 1. 14338 hrsz.
1 Meglévő épület bontása esetén az új épület megengedett párkány- és gerincmagassági értékeit a szabályozási tervlap tartalmazza.
2 Az épület akár részleges felújítása esetén az udvar tűzfalának növényzettel történő takarásáról gondoskodni kell.
3 Új beépítés esetén a telek Clark Ádám tér felé eső földszintjét úgy kell kialakítani, hogy az alkalmas legyen egy legalább 5 m széles árkádosítás megvalósítására.
c) Fő u. 4. 14336 hrsz.
1 Az épület akár részleges felújítása esetén az udvar tűzfalainak növényzettel történő takarásáról gondoskodni kell.
2 A meglévő épület jelentős, vagy teljes funkcióváltása, illetve új épület építése esetén földszint legalább 5 m mélységű árkádosítását végre kell hajtani.
d) Fő u. 6. 14335 hrsz.
A meglévő épület jelentős, vagy teljes funkcióváltása, illetve új épület építése esetén földszint legalább 5 m mélységű árkádosítását végre kell hajtani.
2. TÖMB (Clark Ádám tér - Fő u. - Jégverem u. - Bem rkp.)
a) Fő u. 1. 14402 hrsz.
A meglévő épület tetőidoma nem változtatható meg, tetőtere csak akkor építhető be, ha az nem jár a tetőzet átalakításával, azon nyílás kialakításával.
3. TÖMB (Apor Péter u. - Hunyadi János út - Jégverem u. - Fő u.)
4. TÖMB (Fő u. - Pala u. - Bem rkp. - Jégverem u.)
5. TÖMB (Fő u. - Jégverem u. - Kapucinus u. - Pala u.)
a) az ingatlanok maximális beépítettsége az engedményes értékkel növelhető.
b) lapostetőt építeni még magastető kiegészítéseként sem lehet.
c)[201]
12. TÖMB (Fő u. - Pala u. - Kapucinus u. - Ponty u.)
13. TÖMB (Pala u. - Fő u. - Halász u. - Bem rkp.)
a) Fő u. 25. (Halász u. 2. - Bem rkp. 13.) 14415 hrsz.
az emeletráépítés max. magassága + 4 m
b) Bem rkp. 11. 14413/1 hrsz.
Az épület legfelső szintje visszabontandó. Az így kialakult épülettömeget magastetővel a szomszédos Bem rkp. 12. (14414 hrsz) épület meglévő magassági értékeihez igazodóan kell kialakítani.
14. TÖMB (Halász u. - Fő u. - Szilágyi D. tér - Bem rkp.)
(A tömböt érinti az 1. számú KSZT fedvényterv)
a) Bem rkp. 16 14420 hrsz
Bem rkp. 17. 14422 hrsz
Bem rkp. 18. 14423 hrsz
Bem rkp. 19 14426 hrsz
Corvin tér 2. (Bem rkp.16.) 14420 hrsz
Corvin tér 3. 14421 hrsz
Corvin tér 4. 14424 hrsz
Corvin tér 5. 14425 hrsz.
ingatlanokon az új beépítés feltétele a telkek egyesítése.
1. Az egyesített ingatlanokon a Fő utca és a rakpart között átjárást kell biztosítani.
2. A Bem rakpart 16-18. sz. ingatlanok területén megengedett új beépítés nyugati vonala párhuzamos kell, hogy legyen a Fő utca Corvin téri észak-déli beépítési vonalával.
3. Az új beépítés Bem rakpart 16-17-18. sz. ingatlanokra eső átlagos szélessége 12 m, legnagyobb szélessége 14 m lehet.
4. A Corvin tér 5., illetve Bem rkp. 19. sz. ingatlanterületen a tömbbelsőben megengedett beépítés homlokzat, illetve gerincmagassága nem nyúlhat túl a Corvin tér 4.sz. ingatlan utcai homlokzat-, illetve gerincmagasságán.
5. A Bem rakpart mentén megengedett új beépítéssel egyidejűleg a Corvin tér 2-5. épületek műemlékvédelmi előírásoknak megfelelő rehabilitációját végre kell hajtani. Az új épület e megmaradó épületekkel funkcionális kapcsolatban alakítandó ki.
6. A Corvin tér 5. 14425 hrsz telek hátsó részén a bontás után újraépíthető homlokzatmagasság HM-3 méter, a gerincmagasság GM-0,5 méter.
7. A Corvin tér 7. 14428/1 hrsz
tetőtérbeépítése tilos.
8. A Bem rakpart 21. 14428/2 hrsz
tetőtérbeépítése tilos.
15. TÖMB (Fő u. - Ponty u. - Szalag u. - Corvin tér)
(A tömböt érinti a 2. számú KSZT fedvényterv)
a) lapostető építése még magastető kiegészítéseként sem megengedett
b) Szalag u. 21. 14282 hrsz.
1. beépíthetőség az engedményes értékkel növelhető.
2. HM és G. a Corvin tér 11. sz. 14281 hrsz megfelelő értékeihez maximum plusz 1,5 m-rel igazodjék
c) Fő u. 30-32. 14286 hrsz.
tetőtérbeépítés tilos
d) Corvin tér 13. 14279 hrsz.
tetőtérbeépítés tilos
21. TÖMB (Fő u. - Székely u. - Iskola u. - Vám u.)
a) Iskola u. 13. 14272 hrsz.
tetőtérbeépítés tilos
[202]22. TÖMB (Székely u. - Szilágyi D. tér - Corvin tér - Iskola u.)
a) Corvin tér. 8. 14277 hrsz.
1. az épület tetőtere egy szintben beépíthető a Fő utcai és az Iskola utcai párkánymagasság megtartásával (tetőtérbeépítés), de a belső udvar felőli szintszám egy emelettel növelhető (emeletráépítés),
2. az épület szabályozási tervben lehatárolt részén a magastető lejtése legfeljebb 35°-ig növelhető,
3. a tetőtérben ablak csak a pártázat takarásában nyitható,
4. az épület szabályozási tervben lehatárolt részén a tetőidom korrekcióját az épület tetőterének beépítése során kell végrehajtani,
5. az épület udvarát lefedő szerkezet legfeljebb 1 méterrel emelkedhet a Fő utcai és az Iskola utcai épületszárnyak végleges gerincmagassága fölé,
6. a 30.§ (7) h) pont szerinti engedményes érték alkalmazható,
7. a területen a KÉSZ 11.§, 17.§ (2) bekezdésében, 18.§ (1) bekezdésében, 18.§ (2) bekezdésében, 25.§, 27.§, 28.§, 30.§ (3) d) pontjában, 30.§ (7) e), pontjában, 63.§ (5) bekezdésében foglalt rendelkezéseit nem kell alkalmazni.”
24. TÖMB (Fő u. - Vám u. - Bem rkp. - Szilágyi D. tér)
a) Bem rkp. 24. 14437 hrsz
Fő u. 35 14438 hrsz
telkek összevonását a megengedett új beépítés esetén kötelezően végre kell hajtani.
b) Bem rkp. 22. (Fő utca 31.) 14434 hrsz
tetőtérbeépítés tilos
c) Bem rkp. 23. 14436 hrsz
tetőtérbeépítés tilos
d) Bem rkp. 24. 14437 hrsz
tetőtérbeépítés tilos. A tilalom a megengedett bővítményre nem vonatkozik.
31. TÖMB (Fő u. - Vám u. - Iskola u. - Markovits u.)
a) Fő u. 44-50. 14133 hrsz
Iskola utcai oldalán létesíthető terepszint alatti parkoló a tömbbelsőben kizárólag növényzettel fedezetten alakítható ki.
b) Markovits I. u. 2. 14132 hrsz
földszinti portáljait legkésőbb az épületek felújításával egyidejűleg korszerűsíteni kell
c) Markovits I. u. 4. 14131 hrsz épülete
földszinti portáljait legkésőbb az épületek felújításával egyidejűleg korszerűsíteni kell
d) Iskola u. 17. (Fő. u. 40.) 14141 hrsz
épület földszintjének funkcióváltása esetén a szabályozási tervlapon szereplő passzázst ki kell alakítani.
32. TÖMB (Aranyhal u. - Bem rkp. - Vám u. - Fő u. )
33. TÖMB (Batthyány tér - Bem rkp. - Aranyhal u. - Fő u.)
34/A. TÖMB (Batthyány tér - Fő u. - Csalogány u. - Bem rkp.)
35. TÖMB (Csalogány u. - Fő u. - Batthyány u. - Gyorskocsi u.)
36. TÖMB (Batthyány tér - Markovits u. - Gyorskocsi u. - Batthyány u.)
Batthyány tér 4. sz. 14128 hrsz
funkcióváltás esetén a szabályozási tervlapon szereplő közcélú átjárást biztosítani kell.
92/A TÖMB (Kosciuszko Tádé u. – (7617) hrsz – Krisztina krt. - Feszty Á. u.)
A 7614/11 hrsz. - "Hotel Merkur" és Kosciuszko T. u. közötti részen:
a terepszint alatti beépítés tetőzetét közparkként használható zöldfelületként kell kialakítani és fenntartani, a felszín feletti beépítés tovább nem növelhető.
92/B TÖMB (Kosciuszko Tádé u. – Krisztina krt. – (7617) hrsz)
a) a 7618 hrsz telek
1. maximális építménymagassága (Hmax)........................ 30 m,
2. maximális bruttó szintterülete ......................................... 18.000 m2,
3. maximális bruttó térfogata .............................................. 60.000 m3 lehet.
b) a tömb beépítésénél a szabályzat kedvezményes értékei nem alkalmazhatók.
97. TÖMB (Mészáros u. - Kosciuszko T. u. - Kuny D. u. - Krisztina krt. - Krisztina tér)
a) Krisztina krt. 59-61. 7597/1 hrsz
Kosciuszko T. u. 3. 7591 hrsz
Mészáros u. 3-7. 7592 hrsz
1. a telkek terepszint alatti beépítése - a meglévő szintkülönbségek felhasználásával - megengedett. E beépítésekkel a meglévő terepszinteket legfeljebb 1,00 m-rel szabad megemelni. A létesítmények felső födémét zöldfelületként, illetve sportcélú területként kell kialakítani. A telkek jelenlegi beépítése a terepszint alatti beépítéseket szolgáló bevilágítók, gépészeti berendezések és bejáratok kialakítása céljából legfeljebb 5 %-kal növelhető.
2.[203]
3. a telkeket érintően az igényelt telekalakítások a rendelet módosítása nélkül is végrehajthatók
b) Krisztina krt. 55. (7600 és 7599/1 hrsz)
Kosciuszko T. u. 7. (7589 hrsz)
A telken megengedett új beépítés csak az érintett ingatlan szabályozási tervben jelölt rendezésével (egyesítésével) együtt és a telken meglévő és azon létesíthető bővítéshez kötelezően előírt gépjárműtárolás ingatlanon belüli biztosítása lehetséges. Az előírt parkolóhelyek 80 %-át épület(ek) pinceszintjén vagy a terepszint alatt kell biztosítani.
98. TÖMB (Feszty Á. u. - Krisztina krt. - Kuny D. u. - Kosciuszko T. u.)
Feszty Á. u. 6-16. (7612/15 hrsz)
A telek beépítése esetén az új épület(ek) homlokzatát a szabályozási tervben megengedett telekosztásoknak megfelelően tagolni kell.
[204]Krisztina krt. 49. sz. 7604 hrsz. A megengedett beépítés a szomszéd épületek magasságához igazodó ráépítéssel (emeletráépítésekkel) is létrehozható.
VK-V2-Z jelű övezet
65.§
(1) VK-V2-Z jelű övezetek területén az építmények kialakítására vonatkozóan a KVÉSZ előírásait az alábbi kiegészítésekkel és eltérésekkel kell alkalmazni.
12. TÖMB (Fő u. - Pala u. - Kapucinus u. - Ponty u.)
a) Pala u. 3. 14293 hrsz.
tetőtérbeépítés tilos
b) Pala u. 5. 14292 hrsz. (Kapucinus utca 9.)
a meglévő védett utcafronti épület tetőtérbeépítése tilos
VK-FV1-Z jelű övezet (Polgárváros)
67.§
(1) VK-FV1-Z jelű övezetek területén az építmények kialakítására vonatkozóan a KVÉSZ előírásait az alábbi kiegészítésekkel és eltérésekkel kell alkalmazni.
a) Az övezet területén az építési feltételek SSZT alapján meghatározottak
b) A terület felhasználása
1. a területen a meglévő telekhatárok csak kivételesen indokolt esetben a műemlékvédelmi hatóság egyetértésével változtathatók meg,
2. A területen a szabályzatban meghatározott keretek között
- lakó és korlátozott forgalommal járó szállásfunkció
- közellátási funkció
- idegenforgalmi funkció
- közművelődési funkció
továbbá
- az előző funkciókat közvetlenül kiszolgáló építmények
- szociális, egészségügyi funkciók
- igazgatási funkciók
alakíthatók ki.
3. az övezetben szálláshely szolgáltató funkció csak az esetben helyezhető el (alakítható ki), ha az ahhoz előírt parkoló-mennyiség az övezeten kívül, illetve övezeten kívüli megközelítéssel terepszint alatt szabályszerűen biztosítható.
4. A b) 2 pontban felsoroltak körébe nem tartozó meglévő funkciók nem bővíthetők.
5. A területen a meglévő épületek földszintjén megengedett funkcióváltás feltételei a következők:
- a funkcióváltásra felhasznált terület közterületről vagy ahhoz közvetlenül kapcsolódó közlekedőről legyen megközelíthető,
- a keletkező új funkció fogalma az épület többi részétől elválasztható legyen, illetve azt ne zavarja.
6. Az alábbi útszakaszokon fekvő ingatlanok közterülettel közvetlenül határos sávjában a meglévő épületek földszintjén új rendeltetési egységeket kialakítani a meglévő funkciókat megváltoztatni és - a lakások kivételével - az egységeket bővíteni nem lehet.
- Anna utca
- Babits sétány
- Bécsi kapu tér
- Dárda utca
- Hajadon utca
- Kard utca
- Lant utca
- Móra Ferenc utca
- Nőegylet utca
- Tóth Árpád sétány
- Úri utca
- A tilalom nem vonatkozik a hasznosítható pincék megközelítését szolgáló közlekedőterületek kialakítására.
7. A területen a terepszint alatt meglévő üregek és pincék hasznosítása, valamint a védőművek környezetének szint alatti beépítése - az egyéb feltételek fennállása esetén - megengedett.
8. [206]az övezetben meglévő lakófunkció csak az alábbi esetekben szüntethető meg:
a, az épület(rész) bontása esetén
b, a földszinten
Lakóépületben önálló irodai funkció nem alakítható ki.
c) Építmények elhelyezése
1. Meglévő beépítés részleges vagy teljes bontása esetén az építési hely megegyezik az eredeti (bontás előtti) beépítés határvonalai által meghatározott hellyel.
2. A területen az övezeten belülről megközelíthető gépkocsitároló építmény még terepszint alatt sem helyezhető el.
3. A várterület közcélú megközelítésének elősegítése érdekében a védőművekhez (várfalakhoz) illeszkedő gyalogosfeljárók, illetve közlekedők kialakítása megengedett.
4. A Vár alatti pincerendszer megközelítését elősegítő közterületi lejáratok kialakítása megengedett.
d) Tetőtérbeépítés
1. A tetőtérbeépítéssel kapcsolatos tilalmakat és korlátozásokat a szabályozási tervlap tartalmazza.
2.[207] A megengedett tetőtérbeépítés feltétele
- A beépítés nem változtathatja meg az épület homlokzat-magasságát és a tetőidom hajlásszögét.
- A tetőablakok a megengedett kivételektől eltekintve közterületről nem látszódhatnak.
- A részleges tetőtérbeépítés csak a hasznosítható teljes tetőtérre készített koncepció ütemeként valósítható meg.
- Intézmény tetőtéri beépítése csak az esetben megengedett, ha az funkció-bővüléssel vagy új használó megjelenésével nem jár együtt. E beépítéseket a vári területek túlterhelésének megakadályozása érdekében korlátozni lehet, illetve a közellátás javítása érdekében feltételekhez lehet kötni.
3.[208]az övezetben a tetőterek csak egy szintben építhetők be.
4.[209] A megengedett beépítések feltétele a teljes épületről részletes építésztörténeti, és művészettörténeti dokumentáció készítése.
e) Homlokzatmagasság
1. A területen a meglévő épületek homlokzat- és gerincmagassága nem változtatható meg.
2. Meglévő épület részleges vagy teljes bontása esetén az új (átalakított) épület homlokzatmagassági és gerincmagassági értékeinek jellemzően meg kell egyezniük a bontott épület(rész) megfelelő magassági értékeivel.
3.[210] A meglévő épület bontásával kialakítható új épületnél a homlokzatmagasság és gerincmagasság értékeit a környezethez megfelelőbb illeszkedés biztosításával kell meghatározni. A homlokzat-, illetve gerincmagasság értékei ez esetben sem térhetnek el 1,5 méternél jobban az eredeti (bontott) épület megfelelő értékeitől.
4. A szabályozási tervlapon jelölt üres beépíthető ingatlanok magassági értékeit a szabályozási terv, illetve a tömbökre vonatkozó előírások tartalmazzák.
f)[211] Beépítettség
1. A beépített ingatlanok meglévő beépítettsége még részleges vagy teljes bontás esetén sem növelhető - kivéve a szabályozási tervlapon jelölt, illetve az egyedi előírásokban meghatározott esetekben és mértékben.
2. a szabályozási terven lehatárolt területen
- közterület felett az egyéb jogszabályban előírt űrszelvények biztosításával maximum 6 méter széles és egy szintes épületrész helyezhető el
- közterület, útterület alatt az épületrész csak úgy alakítható ki, ha a közművek elhelyezése, cseréje, javítása, illetve üzemeltetése biztosítható.
g) Szintterület
A beépített ingatlanok meglévő szintterülete csak az alábbi esetekben növelhető:
1. megengedett tetőtérbeépítés esetén,
2. meglévő pincék, illetve ingatlanhoz tartozó üregek felhasználása esetén,
3. ha az egyedi előírások az épület meghatározott bővítését lehetővé teszik,
4. meglévő épület bontása esetén az új épület szintterülete csak az alábbi esetekben és módon haladhatja meg a jelenlegi értékeket:
- az egyedi előírások között meghatározott nagyság eléréséig,
- azzal az arányos értékkel, amely a környezethez történő illeszkedés érdekében megengedett növekedésből adódik,
- A terepszint alatt, a meglévő és megmaradó szintek használatához szükséges mértékben.
h) Az épített környezet védelme
1. Az övezetben bármilyen terepszint alatti munkát - a közműhálózat javítása, cseréje, valamint a kertészeti munkák kivételével - csak a régészeti kutatások végrehatását követően és az abban foglaltak figyelembe vételével lehet végezni.
2. Terepszint alatti építési munka, illetve a meglévő épület terhelési viszonyait megváltoztató építési tevékenység csak a telek előzetes üregfeltárását követően és arra tekintettel végezhető.
3. Az épületek homlokzatán, illetve a közterületről látható kapualjaiban árubemutatás nem megengedett.
4. Átépítéssel járó földszinti funkcióváltás csak falkutatás által igazolt esetben megengedett.
5.[212]
6. Az eljáró szakhatóság a területen meglévő nem védett épületek átalakítása, funkcióváltása esetében is előírhatja az egész épületre kiterjedő tudományos dokumentáció készítését és ehhez régészeti, illetve művészettörténeti falkutatás végrehajtását.
7.[213]
8.[214]
i) Közlekedés
1. A területen építési telken belül új parkolóhely terepszinten nem létesíthető.
2. A terület gépjárművel történő megközelítését és a felszíni parkolást az önkormányzat korlátozhatja és feltételekhez kötheti.
3. A Kapisztrán téren meghatározott időre szóló ideiglenes parkolás – az érintett szakhatóságok egyetértésével – engedélyezhető.
j)[215]
151. tömb (Országház u. - Anjou bástya (6632 hrsz) - Bécsi kapu tér - Petermann bíró u.)
- Országház u. 33. (6631 hrsz.)
A telek maximális beépíthetősége 86%
- megengedett terepszint feletti bruttó szintterületi mutató: 4,8%
- Hmax és Gmax a szemközti 6635/1 hrsz. ingatlan megfelelő értékénél 1,5 méterrel magasabbra nem nyúlhatnak.
- Országház u. 31. (Petermann bíró u. 9.sz.) 6630 hrsz. a teleknek az Országház u. 33.sz. 6631 hrsz. telekkel szomszédos mintegy 6 méteres, utólagos beépítéssel elfoglalt sávjában az új beépítés akár emeltszintek létrehozásával is megengedett – a városképi csatlakozás érdekében. Az illeszkedés mértéke a 0,8 m értéket is túllépheti.[216]
152/A tömb (Tóth Á. sétány - Anjou bástya (6632 hrsz) - Országház u. - Kapisztrán tér)
a) Országház u. 34. (6635/2 hrsz.)
1. telek maximális beépíthetősége 88%
2. megengedett terepszint feletti bruttó szintterületi mutató : 4,6
3. Hmax és Gmax a 6635/1 hrsz. ingatlan megfelelő értékénél 1,5 méterrel magasabbra nem nyúlhatnak
152/B tömb (Kapisztrán tér 6638 hrsz)[217]
153. tömb (Babits sétány - Babits köz - Táncsics M. u. - Bécsi kapu tér)
154. tömb (Babits sétány - Erdélyi bástya 6546 hrsz - 6542 hrsz közterület - 6541 hrsz - Babits sétány - Ibolya u. - Táncsics M. u. - Babits köz)
155. tömb (Babits sétány - Szentháromság tér - Hess András tér - Ibolya u.)
156. tömb (Szentháromság tér)
157. tömb (Keleti várfal - Dísz tér - Tárnok u.- Szentháromság tér)
a)[218]
b) Dísz tér 2. (6516 hrsz.)
1. a telek maximális beépíthetősége 70%
2. a beépítés abszolút magassága sehol sem haladhatja meg a Dísz tér mentén megengedett magasság értékét
158. tömb (Táncsics M. u. - Hess András tér - Fortuna u.- Bécsi kapu tér)
159. tömb (Bécsi kapu tér - Kard u. - Országház u. - Petermann bíró u.)
Országház u. 21. 6612 hrsz.
Országház u. 23. 6614 hrsz.
Országház u. 25. 6615 hrsz.
telkek utcai frontján betekintést akadályozó kerítés nem helyezhető el.
160. tömb (Fortuna u. - Fortuna köz - Országház u.- Kard u.)
A telek maximális beépíthetősége, szintterülete és magassági értékei az OMVH 32746/3/96(97.1.9.) sz. engedélyében foglaltak szerint megengedettek.
161. tömb (Hess András tér - Szentháromság tér - Országház u. - Fortuna köz)
Szentháromság tér 6. (Hess András tér 4-5.) (6590 hrsz.)
a telken álló főépület akár részleges felújítását vagy funkcióváltását csak az egész tömbre készítendő funkcióvizsgálat, illetve rehabilitációs terv figyelembevételével lehet végrehajtani. E tervben biztosítani kell az eredeti építészeti arculat megőrzését, illetve visszaállítását, a rendelkezésre álló szintterületek ésszerű és koncepciózus felhasználását. A jelenlegi funkciók megváltoztatása esetén az épületben csak kultúrát, idegenforgalmat, illetve közellátást szolgáló új funkciót lehet elhelyezni.
[219]162. tömb (Országház u. - Kapisztrán tér - Úri u. - Dárda u.)
Országház u. 32. (Úri u. 49-53.) (6641/1 hrsz.)
1. a 6641/1 hrsz-ú telek és a 6639/2 hrsz-ú telek közötti telekhatárrendezést az örökségvédelmi szempontok figyelembe vételével kell végrehajtani
2. a 6639/2 hrsz-ú telek telekhatárrendezés utáni területén a közterületekre vonatkozó rendelkezéseket kell alkalmazni
3. az épületek tetőtere egy szintben beépíthető
4. a szintterületi mutató legfeljebb 5,5 m2/m2 lehet
5. az u.n. „Szerecsen-ház” udvara legfeljebb a párkány magasságában egy szintben üvegtetővel lefedhető
6. terepszint alatti beépítés a telek területén bárhol kialakítható
7. a területen a KÉSZ 9.§, 11.§, 17.§, 18.§ (1) és (2) bekezdésében, 25.§, 28.§, 30.§ (10) c) pontjában, 63.§ (5) bekezdésében, 67.§ (1) b) 6. pontjában, 67.§ (1) d), h) 7. és i) pontjaiban foglalt rendelkezéseit nem kell alkalmazni.
163. tömb (Országház u. - Szentháromság u. - Úri u. - Dárda u.)
164. tömb (Tárnok u. - Balta köz - Úri u.- Szentháromság u.)
165. tömb (Tárnok u. - Anna u.- - Úri u. Balta köz)
166. tömb (Tárnok u. - Hajadon u. - Úri u. - Anna u.)
167. tömb (Tárnok u. - Dísz tér - Úri u.- Hajadon u.)
168. tömb (Úri u. - Lant u. - Tóth Á. sétány - Kapisztrán tér)
169. tömb (Úri u. - Nőegylet u. - Tóth Á. sétány - Lant u.)
Úri u. 46. (Tóth Á. sétány 29.) (6684/1. hrsz.)
a telken a szabályozási tervlapon jelölt közterület kialakulásáig a közcélú gyalogos átjárást biztosítani kell.
170. tömb (Úri u. - Szentháromság u. - Tóth Á. sétány - Nőegylet u.)
171. tömb (Úri u. - Móra F. u. - Tóth Á. sétány - Szentháromság u.)
172/A. tömb (Dísz tér - Tóth Á. sétány - Móra F. u.)
VK-FV2-Z jelű övezet (Palota negyed)
68.§
(1) VK-FV2-Z jelű övezetek területén, mely kiterjed a Budai Vár déli, a Várfalakkal, illetve a Dísz tér déli határvonalával határolt részére, az építmények kialakítására vonatkozóan a KVÉSZ előírásait az alábbi kiegészítésekkel és eltérésekkel kell alkalmazni.
a) Az övezet területén az építési feltételek SSZT alapján meghatározottak.
b) A terület felhasználása
1 [220]A területen kizárólag a tér szimbolikus jellegéhez, történeti értékeihez illeszkedő államigazgatási- és közintézmények, továbbá múzeumi funkciók és régészeti bemutató terek helyezhetők el.
2 Önálló parkolóház az övezet területén nem létesíthető.
3. [221]A területen meghatározott homlokzatmagassági és gerincmagassági értékektől nem lehet eltérni.
4. [222]a területen megengedett beépítés előtt a létesíthető épületek városképi megjelenésének, illeszkedésének és építészeti minőségének optimalizálása érdekében – külön jogszabály eltérő rendelkezése hiányában - kötelező építészeti pályázatot kell lebonyolítani.[223]
5. [224]A KVÉSZ 30. § (1)d) pontja az övezetben nem alkalmazható.
6. [225]
7. [226]A volt Karmelita kolostor épületében (6460 és 6459 Hrsz.) állami reprezentáció mellett ehhez tartozó szállásfunkció is kialakítható.
c) Tetőtérbeépítés
A területen létesíthető új épültek tetőtérbeépítése a szabályzat keretei között megengedett.
d) Homlokzatmagasság
Az övezet területén az építmények magasságát a tömbökre vonatkozó előírások szerint kell meghatározni.
e) [227]Beépítettség
1. Az övezet területén a beépítettséget az egyes tömböknél meghatározott értékekkel kell figyelembe venni.
2. a szabályozási terven lehatárolt területen
- közterület felett az egyéb jogszabályban előírt űrszelvények biztosításával maximum 6 méter széles és egy szintes épületrész helyezhető el
- közterület, útterület alatt az épületrész csak úgy alakítható ki, ha a közművek elhelyezése, cseréje, javítása, illetve üzemeltetése biztosítható.
f) Szintterület
Az övezet területén a legnagyobb szintterületet az egyes tömböknél meghatározott értékekkel kell figyelembe venni.
g) Közlekedés
1 A Csikós udvar területén meghatározott időre szóló ideiglenes felszíni parkolás - az érintett szakhatóságok egyetértése esetén - megengedhető.
2 Szint alatti gépkocsitárolók övezeten belülről történő megközelítését csak műszaki szükségességből az illetékes szakhatóságok egyetértésével, forgalomtechnikai tervvel igazoltan lehet kialakítani.
3 A terület gépjárművel történő megközelítését és felszíni parkolását az önkormányzat korlátozhatja és feltételekhez kötheti.
4. Az esetben, ha a Palota-területen értékvédelmi, régészeti vagy honvédelmi okok miatt az adott telken nem hozható létre a jogszabályban előírt új parkolószám, a parkoló a várfalakon kívül az azokhoz csatlakozó nyugati területsávban, terepszint alatt alakítandó ki.
A parkolóból közvetlen gyalogos kapcsolatot kell biztosítani a Dísz tér és a Szent György tér közhasználatú területeihez is. A kapcsolatok számát úgy kell kialakítani, hogy a használók csak a legszükségesebb ideig vegyék igénybe közlekedés céljára a parkoló területét.
A Palota út és a Várfal közötti Z-KP-KP-1 övezet területére vonatkozóan telek alakítandó.[228]
h) [229]
i) Zöldfelületek, tereprendezés
1 Az övezetben a meglévő közterületi terepszint-magasságokat csak a közterület megfelelő üzemeltetéséhez szükséges legkisebb mértékben lehet megváltoztatni.
2 A Várfalak mentén a közterületek járószintje a Várfalak felső síkjához mérten 80-100 cm-rel lejjebb kell, hogy essék.
3 A Várfal mentén telepítendő fasorok távolsága a Várfaltól egységesen 5 m, az ültetési tőtávolság 7 m.
4 A területen ültethető fák fajtájának meghatározásánál elsődleges szempont a környezettűrő képesség, valamint az, hogy a fa lombozata a környezetben álló épületek városképi megjelenését károsan ne érintse (csak korlátozottan takarja).
(2) A szabályzatot az alábbi kiegészítésekkel és eltérésekkel kell alkalmazni.
174. tömb (Dísz tér – Szent Gy. u. – Szent Gy. tér – Palota terület 6452/1. hrsz. – Várfalak)
a) A terület beépítéséhez a szabályozási tervlapon meghatározott építési telket kell kialakítani.
b) E telken belül a meghatározott 3 építési hely méreteit a szabályozási tervlap tartalmazza.
c) Az építési helyek közötti területsávon közcélú gyalogos átjárást kell biztosítani.
d) Az építési helyek külön-külön is beépíthetők.
e) A területen új épület létesítése csak a Hunyadi J. és Palota út Vár területét érintő szakasza korszerű forgalmi kapcsolatának megteremtésével, (turista- és buszforgalom) valamint az adott létesítményhez szükséges új szint alatti parkolószám létesítésével egyidejűleg vagy azt követően megengedett. Ettől a sorrendtől az Önkormányzat érdekében el lehet térni.
f) A szabályozási tervlapon meghatározott építési helyek bármelyikének beépítésére csak a határoló közterületek, így a Szent Gy. tér végleges kialakításával egyidejűleg kerülhet sor (közművek, végleges térburkolat, kertészet, közvilágítás, utcabútorzat).
g) Az egyes építési helyek legnagyobb beépítettsége 80%. Az udvarterület egy szintben lefedhető.
h) Az építési helyek megengedett maximális szintterületi mutatója az északi és középső építési hely esetében 2,9, a déli építési hely esetében 3,
i) Az építési helyeken létesíthető beépítés megengedett homlokzat- és gerinc-magassága
1. az északi helyen
- homlokzat magassága: Bf. 170,5 m és Bf. 172 m,
- gerinc magasság: Bf. 178,5 m és Bf. 180 m
érték közé kell, hogy essen
2. a középső építési helyen
- homlokzat magasság: Bf. 172,5 m és Bf. 173,5 m,
- gerinc magasság: Bf. 180 m és Bf. 181 m
érték közé kell, hogy essen
3. a déli építési helyen
- homlokzati magasság: Bf. 171 m és Bf. 172 m,
- gerincmagasság: Bf. 177 m és Bf. 178 m
érték közé kell, hogy essen.
j) Az új épületeknél alkalmazható minimális szintmagasságok a következők:
- földszint: legalább 4,5 m,
- emeletszint: legalább 3,5 m.
k) A tetőtér csak egy használati szinttel építhető be.
l) [230]
m) Az új épületek közterületről látható homlokzatait a Tóth Árpád sétányon kialakult épülethomlokzat-szélességhez igazodva építészetileg tagolni kell. E tagolások száma az északi tömb esetén legalább 3, a középső tömb esetén legalább 2, a déli tömb esetében legfeljebb 2.
n)[231]
o) Az épületek külső homlokzatain és tetőzetén csak a hely karakteréhez igazodó, igényes építési anyagokat lehet alkalmazni.
p)[232]
r) A telek alatti terület a terepszint alatt csak két szintben építhető be, itt csak a telek területével azonos nagyságú parkolóterület alakítható ki.
s.[233]A tömbben megengedett építés feltétele továbbá az összes építési helyre vonatkozó funkciók végleges megállapítása és az itt kijelölt három építési hely egyidejű, illetve egymáshoz közvetlenül kapcsolódó beépítése.
t) A volt Teleki palota helyén létesülő új épület látványa megegyezhet az eredeti palota klasszicista stílusú látványával[234]
175. tömb (Szent Gy. u. - Dísz tér - Színház u. - Szent Gy. tér)
a) A terület beépítéséhez a szabályozási tervlapon meghatározott építési telket kell kialakítani.
b) E telken belül az építési hely méreteit a szabályozási tervlap tartalmazza.
c) A területen új épület létesítése csak a Hunyadi J. u. és Palota út Vár területét érintő szakasza korszerű forgalmi kapcsolatának megteremtésével (turista- és buszforgalom), valamint az adott létesítményhez szükséges új szint alatti parkolószám létesítésével egyidejűleg vagy azt követően megengedett. Ettől a sorrendtől az Önkormányzat érdekében el lehet térni.
d) A szabályozási tervlapon meghatározott építési hely beépítésére csak a határoló közterületek, így a Szent György tér végleges kialakításával egyidejűleg kerülhet sor (közművek, végleges térburkolat, kertészet, közvilágítás, utca bútorzat).
e) A telek legnagyobb beépítettsége 80%. Az udvarterület egy szintben lefedhető.
f) A telek megengedett maximális szintterületi mutatója 2,9.
g) A megengedett beépítés homlokzat- és gerinc-magassága
1. homlokzat magasság: Bf. 176,5 m és Bf. 178 m,
2. gerinc magasság: Bf. 183 m és Bf. 184,5 m
érték közé kell, hogy essen.
h) Az új épületnél alkalmazható minimális szintmagasságok a következők:
1. földszint: legalább 4,5 m,
2. emeletszint: legalább 3,5 m.
i) A tetőtér csak egy használati szinttel építhető be.
j) [235]
k) [236]
l) Az épület külső homlokzatain és tetőzetén csak a hely karakteréhez igazodó, igényes építési anyagokat lehet alkalmazni.
m) A tömb alatti terület a terepszint alatt maximum két szintben építhető be.
n)[237]
o)[238]
176. tömb (Várfalak - 6452/1 hrsz. Palota terület északi határvonala)
1. A Palota épület kupolája és tömege a Hausmann kori állapotnak megfelelően átépíthető, illetve visszaépíthető.[239]
2. A Palota épület Hausmann után épített szárnyrésze (volt Munkásmozgalmi illetve Ludwig múzeum része) elbontható.[240]
3. A volt Lovarda épület a legutolsó, bontás előtti architektúrával az eredeti helyszínen és méretekkel visszaépíthető.[241]
[242]177. tömb (Szent György tér (6456/1 hrsz.) – Színház utca – Keleti várfal, 6458, 6515 hrsz.)
a) A „Sándor Palota” – 6457 hrsz. – érintett homlokzati szakaszain a történetileg igazolt épületrészek visszaépíthetők.
b) A Karmelita kolostor – 6460 hrsz. – és Várszínház – 6459 hrsz – telkén
1. közintézmények épületei, igazgatási épületek, irodaépületek, szálláshely-szolgáltató épületek, terepszint alatti parkoló-építmények, valamint az épületek funkcióit kiszolgáló és a funkciókhoz kapcsolódó kiegészítő funkciójú épületek, épületrészek és rendeltetési egységek helyezhetők el;
2. a területen
- a hrsz 6459 és 6460 hrsz-ú telkek egyesíthetők;
- a legnagyobb beépítettség 80% lehet;
- a megengedett legnagyobb szintterületi mutató 2,9 m2/m2 lehet;
- a Karmelita kolostor udvara egy szintes épülettel, épületrésszel, a belső homlokzathoz csatlakozó építési helyen belül beépíthető;
- a Karmelita kolostor udvara lefedhető;
- zöldfelületet nem kell kialakítani, de a terület legalább 5%-án növényzettel fedett területrészt (tetőkertet) kell létesíteni;
3. a Szabályozási Tervben meghatározott építési helyen
- új beépítés létesíthető, melynek legnagyobb homlokzat-, párkány- és gerincmagassága nem haladhatja meg a Karmelita kolostor kialakult magassági értékeit;
- az új épület a terepszint alatt és a terepszint felett összeköthető a Karmelita kolostor épületével;
- a tetőtér csak egy használati szinttel építhető be;
- az épület külső homlokzatain és tetőzetén a hely jelentőségéhez, városképi kiemelt szerepéhez illeszkedő minőségű, igényes építési anyagokat kell alkalmazni;
4. a Szabályozási Tervben meghatározott terepszint alatti építési helyen
- parkoló, garázs elhelyezhető;
- a terepszint alatt, a Várfalak védelme, állékonyságának biztosítása érdekében létesíthető terepszint alatti műtárgy a Várfalak védelmére szolgáló részének, a terepszint alatti parkolónak (garázsnak) és az ahhoz kapcsolódó területeknek a szintterületét a szintterület számítása során figyelmen kívül kell hagyni.
- a terület a terepszint alatt legfeljebb két szintben építhető be; az előírástól kizárólag műszaki szükségességből (mérnökgeológiai, szerkezeti okokból szabad eltérni);
5. a területen a KÉSZ 11.§, 17.§ (2) bekezdésében, 18.§ (1) bekezdésében, 18.§ (2) bekezdésében, 25.§, 27.§, 28.§, 30.§ (3) d) pontjában, 30.§ (6) a) 4. pontjában, 30.§ (7) e), f), i) pontjaiban, 35.§ (3) bekezdésében, 36.§ (4) bekezdésében, 36.§ (6) bekezdésében, 36.§ (8) bekezdésében, 63.§ (5) bekezdésében, 68.§ (1) b) 1. és 7. pontjaiban, 68.§ (1) g) 4. pontjában foglalt rendelkezéseit nem kell alkalmazni.
VK-KP-1 jelű övezet
69.§
(1) Az övezet területén a BVKSZ-Z-KP keretövezetében meghatározott funkciók helyezhetők el.
(2) Az övezetek területén az építmények kialakítására vonatkozóan a KVÉSZ előírásait az alábbi kiegészítésekkel és eltérésekkel kell alkalmazni.
a) A beépítés megengedett mértékén belül az épületek által elfoglalt terület az összterület 1 %-át,
b) a közhasználat elöl elzárt terület az összterület 10 %-át
nem haladhatja meg,
c) a terepszint alatti beépítés esetén az előírt talajtakarás minimum 2.5 m.
34/A TÖMB (Batthyány tér - Fő u. - Csalogány u. - Bem rkp.)
157. tömb (Keleti várfal – Dísz tér – Tárnok u. – Szentháromság tér)
VK-KP-2 jelű övezet
69/A.§[243]
(1) Az övezet területén a BVKSZ-Z-KP keretövezetében meghatározott funkciók helyezhetők el.
(2) Az övezetek területén az építmények kialakítására vonatkozóan a KVÉSZ előírásait az alábbi kiegészítésekkel és eltérésekkel kell alkalmazni.
a) a közhasználat elöl elzárt terület az összterület 10 %-át nem haladhatja meg,
b) a terepszint alatti beépítés esetén az előírt talajtakarás minimum 2.5 m.
157. tömb (Keleti várfal – Dísz tér – Tárnok u. – Szentháromság tér)
VK-1-Z JELŰ ÖVEZET
69/B. § [244]
1.) Az övezetben a területfelhasználás és beépítés (átépítés) feltétele:
a.) Az övezetnek megfelelő telek kialakítása, amely tovább nem osztható
b.) A 7619/8 hrsz. telek KV-IK-1 övezetbe kerülő északi egységén a kétszintes területfelhasználás kialakítása
c.) a 7619/8 hrsz. telek KV-IK-1 övezetbe eső részén a METRO-hoz és a vasúti területekhez csatlakozó, legalább 700 férőhelyes közparkoló (P+R) és annak a Nagyenyed u. és Alkotás u. irányából történő megközelítését is biztosító közlekedési rendszere kialakítása.
d.) A talajszennyezettség mentesítése.
2.) Az övezet beépítése zártsorú (a vasúti beépítéshez csatlakozó).
3.) A beépítés tömegét és homlokzati megjelenését a KVSZ 18.§-ában meghatározott kötelező építészeti pályázat figyelembevételével kell meghatározni.[245]
4.) 128/A TÖMB (Krisztina krt. – Alkotás u. – 7619/8 hrsz. Déli pu. területek)
a.) Az övezetben a METRO érkezési szintjét (123,5 m B.f.) valamint az ez alatti első használati szintet legalább 60 %-ban korlátozás nélküli közhasználatú területként kell kialakítani.
Itt kell biztosítani:
- a tömegközlekedési eszközök (villamos, autóbusz, METRO) megállói közötti gyalogos forgalom útvonalait (aluljárók, lépcsők, mozgólépcsők, stb.),
- a tömegközlekedési eszközök megállói és a Déli pu. utasforgalmi tereinek kapcsolatait és
- min. 60 szgk. számára időszakos megállási és várakozási területet, elsősorban taxi és „rent a car” szolgáltatás részére,
- a közcélra szolgáló parkolók és a METRO felszíni bejárata közötti közterület jellegű kapcsolatot.
b.) A tömbben létesíthető beépítés magassága nem léphet túl az Alkotás u. 7070/7. hrsz. és a Krisztina krt. 7618 hrsz. telkeken meglévő épületek párkány- illetve gerincmagassága által meghatározott, illetve a 144,5 m B.f. feletti magasságot.
5.) A beépítéshez kötelezően előírt parkolóhelyeket telken kívül, csak 500 méteres körzetben KV-IK-1 övezetben lehet biztosítani.
A területfelhasználáshoz szükséges közlekedési kapcsolatokat a térségre kiterjedő forgalomtechnikai vizsgálatok alapján, a szükséges korrekciók végrehajtásával kell biztosítani.
VK-2-Z JELŰ ÖVEZET
69/C §[246]
1.) Az övezetben a területfelhasználás és beépítés (átépítés) feltétele:
a.) a szabályozási tervben (SZT) jelölt telektömbök kialakítása
b.) a szabályozási tervben (SZT) jelölt közcélú közlekedési területek (közterületek) forgalomra alkalmas kialakítása
c.) a tömbökhöz az ott megengedett max. beépítéshez szolgáló közműhálózat (kapacitás) kiépítése
d.) a 7619/8. hrsz. telek KV-IK-1 övezetbe kerülő északi egységén a kétszintes területfelhasználás kialakítása
e.) a 7619/8 hrsz. telek KV-IK-1 övezetbe eső északi egységén a METRO-hoz és a vasúti területekhez csatlakozó, legalább 700 férőhelyes közparkoló (P+R) és annak a Nagyenyed u. és Alkotás u. irányából történő megközelítését is biztosító közlekedési rendszere kialakítása.
f.) a tömbök Alkotás u. menti oldalán környezettűrő, nagylombú fasor telepítése.
g.) a talajszennyezettség mentesítése.
2.) A beépítéshez kötelezően előírt parkolóhelyeket telken kívül csak KV-IK-1 övezetben lehet biztosítani.
3.) A területfelhasználáshoz szükséges közlekedési kapcsolatokat a térségre kiterjedő forgalomtechnikai vizsgálatok alapján, a szükséges korrekciók végrehajtásával kell biztosítani.
4.) Az övezet Alkotás u. menti, Márvány u. és Nagyenyed u. közötti telkeire közterületről közvetlen gépkocsi behajtó nem létesíthető.
5.) Az övezet Alkotás u. menti beépítésénél az épületek homlokzat- és gerincmagassága nem emelkedhet az utca másik oldalán meglévő beépítés megfelelő átlagos magassága fölé. Az így meghatározott magasságok fölé a tömbbelsőkben sem emelkedhet épület, épületrész.
6.) Az övezetben kialakítható legkisebb teleknagyság 1.400 m².
7.) A beépítés az Alkotás u. oldalon zártsorú.
8) A beépítés Alkotás utcai és az ahhoz csatlakozó beforduló részein az épületek passzív akusztikai védelmével kell biztosítani a zajszint megengedett értékre csökkentését.
9.) [247]128/B TÖMB (Alkotás u. – újonnan szabályozott közterületek)
A tömb beépítése csak a teljes területre készült, telekalakítási (osztási) és beépítési tervek alapján, megengedett.
128/C TÖMB (Alkotás u. – újonnan szabályozott közterületek)
A tömb beépítése csak a teljes területre készült, telekalakítási (osztási) és beépítési tervek alapján, megengedett.
128/D TÖMB (Alkotás u. – újonnan szabályozott közterületek)
A tömb beépítése csak a teljes területre készült, telekalakítási (osztási) és beépítési tervek alapján, megengedett.
128/E TÖMB (Alkotás u. – újonnan szabályozott közterületek)
A tömb beépítése csak a teljes területre készült, telekalakítási (osztási) és beépítési tervek alapján, megengedett.
intézményterület
i jelű övezetek
70.§
(1) Az övezetek területén a telkekre és az építményekre vonatkozó jellemzőket a 2. számú táblázat tartalmazza.
2. számú táblázat
Övezet jel | Beépítettség | Szintterületi határérték(1) | Legkisebb zöldfelület | Megengedett legnagyobb magasság | ||||
terepszint | engedmény | határérték | engedmény | építmény-magasság | homlokzat-magasság | |||
alatt | felett | |||||||
I-V1-Z | 100 | 75 | 5 | 3,5 | +0,3 | 20 | kialakult | kialakult |
I-V2-Z | 100 | 60 | 5 | 2,25 | +0,25 | 20 | kialakult | kialakult |
I-V3-SZ | 65 | 35 | 5 | 1 | +0,15 | 35 | meghat.(2) | 9,5 |
I-1-Z [248] | 100 | 60 | - | 3,0 | - | 25 | 22,0* | 25,0 |
[249]I-KP | 5 | 10 | - | - | - | 75 | 4,5 | 4,5 |
(1) RSZT esetén szintterületsűrűség
(2) közterület felöli homlokzatmagasság által meghatározott
* de min. 12,0
(2) Az övezetek területén az I-KP övezet kivételével[250] az alábbi építmények helyezhetők el az övezeti- és az építmények elhelyezésére és kialakítására vonatkozó előírások és a KÉSZ előírásainak keretei között:
a) közintézmények épületei,
b) igazgatási épületek,
c) irodaépületek,
d) szálláshely-szolgáltató épületek,
e) szolgáltatás épületei,
f) vendéglátás épületei,
g) egyéb közösségi szórakoztató épületek,
h) sportépítmények,
i) a kutatás-fejlesztés nem üzemi technológiájú építményei,
j) legfeljebb 2.500 m2 bruttó szintterületű kiskereskedelmi célú épület,
k) lakóépületek,
l) terepszint alatti parkoló-építmény, valamint
n) az azokat kiszolgáló és kiegészítő funkciójú épületek helyezhetők el, amennyiben azok terhelési határértéke nem haladja meg az intézményterületekre vonatkozó egyéb jogszabályban rögzített előírt határértékeket.
o) I-KP övezetben csak a vendéglátás szolgáltatás és terepszint alatti parkoló építmény épületei helyezhetők el.[251]
(3) Az övezetek területén ipari épületet, raktárépületet elhelyezni, meglévő épület használati módját e célra megváltoztatni nem lehet.
[252]Kivételt képez az I-1-Z övezet, ahol a vasútüzemi területhez Városrendezési hatástanulmány (VRHT) alapján e funkciók is elhelyezhetők.
(4) [253]A telkek minden 100 m2-e után legalább egy fa telepítéséről és fenntartásáról kell gondoskodni.
Amennyiben a telek adottságai, vagy más ok miatt az előírt számú fa kihelyezése a telken belül nem biztosítható, lehetőleg az érintett ingatlan környezetében kell a pótlást telepíteni.
(5) [254]Az övezetben a területfelhasználás és beépítés (átépítés) feltétele:
a.) az övezethez telek alakítása,
b.) az övezet maximális beépíthetőségéhez szolgáló közműhálózat (kapacitás) kiépítése,
c.) a 7619/8 hrsz.KV-IK-1 övezetbe kerülő déli egységén a kétszintes területfelhasználás kialakítása,
d.) a Mészáros u. és a vasútüzemi területek között azok használatához igazodó, az élet- és vagyonvédelmi előírásoknak megfelelő összeköttetés (megközelítés) időkorlátozás nélküli biztosítása.
e.) a közúti hálózat és a KV-IK-1 övezet déli egysége második (felső) területfelhasználási szintje használatához szükséges, a KV-IK-2 övezetben biztosítható közúti kapcsolatok kialakítása,
f.) a Mészáros utcai oldalon környezettűrő nagylombú fasor kialakítása,
g.) a talajszennyezettség mentesítése.
(6) Az övezetben telkek alakítása a KÉSZ módosítása nélkül megengedett.[255]
(7) Az övezet beépítése csak a teljes területre készült telekalakítási (osztási) és beépítési tervek alapján meghatározottak szerint megengedett.[256]
A terveknek tartalmazniuk kell a terület-felhasználáshoz és beépítéshez előírtak megoldását is.
(8) A területfelhasználáshoz szükséges közlekedési kapcsolatokat a térségre kiterjedő forgalomtechnikai vizsgálatok alapján, a szükséges korrekciók végrehajtásával kell kialakítani.
(9) A beépítés módja: jellemzően zártsorú.
(10) Az övezetben kialakítható legkisebb teleknagyság 2.500 m²
(11) A megengedett magassági értékek a sínkorona szintjétől (128,3 Bf) számítandók.
A megengedett új beépítés homlokzat- és gerincmagassága nem lépheti túl a Mészáros u. felső szintjén meglévő (illetve megengedett) beépítés megfelelő átlagos magassága által meghatározott síkot.
I-V1-Z jelű övezet
71.§
(1) I-V1-Z jelű övezetek területén az építmények kialakítására vonatkozóan a KVÉSZ előírásait az alábbi kiegészítésekkel és eltérésekkel kell alkalmazni.
143. TÖMB (Döbrentei tér - Rudas fürdő és környéke)
a)[257] A tömbbe az 5539,
5540
(5541)
5542
(5544) hrsz. telkek tartoznak.
1. a telkek megengedett beépítésénél a szabályzat engedményes értékeivel növelhető.
2. a felső rakpart szabályozási tervlapon megjelölt ± 0,00 szintjénél 11 m-rel magasabban fekvő sík fölé az épület párkányvonala
3. 14,5 m-rel magasabban fekvő sík fölé a gerincvonala nem nyúlhat, kivéve az épület Dunával párhuzamos középső szakaszán, ahol ezek az értékek 4-4 m-rel túlléphetők.
4. az épület lapostetős részei csak járható terasztetőként létesíthetők
5. a meglévő fürdő épület megengedett bővítésére csak a teljes épületre kiterjedő rehabilitációs tervek alapján kerülhet sor.
6. a bővítéssel egyidejűleg – maximum 300 m-es gyaloglási távolságon belül – gondoskodni kell a teljes beépítésre előírt parkolóhelyek kialakításáról
7. a szabályozási tervlapon jelölt Duna felé irányuló közcélú gyalogoskapcsolat az épület hosszában bárhol kialakítható.
b) Az (5544) hrsz-ú közterület szabályozás után fennmaradó területét:
1. közparkként, felületének legalább 30 %-át növényzettel fedetten kell kialakítani és fenntartani,
2. e területen földszintes max. 50 m2-es ivókút céljára szolgáló pavilon létesíthető,
3. e terület alatt az előírások szerint terepszint alatti parkoló a meglévő értékes növényzet és a gyógyforrások megóvása mellett létesíthető,
4. teremgarázs létesítése esetén az (5544) hrsz új telek a KVSZ módosítás nélkül - az 5539, 5540, (5541) 5542 hrsz új telkek egyesítése után kialakuló telekkel egyesíthető,
5. a terepszint alatti beépítés esetén a szabályozási tervlapon jelölt kelet-nyugati irányú gyalogos kapcsolatot szint alatt kell kialakítani.
(2)[258] 144. TÖMB (Hegyalja u.-Kereszt u.-Krisztina krt.)
Hadnagy u.- Rác Fürdő (5973 hrsz.)
a) Az övezethez annak határaival a beépítést megelőzően önálló telek alakítandó ki. E telek további megosztása, a megosztott telkek összevonása a szabályzat módosítása nélkül megengedett.
b) A Siklóhoz, illetve állomásaihoz a KÉSZ módosítása nélkül telkek alakíthatók.
c) A területfelhasználás és építés további feltétele:
1. a Rác fürdő teljes felújítása és rekonstrukciója,
2.[259]
3.[260]
4. az új beépítés funkciója csak fürdő, illetve idegenforgalmi szállás funkció lehet,
5. a létesítéssel egyidejűleg a parkterületet kiszolgáló nyilvános illemhely pótlásáról a megszűnő illemhely 200 m-es körzetében gondoskodni kell,
6.[261]
7. az épület részben lapostetővel is kialakítható, a lapostetős részek csak járható tetőként, vagy parkosított zöldtetőként alakíthatók ki,
8. a Gellérthegy alatti közműalagút megközelítését biztosítani kell,
9. a telek beépítése esetén a szabályozási tervlapon jelölt, a Hegyalja útról a (5692/2 hrsz.) zöldterületre vezető közcélú gyalogos átjárás kialakítandó.
I-V2-Z jelű övezet
72.§
(1) I-V2-Z jelű övezetek területén az építmények kialakítására vonatkozóan a KVÉSZ előírásait az alábbi kiegészítésekkel és eltérésekkel kell alkalmazni.
121. TÖMB (Mészáros utca - Tibor utca - Tigris utca - Derék utca – Zsolt utca)
Funkcióváltás esetén jelentős gépkocsiforgalmat vonzó rendeltetésű létesítmény nem helyezhető el.
I-V3-SZ jelű övezet
73.§
(1) I-V3-SZ jelű övezetek területén az építmények kialakítására vonatkozóan a KVÉSZ előírásait az alábbi kiegészítésekkel és eltérésekkel kell alkalmazni.
113/A TÖMB (Fém utca - Naphegy tér - Orvos utca - Lisznyai utca)
a) A meglévő épületek részleges vagy teljes bontása esetén is csak az övezetben megengedett beépítés hozható létre.
b) Teljes, vagy a meglévő beépítés 50%-át meghaladó bontás esetén az új beépítés csak e tömbre készítendő KSZT alapján történhet.
c) A Fém utca 5-7., Naphegy tér 8., Orvos utca 8-10., Lisznyai u. 17-19. 7342 hrsz. telek jelenlegi beépítése, szintterülete, magassága terepszint felett nem növelhető.
d) Terepszint alatt csak gépkocsitároló célú bővítés engedhető meg.
I-1-Z JELŰ ÖVEZET
73/B.§[262]
1.) I-1-Z jelű övezetek területén az építmények kialakítására vonatkozóan a KVSZ előírásait az alábbi kiegészítésekkel és eltérésekkel kell alkalmazni.
2.) 128/H TÖMB (Mészáros u - KV-IK-1 övezethatár - KV-IK-2 övezethatár)
a.) A közműcsatlakozás létesítményeit övezeten belül kell biztosítani,
A terepszint feletti beépítést a Mészáros utca mentén legalább 25 méterenként tagolni kell.
Jelentős zöldfelületű intézményterület
IZ jelű övezetek
74.§
(1) Az övezetek területén a telkekre és az építményekre vonatkozó jellemzőket a 3. számú táblázat tartalmazza.
3. számú táblázat
Övezet jel | Beépítettség | Szintterületi határérték(1) | Legkisebb zöldfelület | Megengedett legnagyobb magasság | |||||
terepszint | engedmény | határérték | engedmény | építmény-magasság | homlokzat-magasság | ||||
alatt | felett | ||||||||
IZ-V3-SZ | 85 | 35(3) | - | 1,5[263] | 50 | meghat. (2) | 9,5 | ||
IZ-K5-SZ | 60[265] | 15 | 5 | 0,6[266] | +0,1 | 60 | meghat. (2) | 7,5 | |
IZ-K7 | 30 | 10 | - | 0,1 | - | 50 | 1,5 (4) | 1,5 (4) | |
IZ- KP-1 | 100 | 2 | - | 2,4 | - | 75 | 3,5 | 3,5 | |
IZ-V2-SZ | 50 | 35 | - | 1,30 | - | 50 | 10,5 | 10,5 | |
(1) RSZT esetén szintterületsűrűség
(2) közterület felöli homlokzatmagasság által meghatározott
(3) lakófunkció esetén 25[267]
(4) [268]
(4*)[269]
(2) Az övezetek területén a hatályos építési szabályok és a KÉSZ keretei között az IZ-KP-1 övezet kivételével az alábbi építmények helyezhetők el:
a) közintézmények épületei,
b) igazgatási épületek,
c) irodaépületek,
d) szálláshely-szolgáltató épületek,
e) szolgáltatás épületei,
f) vendéglátás épületei,
g) egyéb közösségi szórakoztató épületek,
h) sportépítmények,
i) a kutatás-fejlesztés nem üzemi technológiájú építményei,
j) legfeljebb 500 m2 bruttó szintterületű kiskereskedelmi célú épületek,
k)[270]
l) terepszint alatti parkoló-építmények, valamint
m) az azokat kiszolgáló és kiegészítő funkciójú épületek helyezhetők el, amennyiben azok terhelési határértéke nem haladja meg az intézményterületekre vonatkozó egyéb jogszabályban rögzített előírt határértékeket.
(3) Az övezet területén nem helyezhető el
a) 1.500 m2-t meghaladó bruttó szintterületű kereskedelmi célú épület,
b) nagykereskedelmi létesítmény,
c) üzemanyagtöltő állomás.
d)[271]a BVKSZ 5.sz. melléklet A pontban megjelölt területen a lakásfunkció.
(4)[272]A telek minden 100 m2-e után legalább egy fa telepítéséről és fenntartásáról kell gondoskodni. Amennyiben a telek adottságai, vagy más ok miatt az előírt számú fa kihelyezése a telken belül nem biztosítható, lehetőleg az érintett ingatlan környezetében kell a pótlást telepíteni.
(5)[273] Az övezet zártsorú beépítésű területein a KÉSZ 30. § (7) bekezdés f) pontja nem alkalmazandó.
IZ-V3-SZ jelű övezet
75/A.§[274]
(1) IZ-V3-SZ jelű övezetek területén az építmények kialakítására vonatkozóan a KVÉSZ előírásait az alábbi kiegészítésekkel lés eltérésekkel kell alkalmazni.
(2)[275] A telkek minden 100 m2-e után legalább egy fa telepítéséről és fenntartásáról kell gondoskodni.
Amennyiben a telek adottságai, vagy más ok miatt az előírt számú fa kihelyezése a telken belül nem biztosítható, lehetőleg az érintett telek környezetében kell a pótlást telepíteni.
88. TÖMB (Döbrentei u. - Ybl Miklós tér - Várkert rkp. - Fogas u.)
89/A tömb (Váralja u. – 6452/3 hrsz közpark mentén - Várfalak - Északi Cortina fal 14373/2 hrsz - Ybl Miklós tér - Apród u.)
a szabályozási tervlapon szereplő a Vár területére vezető közcélú átjárást, illetve útvonalakat, oda a gyalogos feljutást ki kell alakítani.
a) Ybl Miklós tér 2-6. 6452/2 hrsz
1.[276]
2. a telken új felszín feletti beépítés csak a szabályozási tervlapon jelölt helyen és nagyságban létesíthető. Ezen túlmenően a térszín alatti beépítési lehetőségekhez szükséges felülvilágítók céljára a beépítési kontúr max 8 %-os beépítése megengedett. A felülvilágítók magassága a rendezett terepszinthez képest a 2,0 m-nél nem lehet magasabb
3. a megengedett új felszín feletti beépítés funkciója csak a terület hasznosítását, illetve működtetését szolgálhatja
4. a telken álló lakóépületek tetőtere csak az épületek teljes felújítása esetén építhető be
5 a telek és a telepítmények akár részleges, végleges hasznosításának feltétele a telekhez csatlakozó területen jelölt gloriett és az azt feltáró gyalogsétányok megvalósítása
6 a be nem épített terület max. 40%-a lehet burkolt, a többit növényzettel fedetten kell kialakítani.
7 [277]A bővítés illetve funkcióváltás feltétele a Vári Palota-területekhez vezető nyilvános közlekedési útvonalak, gyalogos kapcsolatok megteremtése.
8 [278]A Duna felé irányuló gyalogos kapcsolat biztosításához felhasználható a terület előtti közterületi sáv alatt meglévő tározó építmény.
131. TÖMB Alsóhegy u. – Hegyalja u. – Berényi u. – Mihály u. – Somlói út)
a) Alsóhegy u. 14-16. 5177/1 hrsz
1. a telken álló épület részleges bontása esetén sem növelhető a beépítés az engedményes értékkel. A terepszint alatt is csak a felszín feletti beépítést közvetlenül szolgáló funkciók helyezhetők el
2. a meglévő beépítés teljes vagy az övezeti határértéknél kisebbre történő részleges elbontása esetén a telek beépíthetőségét erre vonatkozó szabályozási terv (SZT) alapján kell meghatározni.
144. TÖMB [279]
IZ-V2-SZ JELŰ ÖVEZET
75/B.§[280]
(1) IZ-V2-SZ jelű övezetek területén az építmények kialakítására vonatkozóan a KVÉSZ előírásait az alábbi kiegészítésekkel és eltéréssekkel kell alkalmazni.
(2)[281]A telkek minden 100 m2-e után legalább egy fa telepítéséről és fenntartásáról kell gondoskodni. Amennyiben a telek adottságai, vagy más ok miatt az előírt számú fa kihelyezése a telken belül nem biztosítható, lehetőleg az érintett telek környezetében kell a pótlást telepíteni.
(3) A telkekre előírt legkisebb kötelező zöldfelület nem építhető alá.
125. TÖMB (Aladár utca – Galeotti utca – Tigris utca – Hegyalja út)
IZ-K5-SZ jelű övezet
76.§
(1) IZ-K5-SZ jelű övezetek területén az építmények kialakítására vonatkozóan a KVÉSZ előírásait az alábbi kiegészítésekkel lés eltérésekkel kell alkalmazni.
(2)[282] A telkek minden 50 m2-e után legalább egy fa telepítéséről és fenntartásáról kell gondoskodni.
Amennyiben a telek adottságai, vagy más ok miatt az előírt számú fa kihelyezése a telken belül nem biztosítható, lehetőleg az érintett ingatlan környezetében kell a pótlást telepíteni.
108. TÖMB (Naphegy u. - Czakó u. - Hegyalja út)
a) [283]
b) Új beépítésre csak a terület végleges beépítésére vonatkozó terv részeként (ütemenként) kerülhet sor.
IZ-K7-SZ jelű övezet
77.§
(1) IZ-K7-SZ jelű övezetek területén az építmények kialakítására vonatkozóan a KVÉSZ előírásait az alábbi kiegészítésekkel lés eltérésekkel kell alkalmazni.
(2) [284]
(3) A jelenlegi értéket meghaladó megengedett terepszint feletti beépítés csak lapostetős lehet, zöldtetős kialakítással.
(4) [285]A telkek minden 80 m2-e után legalább egy fa telepítéséről és fenntartásáról kell gondoskodni.
Amennyiben a telek adottságai, vagy más ok miatt az előírt számú fa kihelyezése a telken belül nem biztosítható, lehetőleg az érintett telek környezetében kell a pótlást telepíteni.
125. TÖMB[286] (Aladár utca - Galeotti utca - Tigris utca - Hegyalja út)
146. TÖMB (Krisztina krt - (6106) hrsz-ú lépcső - Kereszt u. - Naphegy u.)
a)[287] a szabályozási tervlapon jelzett - a (6112) és a Kőműves lépcső (6106) hrsz.-ú telkeket érintő telekalakítás esetén a szabályozott (6106) hrsz. közterületre benyúló épületrészek bontása kötelező,
b) a létesítményhez a jogszabályban előírt parkolóhelyeket telken belül, vagy 200 m-es gyaloglási távolságon belül legkésőbb a telekalakítással egyidejűleg biztosítani kell,
c) a felszín feletti beépítés tovább nem növelhető,
d) terepszint alatti beépítés nem lehet nagyobb a terület 20 %-nál.
IZ-KP-1 jelű övezet
78.§
(1) Az övezet területén a BVKSZ Z-KP keretövezeteiben megengedett funkciók helyezhetők el.
(2) IZ- KP-1 jelű övezetek területén az építmények kialakítására vonatkozóan a KVÉSZ előírásait az alábbi kiegészítésekkel lés eltérésekkel kell alkalmazni.
81. TÖMB (Váralja u. - Sarló lépcső - Palota út)
a) Váralja u. 16. 7140 hrsz
1. a teleknek a Sarló lépcsővel párhuzamos irányú felosztása, illetve egyesítése a terület ütemezett felhasználása érdekében a szabályzat módosítása nélkül megengedett.
2. a terület térszín alatti beépítésére csak a meglévő felépítmények bontását követően kerülhet sor
3. a terület csak a terepszint alatt építhető be oly módon, hogy a min. 85 cm vastag talajtakaróval fedett beépítés nem nyúlhat a Váralja utcai telekhatáron kialakítandó max. 2,5 m magas támfal felső éle és a Palota úti támfal mentén a Palota út mindenkori szintjénél 4,5 m-rel mélyebben fekvő vonallal meghatározott sík fölé
4. az így kialakított rézsűt közparkként kell kialakítani és fenntartani, azon max 1,0 m magas támfalak alakíthatók ki
5. a felszín fölötti beépítés csak a szint alatti beépítés gépészeti igényeit, valamint a gyalogosközlekedést szolgálhatják. Ezeket a Palota úti támfal mentén kell elhelyezni úgy, hogy alapterületüket a szükséges legkisebb területre kell korlátozni.
Különleges övezetek
79.§
(1) Az övezetek területén a telkekre és az építményekre vonatkozó jellemzőket a 8. számú táblázat tartalmazza.
8. számú táblázat
Övezet jel | Beépítettség | Szintterületi határérték(1) | Legkisebb zöldfelület | Megengedett legnagyobb magasság | ||||
Terepszint | enged-mény | határ-érték | enged-mény | építmény-magasság | homlokzat-magasság | |||
alatt | Felett | |||||||
KV-EN-V1-Z | 100 | 75 | 5 | 3,5 | +0,3 | 15 | kialakult | kialakult |
(1) RSZT esetén szintterületsűrűség
8/b. számú táblázat[289]
Övezet jele | Első területfelhasználási szint | Második területfelhasználási szint- az első területhasználási szint lefedésével keletkező terület* | ||||||
Beépítettség % | Szint- területi határ- érték m²/m² | Megengedett legnagyobb építmény magasság (szint- magasság) | Beépí- tettség % | Szint- területi határ- érték m²/m² | Legkisebb zöld- terület % | Megenge- dett leg- nagyobb építmény magasság | ||
I.szint Alatt felett | II. szinten | |||||||
KV-IK-1 | 60 | 100 | 1,2 | 10,0 | 60 | 1,0 | 25 | 15,0** |
KV-IK-2 | 60 | 100 | 1,5 | 10,0 | 10 | 0,1 | 20 | 4,5 |
* A szabályzatban meghatározott értékek e szinten, illetve e szinttől értelmezendők.
** de max. 153,3 Bf
(2) A KV-EN V1-Z övezet területén a KVSZ előírásait az alábbi kiegészítésekkel és eltérésekkel kell alkalmazni:
a) Az övezet területén kizárólag elektromos alállomás, valamint a tevékenységhez szorosan kötődő, azt kiszolgáló
1. szolgálati lakás,
2. iroda,
3. raktár,
4. járműtároló
helyezhető el.
71. TÖMB (Bugát u. - Logodi u. - Mikó u. - Attila út)
98. TÖMB (Feszty Á. u. - Krisztina krt. - Kuny D. u. - Kosciuszko T. u.)
(3) [290]
128/A TÖMB (Avar u. – Győri u. – Márvány u. 128/B tömb határa – Alkotás u. – Magyar jakobinusok tere – Kosciuszko u. – Déli pu. területe – Kuny u. – Győző u. – Mészáros u. – Hegyalja u.)
a) [291]
(4) [292] Különleges, intézményi funkciókkal vegyes használatú közlekedési Területek
(KV-IK)
a.) Az övezet területén a többszintes területfelhasználás megengedett.
Az övezetek területén a telkekre és a területfelhasználásnak megfelelő építményekre vonatkozó jellemzőket a területfelhasználási szintek szerint a 8/a. számú táblázat tartalmazza.
b.) Területfelhasználási szintek:
I. jelű (első) területfelhasználási szint + 128,30 B.f. (vasúti sínkorona szint)
II. jelű (második) területfelhasználási szint:
Az I. területfelhasználási szint (vasúti terület) lefedésével keletkező első használati szint, max. 138,30 m B.f., min. +133,80 m.B.f.
c.) Az első területfelhasználási szint lefedését szolgáló, a vasúti vágányok feletti áthidaló szerkezetek legalacsonyabb pontja és a vasúti űrszelvény előírásokban meghatározott szabadon tartandó tér legmagasabb pontja között legalább 1,0 m távolságot kell biztosítani. Ettől eltérni csak a Közlekedési Hatóság engedélyével lehet.
d.) Területfelhasználás: az övezetek területén az alábbi létesítmények, épületek helyezhetők el:
1.) I. Területfelhasználási szint:
- vasút üzemi és közlekedési létesítmények
- pályaudvar és létesítményei,
- tömegközlekedési eszközök végállomásai, megállói,
- parkolók,
- továbbá e funkciókat kiszolgáló létesítmények helyezhetők el. (különösen raktárak, irodák, öltözők, járműtárolók, műhelyek, gépészeti ellátó központok és vezetékei).
2.) II. Területfelhasználási szint:
- igazgatási,
- kereskedelmi-szolgáltató,
- szállás jellegű,
- irodai,
- oktatási,
- parkolóház, parkoló,
- sport- és szabadidő,
- vendéglátási,
- közlekedési,
és ezek kiszolgáló létesítményei elhelyezhetők, amennyiben a vasútközlekedésből eredő környezeti hatások a működésükhöz megengedett határértékek alatt tarthatók. (Különösen akusztikai és épület – ill. pályaszerkezet építési eszközökkel.)
e.) Az övezetekben a területfelhasználás és beépítés (átépítés) feltétele
1.) Az övezeteknek megfelelő telek kialakítása,
2.) Az övezeteken a kétszintes területfelhasználás kialakítása,
3.) A 7619/8 hrsz. telek a KV-IK-1 övezetbe eső északi egységén a II. területfelhasználási szinten a METRO-hoz és a vasúti területekhez csatlakozó, legalább 700 férőhelyes közparkoló (P+R) és annak a Nagyenyed u. és Alkotás u. irányából történő megközelítését is biztosító közlekedési rendszer kialakítása,
4.) Az I. és II. területfelhasználási szint megengedett max. beépítéséhez (felhasználásához) szolgáló közműhálózat (kapacitás) kialakítása,
5.) A KV-IK-2 övezet területén, a térség megengedett teljes fejlesztéséhez igazodó közcélú közlekedési rendszer (kapcsolatok) kialakítása,
6.) A talajszennyezettség mentesítése.
f.) Az övezeteken belül telek a KÉSZ módosítása nélkül alakítható.
g.) Építmények elhelyezése, kialakítása:
1.) Az I. területfelhasználási szint úgy alakítandó ki, hogy biztosítsa a II. területfelhasználási szint szabályzatnak megfelelő, rendeltetésszerű használatát, egyebek között azt, hogy a környezeti zaj- és rezgésterhelés értéke a megengedett határértékek alatt maradjon.
2.) [293]A II. területfelhasználási szint beépítése azok a teljes övezetre készült telekalakítási (osztási) és e szintre készült beépítési tervek alapján megengedett.
A terveknek tartalmaznia kell a területfelhasználáshoz és beépítéshez előírtak megoldását is.
h.) Környezetvédelem:
1.) A technológiai vizek, illetve a parkolóterületek vizei csak tisztító (olajfogó, zsírfogó) műtárgyon át vezethetők közcsatornába.
2.) Az övezetben előírt kötelező zöldfelületeket legalább 85 cm termő talajréteggel kell kialakítani.
3.) Az övezetekben 200 m²-ként egy környezettűrő, nagylombú fa telepítéséről és fenntartásáról kell gondoskodni.
A telepítéshez a fák leendő gyökérzetéhez méretezett tárolók (konténerek) is felhasználhatók.
i.) Közlekedés:
1.) A területfelhasználáshoz, építéshez előírt kötelező parkolóhelyeket csak az adott övezeten belül lehet kialakítani.
2.) A kötelezően előírt közparkolók és tömegközlekedési eszközök környezetben fekvő megállói, végállomásai között megfelelően méretezett közhasználatú (közterület jellegű) kapcsolatot kell kialakítani és biztosítani.
j.) Közművek:
1.) Az övezetekben a szabályzatban megengedett fejlesztésekhez kell a közműhálózatot kialakítani, a kapacitást biztosítani.
A közműépítés és fejlesztés során tekintettel kell lenni a meglévő jelentősebb hálózatok (Ördögárok, Alkotás u. főcsatorna) állagára, szükség szerint ezek rekonstrukcióját vagy kiváltását biztosítani kell.
KV-IK-1 JELŰ ÖVEZET
79/B. § [294]
1.) A KV-IK-1 övezet területén a KVSZ előírásait az alábbi kiegészítésekkel és eltérésekkel kell alkalmazni:
128/F TÖMB (Kosciuszkó Tádé u. és meghosszabbított vonala – Győző u. – KV-IK-2 övezethatár – VK-2-Z övezetek határa – VK-1-Z övezethatár)
2.) A vasút személyforgalmi pályaudvarához az alábbi közcélú (közterület jellegű) kapcsolatokat kell biztosítani:
- Közvetlen kapcsolat a METRO-feljáró és a tömegközlekedési eszközök megállóitól (végállomásától)
- A vasúti és a II. területfelhasználási szint között mozgólépcsővel.
- Gyalogos kapcsolat a Nagyenyed u. és Koronaőr köz vonalában.
3.) A vasúti terület Alkotás utcával határos oldalán a földszinten az autóbuszok végállomásának kialakításához 8,0 m széles sávban időbeli korlátozás nélkül közhasználat céljára területet kell biztosítani.
128/I TÖMB (Mészáros u. – Hegyalja u. – Avar u. – KV-IK-2 övezethatára)
a.) A beépítés további feltétele:
- a Bán utca – Tibor utca vonalában az alsó Mészáros utcához közcélú gyalogos és közúti, a Kapitány utca – Nyárs utca vonalában közcélú gyalogos kapcsolat kialakítása,
b.) Az Avar u. 2/b. (Hegyalja u. 27.) 7619/6 hrsz. telken:
- a kétszintes területfelhasználás kialakítása nem kötelező,
- a meglévő telekhatárok nem változtathatók meg.
c.) [295] Az Avar u. 2/b. (Hegyalja u. 27.) 7619/6 hrsz. telken a meglévő lakóépület meglévő tetőterének egyszintes beépítésével a szintterületi mutató túlléphető, amennyiben külön jogszabály a meglévő lakóépület tetőterének beépítését megengedi.
4.) Az övezet Feszty Árpád u. és Kuny Domokos u. közötti határvonalán a II. területfelhasználási szinten megengedett beépítés magassága nem nyúlhat túl e határvonalra fektetett, a tömbbelső felé nyúló 45 fokos síkon.
KV-IK-2. JELŰ ÖVEZET
79/C.§ [296]
A KV-IK-2 övezet területén a KVSZ előírását az alábbi kiegészítésekkel és eltérésekkel kell alkalmazni:
1.) Az övezetben a térségi közlekedést (kapcsolatokat) is biztosító közlekedési rendszert egyidejűleg kell megvalósítani:
2.) 128/G TÖMB (Mészáros u. – Győző u. – KV-IK-1 övezethatár – VK-2 övezethatár - Avar u. – KV-IK-1 övezethatár.)
Zöldterületi övezetek
80.§
(1) Az övezetek területén a telkekre és az építményekre vonatkozó jellemzőket a 9. számú táblázat tartalmazza.
9. számú táblázat
Övezet jel | Beépítettség | Szintterületi határérték(1) | Legkisebb zöldfelület | Megengedett legnagyobb magasság | ||||
Terepszint | enged-mény | határ-érték | enged-mény | építmény-magasság | homlokzat-magasság | |||
alatt | Felett | |||||||
Z-EZ-KP-1 | 75 | - | - | - | 70 | 3,5 | 3,5 | |
Z-FK-KP-1 | 100 | 2 | - | - | - | 15 | 4,5 | 4,5 |
Z-KK-KP-1 | 75 | 2 | - | - | - | 50 | 4,5 | 4,5 |
Z-KP-KP-1 | 20-10 | 2 | - | - | - | 75 | 3,5 | 3,5 |
Z-VP-KP-1 | 5 | 2 | - | - | - | 75 | 6,0 | 6,0 |
(2) A területen a BVKSZ zöldterületi keretövezetére meghatározott funkciók helyezhetők el.
(3) a zöldterületek területén
a) lakóépületet,
b) önálló intézményi és szolgáltatási épületet,
c) ipari létesítményt,
d) raktározási építményt,
e) üzemanyagtöltő állomást,
f) bányaterületet
g) a ZKK keretövezeten belüli telkeken mélygarázst
elhelyezni, meglévő épület használati módját e célra megváltoztatni nem lehet.
(4)[298] A telkek minden 100 m2-e után legalább egy fa telepítéséről és fenntartásáról kell gondoskodni. Amennyiben a telek adottságai, vagy más ok miatt az előírt számú fa kihelyezése a telken belül nem biztosítható, lehetőleg az érintett ingatlan környezetében kell a pótlást telepíteni.
(5) Az övezetekben építési tevékenység végzéséhez – a köztárgyak elhelyezésének kivételével – kertészeti tervek készítése is szükséges
(6) A városszerkezeti illetve forgalmi okokból indokolt mélyparkolók helyszíneit a szabályozási tervlapok tartalmazzák.
(7)[299] a Z-EZ-KP-1 övezetben csak a Budai Várba irányuló idegenforgalmat közvetlenül kiszolgáló funkció helyezhető el.
Z-FK-KP-1 JELŰ ÖVEZET
81. §
(1) A Z-FK-KP-1 övezetek területén az építmények kialakítására vonatkozóan a KVÉSZ előírásait az alábbi kiegészítésekkel és eltérésekkel kell alkalmazni.
15. TÖMB (Fő u. – Ponty u. –Szalag u. – Corvin tér)
25. TÖMB (Corvin tér : 14278 hrsz)
33. TÖMB (Batthyány tér – Bem rkp. – Aranyhal u. – Fő u.)
34/B. TÖMB (Batthyány tér: 14445 hrsz)
A tér felülete Közterületrendezési Terv (KÖRT) szerint alakítandó ki.
38. TÖMB (Batthyány u. - Málna u. – Csalogány u. –Gyorskocsi u.)
A terepszint alatti parkolóhoz felszín feletti felépítmény nem helyezhető el.
40. TÖMB (Fazekas u. – Csalogány u. – Málna u. – Mária tér)
A terepszint alatti parkolóhoz felszín feletti felépítmény nem helyezhető el.
50. TÖMB (Kapás u. – Csalogány u. – Fazekas u. – Batthyány u.)
A terepszint alatti parkolóhoz felszín feletti felépítmény nem helyezhető el.
53. TÖMB (Hattyú u. – Széna tér – Csalogány u. – Vándor u.)
62. TÖMB (Várfok u. – Batthyány u. – Ostrom u.)
81. TÖMB (Váralja u. – Sarló lépcső – Palota út)
122. TÖMB (Mészáros u. – 7619/3 MÁV terület – Zsolt u. – Aladár u.)
128/B. TÖMB (Alkotás u. – Déli pu. területe: 7619/3 hrsz – Márvány u.)
149. TÖMB (Attila út – 6310/6 hrsz déli oldala – Krisztina krt. - 6310/1 hrsz északi oldala)
150. TÖMB (Dózsa György tér: 6350 hrsz)
152/B. TÖMB (Kapisztrán tér: 6638 hrsz)
172/B. TÖMB (Dísz tér: 6514 hrsz)[300]
173. TÖMB (Szent György tér: 6456/1 hrsz)
A tér felületét meghatározóan szilárd díszburkolattal kell kialakítani.
A végleges térburkolat kialakításakor a Koldus-kapu műemléki helyreállítását, illetve bemutatását biztosítani kell.
A tér szintjét a szabályozási tervlapon szereplő kelet-nyugati vonalig meghatározóan vízszintesen kell kialakítani, az ettől délre eső területen a szintkülönbséget csak lejtővel vagy ún. „olasz lépcső”-vel lehet áthidalni.
A Szent Zsigmond templom visszaépíthető.
A bemutatandó romok környezetében összefüggő zöldfelületet lehet kialakítani – a tér és a környező építmények megközelítéséhez szükséges burkolt felületekkel.
A téren – a Sándor palota környezetét kivéve – csak konténerbe telepített növényzet helyezhető el.
Z- KK-Kp-1 jelű övezet
82.§
(1) A Z-KK-KP-1 övezetek területén az építmények kialakítására vonatkozóan a KVÉSZ előírásait az alábbi kiegészítésekkel és eltérésekkel kell alkalmazni.
7. TÖMB (Hunyadi J. u. - Hunyadi L. lépcső - Király lépcső - Várfalak - Magas u. - Szalag lépcső)
23. TÖMB (Szilágyi Dezső tér: 14431 hrsz)
39. TÖMB (Batthyány u. - Iskola u. - Franklin u. - Donáti u. - Mária tér)
67. TÖMB (Logodi u. - Körmöci lépcső - Várfalak - Jávorka lépcső vonala)
68. TÖMB (Logodi u. - Jávorka lépcső vonala - Várfalak - Korlát u. vonala)
69. TÖMB (Logodi u. - Korlát lépcső - Várfalak - Bugát lépcső)
72. TÖMB (Logodi u. - Bugát lépcső - Várfalak - Alagút tengelye)
73. TÖMB (Tábor u. - Gránit lépcső - Lovas út)
77. TÖMB (Logodi u. - Zerge lépcső - Palota út – Alagút 7130 hrsz tengelye)
79. TÖMB (Váralja u. - Alagút 7130 hrsz tengelye - Várfalak - Sarló u.)
a) Váralja u. 2. 7132 hrsz
Váralja u. 4. 7133 hrsz
Váralja u. 6. 7134 hrsz
Váralja u. 8. 7135 hrsz
Váralja u. 10. 7136 hrsz
Váralja u. 12. 7137 hrsz
telkek egyesítése végrehajtható, a Sarló utcától indulva szakaszosan is.
b) a terület csak a terepszint alatt építhető be oly módon, hogy a min 85 cm vastag talajtakaróval fedett beépítés nem nyúlhat a Váralja utcai telekhatáron kialakítandó max. 60 cm magas térdfal felső éle és a Palota úti támfal mentén a Palota út mindenkori szintjénél 4,5 m-rel mélyebben fekvő vonallal meghatározott sík fölé
c) az így kialakított rézsűt közparkként kell kialakítani és fenntartani, azon max, 1,0 m magas támfalak alakíthatók ki
d) a felszín fölötti beépítés csak a terepszint alatti funkció gépészeti igényeit, valamint a gyalogosközlekedést szolgálhatja. Ezeket a Palota úti támfal mentén kell elhelyezni úgy, hogy alapterületüket a szükséges legkisebb területre kell korlátozni
e) a terepszint alatti beépítés feltárása a Sarló utcától, annak megfelelő átépítésével történhet meg a Váralja utca szintje alatt
f) az építményhez a Sarló lépcső felé - annak szükséges átépítésével - gyalogoskapcsolatot kell biztosítani
g) a beépítést oly módon kell kialakítani, hogy a Váralja utca felé eső oldalon a meglévő fasor megmaradjon. Azt a beépítéssel egyidőben rekonstruálni kell.
81. TÖMB (Váralja u. - Sarló lépcső - Palota út)
a) Váralja u. 14. 7139 hrsz
1. a teleknek a Sarló lépcsővel párhuzamos irányú felosztása, illetve egyesítése a terület ütemezett felhasználása érdekében a szabályzat módosítása nélkül megengedett.
2. a terület térszín alatti beépítésére csak a meglévő felépítmények bontását követően kerülhet sor
3. a terület csak a terepszint alatt építhető be oly módon, hogy a min. 85 cm vastag talajtakaróval fedett beépítés nem nyúlhat a Váralja utcai telekhatáron kialakítandó max. 2,5 m magas támfal felső éle és a Palota úti támfal mentén a Palota út mindenkori szintjénél 4,5 m-rel mélyebben fekvő vonallal meghatározott sík fölé
4. az így kialakított rézsűt közparkként kell kialakítani és fenntartani, azon max 1,0 m magas támfalak alakíthatók ki
5. a felszín fölötti beépítés csak a szint alatti beépítés gépészeti igényeit, valamint a gyalogosközlekedést szolgálhatják. Ezeket a Palota úti támfal mentén kell elhelyezni úgy, hogy alapterületüket a szükséges legkisebb területre kell korlátozni.
86. TÖMB (Várkert rkp. - Fátyol u. - Döbrentei u. - Fogas u.)
90. TÖMB (Várkert rkp. - Ybl M. tér 14386 hrsz - Lánchíd u. - Északi Cortina fal 14373 hrsz - Várfalak - Sikló vonala - Clark Á. tér)
97. TÖMB (Mészáros u. - Kosciuszkó T. u. - Krisztina tér)
113/B TÖMB (Naphegy tér: 7339/2 hrsz)
Z- KP-Kp-1 jelű övezet
83.§
(1) A Z-KP-KP-1 övezetek területén az építmények kialakítására vonatkozóan a KVÉSZ előírásait az alábbi kiegészítésekkel és eltérésekkel kell alkalmazni.
1/B tömb (Fő u. - Clark Á. tér - Sikló vonala - Várfalak - Hunyadi J. u. - Király lépcső - Hunyadi L. lépcső
7. TÖMB (Hunyadi L. lépcső - Király lépcső – Hunyadi J. u. a Várfalak mentén – Magas u. - Szalag lépcső)
Csónak u. 3. sz. 14356 hrsz
8. TÖMB. (Hunyadi J. u. – Szalag lépcső –Magas u. – Hunyadi J. u. – Várfalak – Jezsuita lépcső)
18. TÖMB. (Toldi F. u. – Donáti u. – 14168 hrsz. telken át – Hunyadi J. u között Hunyadi J. u. – Jezsuita lépcső – Várfalak – Schulek lépcső – Hunyadi J. u. – 14180/3 hrsz.)
30. TÖMB (Szabó I. u. - Hunyadi J. u. - Schulek lépcső - Várfalak - Ilona lépcső)
[301]A várfalak menti, építési hellyel kijelölt, a vári szint megközelítését biztosító beépíthetőség legnagyobb magassága nem nyúlhat a várfal adott mellvéd magassága + 4,0 m magasság fölé.
A megengedett beépítés a védőművek bővítéseként alakítható ki.
44. TÖMB (Hunfalvy u. - Ilona lépcső - Várfalak)
Hunfalvy u. 10. 14059 hrsz
Hunfalvy u. 12. 14058 hrsz.
A parkterület alatt létesíthető terepszint alatti parkolóépítmény felső födémét növényzettel telepített közparkként kell kialakítani, legalább 85 cm vastag talajréteg visszatöltésével. Létesítésével egyidejűleg a tömbben fekvő park- és játszóterületek teljes felújítását végre kell hajtani.
63. TÖMB (Ostrom u. - (6563) hrsz. közterület - Várfalak - Körmöci lépcső - Logodi u. - Mátrai u. - Várfok u.)
73. TÖMB (Tábor u. – Gránit lépcső – Lovas út)
77. TÖMB[302] (Logodi u. – Zerge lépcső – Palota úton át – Várfalak – Alagút tengelye)
a) a Palota út és a Fehérvári kapu keleti oldala között, a Budai Vár akadálymentes megközelítése érdekében
1. közterületen (6453/2 hrsz), egyéb telek közhasználat céljára szolgáló része alatt gyalogos közlekedést szolgáló terepszint alatti építmény elhelyezhető;
2. az akadálymentes megközelítést szolgáló terepszint alatti építmény támfallétesítményként kialakított fogadóépületében kizárólag a látogatók fogadását szolgáló, közcélú, közellátási funkciók helyezhetők el;
3. a közcélú, közellátási funkciót szolgáló támfallétesítmény szabályozási jellemzői elérhetik az övezet engedményes értékeit, a keretövezetben megengedett határértékek alkalmazhatók;
4. a Fehérvári kapu keleti oldalán a várfalakhoz és a városképhez illeszkedő felvonó elhelyezhető.
79. TÖMB (Váralja u. - Alagút 7130 hrsz tengelye - Várfalak - Sarló u.)
89/B tömb (Váralja u. - Palota u. – Várfalak – Északi Cortina fal 14373/2 hrsz – 6452 hrsz határa)
A szabályozási tervlapon szereplő a Vár területére vezető átjárást, illetve útvonalakat, oda a gyalogos feljutást ki kell alakítani.
90. TÖMB (Várkert u. – Ybl Miklós tér 14386 hrsz – Lánchíd u. – Északi Cortina fal 14373/2 hrsz – Várfalak – Sikló vonala – Clark Á. tér)
144. TÖMB (Hegyalja u. - Krisztina krt. - Kereszt u.)
145. TÖMB (Krisztina krt. - Alagút u. - Attila út - (6228) hrsz - 5959 hrsz)
146. TÖMB (Krisztina krt. - Orvos lépcső - Naphegy utca - Kereszt u.)
147. TÖMB (Krisztina krt. - 6106 hrsz - Naphegy u. - Orvos lépcső)
148. TÖMB (Horváth kert: 7175 hrsz)
149. TÖMB (Attila út – 6310/6 hrsz déli oldala – Krisztina krt. – 6310/1 hrsz északi oldala)
Z- VP-Kp-1 jelű övezet
84.§
(1) A Z-VP-KP-1 övezetek területén az építmények kialakítására vonatkozóan a KVÉSZ előírásait az alábbi kiegészítésekkel és eltérésekkel kell alkalmazni.
91. TÖMB (Vérmező: 7072 hrsz)
141. TÖMB (Szirtes u. - Kocsány u. - Bérc u. - 5413/3 hrsz-ú közpark)
a) A tömb területén kialakuló közcélú zöldterületek szabályozási tervlap szerinti kialakítását és egységes magas színvonalú fenntartását biztosítani kell.
b) Bérc u. 4.c (Szirom u. 20.) 5334 hrsz
Bérc u. 6.a 5319/10 hrsz
1 telkek Bérc utcával határos, max. 15 m-es sávjában terepszint alatt építmény létesíthető
2 A területsávon keresztül biztosítani kell az Antal u. felől érkező közcélú gyalogos átjárást.
c) Szirtes u. 32/a. - 32/b (Szirom u. 17-19.) 5338/1 hrsz
Szirtes u. 34. (Szirom u. 21.) 5337 hrsz
Szirtes u. 36. (Szirom u. 23.) 5336 hrsz
telkeknél a szabályozási tervben jelölt területsávja az alábbi feltételekkel építhető be:
1 [303]A beépítés a megengedett teljes programra készített tervdokumentáció alapján történhet, de ütemezve is megvalósítható, amennyiben az egyes ütemek használhatósága és városképi megjelenése önmagukban is megfelelő.
2 a területen csak az idegenforgalmat, illetve vendéglátást közvetlen szolgáló funkció helyezhető el,
3 a beépíthető területsáv max. 10 %-a szint felett, max. 30 %-a szint alatt építhető be,
4 a területsáv 70 %-át zöldfelületként kell kialakítani és fenntartani,
5 a szint feletti beépítés magassága Szirtes u. szintje fölé 4,5 m-nél jobban nem nyúlhat, és a beépítés egységeinek a Szirtes u-val párhuzamos vetületi hossza a 20 m-t, a beépítés teljes hossza pedig a 60 m-t nem haladhatja meg,
6 [304]az egységek közti távolságot, valamint a tetőzet kialakítását a városkép, illetve a Citadella látványának védelmére tekintettel kell kialakítani,
7 a területsávon keresztül biztosítani kell az Antal u. felöl érkező közcélú gyalogos átjárást.
142. TÖMB (Hegyalja u. - Gellért rkp. - Kerülethatár - 140 és 141 tömbök határa – Orom u. – Sánc u. (5692/1-2 hrsz – 5613/3 hrsz)
a)[305] Sikló
1. szabályozási tervlapon jelölt helyen sikló létesíthető,[306]
2. a siklóhoz a szükséges méretű ingatlan a szabályozási terv módosítása nélkül kialakítható,
3. a siklót az Orom utcáig terepszint alatt kell vezetni,
4. a létesítményhez a Szirtes u. mentén a kizárólag az üzemi funkciót (működést) szolgáló minimálisan szükséges felszín fölötti beépítés létesíthető, melynek alapterülete max. 150 m2,
5. az építmény nem nyúlhat a Szirtes u. csatlakozó szintjénél 6,5 m-rel magasabbra.
Z-EZ-Kp-1 jelű övezet
85.§
A Z-EZ-KP-1 övezetek területén az építmények kialakítására vonatkozóan a KVÉSZ előírásait az alábbi kiegészítésekkel és eltérésekkel kell alkalmazni.
77. TÖMB (Logodi u. - Zerge lépcső - Palota út - Alagút tengelye 7130 hrsz)
79. TÖMB (Váralja u. - Alagút tengelye 7130 hrsz - Várfalak - Sarló u.)
Alkalmazási előírások
86.§
(1) Ahol a telek területre több övezet van felsorolva, a megengedett beépítések értékei az adott övezetnek megfelelő területre számítandók.
(2) A telekalakítási tervlapon jelölt új telekhatárok pontos helyét – a kialakult állapot, a tereptárgyak, támfalak, régészeti leletek és az értékes növényzet figyelembevételével – geodéziai felmérés alapján kidolgozott telekalakítási térrajzban kell meghatározni.
(3) [307]
(4) A szabályzat alkalmazása szempontjából – eltérő rendelkezés vagy jelölés hiányában – a homlokzatmagasság értékeit az adott közterület felöli építési vonalon kell értelmezni. E magasság által meghatározott sík fölé az (5) bekezdés kivételével az építmény többi homlokzatának magassága nem emelkedhet.
(5) [308]
(6) Ahol az építési hely határa a homlokzatmagassággal (H) van értelmezve, ott az adott távolság az arra néző homlokzatmagasság alapul vételével számítandó.
(7) [309]
(8) Ahol a szabályzat új épület építésénél magastető létesítését szabályozza (a szabályozási terven: MT, illetve LT), ott a jelölt tömegalakítás kötelező, azaz csak magastetős, illetve csak lapostetős épület létesíthető. Egyéb esetben a városképi illeszkedési követelmények figyelembevételével mindkét tető-forma alkalmazható.
(9) [310]
(10) Az emeletráépítési lehetőség csak egy alkalommal vehető figyelembe.
(11) A szabályozási tervben jelölt emeletráépítési, magastetőssé alakítási és tetőkorrekciós beavatkozások a jelöléssel érintett épületrészekre vonatkoznak.
(12) Az épület homlokzatához csatlakozó 5 méter széles teleksávon belül, legfeljebb 3 méter mélységig a terepszint süllyesztésével (bevágás, angolakna, stb.) történő homlokzatmagasság (építménymagasság) növekedést az előírások alkalmazása szempontjából figyelmen kívül kell hagyni.
(13) A tetőtérbeépítési tilalom az adott épület teljes tetőterére vonatkozik.
(14) A tetőablak nyitásának tilalma csak a szabályozási tervben szereplő jelzéssel érintett tetősíkra (tetősíkokra) vonatkozik.
(15) Nem tekinthető az Étv. 20. § szerinti tilalomnak vagy korlátozásnak, ha a szabályzat valamely építést vagy beavatkozást feltétel teljesítéséhez köt.
(16)[311]
(17) Azoknál a zöldövezeteknél (zöldövezeti telkeknél), amelyek nem fővárosi vagy kerületi tulajdonban állnak, ill. nincsenek közhasználatra átadva, a szabályzatban szereplő közpark, közkert jelölés, ill. a SZT-ben jelölt KP övezeti jelkulcs nem jelenti a közhasználat biztosítására vonatkozó kötelezettséget.[312]
(18)[313]
(19)[314]
(20)[315]
(21)[316]A szabályzat alkalmazása szempontjából felújításra, illetve megerősítésre szorul az az építmény, amelynek teljes szakértői vizsgálata szerint, alapozása, tartószerkezetei, tetőszerkezete, külső és belső homlokzati felületei, fedése, közműhálózatának állaga oly mértékben megromlott, vagy megsérült, hogy a felsorolt elemek közül legalább három teljes felújítására, cseréjére, illetve megerősítésére van szükség.
(22)[317] A szabályzat alkalmazása szempontjából a közterületre vonatkozó szabályok szerint veendő figyelembe a VK-FV2 Z övezet akár részlegesen közhasználatra átadott, illetve ilyen területként kialakult teljes területe – a beépített területek illetve a szabályozási tervben meghatározott építési helyek kivételével.
(23)[318] A szabályzat alkalmazása szempontjából a grafiti-mentesítés – nem minősül felújításnak.
(24)[319]
(25)[320] Azon épületek, illetve építmények bontása esetén, amelyek a Szabályzat rendelkezései szerint viszonyítási pontokat (elemeket, magasságokat) tartalmaznak, ezeket az adatokat a bontási engedély megfelelő adataiból kell átvenni.
Záró rendelkezések
87.§
(1) A KÉSZ 2000. szeptember 1-jén lép hatályba.
(2) A KÉSZ hatályba lépésével a területre vonatkozó valamennyi előzőleg jóváhagyott rendezési terv, rendelet, úgy mint
13/1993 (VII.8.) Kt számú,
19/1994 (V.6.) Kt számú,
24/1994 (IX.23.) Kt számú,
25/1994 (IX.23.) Kt számú,
11/1995 (VI.20.) Kt számú,
12/1995 (VII.1.) Kt számú,
24/1995 (XII.8.) Kt számú,
3/1996 (III.25.) Kt számú,
4/1996 (V.6.) Kt számú,
6/1996 (V.6.) Kt számú,
11/1997 (IV.2.) Kt számú,
17/1997 (VII.8.) Kt számú,
29/1997 (XI.13.) Kt számú,
32/1997 (XII.8.) Kt számú,
36/1997 (XII.30.) Kt számú,
9/1998 (IV.10.) Kt számú
hatályát veszti.
(3) A szabályzatot a hatályba lépést követően indított építési ügyekben kell alkalmazni.
(4)[321]
Egységes szerkezetben a 16/2002. (X.11.) Kt., a 21/2003. (X. 3.) Kt., a 29/2003. (XII. 1.) Kt., a 35/2004. (XI. 30.) Kt., a 23/2005. (XI. 3.) Kt., a 20/2007. (X. 1.) Kt., a 29/2007. (XII. 14.) Kt., a 26/2008. (X. 31.) Kt., a 11/2010. (III.29.) Kt. és a 19/2010. (IX.16.) Kt. rendeletekkel, az 1/2012. (II.17.) önkormányzati, a 30/2013. (XII. 2.) önkormányzati, a 21/2015. (IX.24.) önkormányzati, a 22/2015. (XI.19.) önkormányzati, a 25/2015. (XII.17.) önkormányzati, a 16/2016. (IX.9.) önkormányzati, a 7/2017. (III.23.) önkormányzati, a 8/2017. (III.23.) önkormányzati, a 18/2017. (IX.29.) önkormányzati rendeletekkel és a Kúria Önkormányzati Tanácsának Köf.5017/2020/4. számú határozatával.
Megállapította a 16/2002. (X. 11.) Kt. rendelet 2. §-a, hatályos 2002. október 11-től.
A szabályozási tervlapokat módosította a 7/2017. (III.23.) önkormányzati rendelet 2. §-a, hatályos 2017. március 24-től.
Módosította a 16/2002. (X. 11.) Kt. rendelet 3. §-a, hatályos 2002. október 11-től.
Hatályon kívül helyezte az 1/2012. (II. 17.) önkormányzati rendelet 2. §-a, hatályos 2012. február 17-től.
Kicserélte a 30/2013. (XII. 2.) önkormányzati rendelet 1. §-a, hatályos 2013. január 1-jétől.
Hatályon kívül helyezte a 18/2017. (IX.29.) önkormányzati rendelet 33. § (5) bekezdése, hatályos 2017. október 1-től.
Megállapította a 29/2003. (XII. 1.) Kt. rendelet 2. §-a 2003. december 1-jétől, módosította a 23/2005. (XI. 3.) Kt. rendelet 2. §-a, hatályos 2005. november 15-től.
Hatályon kívül helyezte a 18/2017. (IX.29.) önkormányzati rendelet 33. § (5) bekezdése, hatályos 2017. október 1-től.
Módosította a 30/2013. (XII. 2.) önkormányzati rendelet 19. §-a, hatályos 2013. január 1-jétől.
Hatályon kívül helyezte a 18/2017. (IX.29.) önkormányzati rendelet 33. § (5) bekezdése, hatályos 2017. október 1-től.
Kicserélte a 30/2013. (XII. 2.) önkormányzati rendelet 2. §-a, hatályos 2013. január 1-jétől.
Kicserélte a 30/2013. (XII. 2.) önkormányzati rendelet 2. §-a, hatályos 2013. január 1-jétől.
16/1998 (VI.3.) KTM rendelet
Módosította az 1/2012. (II. 17.) önkormányzati rendelet 3. §-a, hatályos 2012. február 17-től.
Módosította az 1/2012. (II. 17.) önkormányzati rendelet 4. §-a, hatályos 2012. február 17-től.
Megsemmisítette a Kúria Önkormányzati Tanácsának Köf.5017/2020/4. számú határozata, hatályos 2020. október 3-tól.
Hatályon kívül helyezte a 21/2003. (X. 3.) Kt. rendelet 3. § (1) a) pontja 2003. október 15-től.
Megállapította a 21/2003. (X. 3.) Kt. rendelet 3. § (1) b) pontja, hatályos 2003. október 15-től.
Megállapította a 21/2003. (X. 3.) Kt. rendelet 3. § (1) b) pontja, hatályos 2003. október 15-től.
Megállapította a 25/2015. (XII. 17.) Kt. rendelet 1. §-a, hatályos 2016. január 16-tól.
Megállapította a 21/2003. (X. 3.) Kt. rendelet 3. § (1) c) pontja, hatályos 2003. október 15-től.
Megállapította a 1/2012. (II. 17.) önkormányzati rendelet, hatályos 2012. február 17-étől.
Megállapította a 29/2007. (XII.14.) Kt. rendelet 2.§-a, hatályos 2008. január 15-től.
Módosította a 21/2003. (X. 3.) Kt. rendelet 3. § (2) a) pontja, hatályos 2003. október 15-től.
Megállapította a 21/2003. (X. 3.) Kt. rendelet 3. § (2) b) pontja, hatályos 2003. október 15-től.
Kicserélte a 30/2013. (XII. 2.) önkormányzati rendelet 3.§-a, hatályos 2014. január 1-jétől.
Megállapította a 16/2002. (X. 11.) Kt. rendelet 5. §-a, hatályos 2002. október 11-től.
Hatályon kívül helyezte a 31/2004. (XI. 10.) Kt. rendelet 15. § (1) bekezdése 2004. december 1-jétől.
Megállapította a 21/2003. (X. 3.) Kt. rendelet 4. §-a, hatályos 2003. október 15-től.
Kicserélte a 30/2013. (XII. 2.) önkormányzati rendelet 4. §-a, hatályos 2014. január 1-jétől.
Módosította a 35/2004. (XI. 30.) Kt. rendelet 2. §-a, hatályos 2004. december 15-től.
Hatályon kívül helyezte a 30/2013. (XII. 2.) önkormányzati rendelet 21. §-a, hatályos 2014. január 1-jétől.
Hatályon kívül helyezte a 18/2017. (IX.29.) önkormányzati rendelet 33. § (5) bekezdése, hatályos 2017. október 1-től.
Módosította a 16/2002. (X. 11.) Kt. rendelet 8. §-a, hatályos 2002. október 11-től.
Hatályon kívül helyezte a 30/2013. (XII. 2.) önkormányzati rendelet 21. §-a, hatályos 2014. január 1-jétől.
Módosította az 1/2012. (II. 17.) önkormányzati rendelet 5. §-a, hatályos 2012. február 17-től.
Hatályon kívül helyezte a 18/2017. (IX.29.) önkormányzati rendelet 33. § (5) bekezdése, hatályos 2017. október 1-től.
Hatályon kívül helyezte a 18/2017. (IX.29.) önkormányzati rendelet 33. § (5) bekezdése, hatályos 2017. október 1-től.
Hatályon kívül helyezte a 18/2017. (IX.29.) önkormányzati rendelet 33. § (5) bekezdése, hatályos 2017. október 1-től.
Megállapította a 16/2002. (X. 11.) Kt. rendelet 10. § (1) bekezdése, hatályos 2002. október 11-től.
Megállapította a 25/2015. (XII. 17.) Kt. rendelet 4. §-a, hatályos 2016. január 16-tól.
Kicserélte a 30/2013. (XII. 2.) önkormányzati rendelet 6.§-a, hatályos 2014. január 1-jétől.
Kicserélte a 30/2013. (XII. 2.) önkormányzati rendelet 6.§-a, hatályos 2014. január 1-jétől.
Kicserélte a 30/2013. (XII. 2.) önkormányzati rendelet 6.§-a, hatályos 2014. január 1-jétől.
Hatályon kívül helyezte a 30/2013. (XII. 2.) önkormányzati rendelet 21. §-a, hatályos 2014. január 1-jétől.
Hatályon kívül helyezte a 30/2013. (XII. 2.) önkormányzati rendelet 21. §-a, hatályos 2014. január 1-jétől.
Hatályon kívül helyezte a 18/2017. (IX.29.) önkormányzati rendelet 33. § (5) bekezdése, hatályos 2017. október 1-től.
Módosította a 16/2002. (X. 11.) Kt. rendelet 10. § (3) bekezdése, hatályos 2002. október 11-től.
Megállapította a 16/2002. (X. 11.) Kt. rendelet 10. § (4) bekezdése, hatályos 2002. október 11-től.
Hatályon kívül helyezte a 18/2017. (IX.29.) önkormányzati rendelet 33. § (5) bekezdése, hatályos 2017. október 1-től.
Megállapította a 21/2003. (X. 3.) Kt. rendelet 6. §-a, hatályos 2003. október 15-től.
Hatályon kívül helyezte a 30/2013. (XII. 2.) önkormányzati rendelet 21. §-a, hatályos 2014. január 1-jétől.
Kicserélte a 30/2013. (XII. 2.) önkormányzati rendelet 7. §-a, hatályos 2014. január 1-jétől.
Hatályon kívül helyezte a 30/2013. (XII. 2.) önkormányzati rendelet 21. §-a, hatályos 2014. január 1-jétől.
Kicserélte a 30/2013. (XII. 2.) önkormányzati rendelet 7. §-a, hatályos 2014. január 1-jétől.
Megállapította a 30/2013. (XII. 2.) önkormányzati rendelet 7. §-a, hatályos 2014. január 1-jétől.
Kicserélte a 30/2013. (XII. 2.) önkormányzati rendelet 8. §-a, hatályos 2014. január 1-jétől.
Kiegészítette az 1/2012. (II. 17.) önkormányzati rendelet 11. §-a, hatályos 2012. február 17-től.
Kiegészítette az 1/2012. (II. 17.) önkormányzati rendelet 12. §-a, hatályos 2012. február 17-től.
Megállapította a 21/2003. (X. 3.) Kt. rendelet 7. §-a, hatályos 2003. október 15-től.
Kiegészítette az 1/2012. (II. 17.) önkormányzati rendelet 13. §-a, hatályos 2012. február 17-től.
Kicserélte a 30/2013. (XII. 2.) önkormányzati rendelet 9. §-a, hatályos 2014. január 1-jétől.
Megállapította az 1/2012. (II. 17.) önkormányzati rendelet 14. §-a, hatályos 2012. február 17-től.
Kicserélte a 30/2013. (XII. 2.) önkormányzati rendelet 9. §-a, hatályos 2014. január 1-jétől.
Kicserélte a 30/2013. (XII. 2.) önkormányzati rendelet 9. §-a, hatályos 2014. január 1-jétől.
Kicserélte a 30/2013. (XII. 2.) önkormányzati rendelet 9. §-a, hatályos 2014. január 1-jétől.
Hatályon kívül helyezte a 21/2003. (X. 3.) Kt. rendelet 8. §-a 2003. október 15-től.
Kicserélte a 30/2013. (XII. 2.) önkormányzati rendelet 9. §-a, hatályos 2014. január 1-jétől.
Kiegészítette a 20/2007. (X.1.) Kt. rendelet 4.§-a, hatályos 2007. október 1-től.
Módosította a 16/2002. (X. 11.) Kt. rendelet 11. § (1) bekezdése, hatályos 2002. október 11-től.
Megállapította a 11/2010. (III.29.) Kt. rendelet 2.§-a, hatályos 2010. április 1-től.
Megállapította a 25/2015. (XII. 17.) Kt. rendelet 5. §. (1) bekezdése, hatályos 2016. január 16-tól.
Módosította a 35/2004. (XI. 30.) Kt. rendelet 6. §-a, hatályos 2004. december 15-től.
Kicserélte a 30/2013. (XII. 2.) önkormányzati rendelet 10. §-a, hatályos 2014. január 1-jétől.
Megállapította a 23/2005. (XI. 3.) Kt. rendelet 3. §-a, hatályos 2005. november 15-től.
Módosította a 25/2015. (XII. 17.) Kt. rendelet 5. §. (2) bekezdése, hatályos 2016. január 16-tól.
Kicserélte a 30/2013. (XII. 2.) önkormányzati rendelet 10. §-a, hatályos 2014. január 1-jétől.
Megállapította a 16/2002. (X. 11.) Kt. rendelet 11. § (2) bekezdése, hatályos 2002. október 11-től.
Hatályon kívül helyezte a 18/2017. (IX.29.) önkormányzati rendelet 33. § (5) bekezdése, hatályos 2017. október 1-től.
Megállapította a 20/2007. (X.1.) Kt. rendelet 5.§-a, hatályos 2007. október 1-től.
Megállapította a 20/2007. (X.1.) Kt. rendelet 5.§-a, hatályos 2007. október 1-től.
Hatályon kívül helyezte a 18/2017. (IX.29.) önkormányzati rendelet 33. § (5) bekezdése, hatályos 2017. október 1-től.
Módosította a 20/2007. (X.1.) Kt. rendelet 6.§-a, hatályos 2007. október 1-től.
Módosította a 16/2002. (X. 11.) Kt. rendelet 11. § (3) bekezdése, hatályos 2002. október 11-től.
Hatályon kívül helyezte a 30/2013. (XII. 2.) önkormányzati rendelet 21. §-a, hatályos 2014. január 1-jétől.
Megállapította a 35/2004. (XI. 30.) Kt. rendelet 7. §-a, hatályos 2004. december 15-től.
A korábbi 10. pont előírásait hatályon kívül helyezte a 16/2016. (IX.9.) önkormányzati rendelet 1.§-a, ezzel egyidejűleg a korábbi 11. pont számozása 10. pontra változik; hatályos 2016. október 9-től.
Hatályon kívül helyezte a 18/2017. (IX.29.) önkormányzati rendelet 33. § (5) bekezdése, hatályos 2017. október 1-től.
Kicserélte a 30/2013. (XII. 2.) önkormányzati rendelet 11. §-a, hatályos 2014. január 1-jétől.
Megállapította a 35/2004. (XI. 30.) Kt. rendelet 8. §-a, hatályos 2004. december 15-től.
Kicserélte a 30/2013. (XII. 2.) önkormányzati rendelet 11. §-a, hatályos 2014. január 1-jétől.
Kicserélte a 30/2013. (XII. 2.) önkormányzati rendelet 11. §-a, hatályos 2014. január 1-jétől.
Megállapította a 20/2007. (X.1.) Kt. rendelet 8.§-a, hatályos 2007. október 1-től.
Módosította a 16/2002. (X. 11.) Kt. rendelet 12. §-a, hatályos 2002. október 11-től.
Megállapította a 25/2015. (XII. 17.) Kt. rendelet 6. §-a, hatályos 2016. január 16-tól.
Fővárosi Közgyűlés 47/1998. (X.15.) (BVKSZ) szerint.
Kicserélte a 30/2013. (XII. 2.) önkormányzati rendelet 12. §-a, hatályos 2014. január 1-jétől.
Hatályon kívül helyezte a 30/2013. (XII. 2.) önkormányzati rendelet 21. §-a, hatályos 2014. január 1-jétől.
Megállapította a 30/2013. (XII. 2.) önkormányzati rendelet 12. §-a hatályos 2014. január 1-jétől.
Hatályon kívül helyezte a 18/2017. (IX.29.) önkormányzati rendelet 33. § (5) bekezdése, hatályos 2017. október 1-től.
Hatályon kívül helyezte a 18/2017. (IX.29.) önkormányzati rendelet 33. § (5) bekezdése, hatályos 2017. október 1-től.
Hatályon kívül helyezte a 18/2017. (IX.29.) önkormányzati rendelet 33. § (5) bekezdése, hatályos 2017. október 1-től.
Hatályon kívül helyezte a 18/2017. (IX.29.) önkormányzati rendelet 33. § (5) bekezdése, hatályos 2017. október 1-től.
Hatályon kívül helyezte a 18/2017. (IX.29.) önkormányzati rendelet 33. § (5) bekezdése, hatályos 2017. október 1-től.
Hatályon kívül helyezte a 18/2017. (IX.29.) önkormányzati rendelet 33. § (5) bekezdése, hatályos 2017. október 1-től.
Hatályon kívül helyezte a 18/2017. (IX.29.) önkormányzati rendelet 33. § (5) bekezdése, hatályos 2017. október 1-től.
Hatályon kívül helyezte a 18/2017. (IX.29.) önkormányzati rendelet 33. § (5) bekezdése, hatályos 2017. október 1-től.
Hatályon kívül helyezte a 18/2017. (IX.29.) önkormányzati rendelet 33. § (5) bekezdése, hatályos 2017. október 1-től.
Hatályon kívül helyezte a 18/2017. (IX.29.) önkormányzati rendelet 33. § (5) bekezdése, hatályos 2017. október 1-től.
Hatályon kívül helyezte a 30/2013. (XII. 2.) önkormányzati rendelet 21. §-a, hatályos 2014. január 1-jétől.
Hatályon kívül helyezte a 18/2017. (IX.29.) önkormányzati rendelet 33. § (5) bekezdése, hatályos 2017. október 1-től.
Hatályon kívül helyezte a 30/2013. (XII. 2.) önkormányzati rendelet 21. §-a, hatályos 2014. január 1-jétől.
Hatályon kívül helyezte a 30/2013. (XII. 2.) önkormányzati rendelet 21. §-a, hatályos 2014. január 1-jétől.
Hatályon kívül helyezte a 30/2013. (XII. 2.) önkormányzati rendelet 21. §-a, hatályos 2014. január 1-jétől.
Hatályon kívül helyezte a 30/2013. (XII. 2.) önkormányzati rendelet 21. §-a, hatályos 2014. január 1-jétől.
Hatályon kívül helyezte a 18/2017. (IX.29.) önkormányzati rendelet 33. § (5) bekezdése, hatályos 2017. október 1-től.
Kicserélte a 30/2013. (XII. 2.) önkormányzati rendelet 13. §-a, hatályos 2014. január 1-jétől.
Hatályon kívül helyezte a 18/2017. (IX.29.) önkormányzati rendelet 33. § (5) bekezdése, hatályos 2017. október 1-től.
Hatályon kívül helyezte a 18/2017. (IX.29.) önkormányzati rendelet 33. § (5) bekezdése, hatályos 2017. október 1-től.
Hatályon kívül helyezte a 18/2017. (IX.29.) önkormányzati rendelet 33. § (5) bekezdése, hatályos 2017. október 1-től.
Hatályon kívül helyezte a 18/2017. (IX.29.) önkormányzati rendelet 33. § (5) bekezdése, hatályos 2017. október 1-től.
Hatályon kívül helyezte a 18/2017. (IX.29.) önkormányzati rendelet 33. § (5) bekezdése, hatályos 2017. október 1-től.
Hatályon kívül helyezte a 18/2017. (IX.29.) önkormányzati rendelet 33. § (5) bekezdése, hatályos 2017. október 1-től.
Hatályon kívül helyezte a 18/2017. (IX.29.) önkormányzati rendelet 33. § (5) bekezdése, hatályos 2017. október 1-től.
Hatályon kívül helyezte a 18/2017. (IX.29.) önkormányzati rendelet 33. § (5) bekezdése, hatályos 2017. október 1-től.
Hatályon kívül helyezte a 18/2017. (IX.29.) önkormányzati rendelet 33. § (5) bekezdése, hatályos 2017. október 1-től.
Hatályon kívül helyezte a 18/2017. (IX.29.) önkormányzati rendelet 33. § (5) bekezdése, hatályos 2017. október 1-től.
Hatályon kívül helyezte a 18/2017. (IX.29.) önkormányzati rendelet 33. § (5) bekezdése, hatályos 2017. október 1-től.
Hatályon kívül helyezte a 18/2017. (IX.29.) önkormányzati rendelet 33. § (5) bekezdése, hatályos 2017. október 1-től.
Hatályon kívül helyezte a 18/2017. (IX.29.) önkormányzati rendelet 33. § (5) bekezdése, hatályos 2017. október 1-től.
Megállapította az 1/2012. (II. 17.) önkormányzati rendelet 21. §-a, hatályos 2012. február 17-től.
Megállapította az 1/2012. (II. 17.) önkormányzati rendelet 22. §-a, hatályos 2012. február 17-től.
Megsemmisítette a Kúria Önkormányzati Tanácsának Köf.5017/2020/4. számú határozata, hatályos 2020. október 3-tól.
Módosította a 25/2015. (XII. 17.) Kt. rendelet 8. §-a, hatályos 2016. január 16-tól.
Megállapította a 25/2015. (XII. 17.) Kt. rendelet 9. §-a, hatályos 2016. január 16-tól.
Megsemmisítette a Kúria Önkormányzati Tanácsának Köf.5017/2020/4. számú határozata, hatályos 2020. október 3-tól.
Hatályon kívül helyezte a 30/2013. (XII. 2.) önkormányzati rendelet 21. §-a, hatályos 2014. január 1-jétől.
Hatályon kívül helyezte a 16/2002. (X. 11.) Kt. rendelet 16. § (1) bekezdése 2002. október 11-től.
Megállapította a 16/2002. (X. 11.) Kt. rendelet 16. § (2) bekezdése, hatályos 2002. október 11-től.
Megállapította a 26/2008. (X.31.) Kt. rendelet 3.§-a, hatályos 2008. november 1-től
Megállapította a 16/2002. (X. 11.) Kt. rendelet 16. § (3) bekezdése, hatályos 2002. október 11-től.
Megállapította a 35/2004. (XI. 30.) Kt. rendelet 11. §-a, hatályos 2004. december 15-től.
Hatályon kívül helyezte az 1/2012. (II. 17.) önkormányzati rendelet 19. §-a, hatályos 2012. február 17-től.
Megállapította a 35/2004. (XI. 30.) Kt. rendelet 12. §-a, hatályos 2004. december 15-től.
Hatályon kívül helyezte a 16/2002. (X. 11.) Kt. rendelet 17. § (1) pontja 2002. október 11-től.
Módosította a 16/2016. (IX.9.) önk. rendelet 2.§ (1) bekezdése, hatályos 2016. október 9-től.
Módosította a 16/2016. (IX.9.) önk. rendelet 2.§ (2) bekezdése, hatályos 2016. október 9-től.
Megállapította a 16/2002. (X. 11.) Kt. rendelet 17. § (2) bekezdése, hatályos 2002. október 11-től.
Módosította a 16/2002. (X. 11.) Kt. rendelet 17. § (3) bekezdése, hatályos 2002. október 11-től.
Megsemmisítette a Kúria Önkormányzati Tanácsának Köf.5017/2020/4. számú határozata, hatályos 2020. október 3-tól.
Kicserélte a 30/2013. (XII. 2.) önkormányzati rendelet 14. §-a, hatályos 2014. január 1-jétől.
Módosította a 16/2002. (X. 11.) Kt. rendelet 18. §-a, hatályos 2002. október 11-től.
Hatályon kívül helyzete a 21/2003. (X. 3.) Kt. rendelet 11. §-a 2003. október 15-től.
Megállapította a 20/2007. (X.1.) Kt. rendelet 9.§-a, hatályos 2007. október 1-től.
Módosította a 20/2007. (X.1.) Kt. rendelet 10.§-a, hatályos 2007. október 1-től.
Módosította és hatályon kívül helyezte a 20/2007. (X.1.) 10. §., hatályos 2007. október 1.
Kicserélte a 30/2013. (XII. 2.) önkormányzati rendelet 14. §-a, hatályos 2014. január 1-jétől.
Módosította a 25/2015. (XII. 17.) Kt. rendelet 10. §. (1) bekezdése, hatályos 2016. január 16-tól.
Megállapította a 16/2002. (X. 11.) Kt. rendelet 19. §-a, hatályos 2002. október 11-től.
Törölte az 1/2012. (II. 17.) önkormányzati rendelet 23. §-a, hatályos 2012. február 17-étől.
Módosította a 25/2015. (XII. 17.) Kt. rendelet 10. §. (2) bekezdése, hatályos 2016. január 16-tól.
Kicserélte a 30/2013. (XII. 2.) önkormányzati rendelet 15. §-a, hatályos 2014. január 1-jétől.
Megállapította az 1/2012. (II. 17.) önkormányzati rendelet 24. §-a, hatályos 2012. február 17-étől.
Megállapította a 30/2013. (XII. 2.) önkormányzati rendelet 15. §-a, hatályos 2014. január 1-jétől.
Kicserélte a 30/2013. (XII. 2.) önkormányzati rendelet 15. §-a, hatályos 2014. január 1-jétől.
Kicserélte a 30/2013. (XII. 2.) önkormányzati rendelet 15. §-a, hatályos 2014. január 1-jétől.
Megállapította a 30/2013. (XII. 2.) önkormányzati rendelet 15. §-a, hatályos 2014. január 1-jétől.
Kicserélte a 30/2013. (XII. 2.) önkormányzati rendelet 15. §-a, hatályos 2014. január 1-jétől.
Törölte az 1/2012. (II. 17.) önkormányzati rendelet 25. §-a, hatályos 2012. február 17-étől.
Törölte az 1/2012. (II. 17.) önkormányzati rendelet 25. §-a, hatályos 2012. február 17-étől.
Megállapította az 1/2012. (II. 17.) önkormányzati rendelet 25. §-a, hatályos 2012. február 17-étől.
Kicserélte a 30/2013. (XII. 2.) önkormányzati rendelet 15. §-a, hatályos 2014. január 1-jétől.
Kicserélte a 30/2013. (XII. 2.) önkormányzati rendelet 15. §-a, hatályos 2014. január 1-jétől.
Hatályon kívül helyezte a 16/2002. (X. 11.) Kt. rendelet 20. § (2) bekezdése 2002. október 11-től.
Hatályon kívül helyezte a 16/2002. (X. 11.) Kt. rendelet 20. § (3) bekezdése 2002. október 11-től.
Hatályon kívül helyezte a 16/2002. (X. 11.) Kt. rendelet 20. § (4) bekezdése 2002. október 11-től.
Módosította a 16/2002. (X. 11.) Kt. rendelet 20. § (5) bekezdése, hatályos 2002. október 11-től.
Kicserélte a 30/2013. (XII. 2.) önkormányzati rendelet 15. §-a, hatályos 2014. január 1-jétől.
Hatályon kívül helyezte a 30/2013. (XII. 2.) önkormányzati rendelet 21. §-a, hatályos 2014. január 1-jétől.
Kicserélte a 30/2013. (XII. 2.) önkormányzati rendelet 15. §-a, hatályos 2014. január 1-jétől.
Megállapította a 30/2013. (XII. 2.) önkormányzati rendelet 15. §-a, hatályos 2014. január 1-jétől.
Hatályon kívül helyezte a 16/2002. (X. 11.) Kt. rendelet 21. §-a 2002. október 11-től.
Kicserélte a 30/2013. (XII. 2.) önkormányzati rendelet 16. §-a, hatályos 2014. január 1-jétől.
Kicserélte a 30/2013. (XII. 2.) önkormányzati rendelet 16. §-a, hatályos 2014. január 1-jétől.
Megállapította a 16/2002. (X. 11.) Kt. rendelet 22. §-a, hatályos 2002. október 11-től.
Módosította a 30/2013. (XII. 2.) önkormányzati rendelet 19. §-a, hatályos 2014. január 1-jétől.
Kicserélte a 30/2013. (XII. 2.) önkormányzati rendelet 16. §-a, hatályos 2014. január 1-jétől.
Hatályon kívül helyezte a 16/2002. (X. 11.) Kt. rendelet 23. §-a 2002. október 11-től.
Hatályon kívül helyezte a 16/2002. (X. 11.) Kt. rendelet 24. §-a 2002. október 11-től.
Hatályon kívül helyezte a 21/2003. (X. 3.) Kt. rendelet 13. § (1) bekezdése 2003. október 15-től..
Megállapította a 21/2003. (X. 3.) Kt. rendelet 13. § (2) bekezdése, hatályos 2003. október 15-től.
Megállapította a 21/2003. (X. 3.) Kt. rendelet 13. § (2) bekezdése, hatályos 2003. október 15-től.
Megállapította a 25/2015. (XII. 17.) Kt. rendelet 11. §-a, hatályos 2016. január 16-tól.
Megállapította a 21/2003. (X. 3.) Kt. rendelet 13. § (3) bekezdése, hatályos 2003. október 15-től.
Megállapította a 21/2003. (X. 3.) Kt. rendelet 13. § (3) bekezdése, hatályos 2003. október 15-től.
Megállapította a 21/2003. (X. 3.) Kt. rendelet 13. § (4) bekezdése, hatályos 2003. október 15-től.
Kicserélte a 30/2013. (XII. 2.) önkormányzati rendelet 16. §-a, hatályos 2014. január 1-jétől.
Hatályon kívül helyezte a 20/2007. (X.1.) Kt. rendelet 11.§-a, hatályos 2007. október 1-től.
Megállapította a 11/2010. (III.29.) Kt. rendelet 3.§-a, hatályos 2010. április 1-től.
Hatályon kívül helyezte a 16/2002. (X. 11.) Kt. rendelet 25. §-a 2002. október 11-től.
Módosította a 22/2015. (XI.19.) önk. rendelet 1.§-a, hatályos 2015. november 20-tól.
Törölte az 1/2012. (II. 17.) önkormányzati rendelet 26. §-a, hatályos 2012. február 17-étől.
Megállapította a 21/2003. (X. 3.) Kt. rendelet 14. §-a, hatályos 2003. október 15-től.
Hatályon kívül helyezte a 21/2003. (X. 3.) Kt. rendelet 15. §-a 2003. október 15-től.
Megállapította a 21/2003. (X. 3.) Kt. rendelet 16. §-a, hatályos 2003. október 15-től.
Kicserélte a 30/2013. (XII. 2.) önkormányzati rendelet 16. §-a, hatályos 2014. január 1-jétől.
Megállapította a 21/2003. (X. 3.) Kt. rendelet 17. §-a, hatályos 2003. október 15-től.
Megállapította a 26/2008. (X.31.) Kt. rendelet 4.§-a, hatályos 2008. november 1-től
Kicserélte a 30/2013. (XII. 2.) önkormányzati rendelet 16. §-a, hatályos 2014. január 1-jétől.
Módosította a 25/2015. (XII. 17.) Kt. rendelet 12. §. (1) bekezdése, hatályos 2016. január 16-tól.
Hatályon kívül helyezte a 18/2017. (IX.29.) önkormányzati rendelet 33. § (5) bekezdése, hatályos 2017. október 1-től.
Hatályon kívül helyezte a 18/2017. (IX.29.) önkormányzati rendelet 33. § (5) bekezdése, hatályos 2017. október 1-től.
Hatályon kívül helyezte a 18/2017. (IX.29.) önkormányzati rendelet 33. § (5) bekezdése, hatályos 2017. október 1-től.
Hatályon kívül helyezte a 18/2017. (IX.29.) önkormányzati rendelet 33. § (5) bekezdése, hatályos 2017. október 1-től.
Megállapította a 16/2002. (X. 11.) Kt. rendelet 26. § (1) bekezdése, hatályos 2002. október 11-től.
Módosította a 16/2002. (X. 11.) Kt. rendelet 26. § (2) bekezdése, hatályos 2002. október 11-től.
Hatályon kívül helyezte a 25/2015. (XII. 17.) Kt. rendelet 12. §. (2) bekezdése, hatályos 2016. január 16-tól.
Módosította a 7/2017. (III.23.) Kt. rendelet 1.§-a, hatályos 2017. március 24-től.
Módosította a 20/2007. (X.1.) Kt. rendelet 12.§-a, hatályos 2007. október 1-től.
Megállapította a 21/2003. (X. 3.) Kt. rendelet 18. §-a, hatályos 2003. október 15-től.
Megállapította a 21/2003. (X. 3.) Kt. rendelet 18. §-a, hatályos 2003. október 15-től.
Módosította a 21/2015. (IX.24.) önk. rendelet 1.§-a, hatályos 2015. szeptember 25-től.
Megállapította a 21/2003. (X. 3.) Kt. rendelet 18. §-a, hatályos 2003. október 15-től.
Hatályon kívül helyezte a 18/2017. (IX.29.) önkormányzati rendelet 33. § (5) bekezdése, hatályos 2017. október 1-től.
Megállapította az 1/2012. (II. 17.) önkormányzati rendelet 28. §-a, hatályos 2012. február 17-étől.
Módosította a 25/2015. (XII. 17.) Kt. rendelet 13. §-a, hatályos 2016. január 16-tól.
Megállapította a 16/2002. (X. 11.) Kt. rendelet 27. § (1) bekezdése, hatályos 2002. október 11-től.
Hatályon kívül helyezte a 18/2017. (IX.29.) önkormányzati rendelet 33. § (5) bekezdése, hatályos 2017. október 1-től.
Törölte az 1/2012. (II. 17.) önkormányzati rendelet 29. §-a, hatályos 2012. február 17-étől.
Törölte az 1/2012. (II. 17.) önkormányzati rendelet 29. §-a, hatályos 2012. február 17-étől.
Törölte az 1/2012. (II. 17.) önkormányzati rendelet 29. §-a, hatályos 2012. február 17-étől.
Megállapította a 21/2003. (X. 3.) Kt. rendelet 19. §-a, hatályos 2003. október 15-től.
Megállapította az 1/2012. (II. 17.) önkormányzati rendelet 30. §-a, hatályos 2012. február 17-étől.
Törölte az 1/2012. (II. 17.) önkormányzati rendelet 31. §-a, hatályos 2012. február 17-étől.
Törölte az 1/2012. (II. 17.) önkormányzati rendelet 31. §-a, hatályos 2012. február 17-étől.
Törölte az 1/2012. (II. 17.) önkormányzati rendelet 31. §-a, hatályos 2012. február 17-étől.
Törölte az 1/2012. (II. 17.) önkormányzati rendelet 31. §-a, hatályos 2012. február 17-étől.
Megállapította az 1/2012. (II. 17.) önkormányzati rendelet 32. §-a, hatályos 2012. február 17-étől.
Megállapította az 1/2012. (II. 17.) önkormányzati rendelet 33. §-a, hatályos 2012. február 17-étől.
Megállapította az 1/2012. (II. 17.) önkormányzati rendelet 34. §-a, hatályos 2012. február 17-étől.
Módosította a 21/2015. (IX.24.) önk. rendelet 2.§-a, hatályos 2015. szeptember 25-től.
Megállapította a 25/2015. (XII. 17.) Kt. rendelet 14. §-a, hatályos 2016. január 16-tól.
Megállapította a 21/2003. (X. 3.) Kt. rendelet 20. §-a, hatályos 2003. október 15-től.
Módosította a 30/2013. (XII. 2.) önkormányzati rendelet 19. §-a, hatályos 2014. január 1-jétől.
Megállapította a 21/2003. (X. 3.) Kt. rendelet 21. §-a, hatályos 2003. október 15-től.
Módosította a 19/2010. (IX.16.) Kt. rendelet 7.§-a, hatályos 2010. október 15-től.
Megállapította a 21/2003. (X. 3.) Kt. rendelet 22. § (1) bekezdése, hatályos 2003. október 15-től.
Megállapította az 1/2012. (II. 17.) önkormányzati rendelet 35. §-a, hatályos 2012. február 17-étől.
Kiegészítette az 1/2012. (II. 17.) önkormányzati rendelet 36. §-a, hatályos 2012. február 17-étől.
Megállapította az 1/2012. (II. 17.) önkormányzati rendelet 36. §-a, hatályos 2012. február 17-étől.
Megállapította a 21/2003. (X. 3.) Kt. rendelet 22. § (2) bekezdése, hatályos 2003. október 15-től.
Kicserélte a 30/2013. (XII. 2.) önkormányzati rendelet 16. §-a, hatályos 2014. január 1-jétől.
Megállapította a 21/2003. (X. 3.) Kt. rendelet 22. § (3) bekezdése, hatályos 2003. október 15-től.
Módosította a 30/2013. (XII. 2.) önkormányzati rendelet 19. §-a, hatályos 2014. január 1-jétől.
Módosította a 30/2013. (XII. 2.) önkormányzati rendelet 19. §-a, hatályos 2014. január 1-jétől.
Kicserélte a 30/2013. (XII. 2.) önkormányzati rendelet 17. §-a, hatályos 2014. január 1-jétől.
Megállapította a 16/2002. (X. 11.) Kt. rendelet 28. §-a, hatályos 2002. október 11-től.
Hatályon kívül helyezte a 30/2013. (XII. 2.) önkormányzati rendelet 21. §-a, hatályos 2014. január 1-jétől.
Hatályon kívül helyezte a 30/2013. (XII. 2.) önkormányzati rendelet 21. §-a, hatályos 2014. január 1-jétől.
Hatályon kívül helyezte a 30/2013. (XII. 2.) önkormányzati rendelet 21. §-a, hatályos 2014. január 1-jétől.
Megállapította a 21/2003. (X. 3.) Kt. rendelet 23. §-a, hatályos 2003. október 15-től.
Módosította az 1/2012. (II. 17.) önkormányzati rendelet 40. §-a, hatályos 2012. február 17-étől.
Hatályon kívül helyezte 21/2003. (X. 3.) Kt. rendelet 24. §-a 2003. október 15-től.
Módosította a 35/2004. (XI. 30.) Kt. rendelet 13. §-a, hatályos 2004. december 15-től.
Módosította a 35/2004. (XI. 30.) Kt. rendelet 13. §-a, hatályos 2004. december 15-től.
Megállapította a 21/2003. (X. 3.) Kt. rendelet 24. §-a, hatályos 2003. október 15-től.
Törölte az 1/2012. (II. 17.) önkormányzati rendelet 17. és 39. §-a, hatályos 2012. február 17-étől.
Törölte az 1/2012. (II. 17.) önkormányzati rendelet 39. §-a, hatályos 2012. február 17-étől.
Törölte az 1/2012. (II. 17.) önkormányzati rendelet 39. §-a, hatályos 2012. február 17-étől.
Megállapította a 21/2003. (X. 3.) Kt. rendelet 24. §-a, hatályos 2003. október 15-től.
Kicserélte a 30/2013. (XII. 2.) önkormányzati rendelet 17. §-a, hatályos 2014. január 1-jétől.
Megállapította az 1/2012. (II. 17.) önkormányzati rendelet 41. §-a, hatályos 2012. február 17-étől.
A paragrafus számozását módosította a 29/2007. (XII.14.) Kt. rendelet 5.§-a, hatályos 2008. január 15-től.
Kicserélte a 30/2013. (XII. 2.) önkormányzati rendelet 17. §-a, hatályos 2014. január 1-jétől.
Törölte az 1/2012. (II. 17.) önkormányzati rendelet 42. §-a, hatályos 2012. február 17-étől.
Megállapította az 1/2012. (II. 17.) önkormányzati rendelet 43. §-a, hatályos 2012. február 17-étől.
Megállapította az 1/2012. (II. 17.) önkormányzati rendelet 44. §-a, hatályos 2012. február 17-étől.
Hatályon kívül helyezte a 16/2002. (X. 11.) Kt. rendelet 29. §-a 2002. október 11-től.
Megállapította a 29/2007. (XII.14.) Kt. rendelet 6.§-a, hatályos 2008. január 15-től.
Kicserélte a 30/2013. (XII. 2.) önkormányzati rendelet 17. §-a, hatályos 2014. január 1-jétől.
Kicserélte a 30/2013. (XII. 2.) önkormányzati rendelet 17. §-a, hatályos 2014. január 1-jétől.
Hatályon kívül helyezte a 16/2002. (X. 11.) Kt. rendelet 30. §-a 2002. október 11-től.
Hatályon kívül helyezte a 30/2013. (XII. 2.) önkormányzati rendelet 21. §-a, hatályos 2014. január 1-jétől.
Kicserélte a 30/2013. (XII. 2.) önkormányzati rendelet 17. §-a, hatályos 2014. január 1-jétől.
Hatályon kívül helyezte a 29/2007. (XII.14.) kt. rendelet 7.§-a, hatályos 2008. január 15-től.
Kicserélte a 30/2013. (XII. 2.) önkormányzati rendelet 17. §-a, hatályos 2014. január 1-jétől.
Hatályon kívül helyezte a 21/2003. (X. 3.) Kt. rendelet 25. § (1) bekezdése 2003. október 15-től.
Megállapította a 21/2003. (X. 3.) Kt. rendelet 25. § (2) bekezdése, hatályos 2003. október 15-től.
Hatályon kívül helyezte a 21/2003. (X. 3.) Kt. rendelet 25. § (3) bekezdése 2003. október 15-től.
Hatályon kívül helyezte a 21/2003. (X. 3.) Kt. rendelet 25. § (3) bekezdése 2003. október 15-től.
Megállapította a 21/2003. (X. 3.) Kt. rendelet 25. § (4) bekezdése, hatályos 2003. október 15-től.
Kicserélte a 30/2013. (XII. 2.) önkormányzati rendelet 18. §-a, hatályos 2014. január 1-jétől.
Megállapította a 21/2003. (X. 3.) Kt. rendelet 26. §-a, hatályos 2003. október 15-től.
Megállapította a 20/2007. (X.1.) Kt. rendelet 13.§-a, hatályos 2007. október 1-től.
Megállapította a 21/2003. (X. 3.) Kt. rendelet 27. §-a, hatályos 2003. október 15-től.
Módosította a 21/2003. (X. 3.) Kt. rendelet 28. §-a, hatályos 2003. október 15-től.
Kicserélte a 30/2013. (XII. 2.) önkormányzati rendelet 18. §-a, hatályos 2014. január 1-jétől.
Megállapította a 21/2003. (X. 3.) Kt. rendelet 29. §-a, hatályos 2003. október 15-től.
Módosította a 16/2002. (X. 11.) Kt. rendelet 31. §-a, hatályos 2002. október 11-től.
Megállapította 21/2003. (X. 3.) Kt. rendelet 30. §-a, hatályos 2003. október 15-től.
Módosította a 25/2015. (XII. 17.) Kt. rendelet 15. §-a, hatályos 2016. január 16-tól.
Kicserélte a 30/2013. (XII. 2.) önkormányzati rendelet 18. §-a, hatályos 2014. január 1-jétől.
Kicserélte a 30/2013. (XII. 2.) önkormányzati rendelet 18. §-a, hatályos 2014. január 1-jétől.
Módosította a 20/2007. (X.1.) Kt. rendelet 14.§-a, hatályos 2007. október 1-től.
Módosította a 30/2013. (XII. 2.) önkormányzati rendelet 19. §-a, hatályos 2014. január 1-jétől.
Hatályon kívül helyezte a 18/2017. (IX.29.) önkormányzati rendelet 33. § (5) bekezdése, hatályos 2017. október 1-től.
Hatályon kívül helyezte a 18/2017. (IX.29.) önkormányzati rendelet 33. § (5) bekezdése, hatályos 2017. október 1-től.
Hatályon kívül helyezte a 18/2017. (IX.29.) önkormányzati rendelet 33. § (5) bekezdése, hatályos 2017. október 1-től.
Hatályon kívül helyezte a 18/2017. (IX.29.) önkormányzati rendelet 33. § (5) bekezdése, hatályos 2017. október 1-től.
Hatályon kívül helyezte a 18/2017. (IX.29.) önkormányzati rendelet 33. § (5) bekezdése, hatályos 2017. október 1-től.
Megállapította a 21/2003. (X. 3.) Kt. rendelet 31. §-a, hatályos 2003. október 15-től.
Hatályon kívül helyezte a 18/2017. (IX.29.) önkormányzati rendelet 33. § (5) bekezdése, hatályos 2017. október 1-től.
Hatályon kívül helyezte a 18/2017. (IX.29.) önkormányzati rendelet 33. § (5) bekezdése, hatályos 2017. október 1-től.
Hatályon kívül helyezte a 18/2017. (IX.29.) önkormányzati rendelet 33. § (5) bekezdése, hatályos 2017. október 1-től.
Megállapította az 1/2012. (II. 17.) önkormányzati rendelet 47. §-a, hatályos 2012. február 17-étől.
Megállapította az 1/2012. (II. 17.) önkormányzati rendelet 48. §-a, hatályos 2012. február 17-étől.
Megállapította az 1/2012. (II. 17.) önkormányzati rendelet 49. §-a, hatályos 2012. február 17-étől.
Hatályon kívül helyezte a 18/2017. (IX.29.) önkormányzati rendelet 33. § (5) bekezdése, hatályos 2017. október 1-től.
Megállapította az 1/2012. (II. 17.) önkormányzati rendelet 51. §-a, hatályos 2012. február 17-étől.
Hatályon kívül helyezte a 18/2017. (IX.29.) önkormányzati rendelet 33. § (5) bekezdése, hatályos 2017. október 1-től.